ILVE IVUM90 Under Cupboard Rangehood Instruction

IMPORTANT SAFETY INFORMATION
**Read the complete manual carefully before installation**
Warnings: TO REDUCE THE RISK OF FIRE, ELECTRICAL SHOCK OR PERSONAL INJURY, PLEASE OBSERVE THE FOL-LOWING:
- Installation and electrical work must be done by a qualified person in accordance with all ap-plicable codes and standards
- If the supply cord is damaged, it must be replaced by the manufacturer, its service agent or a similarly qualified person to avoid a hazard. Any modifications that may be required to the electrical system for the installation of the range hood must only be made by qualified electri-cians.
- Before servicing or cleaning unit, switch power off at the service panel. Lock panel to prevent power from being switched on accidentally.
- Use this unit only in the manner intended by the manufacturer.
- Sufficient air is needed for combustion and exhausting of gases through the chimney of fuel burning equipment to prevent back drafting. Follow the heating equipment manufacturer’s guidelines and safety standards, and the local code authorities.
- When cutting or drilling into wall or ceiling, be carefully to do not damage existing electrical wiring and other hidden utilities.
- Ducted fans must always be vented to the outdoors.
- To reduce the risk of fire, use only metal ductwork.
- This unit must be grounded.
TO REDUCE THE RISK OF A RANGE TOP GREASE FIRE:
- Never leave surface units unattended at high settings. Boil-overs cause smoke and greasy spillovers that may ignite. Heat oils slowly on low or medium settings.
- Always turn hood ON when cooking at high heat.
- Clean ventilating fans frequently. Grease should not be allowed to accumulate on fan or filter.
- Use proper pan size. Always use cookware appropriate for the size of the surface element.
WARNING
TO REDUCE THE RICK OF INJURY TO PERSONS IN THE EVENT OF A RANGE TOP GREASE FIRE, OBSERVE THE FOLLOWING:
- SMOTHER FLAMES with a close-fitting lid, cookie sheet or metal tray, and then turn off the burner. If the flames do not go out immediately, evacuate and call the fire department.
- NEVER PICK UP A FLAMING PAN. – You may be burned.
- DO NOT USE WATER, including wet dishcloths or towels – a violent steam explosion will result.
- Use an extinguisher ONLY if:
You know you have a Class ABC extinguisher and you already know how to operate it.- The fire is small and contained in the area where it started.
- The fire department is being called.
- You can fight the fire with your back to an exit.
CAUTION
- To reduce the risk of fire and to properly exhaust air, be sure to duct air outside. Do not vent exhaust air into spaces within walls or ceiling or into attics, crawl spaces or garages.
- Take care when using cleaning agents or detergents.
- Avoid using food products that produce flames under the range hood.
- The range hood must only be used for the exhaust of cooking fumes in home kitchens. The manufacturer disclaims all liability for any other use of the appliance.
- Two installers are recommended because of the large size and weight of this hood.
- Use with approved cord-connection kit only.
- Please read specification label on product for further information and requirements.
INSTALLATION INSTRUCTIONS
Before You Start …
- Read this manual carefully and completely.
- The range hoods conform to related appliances standards. Please check your local building codes for any additional requirements.
- The appliance has been manufactured as class I, therefore ground connection is necessary. The range hood must be installed so that that the plug is easily accessible.
Unpacking Remove the packaging with the product in place. Cut off the packing ribbons and carefully cut open the packaging (do not cut too deeply), remove the packaging. Check that the product is free from transport damage. Any damage shall be reported immediately to the carrier or seller. Damage, faults and missing parts must be reported immediately to the seller
Installation preparation
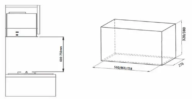
- The range hood should be mounted at a distance of 600mm from the cooking surface for safety & optimum performance ( If the instructions for installation of the gas hob specify a greater distance, this has to be taken into account.)
- Make sure the inner cabinet size appropriate for installing the range hood.

Fixing to the ceiling cabinet
- Before mounting the hood, plug in and test all functions for proper operation.
- Removed the filters from the bottom of the hood to prevent damage during the installation.
- Connected duct tube (if included with the range hood) to the top of the range hood using duct tape on all seals.
- With assistance, hold the hood temporary in position ensuring the bottom is above the minimum clearance for the cooking surface. Mark on the cabinet the holes for the four mounting screws.
- Drill the holes at the distances indicated.
- Mount the hood on the cabinet screws and adjust for appropriate position. When the hood has been adjusted, secure unit by tightening screws.

REMEMBER!
- The distance between the top of the hob and the lowest part of the cooker hood must be at least 600mm.
- If a two-part connection tube is used, the lower section must sit outside the upper sec-tion.
- Do not connect the cooker hood exhaust to a duct used to circulate hot air or vent steam from another appliance.
- Always use protective gloves when installing the appliance!
Operations
- For optimum performance in removing cooking odors, it is recommended that you turn on your range hood prior to cooking and you leave it operating for 15 min-utes after cooking.
- Clean the surfaces of the range hood regularly using a non-abrasive detergent.
- T.fte anti-grease filters capture the grease particles sus-pended in the air. They will accumulate grease and dirt depending on the frequency of the use of your range/cook top.
- In order to prevent a fire hazard, it is recommended that you clean the filters at least every 2 months
- WARNINGS: Do not attempt to remove the fil-ters while the Range Hood is operating.
- Disconnect the electrical plug prior to any maintenance.
- This appliance is not intended for use by young children or infirm persons without supervision.
- There should be adequate ventilation in the room when the Range Hood is used at the same time as other fuel burning appliances.
DESCRIPTION OF THE SWITCH
Electric switch

- Push the “Power” button, the motor will start running at high speed (Indicating lights in “Power” and “High” buttons are on).
- Push the “Light” button, the lights will be on (Indicating light in “Light” button is on).
- Push the “Low” button, the motor will run at low speed (Indicating lights in “Power” and “Low” buttons are on).
- Push the “Mid” button, the motor will run at middle speed (Indicating lights in “Power” and “Mid” buttons are on).
- Push the “High” button, the motor will run at high speed (Indicating lights in “Power” and “High” buttons are on).
- Push the “Highest” button, ttie motor will run at high -speed . . (Indicating -lights -in “Power” and “Highest ” buttons are on).
- Push the “Power” button will stop the motor running at whichever speed.
CARE AND CLEANING
General Regular maintenance is required to ensure that the cooker hood functions properly. This is espe-cially true of the grease and charcoal filters. Clean the fan and other surfaces of the cooker hood regularly with a cloth dipped in denatured alcohol or a non-abrasive liquid cleaner. The charcoal filter cleans the circulating air in the room. Such filters cannot be cleaned or recycled and must be replaced at least every four months. The speed at which the charcoal filter becomes saturated depends on how often the fan is used, the type of food that is cooked and how often the grease filter is cleaned.
To prevent the risk of fire and to ensure that the cooker hood functions properly, the grease filter must always be cleaned as instructed below when the display indicates the need or at least every two months.
Cleaning the grease filter Remove the filter from the cooker hood and clean it in a solution of water and neutral cleaning liquid. Leave the filter to soak in the solution for a while.
- Rinse thoroughly with hot water and leave the filter to dry.
- The filter can also be cleaned in a dishwasher. The color of the grease filter may change after a few washes. This is normal.

NB: If you clean the grease filter in the dishwasher: load only the grease filter and no other items as food particles from dishes can fasten in the filter.
- DO NOT let dirt build up on the hood
- DO NOT use steel wool or steel brushes to clean the hood
- DO NOT leave salt solutions, disinfectants, bleaches or cleaning compounds on the hood for any length of time as they may damage the stainless steel. Rinse after use with clean water and wipe dry with a clean cloth.
Replacing the LED lights
Depending on your model of hood, there are two possible types of lighting, halogen and LED. The illumination is designed for use during cooking and not for prolonged general illumination of your kitchen. Prolonged use of the lights may reduce the life time of the LED lights. WARNING: Do not touch or change lights while the hood is operating. Use only the same LED lights as the original specification. Re-placement lights are available through the dealers.

NB: The light is only meant for use during cooking and not for illuminating the surroundings for longer periods. If the light is used for longer periods, this will considerably shorten the burn time of the lights. Under no circumstances may this extractor fan be disposed of as household waste. It must be taken to a recycling centre for electrical and electronic equipment. This product must be disposed of in accordance with local legislation. For more information on disposal, recycling and reuse of this product, contact your local authority, your household waste collection service or the store where you purchased the product
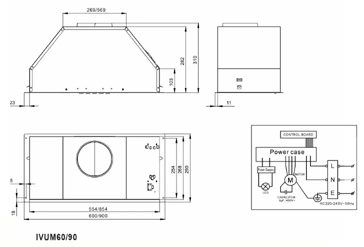
Hood Size & Wiring diagram:


| Problem | Possible Reason | Solution |
| Hood doesn’t turn on.
Poor Airflow | No electrical supply.
Power cord is damaged Aluminum grease filters cloaaed Charcoal filters clogged. Re-circulatinq mode only. | Check the plug is connect-ed. Check the plug is connect-ed. Contact technician service Clean the filters and replace when dry. Replace the charcoal filters. |
| Hood is vibrating | Hood is not secured in place | Check the installation of hood.Tighten mounting screws. |
| Motor running but no air flow | Butterfly valve jammed. | Contact technician service |
| Motor stops after a few minutes | High temperature safety device activated. | The kitchen is not sufficient-Iv ventilated. |
| The hood is installed too near The hood must be at least the cooking surface. 61cm (24″) from the stove | ||
| Strong cooking smell. | Fan speed too low | Use one of the higher set-tings. |
| Charcoal filters not installed. | n re-circulating mode, char-coal filters must be installed. | |
| Oil dripping onto stove. | Aluminum grease filter satu-rated. | Wash the aluminum grease filters |
| Whirring sound | Something in contact with fan blade. | Contact technician service |
| Lights are working but fan isn’t | Contact technician service | |
| Fan is working but liohts are not | Contact technician service | |
WARRANTY
Eurolinx Pty Limited A.B.N. 50 001 473 347 trading as ILVE (“ILVE”) Office: 48-50 Moore Street, Leichhardt N.S.W 2040 Post: Locked Bag 3000, Annandale, N.S.W 2038 P: 1300 856 411
WARRANTY REGISTRATION Your ongoing satisfaction with your ILVE product is important to us. We ask that you complete the enclosed Warranty Registration Card and return it to us so that we have a record of the ILVE product purchased by you, Alternatively, you can now register your warranty online at http://support.eurolinx.com.au/
PRIVACY ILVE respects your privacy and is committed to handling your personal information in accordance with the National Privacy Principles and the Privacy Act 1988 (Cth). A copy of the ILVE Privacy Policy is available at www.ilve. com.au. ILVE will not disclose any personal information set out in the Warranty Registration Card (“Personal Information”) without your consent unless required by
- law;
- any ILVE related company;
- any service provider which provide services to ILVE or assist ILVE in providing services
(including repair and warranty services) to customers. Our purpose in collecting the Personal Information is to keep a record of the ILVE product purchased by you, in order to provide a better warranty service to you in the unlikely event that there is a problem with your ILVE product. ILVE may contact you at any one or more of the addresses, email addresses or telephone numbers set out in the Warranty Registration Card. Please contact ILVE on 1300 694 583 should you not wish to be contacted by ILVE. - Warranty ILVE warrants that each ILVE product will remain, for a period of twenty-four (24) months computed from the date of purchase of the ILVE product, free from defects arising in the manufacture of the ILVE product (“Warranty”). Except for consumer guarantees set out in the Competition and Consumer Act 2010 (Cth) (“Act”), ILVE does not make any further warranties or representations in relation to ILVE products.
- What is not Covered by the Warranty. The Warranty does not apply if an ILVE product is defective by a factor other than a defect arising in the manufacture of the ILVE product, including but not limited to:
- damage through misuse (including failure to maintain, service or use with proper care), neglect, accident or ordinary wear and tear (including deterioration of parts and accessories and glass breakage);
- use for purpose for which the ILVE product was not sold or designed;
- use or installation which is not in accordance with any specified instructions for use or installation;
- use or operation after a defect has occurred or been discovered;
- damage through freight, transportation or handling in transit (other than when ILVE is responsible);
- damage through exposure to chemicals, dusts, residues, excessive voltage, heat, atmospheric conditions or other forces or environmental factors outside the control or ILVE;
- repair, modification or tampering by the purchaser or any person other than ILVE, an employee of ILVE or an authorized ILVE service contractor*;
- use of parts, components or accessories which have not been supplied or specifically approved by ILVE.
- damage to surface coatings caused by cleaning or maintenance using products not recommended in the ILVE product handbook provided to the purchaser upon purchase of the ILVE product;
- damage to the base of an electric oven due to items having been placed on the base of the oven cavity or covering the base, such as aluminium foil (this impedes the transfer of heat from the element to the oven cavity and can result in irreparable damage); or
- damages, dents or other cosmetic imperfections not affecting the performance of the ILVE in respect of an ILVE product purchased as a “factory second” or from display
- The Warranty does not extend to light globes used in ILVE products.
- Domestic Use Each ILVE product is made for domestic use. This Warranty may not extend to ILVE products used for commercial purposes.
- Time for Claim under the Warranty You must make any claim under this Warranty within twenty eight (28) days after the occurrence of an event which gives rise to a claim pursuant to the Warranty, by booking a service call on the telephone number below.
- Proof of Purchase Customers must retain proof of purchase in order to be eligible to make a warranty claim in respect of an ILVE product.
- Claiming under the Warranty Customers will bear the cost of claiming under this Warranty unless ILVE determines the expenses are reasonable, in which case the customer must claim those expenses by providing written evidence of each expense to ILVE at the address on the Warranty Registration Card.
- Statutory Rights
- These terms and conditions do not affect your statutory rights.
- The limitations on the Warranty set out in this document do not exclude or limit the application of the consumer guarantees set out in the Act or any other equivalent or corresponding legislation in the relevant jurisdiction where to do so would:
- contravene the law of the relevant jurisdiction; or
- cause any part of the Warranty to be void.
- ILVE excludes indirect or consequential loss of any kind (including, without limitation, loss of use of the ILVE product) and (other than expressly provided for in these terms and conditions) subject to all terms,
conditions and warranties implied by custom, the general law, the Act or other statute. - The liability of ILVE to you for a breach of any express or non-excludable implied term, condition or warranty is limited at the option of ILVE to:
- replacing or repairing the defective part of the ILVE product;
- paying the cost of replacing or repairing the defective part of the ILVE product;
- replacing the ILVE product; or
- paying the cost of replacing the ILVE product.
- Our goods come with guarantees that cannot be excluded under the Australian Consumer Law. You are entitled to a replacement or refund for a major failure and for compensation for any other reasonably foreseeable loss or damage. You are also entitled to have the goods repaired or replaced if the goods fail to be of acceptable quality and the failure does not amount to a major failure.
- Any part of an ILVE product deemed to be defective and replaced by ILVE is the property of ILVE. ILVE reserves the right to inspect and test ILVE products in order to determine the extent of any defect and the validity of a claim under the Warranty.
- *For your closest ILVE authorised service agent go to https://support.eurolinx.com.au/#/map/retailers All warranty service calls must be booked through ILVE’s Customer Care Centre on [email protected] or
Warranty Card tear off




















