beko K69400 Integrable Combi Refrigerator

Personal Safety

Tools Needed for Installation


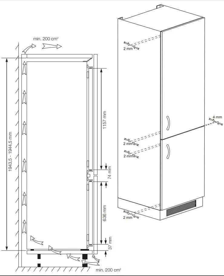
Installation
















Download manual
Here you can download full pdf version of manual, it may contain additional safety instructions, warranty information, FCC rules, etc.