WATTS RD-270 Scupper Drain with Angle Grate

Engineering Specification
- Job Name
- Contractor
- Job Location
- Approval
- Engineer
- Contractor’s P.O. No.
- Approval
- Representative
Scupper Drain with Angle Grate
Specification
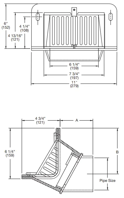
Watts RD-270 epoxy coated cast iron scupper drain with flashing clamp, secured grate, and no hub (standard) outlet.
| Suffix | Options Description |
| -1 | Nickel Bronze Grate & Frame |
| -6 | Vandal Proof Grate |
| -13 | Galvanized |
| -A | 45 Degree Outlet (NH Only) |
| -T | Threaded Outlet |
| Pipe | No Hub | Threaded | ||
| Size | A | B | A | B |
| 2″(51) | 5 1/8″(130) | 6 1/2″(165) | 2 3/4″(70) | 6″(152) |
| 3″(76) | 4 1/2″(114) | 5 3/4″(146) | 2 3/4″(70) | 5 3/8″(137) |
| 4″(102) | 4″(102) | 5 1/8″(130) | 2 3/4″(70) | 4 7/8″(124) |
| 6″(152) | 3 1/2″(90) | 4 13/16″(122) | N/A | N/A |
| Free Area |
| Sq. In. |
| 15 |
DIMENSION

NOTICE
The information contained herein is not intended to replace the full product installation and safety information available or the experience of a trained product installer. You are required to thoroughly read all installation instructions and product safety information before beginning the installation of this product. Watts product specifications in U.S. customary units and metric are approximate and are provided for reference only. For precise measurements, please contact Watts Technical Service. Watts reserves the right to change or modify product design, construction, specifications, or materials without prior notice and without incurring any obligation to make such changes and modifications on Watts products previously or subsequently sold.




















