NORTHCLIFFE 9014769 Track System and Parts

Installation instruction
Please read and understand all of the directions, before starting luminaire installation. Keep this instruction for future use.

First step for all connection options

Surface track





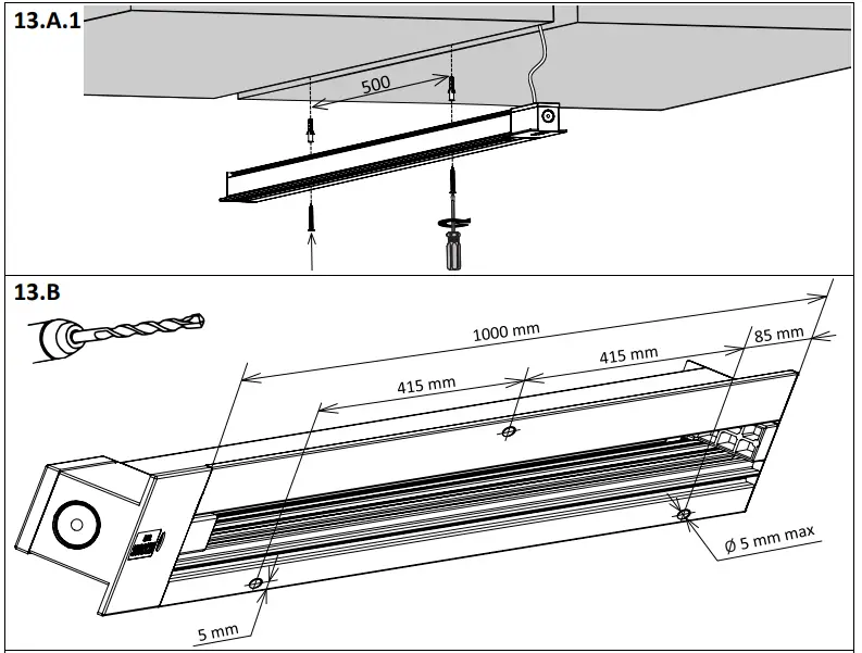
Recessed track






Track system parts

End feed connection
- Polarity right feed

- Polarity left feed




Middle-feed connection option

Jointing connection option

L – feed connection option


T – feed connection option
- A Polarity internal left

- B Polarity internal right

- C Polarity external left

- D Polarity external right


X – feed connection option

Adjustable corner connection option


Suspension set

- 1.A (Suspension set KIT 1)

- 1.B (Suspension set KIT 3)

- 1.C (Suspension set KIT 4)






Information is subject to change without notice
CAUTION!
RISK OF ELECTRIC SHOCK
The light source contained in this luminaire shall only be replaced by the manufacturer or his service agent or a similar qualified person.
Installation can only be performed by an authorized electrician; Switch off the electricity supply before carrying out any work; Luminaire must be installed in compliance with all safety requirements; Attention! The exact model of the fixture marked on a label inside it.
IMPORTANT INFORMATION FOR CORRECT DISPOSAL OF THE PRODUCT IN ACCORDANCE WITH EC DIRECTIVE 2002/96/EC.
At the end of its working life, the product must not be disposed of as urban waste. It must be taken to a special local authority differentiated waste collection centre or to a dealer providing this service.
Disposing of a household appliance separately avoids possible negative consequences for the environment and health, deriving from inappropriate disposal and enables the constituent materials to be recovered to obtain significant savings in energy and resources. As a reminder of the need to dispose of household appliances separately, the product is marked with a crossed-out wheeled dustbin.

Customer Support



























