CERBERUS PYROTRONICS PNC-2Z NAC Expansion Module

ENGINEER AND ARCHITECT SPECIFICATIONS
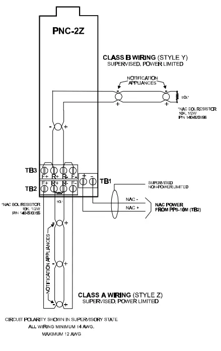
- 2 Style Z (Class A) Notification Appliance Circuits (NAC)
- Compatible with Cerberus Pyrotronics F-Series Notification Appliances
- 2 Amp, Power Limited Circuits
- Programmable for Coded or NonSilenceable Operation
- Bypass Option Programmable
- Listed, ULC Listed
Introduction
The model PNC-2Z Notification Appliance Circuit module provides 2 programmable, power limited circuits. They have the same device compatibility as the circuits contained in the PPS-10M power supply module. The PNC-2Z is listed by Underwriters Laboratories, Inc. and Underwriters Laboratories of Canada.
Description
- The PXL basic system contains 4 Notification Appliance Circuits on the power supply module. The system can be expanded with one additional power supply module and 4 PNC-2Z modules for a total of 16 NAC’s.
- Each notification circuit is provided with terminals for either Style Z (Class A) or Style Y (Class B) wiring. Each circuit is rated for 2 amps and is power limited per UL 864 requirements. The circuits are compatible with a wide range of Cerberus Pyrotronics notification appliances. Please refer to compatibility chart.
- The notification circuits default to steady operation, but can be programmed for March Time, Temporal or California Uniform Fire Code operation. Any circuit can alternatively be programmed as non-silenceable (waterflow service for example). In that event, the circuit is steady. Temporal Code is required for building evacuation by NFPA Standard 72 as of July 1996.
Ordering Information
| Model | Description | Part Number |
| PNC-2Z | 2 NAC Expansion Module for PXL | 500-894079 |
For more information on PXL please refer to catalog #8100.
The installation Instruction for the Model PNC-2Z is P/N 315-093975.
Wiring Diagram

Compatible Device List
| Chime/ Strobes | Vibrating Bells | Electro-Mech. Horn/Strobes | Electronic Horns 1-Tone with Strobe | Single Stroke Bells | |
| EC-S15-C/F/S EC-S17-C/F/S EC-S75-F/S EC-S110-F/S | BE-F/LC BF-F/LC BS-F/LC BT-F/LC | HN-S15-C/F/S HN-S17-C/F/S HN-S75-F/S HN-S110-F/S | HNH-S15-C/F/S HNH-S17-C/F/S HNH-S75-F/S HNH-S110-F/S | EH-S15-C/F/S EH-S17-C/F/S EH-S75-F/S EH-S110-F/S | BE-SS BF-SS BS-SS BT-SS |
| Strobes | Electronic S.W./Strobes | Horns/ Horn Strobes 3-Tone | Horns/ Horn Strobes 3-Tone | Sync. Strobes | Bell/Strobe Plate |
| S15-F/FS/FT/S/ST S17-F/FS/FT/S/ST S75-F/FS/FT/S/ST S110-F/FS/FT/S/ST | EW-S15-C/F/S EW-S17-C/F/S EW-S75-F/S EW-S110-F/S | MC-C/F/S MC-S15-C/F/S MC-S17-C/F/S MC-S75-F/S MC-S110-F/S | MTL-C/F/S MTL-S15-C/F/S MTL-S17-C/F/S MTL-S75-F/S MTL-S110-F/S | S15S-F/FS/FT/S/ST S17S-F/FS/FT/S/ST S75S-F/FS/FT/S/ST | S15-6060H/6090V S17-6060H/6090V S75-6090V S110-6090V |
| Sync. Electro-Mech. Horn/Strobes | Sync. Horns/ Horn Strobes 3-Tone | Sync. Horns/ Horn Strobes 8-Tone | Synchronizing Control Module | Sync. Bell/Strobe Plate | |
| HN-S15S-C/F/S HN-S17S-C/F/S HN-S75S-F/S | HNH-S15S-C/F/S HNH-S17S-C/F/S HNH-S75S-F/S | MC-S15S-C/F/S MC-S17S-C/F/S MC-S75S-F/S | MTL-S15S-C/F/S MTL-S17S-C/F/S MTL-S75S-F/S | SCM-F/FW | S15S-6060H/6090V S17S-6060H/6090V S75S-6090V |
| Electronic Horns 1-Tone | Chimes | Electronic Slow Whoop | Electro-Mech. Horns | Tri-Tone Horns | Suffixes |
| EH-C/F/S | EC-C/F/S CH-F/LC/SS | EW-C/F/S | HN-C/EP/F/S HNH-C/EP/F/S | SEA TTH | C = Ceiling EP = Explosion Proof F = Flush FT = Flush w/Terminals G = Gang Mount H = Horizontal LC = Low Current S = Surface SS = Single Stroke ST = Surface w/Terminals U = Universal Mount V = Vertical W = White |
| Mini-Horns | Sync. Mini-Horns | Mini-Horns/Strobes 8-Tone | Sync. Mini-Horns/ Strobes 8-Tone | ||
| MH-1G/1GW MH-U/UW MH-S15-U/UW MH-S17-U/UW MH-S75-U/UW MH-S110-U/UW | MHT-1G/1GW MHT-U/UW MHT-S15-U/UW MHT-S17-U/UW MHT-S75-U/UW MHT-S110-U/UW | MHST-1G/1GW MHST-U/UW MHST-S15S-U/UW MHST-S17S-U/UW MHST-S75S-U/UW | MMT-1G/1GW MMT-U/UW MMT-S15-U/UW MMT-S17-U/UW MMT-S75-U/UW MMT-S110-U/UW | MMT-S15S-U/UW MMT-S17S-U/UW MMT-S75S-U/UW | |
The SCM-F/FW Synchronizing Control Module must be used with these modules to synchronize the strobes.
ABOUT COMPANY
- Cerberus Pyrotronics
- 8 Ridgedale Avenue
- Cedar Knolls, NJ 07927
- Tel: (201) 267-1300
- FAX: (201) 397-7008
- Cerberus Pyrotronics
- 50 East Pearce Street
- Richmond Hill, Ontario
- L4B, 1B7 CN
- Tel: (905) 764-8384
- FAX: (905) 731-9182




















