ROPOX 6139 Interfaces Kitchen

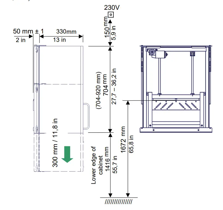
Ropox Diagonal
Cabinet width 40-180 cm / 15,7 – 70,8 in (30-40904 to 30-40918)
Assumptions for schematic diagram: Cabinet height = 704 mm / 27,7 in – (for other cabinet heights the dimension sketch will be changed accordingly)
(The frame is designed for cabinet heights from 704-920 mm / 27,7- 36,2 in.)
Height upper edge of wall cabinet = 2120 mm / 83,5 in (for other cabinet heights the dimension sketch will be changed accordingly)

Construction – see dimensions on the following page
Minimum area for reinforcement of wall. Wall material must be suitable for screw mounting.
Area for electric installation.
Area for conduit.
Cable for operation must be laid from the cabinet to the front edge of the worktop for mounting the control switch. We recommend the installation of a conduit in the wall to accommodate the cable (ø3.5cm).
If a high cabinet stands in the immediate vicinity of the Diagonal, the cable may be run through the cabinet to avoid the conduit in the wall.
40 – 120 cm / 15,7 – 47,2 in Max. load 120kg/264lb evenly distributed, according to DS/EN 12182, based on 9 screws/bolts.
130 – 180 cm / 51,2 – 70,8 in Max. load 220kg/485lb evenly distributed, according to DS/EN 12182, based on 18 screws/bolts.
Minimum load capacity per screw/bolt: 60kg/132lb
The fitter should always consider the material, condition and strength of the wall and use screws and rawlplugs suitable for the specific wall type.
Cabinet width 40-50 cm 15,7 – 19,7 in (30-40904 to 30-40905)

Cabinet width 60-120 cm 23,6 – 47,2 in (30-40906 to 30-40912)

Cabinet width 130-180 cm 51,2 – 70,8 in (30-40913 to 30-40918)

Ropox Verti Electric
Cabinet width 40-180 cm / 15,7 – 70,8 in (30-40604 to 30-40618) Assumptions for schematic diagram:
Cabinet height = 704 mm / 27,7 in – (for other cabinet heights the dimension sketch will be changed accordingly)
(The frame is designed for cabinet heights from 704-920 mm / 27,7- 36,2 in.)

Construction – see dimensions on the following page
Minimum area for reinforcement of wall. Wall material must be suitable for screw mounting.
Area for electric installation
Area for conduit.
Cable for operation must be laid from the cabinet to the front edge of the worktop for mounting of the control switch. We recommend the installation of an empty pipe conduit in the wall to accommodate the cable (ø3.5cm).
If a high cabinet stands in the immediate vicinity of the Verti Electric, the cable may be run through the cabinet to avoid the conduit in the wall.
40 – 120 cm / 15,7 – 47,2 in Max. load 80kg/176lb evenly distributed, according to DS/EN 12182, based on 11 screws/bolts.
130 – 180 cm / 51,2 – 70,8 in Max. load 120kg/264lb evenly distributed, according to DS/EN 12182, based on 22 screws/bolts.
Minimum load capacity per screw/bolt: 22.5kg/49lb
The fitter should always consider the material, condition and strength of the wall and use screws and rawlplugs suitable for the specific wall type. Motor is placed inside the cabinet:
For double unit 130-180 cm / 51,2 – 70,8 in, it is not possible to mount cabinet sizes smaller than 60 cm / 23,6 in on the right side, due to motor placement inside the cabinet.
Cabinet width 40-50 cm 15,7 – 19,7 in (30-40604 to 30-40605)

Cabinet width 60-120 cm 23,6 – 47,2 in (30-40606 to 30-40612)

Cabinet width 130-180 cm 51,2 – 70,8 in (30-40613 to 30-40618)

Ropox Verti-Inside
Cabinet depth 26.5cm/10,2in or 31cm/12,2in and cabinet width 40-100cm / 15,7 – 39,3 in (30-40404 to 30-40420
Construction – see dimensions on the following page
Minimum area for reinforcement of wall. Wall material must be suitable for screw mounting.
Area for electric installation.
Area for conduit.
Cabinet height of 70.4cm/27,6in or more. For cabinet heights above 70.4cm/27,6in a fixed shelf is placed in the upper part of the cabinet (see illustration).
Cable for operation must be laid from the cabinet to the front edge of the worktop for mounting of the control switch. We recommend the installation of an empty conduit in the wall to accommodate the cable (ø3.5cm).
If a high cabinet stands in the immediate vicinity of Verti-Inside, the cable may be run through the cabinet to avoid the conduit in the wall.
Max. load 176kg evenly distributed over all three shelves for cabinets up to 100cm/39,3in in width, according to DS/EN 12182, based on 8 screws/bolts.
Minimum load capacity per screw/bolt:
10.5kg/23lb
The fitter should always consider the material, condition and strength of the wall and use screws and rawlplugs suitable for the specific wall type.

Ropox Brackets
For wall cabinets (30-80000)
Construction – see dimensions on the following page
Minimum area for reinforcement of wall. Wall material must be suitable for screw mounting.
Max. load 90kg evenly distributed over the cabinet up to 80cm/31,5in in width, according to DS/EN 12182, based on 12 screws/bolts.
Minimum load capacity per screw/bolt:
25kg/55lb
The fitter should always consider the material, condition and strength of the wall and use screws and rawlplugs suitable for the specific wall type.

For worktops
(30-80006)
Construction – see dimensions on the following page
Minimum area for reinforcement of wall. Wall material must be suitable for screw mounting.
Area for electric and plumbing installations.
Max. load 75kg/165lb evenly distributed up to 80cm/31,5in in width, according to DS/EN 12182.
Minimum load capacity per screw/bolt: 100 kg/220 lb
The fitter should always consider the material, condition and strength of the wall and use screws and rawlplugs for the specific wall type.
Max. load 75kg/165lb evenly distributed up to 80cm/31,5in in width, according to DS/EN 12182.
Minimum load capacity per screw/bolt: 100 kg/220 lb
The fitter should always consider the material, condition and strength of the wall and use screws and rawlplugs for the specific wall type.

Ropox FlexiBasic
600 – 2000 mm / 23,6 – 78,7 in (30-63060 – 30-63200)
Construction – see dimensions on the following page.
Minimum area for reinforcement of wall. Wall material must be suitable for screw mounting
Area for electric and plumbing installations.
Max. load 150kg/331lb evenly distributed over the worktop up to 300cm/118in in width, according to DS/EN 12182. Minimum load capacity per screw/bolt: 40 kg/ 88lb
The fitter should always consider the material, condition and strength of the wall and use screws and rawlplugs suitable for the specific wall type.

2050 – 3000 mm / 80,7 – 118 in (30-63205 – 30-63300)
Construction – see dimensions on the following page
Minimum area for reinforcement of wall. Wall material must be suitable for screw mounting.
Area for electric and plumbing installations.
Max. load 150kg/330lb evenly distributed over the worktop up to 300cm/118in in width, according to DS/EN 12182.
Minimum load capacity per screw/bolt: 40 kg/ 88lb
The fitter should always consider the material, condition and strength of the wall and use screws and rawlplugs suitable for the specific wall type.

Ropox FlexiManual
600 – 2000 mm / 23,6 – 78,7 in
(30-65060 – 30-65200) Construction – see dimensions on the following page
Minimum area for reinforcement of wall. Wall material must be suitable for screw mounting.
Area for electric and plumbing installations
Max. load 150kg/330lb evenly distributed over the worktop up to 300cm/118in in width, according to DS/EN 12182.
Minimum load capacity per screw/bolt: 40 kg7 88lb
The fitter should always consider the material, condition and strength of the wall and use screws and rawlplugs suitable for the specific wall type.

2050 – 3000 mm / 80,7 – 118 in (30-65205 – 30-65300)
Construction – see dimensions on the following page
Minimum area for reinforcement of wall. Wall material must be suitable for screw mounting.
Area for electric and plumbing installations.
Max. load 150kg/330lb evenly distributed over the 300cm/118in in width, according to DS/EN 12182.
Ropox FlexiElectric
600 – 3000 mm / 23,6 – 118 in (30-66060 – 30-66200)
Construction – see dimensions on the following page
Minimum area for reinforcement of wall. Wall material must be suitable for screw mounting.
Area for electric and plumbing installations.
Max. load 150kg/330lb evenly distributed over the worktop up to 300cm/118in in width, according to DS/EN 12182.
Minimum load capacity per screw/bolt: 40 kg/ 88lb
The fitter should always consider the material, condition and strength of the wall and use screws and rawlplugs suitable for the specific wall type.
2050 – 3000 mm / 80,7 – 118 in (30-66205 – 30-66300) Construction – see dimensions on the following page
Minimum area for reinforcement of wall. Wall material must be suitable for screw mounting.
Area for electric and plumbing installations
Max. load 150kg/330lb evenly distributed over the worktop up to 300cm/118in width, according to DS/EN 12182.
Minimum load capacity per screw/bolt: 40 kg/ 88lb
The fitter should always consider the material, condition and strength of the wall and use screws and rawlplugs suitable for the specific wall type.
Ropox FlexiCorner
Construction – see dimensions on the following page
Minimum area for reinforcement of wall. Wall must be suitable for screw mounting.
Area for electric and plumbing installations.
Max. load 150kg/330lb evenly distributed over the worktop up to 300cm/118in width, according to DS/EN 12182.
Min. load capacity per screw/bolt: 40 kg/ 88lb
The fitter should always consider the material, condition and strength of the wall and use screws and rawlplugs suitable for the specific wall type.
Ropox FlexiPlus – 2 Legs
600 – 2400 mm / 23,6 – 94,5 in (30-90060 – 30-90244)
Construction – see dimensions on the following page
Minimum area for reinforcement of wall. Wall material must be suitable for screw mounting.
Area for electrical and plumbing installations.
Max. load 150kg/330lb evenly distributed over the worktop up to 300cm/118in in width, according to DS/EN 12182.
Minimum load capacity per screw/bolt: 30 kg/ 66lb
The fitter should always consider the material, condition and strength of the wall and use screws and rawlplugs suitable for the specific wall type.

Ropox FlexiPlus – 3 Legs
2450 – 3000 mm / 96,5 – 118 in (30-90245 – 30-90300)
Construction – see dimensions on the following page
Minimum area for reinforcement of wall. Wall material must be suitable for screw mounting.
Area for electrical and plumbing installations
Max. load 150kg/330lb evenly distributed over the worktop up to 300cm/118in width, according to DS/EN 12182.
Minimum load capacity per screw/bolt: 30 kg/ 66lb
The fitter should always consider the material, condition and strength of the wall and use screws and rawlplugs suitable for the specific wall type.
Ropox FlexiPlus Corner
(30-91XXX-XXX)
Construction – see dimensions on the following page
Minimum area for reinforcement of wall. Wall must be suitable for screw mounting.
Area for electrical and plumbing installations.
Max. load 150kg/330lb evenly distributed over the worktop up to 300cm/118 in width, according to DS/EN 12182. Min. load capacity per screw/bolt: 38 kg/ 83lb
The fitter should always consider the material, condition and strength of the wall and use screws and rawlplugs suitable for the specific wall type.





















