
User Manual
HAHG6
HAHG7
CANDY HOOVER GROUP Via Comolli 16 Brugherio-Italy
haier.com
Safety instructions
We recommend you keep the instructions for installation and use them for later reference, and before installing the hob, note its serial number in case you need to get help from the after-sales service.
- WARNING: The appliance and its accessible parts become hot during use. Care should be taken to avoid touching heating elements.
- Children under 8 years of age must be kept away from the appliance unless they are continuously supervised. Children should not play with the appliance.
- The appliance can be used by those aged 8 or over and by those with limited physical, sensorial or mental capacities, without experience or knowledge of the product, only if supervised or provided with instruction as to the operation of the appliance, in a safe way with awareness of the possible risks.
- Cleaning and maintenance should not be carried out by unsupervised children.
- WARNING: the appliance and accessible parts become hot during use. Be careful not to touch any hot parts.
- WARNING: the accessible parts may become hot during use. Young children should be kept away.
- WARNING: in order to avoid any danger caused by the accidental resetting of the thermal interruption device, the appliance should not be powered by an external switching device, such as a timer, or be connected to a circuit that is regularly switched on and off. Children under 8 should be kept at a safe distance from the appliance if not continuously supervised.
- Do not use a steam cleaner or high-pressure spray for cleaning operations.
- Disconnect the appliance from the mains electricity supply before carrying out any work or maintenance on it.
- Connect a plug to the supply cable that is able to bear the voltage, current, and load indicated on the tag and have the earth contact.
- The socket must be suitable for the load indicated on the tag and must have ground contact connected and in operation. The earth conductor is yellow-green in color. This operation should be carried out by a suitably qualified professional. ln case of incompatibility between the socket and the appliance plug, ask a qualified electrician to substitute the socket with another suitable type. The plug and the socket must be conformed to the current norms of the installation country. Connection to the power source can also be made by placing an omnipolar breaker, with contact separation compliant to the requirements for overvoltage category III, between the appliance and the power source that can bear the maximum connected load and that is in line with current legislation. The yellow-green earth cable should not be interrupted by the breaker. The socket or omnipolar breaker used for the connection should be easily accessible when the appliance is installed.
- The disconnection may be achieved by having the plug accessible or by incorporating a switch in the fixed wiring in accordance with the wiring rules.
- WARNING: use only hob guards designed by the manufacturer of the cooking appliance or indicated by the manufacturer of the appliance in the instructions for use as suitable or hob guards incorporated in the appliance. The use of inappropriate guards can cause accidents.
- WARNING: unattended cooking on a hob with fat or oil can be dangerous and may result in fire. NEVER try to extinguish a fire with water, but switch off the appliance and then cover flame e.g. with a lid or a fire blanket.
- WARNING: danger of fire: do not store items on the cooking surfaces.
- CAUTION: the cooking process must be supervised. A short-term cooking process has to be supervised continuously.
- If present does not stare into halogen lamp hob elements.
- Do not put metallic objects such as knives, forks, spoons, or lids on the hob. They could heat up.
- Aluminum foil and plastic pans must not be placed in heating zones.
- After every use, some cleaning of the hob is necessary to prevent the build-up of dirt and grease. If left, this is recooked when the hob is used and burns giving off smoke and unpleasant smells, not to mention the risks of fire propagation.
- Do not touch the heat zones during operation or for a while after use.
- Always use the appropriate cookware.
- Always place the pan in the center of the unit that you are cooking on.
- Do not place anything on the control panel.
- Do not use the hob as a working surface.
- Do not use the surface as a cutting board.
- Do not store heavy items above the hob. If they drop onto the hob, they may cause damage.
- Do not use the hob for the storage of any items.
- Do not slide cookware across the hob.
- Do not use rough or abrasive materials or sharp metal scrapers to clean the glasses, as they can scratch the surface and cause the glass to shatter.
- If the supply cord is damaged, it must be replaced by the manufacturer, its service agent, or similarly qualified persons in order to avoid a hazard. The earth conductor (yellow-green) must be longer than 10 mm on the terminal block side. The internal conductor’s section should be appropriate to the power absorbed by the hob (indicated on the tag). The type of
the power cable must be H05V2V2-F. - No additional operation/setting is required in order to operate the appliance at the rated frequencies.
- This appliance is not intended to be operated by means of an external timer or separate remote control system.
Thank you for purchasing the Haier gas hob. Please read this instruction manual carefully before using the hob and keep it in a safe place for future reference.
Instructions for the installer
Installing a domestic appliance can be a complicated operation which if not carried out correctly, can seriouslyaffect consumer
safety. It is for this reason that the task should be undertaken by a professionally qualifiedperson who will carry it out in
accordance with the technical regulations in force. In the event that this advice is ignored and the installation is carried out by an
unqualified person, the manufacturer declines all responsibility for any technical failure of the product whether or not it
results in damage to goods or injury to individuals.
BUILDING IN
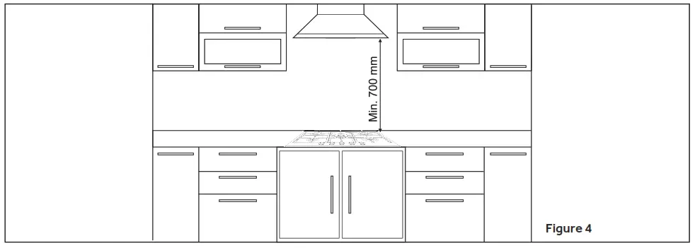
The hob may be installed in any worktop which is heat resistant to a temperature of 100°C and has a thickness of 25-45 mm. The dimensions of the insert to be cut out of the worktop are in shown in Figure 2*. When there is an accessible space between the built-in hob and the cavity below, a dividing wall made of insulating material should be inserted (wood or similar material) (Figure 3*). If the Hob is fitted next to a cabinet on either side, the distance between the cutout and the cabinet must be at least 170 mm for 60 cm hobs and 250 mm for 75 cm hobs (see Figure 2*); while the distance between the hob and the rear wall must be at least 70 mm for frontal control hobs and 50 mm for lateral control hobs. The distance between the hob and any other unit or appliance above it (e.g. An extractor hood) must be no less than 700 mm (Figure 4*). Metal objects in the drawer may reach high temperatures due to air recirculation. It is therefore recommended to use an intermediate wood panel. Important – The diagram in Figure 1* shows how the sealant should be applied. The Hob unit is fitted by attaching the Fixing Clamps supplied, using the holes at the base of the unit. When a 75 cm hob is fitted over a built-in oven, the latter must be fan-cooled. When a 60 cm hob is fitted over a built-in oven, the latter must be fan-cooled. *See the “Technical information” section at the end of this manual.
SUITABLE LOCATION
This appliance must be installed in accordance with the regulations in force and only used in a well-ventilated space. Read the instructions before installing or using this appliance.
A gas-powered cooking appliance produces heat and humidity in the area in which it is installed. For this reason, you should ensure good ventilation either by keeping all-natural air passages open or by installing an extractor hood with an exhaust flue. Intensive and prolonged use of the appliance may require extra ventilation, such as the opening of a window or an increase in speed of the electric fan if you have one.
If a hood can not be installed, an electric fan should be fitted to an outside wall or window to ensure that there is adequate ventilation. The electric fan should be able to carry out a complete change of air in the kitchen 3-5 times every hour. The installer should follow the relevant national standards.
Connections
ELECTRICAL CONNECTION (FOR U.K. ONLY)
Warning – this appliance must be earthed
This appliance is designed for domestic use only. Connection to the main supply must be made by a competent electrician, ensuring that all current regulations concerning such installations are observed. The appliance must only be connected to a suitably rated spur point, a 3 pin 13 amp plug/socket is not suitable. A double pole switch must be provided and the circuit must have appropriate fuse protection. Further details of the power requirement of the individual product will be found in the users’ instructions and on the appliance rating plate. In the case of a built-in product you are advised, should you wish to use a longer cable than the one supplied, that a suitably rated heat resistant type must be used. The wiring must be connected to the mains supply as follows:
| Connect | To spur terminal |
| Green & yellow wire | Earth connection |
| Blue Wire Neutral | Connection |
| Brown Wire | Live connection |
Note: We do not advocate the use of earth leakage devices with electric cooking appliances installed to spur points because of the «nuisance tripping» which may occur. You are again reminded that the appliance must be correctly earthed, the manufacturer declines any responsibility for any event occurring as a result of incorrect electrical installation.
ELECTRICAL CONNECTION
Check the data on the rating plate, located on the outside of the unit, to ensure that the supply and input voltage is suitable. Before connection, check the earthing system. By Law, this appliance must be earthed. If this regulation is not complied with, the manufacturer will not be responsible for any damage caused to persons or property. If a plug is not already attached, fit a plug appropriate to the load indicated on the rating plate. The earth wire is colored yellow/green. The plug should always be accessible. Where the Hob is connected directly to the electricity supply, a circuit breaker must be fitted. If the power supply cord is damaged this is to be replaced by a qualified engineer so as to prevent any potential risk. The earth wire (green and yellow colored) must be at least 10 mm longer than the live and neutral wires. The section of the cable used must be of the correct size in relation to the absorbed power of the hob. Please check the rating plate for the power details and ensure that the power supply cord is of the type 3×0.75 mm² H05V2V2-F
If an appliance is not fitted with a supply cord and a plug, or with other means for disconnection from the supply mains having a contact separation in all poles that provide full disconnection under overvoltage category III conditions, the instructions shall state that means for disconnection must be incorporated in the fixed wiring in accordance with the wiring rules.
GAS CONNECTION
These instructions are for qualified personnel, installation of equipment must be in line with the relevant national standard. (For the U.K. only: by law the gas installation\commissioning must be carried out by a “Gas Safe” installer). All work must be carried out with the electricity supply disconnected. The rating plate on the hob shows the type of gas with which it is designed to be used. Connection to the mains gas supply or gas cylinder should be carried out after having checked that it is regulated for the type of gas with which it will be supplied. If it is not correctly regulated see the instructions in the following paragraphs to change the gas setting. For liquid-gas (cylinder gas) use pressure regulators which comply with the relevant national standards. Use only pipes,washers and sealing washers that comply with the relevant national standards.
For some models a conic link is furnished to outfit for the installation in the countries where this type of link is obligatory; in picture 8 it is pointed out how to recognize the different types of links (CY = cylindrical, CO = conic). In every case, the cylindrical part of the link has to be connected to the hob.
When connecting the hob to the gas supply via the use of offlexible hoses please ensure that the maximum distance covered by the hose does not exceed 2 meters. The flexible tube shall be fitted in such a way that it cannot come into contact with a moveable part of the housing unit (e.g. a drawer) and does not pass through any space where it may become crushed/ kinked or damaged in any way.
To prevent any potential damage to the hob please carry out the installation following this sequence (Figure 6*):
- As illustrated, assemble parts in sequence:
A: 1/2 Male Adaptor Cylindrical
B: 1/2 Seal
C: 1/2 Female Gas Adaptor Conical-Cylindrical or Cylindrical-Cylindrical - Tighten the joints with the spanner, remembering to twist the pipes into position.
- Attach fitting C to mains gas supply using rigid copper pipe or flexible steel pipe.
IMPORTANT: carry out a final check for leaks on the pipe connections using a soapy solution. NEVER USE A FLAME. Also, make sure that the flexible pipe cannot come into contact with a moving part of the cabinet (eg.a drawer) and that it is not situated where it could be damaged.
Warning: If gas can be smelt in the vicinity of this appliance turn off the gas supply to the appliance and call the engineer directly. Do not search for a leak with a naked flame.
ADAPTING THE HOB TO DIFFERENT TYPE OF GAS
To adapt the Hob for use with different types of gas, carry out the following instructions:
- Remove the grids and burners
- Insertonhexagonalspanner(7mm)into the burner support (Figure 7*)
- Unscrewtheinjectorandreplaceitwithone suitable for the gas to be used(see a type table)
*See the “Technical information” section at the end of this manual.
REGULATING THE MINIMUM FLAME
After lighting the burners, turn the control knob to the minimum setting and then remove the knob (this can easily be removed by applying gentle pressure).
Using a small «Terminal» type screwdriver the regulating screw can be adjusted as in Figure 9*. Turning the screw clockwise reduces the gas flow, whilst turning it anticlockwise increases the flow – Use this adjustment to obtain a flame of approximately 3 to 4 mm in length and then replace the control knob.
When the gas supply available is LPG – the screw to set the idle flame must be turned (clockwise) to the end stop.
When you have carried out the new gas regulation, replace the old gas rating plate on your appliance with one (supplied with hob) suitable for the type of gas for which it has been regulated.
Use of hob – user instructions
This appliance must only be used for the purpose for which it is intended, domestic cooking, and any other use will be considered
improper and could therefore be dangerous. The Manufacturer will not be responsible for any damage or loss resulting from improper use. Before using the burner, be sure, grid perimeters center the burner as below figure. If you are using Cast Iron Grids; underneath the grid, the position of it is stated. Be sure for the exact grid is used in the correct position.
USING THE GAS BURNER
Prior to switching on the gas hob ensure that the burner caps are correctly placed within their position. This hob is fitted with electronic ignition to ignite the burner.
To ignite the burners carry out the following:
- Push in and turn anticlockwise to the larger flame symbol
or in position 9 and keep pushed 5 seconds after ignition. The ignition of the system will continue to generate sparks as long as the control knob is being pressed Warning: If there is no electricity on the appliance to ignite the burner a match or a lighter should be used carrying out the following: - Place a lighted match or lighter close to the burner
- Push in and turn the knob anticlockwise to the larger flame symbol
or in position 9 and keep pushed 5 seconds after ignition Warning: In any case, if after 5 seconds the burner has not lit, stop operating the device and wait at least 1 min before attempting a further ignition of the burner.
KNOBS CONTROL
Each knob controls each burner as shown in the serigraphy. The knobs have 9 steps from highest flame to lowest flame. Never try to switch from ° to 1

| Indicators | |
| Burner controlled by control knob | |
| Switched-off burner | |
| Highest power setting and electric ignition | |
| Lowest power setting | |
GENERAL ADVICE
For best results, use cooking vessels with a flat surface. The size of the surface should match the gas burner side as follows. Table A:
| Burner type AUX Auxiliary | 0 pan/ pot (cm) 10-18 | Power (kW) 1,00 | G20/20 mbar (methane) 951/h | G 30/28-30 mbar (LPG) |
| 73 g/h | ||||
| SR Semi Rapid | 12-22 | 1,75 | 1671/h | 127 g/h |
| R Rapid | 16-26 | 2,70 | 2571/h | 196 g/h |
| DC 4 kW MONO | 16-26 | 4,00 | 3811/h | 291 g/h |
| DC 4,2 kW MONO | 16-26 | 4,20 NG 4 LPG | 4001/h | 291 g/h |
| DC5 kW MONO | 16-26 | 5 NG 4.6 LPG | 4761/h | 334 g/h |
For smaller containers, the gas burner should be regulated so that the flame does not over-lap the base of the pan. Vessels with a concave or convex base should not be used.
WARNING: If a flame is accidentally extinguished, turn the knob to the off position and do not attempt to re-ignite it for at least 1 minute.If over the years the gas taps become stiff to turn it is necessary to lubricate them. Such operation must be carried out only by qualified Service Engineers.
Maintenance and cleaning
- Before cleaning the hob, ensure the appliance has cooled down.
- Remove the plug from the socket or (if connected directly) switch off the electricity supply.
- leaning and user maintenance shall not be made by children without supervision
- Never use abrasives, corrosive detergents, bleaching agents or acids. Avoid any acid or alkaline substances (lemon, juice, vinegar, etc.) on the enameled, varnished or stainless steel sections.
- When cleaning the enameled, varnished, or chrome sections, use warm soapy water or a non-caustic detergent. For stainless steel use an appropriate cleaning solution.
- The burners can be cleaned with soapy water. To restore their original shine, use a household stainless steel cleaner. After cleaning, dry the burners and replace them.
- It is important the Burners are replaced correctly.
Chromed grids and burners
Chromed grids and burners have a tendency to discolor with use. This does not jeopardize the functionality of the hob
Our After Sales Service Centre can provide spare parts if required.
After care
Before calling out a Service Engineer please check the following:
- That the plug is correctly inserted and fused
- That the gas supply is not faulty
If the fault cannot be detected: - Switch off the appliance and call the After Service Centre. DO NOT TAMPER WITH THE APPLIANCE.
The manufacturer will not be responsible for any inaccuracy resulting from printing or transcript errors contained in this brochure. We reserve the right to carry out modifications to products as required, including the interests of consumption
without prejudice to characteristics relating to safety or function.
Protection of the environment
By placing
the mark on the appliance, we
are confirming compliance to all relevant European safety, health, and environmental
requirements which are applicable in legislation for this product.
The appliance complies with European Directive 2009/142/EC (GAD) and starting from 21/04/2018 with Gas Appliances
Regulation 2016/426 (GAR). Waste management and environmental protection This appliance is labeled in accordance with European![]()
Directive 2012/19/EU regarding electric and electronic appliances (WEEE). The WEEE contains both polluting substances (that can have a negative effect on the environment) and base elements (that can be reused).
It is important that the WEEE undergo specific treatments to correctly remove and dispose of the pollutants and recover all the materials. Individuals can play an important role in ensuring that the WEEE do not become an environmental problem; it is essential to follow a few basic rules:
- The WEEE should not be treated as domestic waste;
- The WEEE should be taken to dedicated collection areas managed by the town council or a registered company.
ln many countries, domestic collections may be available for large WEEEs. When you buy a new appliance, the old one can be returned to the vendor who must accept it free of charge as a one-off, as long as the appliance is of an equivalent type and has the same functions as the purchased appliance.
SAVING AND RESPECTING THE ENVIRONMENT
Where possible use a lid to cover the pan. Regulate the flame to not overlap the diameter of the pan.
Technical information





TECHNICAL INFORMATION 1
Table 1
| Burner Plate | 4 Gas – L1 – Big Front | 4 Gas – L2 – Big Rear | 4 Gas – L3 – Diamond | 5 Gas – L4 – Central | 5 Gas – L5 – 4+1 |
| Burner | AUX/SR/R/DC | AUX/SR/R/DC | AUX/SR/R/DC | AUX/SR/2R/DC | AUX/2SR/R/DC |
| Type | UH60MF | UH60MF | UH60MF | UH75MF | UH75MF |
| FFD | YES | YES | YES | YES | YES |
| Aux 1kW | 1 | 1 | 1 | 1 | 1 |
| SR 1,75 kW | 1 | 1 | 1 | 1 | 2 |
| R 2,7 kW | 1 | 1 | 1 | 2 | 1 |
| DC 4 kW Mono | 1 | – | – | ||
| DC 4.2 kW Mono | 1 | – | – | – | – |
| DC 5 kW Mono | – | 1 | 1 | 1 | |
| Nominal Heat Input | NG 9,65kW LPG 9,45kW | 9.45 kW | NG 10,45kW LPG 10,05kW | NG 13,15kW LPG 12,75kW | NG 12,2kW LPG 11,8kW |
| G20 20 mbar | 919 l/h | 900 l/h | 995 l/h | 1252 l/h | 1162 l/h |
| G30 28-30 mbar | 687 g/h | 687 g/h | 731 g/h | 927 g/h | 858 g/h |
| Installation Class | 3 | 3 | 3 | 3 | 3 |
| Voltage V/Frequency Hz | 220-240V 50/60Hz | 220-240V 50/60Hz | 220-240V 50/60Hz | 220-240 V/50-60 Hz | 220-240V 50/60Hz |
| Electrical Input Power | 1 | 1 | 1 | 1 | 1 |
| Electric Ignition | YES | YES | YES | YES | YES |
| Product Dimension | 595×510 | 595×510 | 595×510 | 745×510 | 745×510 |
This appliance has been designed for non-professional, i.e. domestic, use.

HOBS GAS TYPE
| Gas Type | G20 | G20 | G25.1 | G25.3 | G30/G31 | G30/G31 | G30/G31 | ||
| Gas Pressure | 20 mbar | 25 mbar | 25 mbar | 25 mbar | 28-30 mbar | 37 mbar | 50 mbar | ||
| Burners | Max (kW) | Min (kW) | Injector NG | Injector NG | Injector NG | Injector NG | Injector LPG | Injector LPG | Injector LPG |
| Max-Min | Max-Min | Max-Min | Max-Min | Max-Min | Max-Min | Max-Min | |||
| AUX | 1 | 0.3 | 72X (1kW-0.3kW) | 70X (1kW-0.3kW) | 74F1 (1kW-0.3kW) | 72F1 (1kW-0.3kW) | 50 (73g/h-22g/h) | 46 (73g/h-25g/h) | 46H2 (73g/h-29g/h) |
| SR | 1.75 | 0.5 | 97Z (1.75kW-0.5kW) | 91Z (1.75kW-0.5kW) | 98Y (1.75kW-0.5kW) | 102F3 (1.75kW-0.5kW) | 65 (127g/h-36g/h) | 61 (127g/h-40g/h) | 58M (127g/h-44g/h) |
| R | 2.7 | 0.8 | 109Y (2.7kW-0.8kW) | 110F3 (2.7kW-0.8kW) | 120F2 (2.7kW-0.8kW) | 115F2 (2.7kW-0.8kW) | 80 (196g/h-58g/h) | 78 (196g/h-62g/h) | 73S (196g/h-69g/h) |
| DC 4 kW MONO | 4 | 1,8 | 151H3 (4kW-1.8kW) | 145H3 (4kW-1.8kW) | 150F3 (4kW-1.8kW) | 146F3 (4kW-1.8kW) | 100 (286g/h-131g/h) | 94 (286g/h-138g/h) | 78 F4 (286g/h-145g/h) |
| DC 4,2 kW MONO | NG 4.2 – LPG 4 | 2.4 | 153H3 (4,2kW-2.3kW) | 148H3 (4,2kW-2.3kW) | 154F3 (4,2kW-2.3kW) | 148F3 (4,2kW-2.3kW) | 100 (286g/h-167g/h) | 94 (286g/h-175g/h) | 78 F4 (286g/h-189g/h) |
| DC 5 kW MONO | NG 5 – LPG 4.6 | 2.4 | 166S4 (5kW-2.3kW) | 160H3 (5kW-2.3kW) | 168F3 (5kW-2.3kW) | 162F3 (5kW-2.3kW) | 107 (334g/h-167g/h) | 100 (334g/h-175g/h) | 95 type 6 (334g/h-189g/h) |
TECHNICAL INFORMATION 2
TABLE FRONTAL UH60MF / UH75MF
| Gas Categories | II2E+3+ | II2H3+ | II2H3B/P |
| G20/G25 20/25mbar 2E+ | G20 20mbar 2H | G20 20mbar 2H | |
| G30/G31 28-30/37mbar 3+ | G30/G31 28-30/37mbar 3+ | G30/G31 30/30mbar 3B/P | |
| Countries | BE, FR | CY,CZ,GB,GR,IE,IT,PT,SI,ES,TR,CH | BG,HR,DK,EE,FI,LV,LT,NO,RO,SK,SE,CZ,SI,TR |
| Gas Categories | II2H3B/P | II2EK3B/P | II2HS3B/P | II2E3B/P | II2E3B/P |
| G20 20mbar 2H | G20 20mbar 2E | G20 20mbar 2H | G20 20mbar 2E | G20 20mbar 2E | |
| G30/G31 50/50mbar 3B/P | G25.3 25mbar 2K | G25.1 25mbar 2S | G30/G31 37/37mbar 3B/P | G30/G31 50/50mbar 3B/P | |
| G30/G31 30/30mbar 3B/P | G30/G31 30/30mbar 3B/P | ||||
| Countries | AT, CH | NL | HU | PL | DE |
Efficiency Declaration 2016/426
| UH60MF – BIG REAR (L1) | |||
| SINGLE BURNER EFFICIENCY | |||
| AUX | SR | R | DC 4 kW |
| – | 60% | 55.1% | 54.3% |
| MEDIUM %56.4 | |||
| UH60MF – BIG FRONT (L2) | |||
| SINGLE BURNER EFFICIENCY | |||
| AUX | SR | R | DC 4.2 kW |
| – | 60% | 55.1% | 54.3% |
| MEDIUM %56.4 | |||
| UH60MF – DIAMOND (L3) | |||
| SINGLE BURNER EFFICIENCY | |||
| AUX | SR | R | DC 5 kW |
| – | 60% | 57.6% | 54.3% |
| MEDIUM %57.4 | |||
| UH75MF – Central (L4) | ||||
| SINGLE BURNER EFFICIENCY | ||||
| AUX | SR | R (Left) | R (Right) | DC 5 kW |
| – | 56% | 54% | 54% | 57.6% |
| MEDIUM %55.4 | ||||
| UH75MF – 4+1 (L5) | ||||
| SINGLE BURNER EFFICIENCY | ||||
| AUX | SR | SR | R | DC 5 kW |
| – | 56% | 56% | 54% | 57.6% |
| MEDIUM %55.4 | ||||
TECHNICAL INFORMATION 3
![]()
The manufacturer will not be responsible for any inaccuracy resulting from printing or transcript errors contained in this brochure. We reserve the right to carry out modifications to products as required, including the interests of consumers, without prejudice to the characteristics relating to safety or function.
42835102 • 09.2020 • Rev_A


















