A210V1 Industrial Dehumidifier
Instruction Manual


SAFETY INSTRUCTIONS
WARNING
- 208-240 volts may cause serious injury from electric shock. Disconnect electrical power before starting installation or servicing. Leave power disconnected until installation/service is completed.
- Sharp edges may cause serious injury from cuts. Use care when cutting plenum openings and handling duct work.
- Dropping may cause personal injury or equipment damage. Handle with care and follow installation instructions.
CAUTION
- Read all instructions before beginning installation.
- This appliance is not intended for use by persons (including children) with reduced physical, sensory or mental capabilities, or lack of experience and knowledge, unless they have been given supervision or instruction concerning use of the appliance by a person responsible for their safety. Children should be supervised to ensure that they do not play with the appliance.
- Do not use in pool applications. Pool chemicals can damage the dehumidifier.
- Do not use solvents or cleaners on or near the circuit board. Chemicals can damage circuit board components.
- Wait 24 hours before running the unit if it was not shipped or stored in the upright position
- If the supply cord is damaged, it must be replaced by the manufacturer, its service agent or similarly qualified persons in order to avoid a hazard.
READ AND SAVE THESE INSTRUCTIONS
SPECIFICATIONS
ENVIRONMENTAL
- Operating Temperature Range: 50°F –104°F
- Operating Dew Point Lower Limit: 40°F
MECHANICAL
- Weight: 118 lbs (without packaging)
- Drain Size: 3/4″ FNPT
- Capacity: 210 PPD @ 80°F, 60% RH
- Filter: MERV 11, 1775″ x 1375″ x 175″
- Airflow: 525 CFM (free flow)
ELECTRICAL
- Voltage: 208-240 VAC ~, 1ø, 60 HZ
- Operating Current: 86A @ 80°F, 60% RH
- Efficiency: 30 L/kW-hr (63 pints/kW-hr) @ 80°F, 60% RH
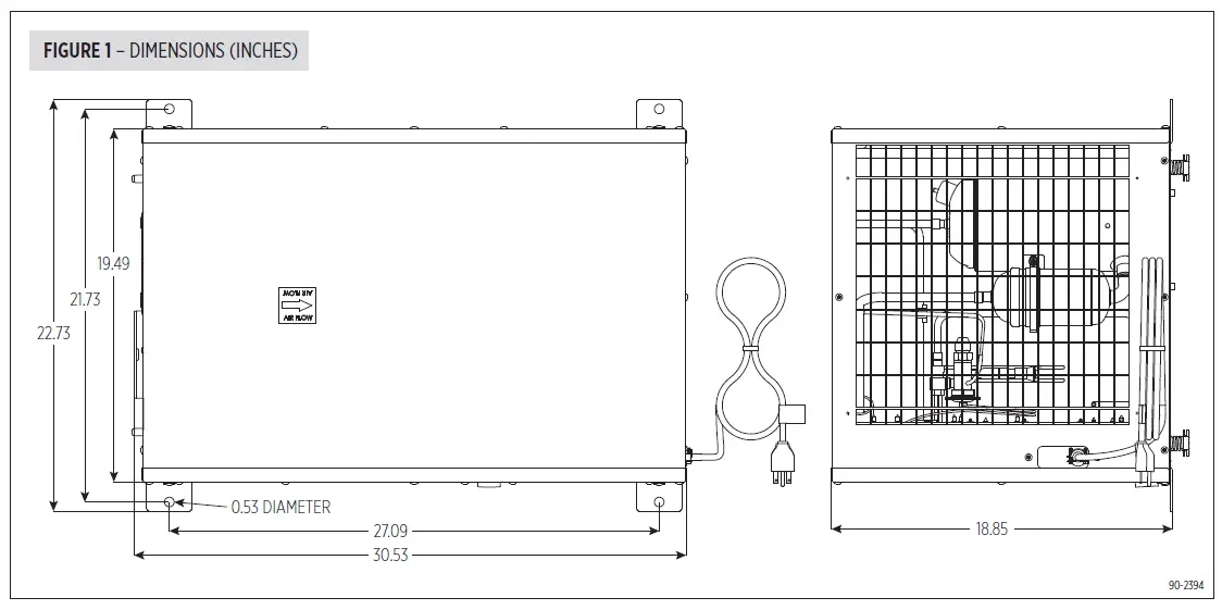
DIMENSIONS

UNPACKING THE DEHUMIDIFIER
Remove the unit from the carton. Cut the retaining band that secures the compressor to the shipping bracket and remove the band and the bracket. See FIGURE 2.

INCLUDED IN THE CARTON
- Dehumidifier
- Installation manual
- Hanging brackets
- Model A77 control
- 3/4″ MNPT x 3/4″ hose barb fitting
- 10 feet of 3/4″ clear PVC flexible drain hose
- Terminal screwdriver
- 30 feet of thermostat cable
- MERV 11 filter
LOCATION CONSIDERATIONS
This appliance is classified as to not be accessible to the general public. The dehumidifiers should be spaced evenly throughout the area to be dehumidified with the following recommendations:

- Avoid placement where the discharge of one dehumidifier is pointing toward the inlet of another.
- Avoid locating the dehumidifier inlet too near a supply register. Space is not usually available to totally avoid this, but minimizing the amount of cold air that is discharged to the dehumidifier inlet will improve moisture removal performance of the dehumidifier.
- Account for handling dehumidifier condensate by considering drain or sump pump locations.
- Leave appropriate room on the drain side of the dehumidifier for wiring and service.
- Allow 18″ minimum clearance near the inlet and outlet of the dehumidifier. This will allow easier removal/installation of the filter, as well as ensure no loss of airflow due to restrictions. Clearance of 18″ minimum is also recommend on the service panel side of the dehumidifier, should any maintenance be needed.
FLOOR MOUNTING
The drain hose must continuously slope downward toward the drain. Use solid supports as needed to elevate the unit enough to allow for continuous drain slope. Use the adjustable feet to level the unit right to left and front to back so that unit drains properly.
SUSPENDING THE DEHUMIDIFIER
INSTALL BRACKETS FOR SUSPENDING UNIT
The brackets are designed to accommodate up to 1/2″ threaded rod.
- Insert bracket into slots on the bottom of the base. See FIGURE 4.
- Rotate the bracket up toward the dehumidifier. With a 5/16″ hex socket (not provided), secure the bracket to the side of the dehumidifier using
#10 sheet metal screws (provided). See FIGURE 5. - Repeat for remaining three brackets.


HANGING THE DEHUMIDIFIER
Use the threaded rod to suspend the unit from appropriate ceiling structure. The unit weight is 118 lbs. Install vibration isolators if located in an area where noise could be a concern. Level unit right to left and front to back so that unit drains properly.
DUCTING
Use duct kit part number 5790 for installing ductwork to the dehumidifier. Reference the instructions provided with duct kit 5790 for installation details.

DRAIN INSTALLATION
The drain outlet on the dehumidifier can be hard piped using a 3/4″ PVC Slip x 3/4″ MNPT fitting and 3/4″ nominal drain tubing or the provided 3/4″ MNPT x 3/4″ hose barb fitting and 3/4″ PVC tubing can be used to drain the dehumidifier. Always maintain a constant downward slope from the dehumidifier to the drain and do not allow soft tubing to curl up which may result in air lock.
NOTE: PTFE thread seal tape is recommended for the threaded connection and hand tighten only. If hard pipe is used, PVC primer and cement is recommended for the slip fit connection. Test all joints to ensure they are leak free before completing the installation.
LEVELING
The feet can be adjusted to level the unit, and if required, to accommodate drain fittings and a secondary condensate pan Leveling is required to ensure proper drainage from the dehumidifier. See FIGURE 7.

CONDENSATE PAN, CONDENSATE PUMP AND FLOAT SWITCH
A condensate pan is recommended when suspending the dehumidifier over finished areas or product. Adhere to local codes regarding draining of the condensate pan. If a condensate pump is needed, install it in the condensate pan as well.
Install a condensate overflow safety switch (i.e. float switch) in the condensate pan, remove the factory installed jumper wire between the Float Switch terminals on the control and wire the float switch to the dehumidifier as shown in FIGURE 8. Overflow safety switches on condensate pumps can be wired to the Float Switch terminals in a similar fashion.

HARD WIRING – LINE VOLTAGE
CAUTION
If the supply cord is damaged, it must be replaced by the manufacturer, its service agent or similarly qualified persons in order to avoid a hazard.
The dehumidifier comes with a power cord that has a NEMA 6-15P plug that can simply be plugged into a corresponding NEMA 6-15R receptacle. The plug can be removed and replaced by hard-wired electrical service if desired.
United States Installation: Make all electrical connections in accordance with the current edition of the NEC ANSI/NFPA 70 and any local codes or ordinances that may apply.
Canada Installation: Make all electrical connections in accordance with the current edition of the Canadian Electrical Code CSA C22.1 and any local codes or ordinances that may apply.
| Model A210V1 | |
| Voltage | 208-240 VAC, single phase, 60 Hz |
| Recommended Breaker Size | 15A |
| Recommended Wire Gauge | 14 AWG, Copper |
| Maximum Fuse or Breaker Size (MOC) | 19A |
| Minimum Circuit Ampacity | (MCA) 11A |
- Disconnect electrical service at the main fuse or circuit breaker.
- Run electrical service to where the dehumidifier is to be installed following all required local and national codes and standards.
- Remove the side panel from the dehumidifier.
- Loosen the terminal screws securing the power cord wires to the terminal blocks and ground lug.
- Use channel lock pliers to remove the strain relief and power cord from the unit. Pinch the side of the strain relief to release it from the opening in the sheet metal and pull it away from the dehumidifier
- Route the service wires through the opening in the dehumidifier and secure the cable or conduit to th. opening in the dehumidifier using fittings/clamps intended for the conduit/cable used
- Insert the black service wire into the L1 terminal and the white service wire into the L2 terminal. Secure the wires into the terminals by tightening the terminal screws
- Insert the ground wire (bare or green) of the electrical service into the ground lug and secure it in place by tightening the ground lug screw
- Reattach the side panel to the dehumidifier
- Restore electrical service at the fuse or circuit breaker

START UP AND SEQUENCE OF OPERATION
USING THE DEHUMIDIFIER CONTROL
- Press the ON/OFF button to turn the dehumidifier control ON. The display will show the current setting, and the dehumidifier blower will turn on to start sampling the air.
The setting will be replaced by the measured humidity and “AIR SAMPLING” will show on the display. - Use the UP or DOWN button to adjust the humidity setting as desired.
- After three (3) minutes of sampling, the measured humidity will be compared to the setting:
a. If the humidity is above the setting, the dehumidifier compressor turns on and “AIR SAMPLING” will be replaced by “DEHUMIDIFYING”. The compressor remains on until the measured humidity falls 3% RH below the setting.
b. If the measured humidity is below the setting, the blowers turn off and the display returns to showing the RH setting. - The dehumidifier will sample again after the number of minutes selected during the Air Sampling portion of the SYSTEM SET UP (see page 9), or any time the humidity setting is lowered.
USING THE MODEL A77 CONTROL
- Press the ON/OFF button to turn the dehumidifier control ON. “REMOTE” will show on the display to indicate that an external control is wired to the dehumidifier.
- At the Model A77, press the ON button; the Model A77 will display the measured RH.
- Use the UP or DOWN button on the Model A77 to adjust the humidity setting as desired.
- If the RH measured by the Model A77 rises above the setting, the dehumidifier will turn on. “DEHUMIDIFYING” will appear on the dehumidifier control display to show that the Model A77 is calling for dehumidification. The dehumidifier will turn off when the RH measured by the Model A77 drops 3% RH below the setting.
SYSTEM SET-UP & CHECKOUT
Skip set up and proceed to INSTALLER TEST MODE on page 9 unless:
- A Model A77 or other external control is to be installed
- changing the air sampling rate
1. Check all wiring.
2. Make sure the wire access cover has been snapped back onto the on-board control.
3. Plug unit in and turn power switch to ON.
4. The on-board control screen should display OFF.

NOTE: If the display backlight is not on, the first button press (any button) will only turn on the backlight. Press the button a second time to achieve function.
5. Hold the MODE button on the on-board control for 3 seconds to enter the Installer Set-up Menu.
6. Navigate through the following screens to set up the dehumidifier for the installed application.
Use the UP or DOWN arrows to select items and use MODE to switch to the next set-up option. To exit installer set-up, all options must be scrolled through using the MODE button.
7. After the installer set up options have been completed, DONE will blink for 3 seconds and the control will return to the OFF screen.

AIR SAMPLING

Use the UP or DOWN button to adjust how frequently the dehumidifier samples the air to determine whether or not to dehumidify. Fewer minutes means the dehumidifier will sample more frequently to minimize humidity swings, but increases cost to operate due to more frequent fan operation. Press MODE when done to move to the next screen.
RH OFFSET
An offset can be applied to the on-board humidity reading to avoid discrepancies with other humidity measuring devices in the home. Use the UP/DOWN arrows to select an offset from -5% to 5%. Press MODE to exit the installer set-up screens.
INSTALLER TEST MODE
If everything is properly wired, the dehumidifier and all of the wired components will turn on and off during Installer Test Mode to demonstrate that all are properly operating. Installer Test Mode lasts for four (4) minutes. If the ON/OFF button is pressed during test mode, the dehumidifier will exit Installer Test Mode and return to the OFF screen.
DEHUMIDIFICATION ONLY
If the dehumidifier is not already OFF, press the ON/OFF button to turn it off.

Press and hold the ON/OFF button and MODE buttons for 3 seconds The measured humidity, AIR SAMPLING and TEST will show on the display.

After three (3) minutes the dehumidifier compressor will turn on and DEHUMIDIFYING will replace AIR SAMPLING on the control screen.

After one minute of compressor operation, all outputs will turn off and DONE will blink for 3 seconds and then return to the OFF screen.

WIRING AND SET-UP
MODEL A77 CONTROL
The Model A77 will measure the relative humidity and turn the dehumidifier on and off to control the humidity level to the desired setting. The humidity setting can be adjusted from the control, while the display allows easy access and monitoring of the humidity level in the space. It is recommended that the Model A77 be mounted at/near canopy height. Shield the Model A77 from direct exposure to HPS or LPS lighting.
NOTE: Use 18-22 AWG wire for control wiring.
Humidity can be controlled using the internal dehumidifier control, a Model A77 control, or a different external control like a thermostat.
Instaing an external control eliminates the need to run the dehumidifier blower for sampling, as the control is constantly measuring the humidity close to the canopy. When the humidity level rises above the setting, the dehumidifier is turned on.
TO INSTALL AND USE THE MODEL A77 CONTROL, COMPLETE ALL STEPS:
- Unplug the dehumidifier or turn off power to the circuit at the breaker or fuse.
- Run thermostat cable (use 18-22 AWG wire) from the Model A77 to the control of the dehumidifier.
- Trim about 1/4″ of insulation from the end of the wires on each end. Insert the wire into the terminals as shown in FIGURE 10.
- Restore dehumidifier power.

TO SET THE DEHUMIDIFIER TO USE THE MODEL A77 CONTROL, COMPLETE ALL STEPS:
- With power to the dehumidifier, use the ON/OFF button to set the dehumidifier to the OFF position.
NOTE: If the display backlight is not on, the first button press (any button) will only turn the backlight on. Press the button a second time to achieve the desired function. - Hold the MODE button on the on-board control for 3 seconds to enter the Installer Set-up Menu.
- The display should now read REMOTE on the left and DISABLED on the right. Use the UP or DOWN arrow buttons to set this to ENABLED.

4. Once the display reads REMOTE ENABLED, press the MODE button to cycle through the other settings until the display blinks DONE for 3 seconds.
5. Use the ON/OFF button to turn the dehumidifier ON. The display on your unit should read REMOTE.
6. Locate the Model A77 that you just set up. On the Model A77, press the ON button and use the arrow buttons to set your preferred%RH setpoint. When setting up in REMOTE mode for the first time, your dehumidifier will wait 3 minutes before starting to dehumidify, regardless of ambient conditions.
ALTERNATIVE EXTERNAL CONTROL
Alternatively, use any other humidity control system as long as it has a dry contact, normally open output dedicated to controlling the dehumidifier. Reference the installation literature provided with the alternative control for wiring, set-up, and operating details.
TO INSTALL AND USE AN ALTERNATIVE EXTERNAL CONTROL, COMPLETE ALL STEPS:
- Unplug the dehumidifier or turn off power to the circuit at the breaker or fuse.
- Run thermostat cable (use 18-22 AWG wire) from the alternative external control to the control of the dehumidifier.
- Trim about 1/4″ of insulation from the end of the wires on each end. Insert the wire into the terminals as shown in FIGURE 11.
- Restore dehumidifier power.

TO SET THE DEHUMIDIFIER TO USE THE ALTERNATIVE CONTROL, COMPLETE ALL STEPS:
- With power to the dehumidifier, use the ON/OFF button to set the dehumidifier to the OFF position.
NOTE: If the display backlight is not on, the first button press (any button) will only turn the backlight on. Press the button a second time to achieve the desired function. - Hold the MODE button on the on-board control for 3 seconds to enter the Installer Set-up Menu.
- Press MODE again and the display should change to EXTERNAL in the center, and DISABLED on the right. Use the UP or DOWN arrow buttons to set this to ENABLED.

4. Once the display reads EXTERNAL ENABLED, press the MODE button to cycle through the other settings until the display blinks DONE for 3 seconds.
5. Use the ON/OFF button to turn the dehumidifier ON. The display on your unit should read EXTERNAL. Even if there is a demand for dehumidification according to your external control, the dehumidifier will wait 3 minutes before turning on for the first time only.
DAISY CHAIN WIRING
Anden dehumidifiers can be wired in a daisy chain application, allowing one Model A77 or alternate dry contact dehumidist at to control any number of dehumidifiers wired together. Reference the dehumidifier Installation and Operation Manual for detailed set-up and operation.
MODEL A77 AS DRIVING CONTROL
When a Model A77 is used to control the first dehumidifier, Unit #1 must be set to ENABLE REMOTE in the set-up menu. All downstream units must be set up to ENABLE EXTERNAL in each set-up menu. See page 9 for set up details, and wire as shown in FIGURE 12.
SEQUENCE OF OPERATION
Each unit in the daisy chain responds to the first unit being controlled by the A77. When the humidity level rises above the humidity setting, all units will dehumidify until the humidity measured by the A77 falls below the setting.
IMPORTANT: If the A77 or first dehumidifier experiences a fault or loses power, all downstream dehumidifiers will also stop function. If any dehumidifier in the daisy chain other than Unit #1 experiences a fault, that unit will stop operation as determined by the fault but all other units will continue operating. If any dehumidifier loses power, all downstream units will stop function.

ALTERNATE EXTERNAL DRY CONTACT CONTROL AS DRIVING CONTROL
When a dry contact control is used to control the first dehumidifier, Unit #1 must be set to ENABLE EXTERNAL in the set-up menu. All downstream units must be set up to ENABLE EXTERNAL in each set-up menu. See page 9 for set up details and wire as shown in FIGURE 13.
SEQUENCE OF OPERATION
Each unit in the daisy chain responds to the first unit being controlled by the external control. When the humidity level rises above the humidity setting, all units will dehumidify until the humidity measured by the external control falls below the setting.
IMPORTANT: If the external control experiences a fault, all downstream dehumidifiers will also stop function. If any dehumidifier experiences a fault, that unit will stop operation as determined by the fault but all other units will continue operating. If any unit loses power, all downstream units will stop function.

CODES (LOCATED ON BACK OF WIRE ACCESS COVER)
See the Installation Instructions for troubleshooting error codes. For additional assistance, Technical Support is available Monday through Friday, 7:00 a.m. to 5:00 p.m. CST, at (800) 972-3710.
Contact Technical Support before replacing the unit or components and for additional troubleshooting.
| ERROR CODE | FAILURE MODE |
| E1 | Internal %RH/Temperature Sensor Failure |
| E3 | Model A77 Remote Control Communication Loss |
| E4 | Insufficient Capacity |
| E5 | High Temperature Thermistor Failure |
| E6 | Low Temperature Thermistor Failure |
| E7 | Float Switch Open |
| E8 | Inlet Air Temperature Out of Range |
TROUBLESHOOTING
Technical Support is available Monday through Friday, 7:00 a.m. to 5:00 p.m. CST, at (800) 972-3710. Use the guides on the following pages to identify and correct system faults. Contact Technical Support before replacing the unit or any components and for additional troubleshooting.
DIAGNOSTIC CODES
When an error occurs, the Diagnostic Code along with SERVICE REQUIRED will be displayed on the control screen. If a 71000087 Alert Light is used, the light will turn on when an error occurs.



LIMITED WARRANTY
Your Research Products Corporation Anden™ Dehumidifier is expressly warranted for five (5) years from date of installation to be free from defects in materials or workmanship.
Research Products Corporation’s exclusive obligation under this warranty shall be to supply, without charge, a replacement for any component which is found to be defective within such five (5) year period and which is returned not later than thirty (30) days after said five (5) year period by you to either your original supplier or to Research Products Corporation, Madison, Wisconsin 53701, together with the model number and installation date of the dehumidifier.
THIS WARRANTY SHALL NOT OBLIGATE RESEARCH PRODUCTS CORPORATION FOR ANY LABOR COSTS AND SHALL NOT APPLY TO DEFECTS IN WORKMANSHIP OR MATERIALS FURNISHED BY YOUR INSTALLER AS CONTRASTED TO DEFECTS IN THE DEHUMIDIFIER ITSELF.
IMPLIED WARRANTIES OF MERCHANTABILITY OR FITNESS FOR A PARTICULAR PURPOSE SHALL BE LIMITED IN DURATION TO THE AFORESAID FIVE YEAR PERIOD RESEARCH PRODUCTS CORPORATION’S LIABILITY FOR INCIDENTAL OR CONSEQUENTIAL DAMAGES, OTHER THAN DAMAGES FOR PERSONAL INJURIES, RESULTING FROM ANY BREACH OF THE AFORESAID IMPLIED WARRANTIES OR THE ABOVE LIMITED WARRANTY IS EXPRESSLY EXCLUDED THIS LIMITED WARRANTY IS VOID IF DEFECT(S) RESULT FROM FAILURE TO HAVE THIS UNIT INSTALLED BY A QUALIFIED HEATING AND AIR CONDITIONING CONTRACTOR IF THE LIMITED WARRANTY IS VOID DUE TO FAILURE TO USE A QUALIFIED CONTRACTOR, ALL DISCLAIMERS OF IMPLIED WARRANTIES SHALL BE EFFECTIVE UPON
INSTALLATION
Some states do not allow limitations on how long an implied warranty lasts or the exclusion or limitation of incidental or consequential damages so the above exclusion or limitations may not apply to you.
This warranty gives you specific legal rights and you may also have other rights which vary from state to state.
WARRANTY REGISTRATION
Visit us online at anden.com to register your Anden product. If you do not have online access, please mail a postcard with your name, address, phone number, email address, product purchased, model number, date of purchase, and dealer name and address to: Research Products Corporation, P.O. Box 1467, Madison, WI 53701.
Your warranty registration information will not be sold or shared outside of this company.
SERVICE PARTS

anden.com
P.O. Box 1467
Madison, WI 53701-1467a 800.972.3710 F: 608.257.4357 Printed in USA. ©2021 Anden.
16 English



















