ZLINE 24 Microwave Drawer

ZLINE Kitchen and Bath Microwave Drawer
The ZLINE Kitchen and Bath Microwave Drawer is a luxury product designed to bring professional features and high-end luxury designs into everyone’s homes. With an endless selection of features and finishes, this microwave drawer is dedicated to providing you an elevated experience in the heart of your home.
The microwave drawer comes in two sizes: 24 inches and 30 inches. It has a rated voltage of 120VAC, 60HZ, 13A, a rated input power of 1500W, and a rated output power of 1000W. The oven capacity is 1.2 Cu. Ft. and the external dimensions vary depending on the size of the microwave drawer.
The maximum weight of food placed in the microwave should not exceed 11 lbs, and the height should not exceed 5 3/4 inches.
Product Usage Instructions
Before Installation
Before installing the ZLINE Kitchen and Bath Microwave Drawer, remove all materials from the carton and inside the oven. The microwave drawer comes with several accessories including a touch pad control box, right and left mounting plates, a handle, window, drawer glide, slide rail, and drawer front. Make sure to read the entire installation portion of the manual before installing the microwave drawer
SAFETY INSTRUCTIONS
- Before installation and operation, please read and follow these important instructions for the safety of your home and the people living in it.
- Installation and service must be performed by a qualified installer. The oven should not be adjusted or repaired by anyone except properly qualified service personnel.
- IMPORTANT: Save this installation manual for local electrical inspector’s use and for your own future reference.
- This device complies with part 18 of the FCC Rules.
- Do not attempt to operate this oven with the door open since open-door operation can result in harmful exposure to microwave energy. It is important not to destroy or tamper with the safety interlocks.
- Do not place any object between the oven front face and the door or allow soil or cleaner residue to accumulate on sealing surfaces.
- Do not operate the oven if it is damaged. It is particularly important that the oven door closes properly and that there is no damage to the:
- Door (bent or broken)
- Hinges and latches (broken or loosened)
- Door seals and sealing surfaces (dirty or eroding)
- When using electrical appliances, basic safety precautions should be followed.
- To reduce the risk of burns, electric shock, fire, personal injury, or exposure to excessive microwave energy, read all instructions before using the appliance.
- This appliance must be grounded or connected to a properly grounded outlet.
- Install this appliance only in accordance with the provided installation instructions.
- Some products such as whole eggs and sealed containers (i.e. closed glass jars) should not be heated in this oven.
- Use this appliance only for its intended use as described in the manual. Do not use corrosive chemicals or
vapors in this appliance. This type of oven is specifically designed to heat, cook, or defrost food. - As with any appliance, close supervision is necessary when used by children.
- Cleaning and user maintenance shall not be made by children without supervision. Keep the appliance and its cord out of reach of children.
- Do not operate this appliance if it has a damaged electrical cord or plug, if it is not working properly, or if the entire unit has been damaged.
- Do not cover or block any openings on the appliance.
- Do not immerse cord or plug in water.
- Keep cord away from heated surfaces.
- Do not let cord hang over edge of table or counter.
- Do not use paper products when appliance is operated in the convection or baking mode.
- Do not store this appliance outdoors. Do not use this product near water — for example, near a kitchen sink, in a wet basement, near a swimming pool, or similar locations.
- When cleaning surfaces of the door and oven that come together when closing the door, use only mild, nonabrasive soaps or kitchen-safe cleaners applied with a sponge or soft cloth. Do not clean with metal scouring pads. Pieces can burn off the pad and touch electrical parts, increasing risk of electric shock.
- To reduce the risk of fire inside the oven:
- Do not overcook food. Carefully oversee appliance when paper, plastic, or other combustible materials are placed inside the oven to facilitate cooking.
- Remove wire twist-ties from paper or plastic bags before placing bag in oven.
- If material inside of the oven ignites, keep oven door closed, turn oven off, and disconnect the power cord, or shut off power at the fuse or circuit breaker panel.
- Do not use the microwave for storage purposes. Do not leave paper products, cooking utensils, or food inside when not in use.
- Do not store any materials, other than manufacturer’s recommended accessories, in this oven when not in use.
- Liquids such as water, coffee, or tea may be heated beyond the boiling point without appearing to be boiling.
- Visible bubbling or boiling when the container is removed from the microwave oven is not always present.
- THIS COULD RESULT IN VERY HOT LIQUID SUDDENLY BOILING OVER WHEN THE CONTAINER IS DISTURBED.
- To reduce the risk of injury:
- Do not overheat liquid.
- Stir the liquid before and halfway through heating it.
- Do not use straight sided containers with narrow necks.
- After heating, allow the container to stand in the microwave oven for a short time before removing the container.
- Use extreme care when inserting a spoon or other utensils into the container.
- Oversized food or oversized metal utensils should not be inserted in a microwave oven as they may create a fire or risk of electric shock.
- Do not cover racks or any other part of the oven with metal foil. This will cause over-heating of the oven.
- Do not use the microwave if the oven is empty.
- Visible bubbling or boiling when the container is removed from the microwave oven is not always present. THIS COULD RESULT IN VERY HOT LIQUID SUDDENLY BOILING OVER WHEN THE CONTAINER IS DISTURBED.
- To reduce the risk of injury:
- Do not overheat liquid.
- Stir the liquid before and halfway through heating it.
- Do not use straight sided containers with narrow necks.
- After heating, allow the container to stand in the microwave oven for a short time before removing the container.
- Use extreme care when inserting a spoon or other utensils into the container.
- Oversized food or oversized metal utensils should not be inserted in a microwave oven as they may create a fire or risk of electric shock.
- Do not cover racks or any other part of the oven with metal foil. This will cause over-heating of the oven.
- Do not use the microwave if the oven is empty.
BEFORE INSTALLATION
Remove the microwave and all materials from the carton and inside the oven. Your appliance comes with the following accessories:
24” Microwaves
30” Microwaves
NOTE: Defrosting Rack should only be used in defrosting function and not used for cooking. Do not use without food.


The maximum weight of food placed in the microwave should not exceed 11 lbs and the height should not exceed 5 3/4”.
MODEL AND SERIAL NUMBER LOCATION
To locate the model and serial number, open the microwave drawer fully. The label can be found on the front of the oven, underneath the touch pad.
ELECTRICAL CONNECTION
- This appliance must be grounded. In the event of an electrical short circuit, grounding reduces the risk of electric shock by providing an escape wire for the electric current.
- This appliance is equipped with a cord having a grounding wire with a grounding plug. The plug must be plugged into an outlet that is properly installed and grounded.
- Improper grounding may result in electrical shock.
- Consult a qualified electrician or service person if the grounding instructions are not completely understood, or if doubt exists as to whether the appliance is properly grounded.
- Touching some of the internal components can cause serious personal injury or death. Do not disassemble this appliance. Do not plug into an outlet until appliance is properly installed and grounded.
- A short power-supply cord (48”) is provided to reduce the risks resulting from becoming entangled in or tripping over a longer cord.
- Longer cord sets or extension cords may be used if care is exercised in their use. We do not recommend using extension cords.
- If a long cord or extension cord is used:
- The marked electrical rating of the cord set or extension cord should be at least as great as the electrical rating of the appliance.
- Use only a 3-wire extension cord that has a 3-prong grounded plug and 3-slot receptacle that will accept the plug on the appliance.
- The longer cord should be arranged so that it will not drape over the countertop or tabletop where it can be pulled on by children or tripped over unintentionally.
CLEARANCES AND DIMENSIONS NOTICE
For safety considerations, do not install the unit in any combustible cabinetry that is not in accordance with the stated clearances.
UNPACKING YOUR MICROWAVE DRAWER
Remove all packing materials from inside the microwave. DO NOT REMOVE THE WAVEGUIDE COVER, located on the top of the microwave drawer. Remove the feature sticker if there is one. Check the unit for any damage, such as misaligned or bent drawer, damaged drawer seals and sealing surfaces, broken or loose drawer guides, and dents inside the unit or on the front side of the drawer. If there is any damage, do not operate the microwave drawer and contact your dealer or ZLINE.
IMPORTANT NOTES TO THE INSTALLER
Read the entire installation portion of the manual before installing the microwave drawer. Remove all packing materials before connecting the electrical supply. Observe all governing codes and ordinances. Be sure to leave these instructions with the consumer.
IMPORTANT NOTES TO THE CONSUMER
Keep this manual for the future reference. With use of any heat-generating microwave oven, there are certain safety precautions you should follow. These are listed in the operation portion of the manual. Read all and follow carefully. Be sure your microwave drawer is installed and grounded properly by a qualified installer or service technician.
IMPORTANT SAFETY INSTRUCTIONS
Fire or electrical shock resulting in property damage, personal injury or death may occur if the information in this manual is not followed exactly. To reduce the risk of tipping, the microwave drawer must be secured with a properly installed anti-tip block. This unit must be electrically grounded in accordance with local codes. Make sure any wall coverings and/or cabinets around the appliance can withstand the heat generated by the microwave drawer. Never leave the drawer open when the microwave is unattended. Stepping, leaning, or sitting on the drawer may result in serious injuries and may also cause damage to the microwave.
INSTALLATION
Observe all governing codes and ordinances when installing the microwave drawer. For safety considerations, do not install the unit in any combustible cabinetry that is not in accordance with the stated clearances. The installation process includes attaching the mounting plates, installing the touch pad control box, connecting the electrical supply, attaching the drawer front, and installing the defrosting rack.
Accessories Installation
To install the accessories, follow the instructions provided in the manual. The defrosting rack should only be used in the defrosting function and not for cooking. Do not use the defrosting rack without food.
INSTALLATION NOTICES
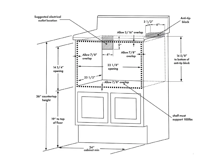
Dimensions that are shown in the figures must be used. Given dimensions provide minimum clearance. Locate electrical outlet in the shaded area in the upper left-hand corner of the cutout (see page 10).
- Contact surface must be solid and level. Pay special attention to the floor on which the unit will sit. The cabinet floor of the opening should be constructed of plywood strong enough to support the weight of the oven (about 100 pounds).
- Check location where the unit will be installed for proper electrical supply
- Your oven can be built into a cabinet or wall by itself or under a gas or electric wall oven.
- Be sure that the clearance between the wall oven and the microwave drawer is a minimum of 2”.
- The unit can be installed using an electrical outlet in an adjacent cabinet within the area where the provided electrical cord can reach.
- The power cord access hole inside the cabinet should have a minimum diameter of 1 1/2” and be free of all sharp edges. ALWAYS allow for sufficient power cord length to the electrical outlet in order to prevent tension (see page 10).

24” Microwaves
30” Microwaves

ELECTRICAL OUTLET AND ANTI-TIP BLOCK
To reduce the risk of tipping the drawer, the anti-tip block must be properly located 14 5/8” above the cabinet floor on which the microwave drawer will sit. A wooden 6” anti-tip block must be provided by the installer. The anti-tip block prevents serious injury that might result from spilled hot liquids. If the microwave drawer is ever moved to a different location, the anti-tip block must also be moved and installed. When secured to the wall, make sure that the screws completely penetrate the wall and are secured in wood or metal so that the block is totally stable. When fastening, be sure that the screws do not penetrate electrical wiring or plumbing.
The electrical requirements are 120VAC, 60HZ, 13A. It is recommended that a separate circuit serving only this appliance be provided. The drawer is equipped with a 3-prong grounding plug and must be plugged into a wall receptacle that is properly installed and grounded. Should you only have a 2-prong outlet, have a qualified electrician install a correct wall receptacle. NOTE: The microwave drawer can also be installed using an electrical outlet in an adjacent cabinet within the area where the provided electrical cord can reach. ALWAYS check if the electrical cord can reach.
GROUNDING INSTRUCTIONS
The microwave drawer must be plugged into a wall receptacle that is properly installed and grounded in accordance with the National Electrical Code along with local codes and ordinances. In the event of an electrical short circuit, grounding reduces risk of electrical shock by providing an escape wire for the electrical current.
WARNING: Improper use of the grounding plug can result in the risk of electric shock. We do not recommend using an extension cord. If the power supply cord is too short, have a qualified electrician or service person install an outlet near the appliance.
DRAWER INSTALLATION
- Place the drawer adjacent to the wall or cabinet opening. Plug the power supply cord into the electrical outlet.
- Carefully guide the drawer into the prepared opening. Avoid pinching the cord between the oven and wall.
- Slide the drawer all the way until the mounting plates are flush with the face of the cabinet.
- Open the drawer. Using the four holes on the mounting plates as a template, pre-drill the cabinet using a 1/16” bit.
- Secure the drawer with the four screws supplied.
HANDLE INSTALLATION
Note: The Allen/hex key needed to remove the handle is only included with Autograph Edition handles (Champagne Bronze, Gold, and Matte Black).
Autograph Edition handles
- Locate the holes on the underside of each handle base.
- Using a 7/64” Allen/hex key, turn counter-clockwise to loosen both the left and right set screws.
- Carefully remove the handle. If installing an Autograph Edition handle, carefully place the new handle on the mounting studs. Then, using the Allen/hex key, tighten the left and right set screws in a clockwise motion until the handle is firmly in place.
Scan to follow along with a video
TRIM KIT INSTALLATION
- The trim kit is available for purchase as a separate accessory for the 24” microwave drawer in stainless only. The trim kit is only available for the 24” unit.
- The trim kit is not available in black stainless.

TOOLS NEEDED:
- Phillips-head screwdriver
- Marker
- Drill
TOOLS INCLUDED
- Support beam
- Front bracket
- Rear bracket
- Buckle seat
- Buckle
- Trim kit
![]()
- 1 Screw
- 2 Screw
- 3 Screw
- Install the support beams using the holes in th ront bracket as a guide. Use the #1 screw.

- Remove the screws holding the microwave in place in order to install the front bracket and rear bracket.

- Use #2 screws to install the four buckles on the corresponding mounting holes around the trim kit.

- Line up th t with the buckle seats.

- Push the microwave into the slot in the rear bracket by extending the support beam (Figure 1).
- Use screw #3 to fix the front bracket and support beam (Figure 2).

- Insert the trim kit into the corresponding buckle seat.

OPERATION
Before using the microwave drawer, read all instructions to prevent injury or exposure to excessive microwave energy. The microwave drawer has a touch pad control box that allows you to select the desired cooking time and power level. The maximum weight of food placed in the microwave should not exceed 11 lbs, and the height should not exceed 5 3/4 inches.
RADIO INTERFERENCE
- Operation of the microwave oven may cause interference to your radio, TV, or similar equipment.
- When there is interference, it may be reduced or eliminated by taking the following measures:
- Clean the door and sealing surface of the oven.
- Reorient the receiving antenna of the radio or TV.
- Move the microwave oven away from the receiver.
- Plug the microwave oven into a different outlet so the appliance and receiver are on different branch circuits.
UTENSILS
- Tightly-closed utensils could explode. Closed containers should be opened and plastic pouches should be pierced before cooking.
- Carefully review the instructions on page 20 regarding what materials to use in the microwave.
- Please note there may be certain non-metallic utensils that are not safe to use for microwaving. If in doubt, you can test the utensil in question by following the procedure below:
- Fill a microwave-safe container with 1 cup of cold water, along with the utensil in question.
- Cook on maximum power for 1 minute.
- Carefully feel the utensil. If the empty utensil is warm, do not use it for microwave cooking.
- Do not exceed 1 minute cooking time.

WARNING: Do not use aluminum, metal or metal trimmed utensils, metal twist ties, paper bags, plastic foam, wood, or stainless steel mugs.
- Open
- Setup
- Auto Menu
- Defrost Weight
- Close
- Clock/Kitchen Timer
- Defrost Time
- Number Keys
- Power
- Start/+30sec.
- Time Cook
- Stop/Cancel
POWER ON
- When the microwave oven is plugged into an outlet, buzzer sounds once. Screen displays “WELCOME.” Then the oven turns into waiting state. The screen displays “00:00.”
- In waiting state, the screen will display the current time if the clock has been set. Otherwise, “00:00” will display.
- Press “OPEN” button to open the drawer, and screen displays “OPEN.” The screen will display “PLEASE CLOSE” when the drawer is fully opened.
- Press “CLOSE” button to close the drawer, and the screen displays “CLOSE.” The screen will display the current time or “00:00” when the drawer is fully closed. If there are errors opening or closing the drawer, buzzer will sound 5 times, and the screen will display “OPEN OR CLOSE.”
CLOCK SETTING
- Press “CLOCK/KITCHEN TIMER” button once. The first hour figure will flash and other “0” will light. A clock symbol will light up.
- Press the number buttons to enter the correct time. The input should be between 01:00-12:59.
- Press “CLOCK/KITCHEN TIMER” to finish the setting. “:” will flash.
- Note: In the process of clock setting, if the “STOP/CANCEL” button is pressed or if there is no operation within 1 minute, the oven will revert to former setting.
KITCHEN TIMER
- Press “CLOCK/KITCHEN TIMER” button twice. Screen will display 00:00. “FUNCTION” will light.
- Press the number buttons to enter the time. The maximum time is 99 minutes 99 seconds.
- Press “START/+30SEC.” to confirm the setting. The timer will count down.
- When the timer expires, buzzer will ring 5 times. The oven turns into waiting state. Screen will display the current time if the clock has been set. Otherwise, Screen will display “00:00.”
- When the timer is in operation, cooking programs cannot be operated. “STOP/CANCEL” can be pressed to cancel the timer.
MICROWAVE COOKING FUNCTION
- 11 power levels are available.
- Press “TIME COOK” button. Screen will display “00:00.” “FUNCTION” will light. Press number buttons to input the cooking time. The maximum cooking time is 99 minutes 99 seconds.
- Press “POWER” button to set the power. The default power level is “PL100.”
- Press number buttons to select different power levels.
- Press “START/+30SEC.” to start cooking. Buzzer sounds once. The cooking time begins to count down. When cooking finished, buzzer sounds 5 times and “FINISH” displays.

NOTE: In the process of setting, if the “STOP/CANCEL” button is pressed or if there is no operation within 1 minute, the oven will revert to former setting.
MICROWAVE COOKING FUNCTION
- In waiting state, instant cooking at 100% power level with 30 seconds cooking time can be started by pressing “START/+30SEC.” Each press on the same button will increase cooking time by 30 seconds.
- During microwave and Defrost Time mode, “START/+30SEC.” can be pressed to increase cooking or defrosting time. Each press will increase 30 seconds.
- Note: “START/+30SEC.” cannot be pressed to increase cooking time for Defrost Weight and Auto Menu cooking modes.
WEIGHT DEFROST FUNCTION
- Press “DEFROST WEIGHT” button. Screen displays “WEIGHT DEFROST” and “FUNCTION” will light.
- Press number buttons to input the weight to be defrosted.
- The input weight should be between 0.1-6.0 lbs.
- Press “START/+30SEC.” to start defrosting. Buzzer sounds once. The defrosting time begins to count down. When defrosting is finished, buzzer sounds 5 times and “FINISH” displays.
TIME DEFROST FUNCTION
- Press “DEFROST TIME” button. Screen displays “TIME DEFROST” and “FUNCTION” will light.
- Press number buttons to enter the defrosting time between 00:01-99:99.
- Press “START/+30SEC.” to start defrosting. Buzzer sounds once. The defrosting time begins to count down. When defrosting is finished, buzzer sounds 5 times and “FINISH” displays.
- NOTE: The defrosting power level is PL30.
AUTO MENU: BEVERAGE
- Press “BEVERAGE” button. Screen displays “1.” “AUTO MENU” and “
“ indicators will light. Continue to press “BEVERAGE” button, “1” or “2” will display in order. - Press “START/+30SEC.” to start cooking. Buzzer sounds once. The cooking time begins to count down. When cooking is finished, buzzer sounds 5 times and “FINISH” displays.
AUTO MENU: POPCORN
- Press “POPCORN” button. Screen displays “1.75.” “AUTO MENU” and “OZ” indicators will light.
- Continue to press “POPCORN” button, “1.75,” “3.0,” or “3.5” will display in order.
- Press “START/+30SEC.” to start cooking. Buzzer sounds once. “OZ” will go out. The cooking time begins to count down. When cooking is finished, buzzer sounds 5 times and “FINISH” displays.
AUTO MENU: MELT
- Press “MELT” button. Screen displays “BUTTER.” “AUTO MENU” indicator will light.
- Continue to press “MELT” button, “BUTTER,” “CHOCOLA,” “CHEESE,” or “MARSHMA” will display in order.
- Press “START/+30SEC.” to confirm the selection.
- Press “MELT” button to select the weight. “OZ” will light.
- Press “START/+30SEC.” to start cooking. Buzzer sounds once. “OZ” will go out. The cooking time begins to count down. When cooking is finished, buzzer sounds 5 times and “FINISH” displays.

AUTO MENU: SOFTEN
Press “SOFTEN” button. Screen displays “BUTTER.” “AUTO MENU” indicator will light.
- Continue to press “SOFTEN” button, “BUTTER,” “ICE-CRE,” or “CHEESE” will display in order.
- Press “START/+30SEC.” to confirm the selection.
- Press “SOFTEN” button to select the weight. “OZ” will light except butter menu.
- Press “START/+30SEC.” to start cooking. Buzzer sounds once. “OZ” will go out. The cooking time begins to count down. When cooking is finished, buzzer sounds 5 times and “FINISH” displays.

BUZZER ON/OFF (MUTE)
- Press “SETUP” button. Screen displays “BUZ OFF.”
- Press “START/+30SEC.” button. The oven will turn to waiting state. Buzzer is turned off. No beep will sound.
- Press “SETUP” button. Screen displays “BUZ ON.”
- Press “START/+30SEC.” button. The oven will turn to waiting state. Buzzer is turned on. Buzzer will sound normally.
PANEL LOCK
- Lock: In waiting state, press “STOP/CANCEL” for 3 seconds; the oven will enter into the panel lock state. Screen will display the current time if the clock has been set. Otherwise, “00:00” will display.
- Lock release: In locked state, press “STOP/CANCEL” for 3 seconds to release the lock.
INQUIRING FUNCTION
- In cooking state, press “CLOCK/KITCHEN TIMER ” button to check the clock. The current time will display for 3 seconds before changing back to cooking time.
- In cooking state, press “POWER” button to check the microwave power. The current microwave power will display for 3 seconds before changing back to cooking time.
OTHER SPECIFICATIONS
- In cooking state, “OPEN” cannot be pressed to open the drawer unless “STOP/CANCEL” button is pressed to pause the cooking. Press “CLOSE” button to close the drawer. Then “START/+30SEC.” button must be pressed to continue cooking.
- If the cooking program has been set and “START/+30SEC.” is not pressed in 1 minute, the current time will be displayed. The setting will be canceled.
- If the oven door is open, the lamp will light until the oven is powered off.

- Open
- Mute
- Auto Menu
- Defrost Weight
- Close
- Timer/Clock
- Defrost Time
- Number Keys
- Time Cook
- Start/+30sec.
- Power Level
- Stop/Cancel
POWER ON
- When the microwave oven is plugged into an outlet, buzzer sounds once. Then the oven turns into waiting state. The screen displays “00:00.”
- In waiting state, the screen will display the current time if the clock has been set. Otherwise, “00:00” will display.
CLOCK SETTING
- Press “TIMER/CLOCK” button twice. “12:00” will flash.
- Press the number buttons to enter the correct time. The input should be between 1:00-12:59.
- Press “START+30SEC.” or “TIMER/CLOCK” to finish the setting.
- Note: In the process of clock setting, if the “STOP/CANCEL” button is pressed or if there is no operation within 1 minute, the oven will revert to former setting.
KITCHEN TIMER
- Press “TIMER/CLOCK” button once. “00:00” will display.
- Press number keys to set the clock; it should be within 00:01-99:99.
- Press “START+30SEC.” to begin the timer.
- When the timer expires, buzzer will ring 4 times. The oven turns into waiting state. Screen will display the current time if the clock has been set. Otherwise, screen will display “00:00”.
MICROWAVE TIME COOK
- 10 power levels are available.
- Press “TIME COOK” button; screen will display “00:00.”
- Press number keys to set the cook time; it should be within 00:01-99:99.
COOK POWER
- Press “POWER LEVEL” once to confirm and then press “POWER LEVEL” repeatedly or press number key to set the power level.
- Press “START+30SEC.” to start cooking.
- If no power level is set, the default power level is “L10.”
ADD 30 SECONDS
- In waiting state, instant cooking at 100% power level with 30 seconds cooking time can be started by pressing “START/+30SEC.” Each press on the same button will increase cooking time by 30 seconds.
- During microwave and defrost time, “START/+30SEC.” can be pressed to increase time. Each press will increase 30 seconds.
DEFROST WEIGHT FUNCTION
- Press “DEFROST WEIGHT” button. Screen displays the defrost icon, and “0.0 lbs” will light.
- Press number buttons to input the weight to be defrosted. The input weight should be between 0.1-6.0 lbs.
- Press “START/+30SEC.” to start defrosting. Buzzer sounds once.
NOTE: The buzzer will sound twice to remind you of turning over the food during defrosting.
DEFROST TIME FUNCTION
- Press “DEFROST TIME” button. Screen displays defrost icon and “00:00” will light.
- Press number buttons to enter the defrosting time between 00:01-99:99.
- Press “START/+30SEC.” to start defrosting.
NOTE: The defrosting power level is L03. It cannot be changed. The buzzer will sound twice to remind you of turning over the food during defrosting.
AUTO MENU: POPCORN
- Press “POPCORN” button to start cooking directly, when the oven door is closed.
AUTO MENU: SENSOR REHEAT
- In waiting state, press “Sensor Reheat” once, and “Sr-1” will display.
- Press “Sensor Reheat” repeatedly or press “1-4” to choose the menu.
- Press “START+30SEC.” to start cooking.
AUTO MENU: SENSOR COOK
- In waiting state, press “Sensor Cook” once, and “Sc-1” will display.
- Press “Sensor Cook” repeatedly or press “1-7” to choose the menu.
- Press “START+30SEC.” to start cooking.
AUTO MENU: BEVERAGE
- In waiting state, press “Beverage” once,”1”,”01:30” will display.
- Press “Beverage” repeatedly or press “1”or “2” to choose the menu.
- Press “START+30SEC.” to start cooking.
AUTO MENU: MELT
- In waiting state, press “MELT” once, and “1buTT” will display.
- Press “MELT” repeatedly to choose the menu.
- Press “1”or “2” to choose the correspond weight.
- Press “START+30SEC.” to start cooking.
AUTO MENU: SOFTEN
- In waiting state, press “SOFTEN” once, and “1buTT” will display.
- Press “SOFTEN” repeatedly to choose the menu.
- Press “1”or “2” to choose the correspond weight.
- Press “START+30SEC.” to start cooking.
MULTIPLE COOK
- In waiting state, press “DEFROST WEIGHT” once, and “0.0 lbs” will display.
- Press number buttons to input the weight to be defrosted. The input weight should be between 0.1-6.0 lbs.
- Press “TIME COOK” button once. “00:00” will display.
- Then, press number keys to set the cook time; it should be within 00:01-99:99.
- Press “POWER LEVEL” once to confirm and then press “POWER LEVEL” repeatedly or press number key to set the power level.
- Press “START+30SEC.” to start cooking.
NOTE: The defrost function can only be one stage of a multiple cook. Two stage cooking can be set at most levels.
BUZZER ON/OFF
To enter silent mode
- Press “MUTE” button. Screen displays silent icon.
To cancel silent mode - In silent mode, press “MUTE” button. The buzzer will sound twice.
PANEL LOCK
- Lock: In waiting state, press “STOP/CANCEL” for 3 seconds, then oven will enter into the panel lock state. Screen will display “Loc.”
- Unlock: In locked state, press “STOP/CANCEL” for 3 seconds to release the lock. Screen will display “UnLo.”
ECO MODE
To enter eco mode:
- The microwave will enter eco mode when the oven door is closed and the unit sits in waiting state for longer than 1 minute.
- When in eco-mode, the stand-by power will be 0.9W.
To cancel eco mode:
- In eco mode, open the door or press any key to cancel it.
INQUIRING FUNCTION
- In cooking state, press “TIMER/CLOCK” button to check the clock. The current time will display for 3 seconds before changing back to cooking time.
TROUBLESHOOTING

WARRANTY
COVERAGE
ZLINE Kitchen and Bath microwave parts will be warrantied for two years from the original purchase date for the original purchaser of the product.
TERMS
This warranty applies only to the original purchaser of the product installed for normal residential use. This is defined as a single-family, residential dwelling in a non-commercial setting. Commercial settings include but are not limited to: schools, churches, hotels, restaurants, vacation rentals such as Airbnb, day care centers, private clubs, fire stations, common areas in multi-family dwellings, nursing homes, food service locations, and institutional food service locations such as hospitals or correction facilities. This warranty is non-transferable and will not be extended based on the date of installation. The warranty applies only to products installed in the contiguous United States and the District of Columbia. Warranty shall not apply and ZLINE Kitchen and Bath is not responsible
for damage resulting from negligence, improper maintenance, misuse, abuse, alteration of or tampering with the appliance, accident, natural disaster, improper electric supply, unauthorized service or repair, improper installation, or installation not in accordance with the instructions contained in the manual or with the local government codes..
WHAT IS NOT COVERED
- Installation or start-up damages or problems caused by improper installation or use.
- Damage related to unauthorized service or unauthorized parts.
- Installation in any commercial or non-residential application.
- Aesthetic damage, scratches, or natural wear caused by normal use.
- Second-hand, open box products, or products purchased from an unauthorized retailer.
SERVICE
For warranty service, please contact our Customer Service team at 1-614-777-5004 or visit www.zlinekitchen.com/contact to utilize our online Customer Experience Portal.
Need to purchase a part or accessory for your ZLINE product?Visit ZLINEparts.com, ZLINE’s official parts distribution partner.
CONTACT
- www.zlinekitchen.com
- 1-614-777-5004
- [email protected]











“ indicators will light. Continue to press “BEVERAGE” button, “1” or “2” will display in order.















![Sharp Microwave Drawer [smd2480cs] User Manual Sharp Microwave Drawer [smd2480cs] User Manual](https://static-data1.manualsee.com/1/img/365/18082/2020/12/Sharp-Microwave-Drawer-SMD2480CS.png)




