ELKUME Joy Glass Radiators

JOY Bath – MOUNTING INSTRUCTIONS
- Carrying sheet
- Heat exchanger
- Design covering
- Wall anchor

Installation
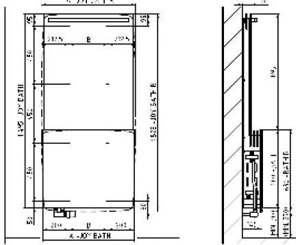
Recommended distance between heating body and floor resp. window sill, see the drawing.
The mounting kit is intended for brickwork masonry.
| A | B |
| 700/725 | 300 |
| JOY Bath – 1495×700 | |
| JOY Bath R – 1525×725 | |

Maintenance
It is recommended to remove dust from the heat exchanger surface before the beginning of heating season in order to maintain the heating efficiency. The cleaning follows by means of a Hoover or by a brush dipped into a common detergent solution before.
Please, don´t place any things on the heating body upper surface to keep safety!
The air passage through longitudinal glass lamellas is to be kept free. Please, avoid any damage of lamellar surface. Any deterioration of aluminum lamellas must be repaired in order to ensure perfect air streaming.
HEATING BODY INTEGRATION INTO HEATING SYSTEM
- By means of radiator pipe union
Direct connection
Angle variant
- By means of temperature-responsive valve & radiator pipe union
Direct connection
Angle variant
- By means of design mounting kit elements
Direct connection
Angle variant



Angle variant
Angle variant













