
INSTALLATION INSTRUCTION
217- Vanities & Wall Sconce
WS-21712
WS-21712 217- Vanities and Wall Sconce
WARNING
IMPORTANT: NEVER attempt any work without shutting off the electricity.
– Read all instructions before installing.
– System is intended for installation by a qualified electrician in accordance with the National Electrical Code and local regulations.
– Go to the main fuse box, or circuit breaker. Place the main power switch in the “OFF” position and unscrew the fuse(s) or switch ”OFF” the circuit breaker switch(es) that control the power to the fixture or room that you are working on.
– Place the wall switch in the “OFF” position.
CAUTION
– All parts must be used as indicated in these instructions. Do not substitute any parts, leave parts out, or use any parts that are worn out or broken. Failure to follow this instruction could invalidate the ETL/CETL listing of this fixture.
CAUTION When handling the fixture, do not apply pressure to the LEDs. Hold the fixture by the base only.
HARDWARE


PREPARATION
- Shut off the power at the circuit breaker and remove existing fixture, including the crossbar.
- Carefully unpack your new fixture and lay out all the parts on a clear area. Be careful not to lose any small parts necessary for installation.
INSTALLATION
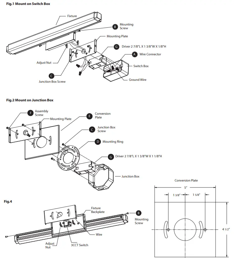
MOUNT ON 2″X4″SWITCH BOX (Fig. 1)
3. Remove the mounting screw (B) from the fixture.
4. The lamp can switch between three color temperatures (2700K-3000K-3500K), which can be adjusted to your preference with the switch on the mounting plate. (Fig.3).
5. Connect the driver (G) input wire to switch box wires as shown in Fig.
4, making sure that all wire connectors (A) are secured. if your outlet box has a green or bare cooper ground wire, connect the fixture’s ground wire to it. Otherwise, connect the fixture’s ground wire directly to the back plate using the screw provided. After wires are connected, tuck them carefully inside the switch box.
• Required Driver to be recessed within the Junction box.
6. Secure the mounting plate to the switch box using the junction box screw (C). The side of the mounting plate marked “GND’ must face out.
7. The back plate location for this fixture is adjustable. First loosen both adjust nuts by turning counterclockwise. Second adjust the back plate to your desired location. Third, pull and tighten the electrical wire. Lastly, secure the back plate by turning both adjust nuts clockwise.
8. Place the fixture over the mounting plate, and secure it with mounting screw (B).
OR
MOUNT ON 4″X4″JUNCTION BOX (Fig. 2)
3. Remove the mounting screw (B) from the fixture.
4. The lamp can switch between three color temperatures (2700K-3000K-3500K), which can be adjusted to your preference with the switch on the mounting plate. (Fig.3).
5. Connect the driver (G) input wire to switch box wires as shown in Fig. 4, making sure that all wire connectors (A) are secured. if your outlet box has a green or bare cooper ground wire, connect the fixture’s ground wire to it. Otherwise, connect the fixture’s ground wire directly to the back plate using the screw provided. After wires are connected, tuck them carefully inside the switch box.
• Required Driver to be recessed within the Junction box.
6. Secure the mounting ring to the switch box using the junction box screw (C). Make sure the two holes (Spacing 2-3141 are horizontal as shown in Fig. 2. The side of the mounting plate marked ‘GND” must face out.
7. Secure the mounting plate and conversion plate (E) to the mounting ring with assembly screw (F)
8. The back plate location for this fixture is adjustable. First loosen both adjust nuts by turning counterclockwise. Second adjust the back plate to your desired location. Third, pull and tighten the electrical wire. Lastly, secure the back plate by tuming both adjust nuts clockwise.
9. Place the fixture over the mounting plate, and secure it with mounting screw (B).
WARNING
IMPORTANT: NEVER attempt any work without shutting off the electricity.
– Read all instructions before installing.
– System is intended for installation by a qualified electrician in accordance with the National Electrical Code and local regulations.
– Go to the main fuse box, or circuit breaker. Place the main power switch in the “OFF” position and unscrew the fuse(s) or switch ”OFF” the circuit breaker switch(es) that control the power to the fixture or room that you are working on.
– Place the wall switch in the “OFF” position.
CAUTION
– All parts must be used as indicated in these instructions. Do not substitute any parts, leave parts out, or use any parts that are worn out or broken. Failure to follow this instruction could invalidate the ETL/CETL listing of this fixture.
CAUTION When handling the fixture, do not apply pressure to the LEDs. Hold the fixture by the base only.


PREPARATION
- Shut off the power at the circuit breaker and remove existing fixture, including the crossbar.
- Carefully unpack your new fixture and lay out all the parts on a clear area. Be careful not to lose any small parts necessary for installation.
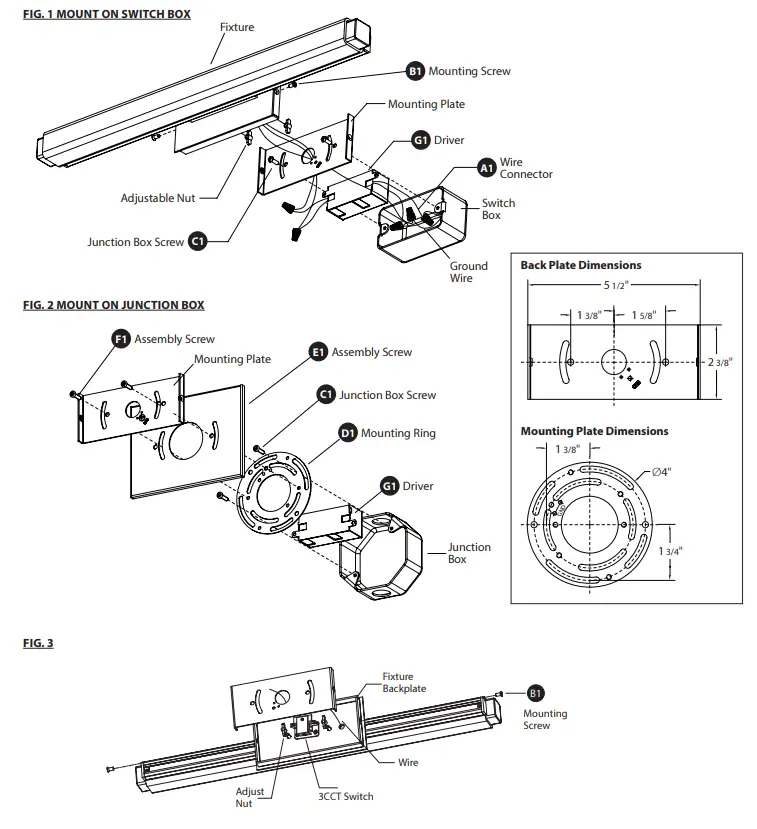
INSTALLATION MOUNT ON SWITCH BOX (Fig. 1)
3. Remove the mounting screws (81) from the fixture.
4. The lamp can switch between three color temperatures (2700K-3000K-3500K), which can be adjusted to your preference with the switch on the mounting plate. (Fig.3).
5. Connect the driver (G) input wire to switch box wires as shown in Fig. 4, making sure that all wire connectors (A) are secured. if your outlet box has a green or bare cooper ground wire, connect the fixture’s ground wire to it. Otherwise, connect the fixture’s ground wire directly to the back plate using the screw provided. After wires are connected, tuck them carefully inside the switch box.
•Requires Driver to be recessed within the switch box.
6. Secure the mounting plate to the switch box using the junction box screws (C1). The side of the mounting plate marked *GN’ must face out.
7. The back plate location for this fixture is adjustable. First, loosen both adjustable nuts by turning counterclockwise. Second, adjust the back plate to your desired location. Third, pull and tighten the electrical wire. Lastly, secure the back plate by turning both adjustable nuts clockwise.
8. Place the fixture over the mounting plate, and secure it with mounting screws (81).
OR
MOUNT ON JUNCTION BOX (Fig. 2)
3. Remove the mounting screws (81) from the fixture.
4. The lamp can switch between three color temperatures (2700K-3000K-3500K), which can be adjusted to your preference with the switch on the mounting plate. (Fig.3).
5. Connect the driver (G) input wire to switch box wires as shown in Fig. 4, making sure that all wire connectors (A) are secured. if your outlet box has a green or bare cooper ground wire, connect the fixtures ground wire to it. Otherwise, connect the fixture’s ground wire directly to the back plate using the screw provided. After wires are connected, tuck them carefully inside the switch box.
•Requires Driver to be recessed within the junction box.
6. Secure the mounting ring (D1) to the switch box using the junction box screws (C1). Make sure the two holes (Spacing 2-3/4″) are horizontal as shown in Fig.2. The side of the mounting plate marked “GNI)* must face out.
7. Secure the mounting plate and conversion plate (El) to the mounting ring with assembly screw (F1).
8. The back plate location for this fixture Is adjustable. First, loosen both adjustable nuts by turning counterclockwise. Second, adjust the back plate to your desired location. Third, pull and tighten the electrical wire. Lastly, secure the back plate by turning both adjustable nuts clockwise.
9. Place the fixture over the mounting plate, and secure it with mounting screws (81).

WARNING
IMPORTANT: NEVER attempt any work without shutting off the electricity.
– Read all instructions before installing.
– System is intended for installation by a qualified electrician in accordance with the National Electrical Code and local regulations.
– Go to the main fuse box, or circuit breaker. Place the main power switch in the “OFF” position and unscrew the fuse(s) or switch ”OFF” the circuit breaker switch(es) that control the power to the fixture or room that you are working on.
– Place the wall switch in the “OFF” position.
CAUTION
– All parts must be used as indicated in these instructions. Do not substitute any parts, leave parts out, or use any parts that are worn out or broken. Failure to follow this instruction could invalidate the ETL/CETL listing of this fixture.
CAUTION When handling the fixture, do not apply pressure to the LEDs. Hold the fixture by the base only.
HARDWARE


PREPARATION
- Shut off the power at the circuit breaker and remove existing fixture, including the crossbar.
- Carefully unpack your new fixture and lay out all the parts on a clear area. Be careful not to lose any small parts necessary for installation.
INSTALLATION MOUNT ON SWITCH BOX (Fig. 1)
3. Remove the mounting screws (B1) from the fixture.
4. The lamp can switch between three color temperatures (2700K-3000K-3500K), which can be adjusted to your preference with the switch on the mounting plate. (Fig.3).
5. Connect the driver (G) input wire to switch box wires as shown in Fig. 4, making sure that all wire connectors (A) are secured. if your outlet box has a green or bare cooper ground wire, connect the fixture’s ground wire to it. Otherwise, connect the fixture’s ground wire directly to the back plate using the screw provided. After wires are connected, tuck them carefully inside the switch box.
•Requires Driver to be recessed within the switch box.
6. Secure the mounting plate to the switch box using the junction box screws (C1). The side of the mounting plate marked “GND” must face out.
7. The back plate location for this fixture is adjustable. First, loosen both adjustable nuts by turning counterclockwise. Second, adjust the back plate to your desired location. Third, pull and tighten the electrical wire. Lastly, secure the back plate by turning both adjustable nuts clockwise.
8. Place the fixture over the mounting plate, and secure it with mounting screws (81).
OR
MOUNT ON JUNCTION BOX (Fig. 2)
3. Remove the mounting screws (61) from the fixture.
4. The lamp can switch between three color temperatures (2700K-3000K-3500K), which can be adjusted to your preference with the switch on the mounting plate. (Fig.3).
5. Connect the driver (G) input wire to switch box wires as shown in Fig. 4, making sure that all wire connectors (A) are secured. if your outlet box has a green or bare cooper ground wire, connect the fixture’s ground wire to it. Otherwise, connect the fixture’s ground wire directly to the back plate using the screw provided. After wires are connected, tuck them carefully inside the switch box.
•Requires Driver to be recessed within the junction box.
6. Secure the mounting ring (D1) to the switch box using the junction box screws (C1). Make sure the two holes (Spacing 2-3/4″) are horizontal as shown in Fig. 2. The side of the mounting plate marked “GND” must face out.
7. Secure the mounting plate and conversion plate (El ) to the mounting ring with assembly screw (F1).
8. The back plate location for this fixture is adjustable. First, loosen both adjustable nuts by turning counterclockwise. Second, adjust the back plate to your desired location. Third, pull and tighten the electrical wire. Lastly, secure the back plate by turning both adjustable nuts clockwise.
9. Place the fixture over the mounting plate, and secure it with mounting screws (61).

modernforms.com
Phone (800) 526.2588
Fax (800) 526.2585
Headquarters/Eastern Distribution Center
44 Harbor Park Drive
Port Washington, NY 11050
Central Distribution Center
1600 Distribution Ct
Lithia Springs, GA 30122
Western Distribution Center
1750 Archibald Avenue
Ontario, CA 91760
Modern Forms retains the right to modify the design of our products at any time as part of the company’s continuous improvement program.
















