Watts FRIWAC Series Electronically controlled domestic freshwater unit

General information
Important notes about the Installation and Operating Manual
NOTICE
The operator is responsible for ensuring adherence to the local laws and regulations (e.g. accident prevention regulations, etc.). Incorrect operation or operating the domestic fresh water unit contrary to the specifications shall void all rights to any warranty claim.
This Installation and Operating Manual
- is part of the domestic freshwater unit
- contains instructions and information for the safe and correct installation and commissioning of the domestic freshwater unit
- must be available to all users throughout the entire service life of the domestic freshwater unit
- is intended for trained personnel who are familiar with the applicable standards and provisions and, in particular, with the relevant safety concepts and the operation and maintenance of the domestic freshwater unit
- is protected by copyright and may not be altered without the manufacturer’s permission
Product conformity
This domestic freshwater unit conforms to the 2006/42/EC machinery directive.
Product Features
They use the instantaneous water heater principle, a domestic freshwater unit with a built-in controller for sanitary domestic hot water generation. Domestic freshwater units of the FRIWAC Series are available in the following variants: FRIWAC WT26 and FIRWAC WT40.
- Compact, space-saving design
- EPP insulation shell
- Electronic draw-off temperature control
- All system connections with 1″ union nut, flat sealing
- Stainless steel pipework
Scope of delivery
- Domestic freshwater unit with EPP insulation shell
- Wall mounting set
- Operating instructions: FRIWAC domestic freshwater unit, circulation pump, controller
Safety
Safety notices
DANGER
DANGER indicates an imminent danger that may cause serious physical injury or death if the appropriate safety precautions are not in place.
WARNING
WARNING indicates a danger arising through incorrect behavior (e.g. misuse, disregarding notices, etc.) that may cause serious physical injury or death.
CAUTION
CAUTION indicates a potentially dangerous situation that may cause minor or slight injuries if the appropriate safety precautions are not in place.
NOTICE
NOTICE indicates a situation that may cause material damage if the corresponding precautions are not taken.
Important safety information
- Read this operating manual carefully before use.
- Only connect this domestic freshwater unit to a power supply that matches the supply voltage stated on the domestic freshwater unit’s data plate.
- The power supply on the domestic freshwater unit must be disconnected before completing any maintenance, cleaning or repair work.
- Maintenance, cleaning and repair work may be carried out by trained specialist personnel only.
- If the domestic freshwater unit is damaged or is not functioning correctly, it must no longer be used. In this case, contact your specialist dealer immediately.
- Observe the maintenance instructions and intervals.
- Protect the domestic freshwater unit against the effects of weather.
- Never use the domestic freshwater unit outdoors.
- The domestic freshwater unit may only be used in accordance with its intended use.
Intended use
The FRIWAC Series domestic freshwater unit is intended for domestic hot water generation. It uses the instantaneous water heater principle and switches on automatically when domestic water is needed (e.g. When a tap is opened). The constant temperature at the draw-off point is ensured by the electronically controlled power settings. The domestic freshwater unit is fully pre-assembled and is designed for wall-mounting. The domestic freshwater unit is not intended for use by persons (including children) with reduced physical, sensory or mental capabilities, or lack of specialist knowledge or experience.
Foreseeable misuse
The following is regarded as foreseeable misuse:
- operating the domestic freshwater unit contrary to the specifications;
- using the domestic freshwater unit for use other than its intended use;
- making modifications to the domestic freshwater unit not agreed with the manufacturer;
- using replacement or wear parts not approved by the manufacturer;
- operating the domestic freshwater unit outdoors (parts and components are not UV-resistant).
Operator’s responsibility
The operator must ensure that:
- the domestic freshwater unit is only used for its intended purpose;
- the domestic freshwater unit is installed, operated and maintained according to the specifications in the Installation and Operating Manual;
- the domestic freshwater unit is only operated according to local directives and occupational health and safety regulations;
- all precautions have taken to avoid hazards originating from the domestic freshwater unit;
- all precautions for first aid and fire suppression are carried out;
- only authorized and trained users have access to and operate the domestic freshwater unit;
- users have access to this Installation and Operating Manual at all times.
Users
Only qualified persons may operate the domestic freshwater unit or carry out service and maintenance work.
Operators
An operator is deemed to be qualified if they have read this operating manual and understood the potential hazards associated with improper behavior.
Fitters/commissioners
Due to their technical training, expert knowledge and consideration of the relevant standards, provisions, regulations and laws, fitters/commissioners are able to carry out work on the domestic fresh water unit and to identify and prevent potential hazards.
Technical features

We recommend the use of a water softener for water hardnesses > 8.5° dH and water temperatures < 60 °C. A water softener is required for water hardnesses > 14° dH and water temperatures > 60 °C.
Thermal output data
FRIWAC WT26 thermal output data
| Draw-off rate | Hot water temperature | Cold water temperature | Primary circuit supply | Primary circuit return |
| [l/min] | [°C] | [°C] | [°C] | [°C] |
| 25.1 | 46.0 | 14.3 | 59.8 | 33.4 |
| 19.8 | 49.0 | 14.5 | 60.3 | 35.9 |
| 15.2 | 50.6 | 11.5 | 61.5 | 35.9 |
| 10.2 | 50.1 | 11.5 | 59.4 | 33.4 |
| 8.2 | 51.1 | 11.5 | 59.5 | 32.6 |
| 25.0 | 50.9 | 14.7 | 65.1 | 34.6 |
| 20.4 | 50.6 | 13.3 | 66.1 | 34.8 |
| 15.1 | 50.6 | 11.4 | 66.2 | 31.7 |
| 10.0 | 50.6 | 10.4 | 66.3 | 29.0 |
| 5.1 | 50.5 | 10.8 | 65.2 | 24.4 |
| 25.0 | 50.9 | 14.2 | 71.0 | 34.1 |
| 20.2 | 50.6 | 12.5 | 70.1 | 32.2 |
| 15.0 | 50.6 | 11.2 | 71.1 | 28.3 |
| 9.8 | 50.8 | 10.5 | 70.0 | 25.6 |
| 5.2 | 50.5 | 11.2 | 69.4 | 21.4 |
| 25.0 | 50.6 | 14.5 | 75.2 | 32.2 |
| 20.3 | 50.8 | 13.8 | 74.6 | 30.7 |
| 15.0 | 50.4 | 11.2 | 76.0 | 26.5 |
| 10.2 | 50.7 | 10.5 | 74.9 | 23.8 |
| 5.1 | 50.7 | 11.1 | 75.1 | 19.5 |
| 25.1 | 50.4 | 13.7 | 80.4 | 29.5 |
| 19.9 | 50.6 | 13.3 | 80.2 | 28.0 |
| 15.2 | 50.4 | 11.5 | 81.4 | 25.0 |
| 10.0 | 50.8 | 10.8 | 80.1 | 22.5 |
| 5.2 | 50.6 | 11.1 | 79.9 | 19.2 |
FRIWAC WT40 thermal output data
| Draw-off rate | Hot water temperature | Cold water temperature | Primary circuit supply | Primary circuit return |
| [l/min] | [°C] | [°C] | [°C] | [°C] |
| 35.5 | 41.1 | 12.8 | 60.7 | 26.9 |
| 29.7 | 44.3 | 12.0 | 60.1 | 28.9 |
| 25.0 | 47.2 | 11.5 | 60.7 | 31.3 |
| 20.1 | 50.1 | 10.9 | 60.1 | 34.7 |
| 15.2 | 50.3 | 10.3 | 60.6 | 37.3 |
| 10.3 | 49.9 | 10.0 | 60.6 | 37.6 |
| 4.7 | 49.9 | 11.2 | 61.4 | 43.0 |
| 35.5 | 44.4 | 14.1 | 65.4 | 28.7 |
| 30.0 | 48.2 | 13.3 | 65.6 | 30.6 |
| 25.3 | 50.6 | 12.9 | 66.1 | 32.2 |
| 20.1 | 50.6 | 12.3 | 65.9 | 30.3 |
| 14.8 | 50.4 | 11.8 | 66.3 | 27.1 |
| 10.2 | 50.4 | 11.3 | 65.9 | 24.3 |
| 5.1 | 50.3 | 11.7 | 64.5 | 21.7 |
| 35.3 | 47.0 | 14.7 | 70.8 | 29.5 |
| 29.7 | 50.3 | 14.5 | 70.4 | 31.6 |
| 25.1 | 50.6 | 14.2 | 70.3 | 30.4 |
| 19.8 | 50.7 | 13.9 | 70.3 | 28.1 |
| 14.8 | 50.5 | 13.1 | 70.1 | 25.5 |
| 10.2 | 50.5 | 12.8 | 69.8 | 23.4 |
| 5.1 | 50.4 | 13.1 | 69.4 | 20.6 |
| 35.1 | 50.6 | 14.2 | 75.0 | 31.5 |
| 30.5 | 50.3 | 13.4 | 74.8 | 29.8 |
| 25.2 | 50.4 | 12.6 | 75.9 | 27.4 |
| 19.9 | 50.4 | 11.6 | 75.5 | 25.3 |
| 14.8 | 50.6 | 10.9 | 75.2 | 23.6 |
| 10.3 | 49.8 | 9.9 | 75.4 | 18.8 |
| 4.7 | 49.8 | 10.1 | 74.4 | 17.6 |
| 35.2 | 50.2 | 14.6 | 80.3 | 29.2 |
| 30.2 | 50.0 | 13.9 | 80.3 | 27.5 |
| 25.5 | 50.1 | 13.4 | 80.3 | 26.0 |
| 20.1 | 50.8 | 12.5 | 80.8 | 24.3 |
| 15.0 | 50.7 | 11.3 | 80.5 | 21.7 |
| 10.0 | 50.4 | 10.5 | 80.2 | 18.5 |
| 5.0 | 49.9 | 10.2 | 79.9 | 16.7 |
Pressure loss diagram
FRIWAC WT26 pressure loss diagram
Total pressure loss – FRIWAC WT26 – Primary circuit
Total pressure loss – FRIWAC WT26 – Secondary circuit
FRIWAC WT40 pressure loss diagram
Total pressure loss – FRIWAC WT40 – Secondary circuit
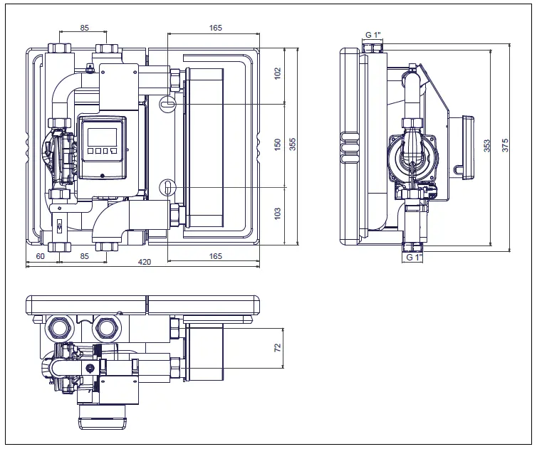
Dimensions
Component overview

- Controller mounting plate (foldable for pump maintenance)
- Plate heat exchanger
- Flow sensor with temperature sensor
- Supply sensor, primary circuit (beneath insulation)
- Circulation pump
- Control systems
- Vent valve
- A) Heating supply primary circuit 1” union nut
- B) Heating return primary circuit 1” union nut
- C) Hot water outlet secondary circuit 1” union nut
- D) Cold Hot water inlet secondary circuit 1” union nut
Installation and commissioning
DANGER Electricity! Risk of death from electric shock!
- Work on live parts must be carried out only by trained electricians.
- Disconnect the power supply to the unit before carrying out any installation, maintenance, cleaning or repair work and secure it against reconnection.
WARNING Hot water!
Severe scalding is possible at the point of use.
- Install a thermostatic mixing valve at the point of use.
NOTICE
The domestic freshwater unit may only be installed and commissioned by specialist personnel who have been duly trained and authorized by the manufacturer.
CAUTION
When carrying out repairs and replacing parts, the prescribed mounting positions and flow directions for the individual components to be replaced must be observed.
CAUTION
Material damage due to water hammer. Water hammer may occur if the shut-off valves are opened and closed quickly.
- Always open and close the shut-off valves slowly and in a controlled way.
Requirements
- A safety valve to DIN 1988 must be installed at the cold water input. This may not have a shut-off function.
- Install a filter on the cold water input.
- When operating a circulating system, the applicable technical regulations and hygiene provisions to DVGW (Deutscher Verein des Gas- und Wasserfaches – German association for gas and water) worksheet W551 are to be observed.
- Ensure the various pump units (domestic freshwater unit /heating circuit unit) are hydraulically separated.
- We recommend flushing equipment is installed upstream and downstream of the plate heat exchanger in the primary and secondary circuits for descaling or cleaning if necessary.
- When using galvanized pipework and fittings, observe the installation sequence to avoid electrochemical corrosion.
- The fittings are preassembled at the factory; however, the tightness of the seal is to be checked before commissioning (pressure test).
NOTICE
Install the domestic freshwater unit with the controller at eye level whenever possible.
Installation
Tightening torques for screw fittings 1″ 55 Nm
CAUTION Danger of material damage.
The domestic freshwater unit is not protected against water splashes or drops.
- Always install the domestic freshwater unit in a dry environment.
CAUTION Poor water quality!
Hard water causes limescale build-up in the domestic freshwater unit and reduces the water quality.
- We recommend the use of a water softener for water hardnesses > 8.5° dH and water temperatures < 60 °C.
- A water softener is required for water hardnesses > 14° dH and water temperatures > 60 °C.
- Remove the domestic freshwater unit front cover.

- Observe Fig. 8-2 for steps 2 and 3.
- Mark the drilling points for mounting the domestic freshwater unit.
- Drill holes for the relevant size screws and wall plugs.

- Observe Fig. 8-3 for steps 4 to 7.
- Insert the wall plugs (item 1).
- Screw the hanger bolts (3) into the wall plugs.
- Fit the wall bracket (item 2).
- Locate the domestic freshwater unit vertically on the wall.
NOTICE
An appropriate safety device against overpressure on the domestic water supply side must be installed on site in accordance with the current local water quality regulations.- If shut-off valves are fitted between the domestic freshwater unit and the safety valve, these must be secured against tampering during operation by appropriate means (e.g. sealing wire or locking plate).
- Observe Fig. 8-4 for steps 8 to 10.
- Fit suitable shut-off valves to the connections (items A, B, C and D) on the domestic freshwater unit.
- Connect the fittings on the domestic freshwater unit to the on-site supply lines.
- Check all screw connections are tight.
Starting the unit
Requirements
The domestic freshwater unit is fully assembled. Observe Fig. 8-4 for the following steps.
- Slowly open the primary circuit shut-off valves (items A and B).
- Open the vent valve (item 2) by turning the vent key (item 1) anticlockwise and keep it open until air is no longer escaping.
CAUTION
Damaged circulation pump due to dry running! The circulation pump is running before the domestic freshwater unit has been vented.- Only switch on the circulation pump once the domestic freshwater unit has been completely filled and vented. Audible noises which occur when the circulation pump is in operation indicate air in the system.
- Connect the power supply to the domestic freshwater unit (see separate pump documentation).
- The domestic freshwater unit automatically switches itself on when the power supply is connected.
- Program the controller if required (see separate instructions for the controller).
- Switch the circulation pump on from ‘Manual operation’ on the controller menu and allow the water to flow for approximately 5 minutes.
- Vent the primary circuit again.
- Slowly open the shut-off valves (items C and D) on the secondary circuit.
- Slowly open a point of use (e.g. a tap in the kitchen or bathroom) and allow water to run until all the pipes are full and all the air has escaped from the system.
Starting the controller
See separate controller documentation.
Maintenance
DANGER Electricity!
Risk of death from electric shock!
- Maintenance work on the domestic freshwater unit may only be carried out once the power supply has been disconnected.
WARNING Hot water!
Severe scalding possible.
- Do not put hands into hot water when draining the domestic freshwater unit. Allow the domestic freshwater unit to cool down before completing any maintenance, cleaning or repair work.
WARNING Hot surfaces!
Severe scalding possible.
- Do not hold pipework or components while the unit is in operation. Allow the domestic freshwater unit to cool down before completing any maintenance, cleaning or repair work. Wear heat-resistant safety gloves if it is necessary to work on hot components.
NOTICE
Maintenance of the domestic freshwater unit must be carried out only by specialist personnel who have been duly trained and authorised by the manufacturer.
Annual maintenance schedule
General visual inspection
- Check the unit for leaks and retighten connections with flat seals or replace the seals.
Functional check
- Check the correct adjustment and operating and performance parameters.
- Check for noisy operation.
- Check with the user in the event of anomalies.
Ball valves
- Check for the correct operation of shut-off valves and ball valves.
Pump
Be aware of noise build-up in the pump.
Post-maintenance checks
- Check all loosened screw connections for a firm seating and retighten if necessary.
- Remove all tools, materials and other equipment used from the work area.
- Vent the system.
Replacing wear parts
Note that the domestic freshwater unit has parts that are subject to wear that naturally occurs as a result of normal use even when properly maintained and serviced.
Specifically, these are mechanical parts and parts that are in contact with hot water and steam such as hoses, seals, valves, etc.
Normal wear and tear is not a defect and is not covered under a warranty or guarantee. Nevertheless, defects and malfunctions may only ever be remedied by trained specialist personnel. Contact your specialist dealer for more information.
Decommissioning
- Disconnect the power supply to the domestic freshwater unit and secure it against reconnection.
- Remove the front cover of the domestic water unit (Fig. 8-1 on page 11).
- Close all the shut-off valves Fig. 8-4 on page 12).
After a prolonged shutdown
Relieve the pressure in the domestic freshwater unit (for example, by opening the vent screws, see Fig. 8-4 on page 12).
Recommissioning
Follow the instructions in Section 8.2 on page 12 for recommissioning.
Disposal
WARNING
Improper disposal can lead to contamination of the environment and groundwater!
When disposing of components and operating materials, the provisions and guidelines of the country of use must be observed.
- Make sure the current to all subassemblies and components has been disconnected.
- Remove the domestic freshwater unit in the correct way or engage a specialist company to do this.
- Separate the subassemblies and components into recyclable materials and operating materials.
- Dispose of the subassemblies and components in accordance with local laws and provisions or take them to a recycling facility.
Return to manufacturer
Contact the manufacturer if you wish to return the domestic freshwater unit or component parts.
Informing authorities and the manufacturer
Inform the manufacturer when decommissioning and disposing of the domestic freshwater unit for statistical purposes.
Warranty
WATTS products are tested extensively. WATTS, therefore, guarantees only the replacement or, at the sole discretion of WATTS, the free-of-charge repair of components of the supplied products where these, in the opinion of WATTS, exhibit verifiable manufacturing faults. Warranty claims due to defects or defects of title may be asserted within one (1) year of delivery/transfer of risk. Excluded from the warranty are damages attributable to normal use of the product or wear and damages resulting from modifications or non-authorized repairs on the products, for which WATTS rejects all claims for compensation (direct or indirect). (For more detailed information, please refer to our website.) In all cases, supply is subject to the General Terms and Conditions, which can be found at www.wattswater.eu/gtc/.
The descriptions and photographs contained in this product specification sheet are supplied by way of information only and are not binding. Watts Industries reserves the right to carry out any technical and design improvements to its products without prior notice. Warranty: all sales and contracts for sale are expressly conditioned on the buyer’s assent to Watts terms and conditions found on its website at www.wattswater.eu/gtc/ Watts hereby objects to any term, different from or additional to Watts terms, contained in any buyer communication in any form, unless agreed to in a writing signed by an officer of Watts.




NOTICE
CAUTION
















