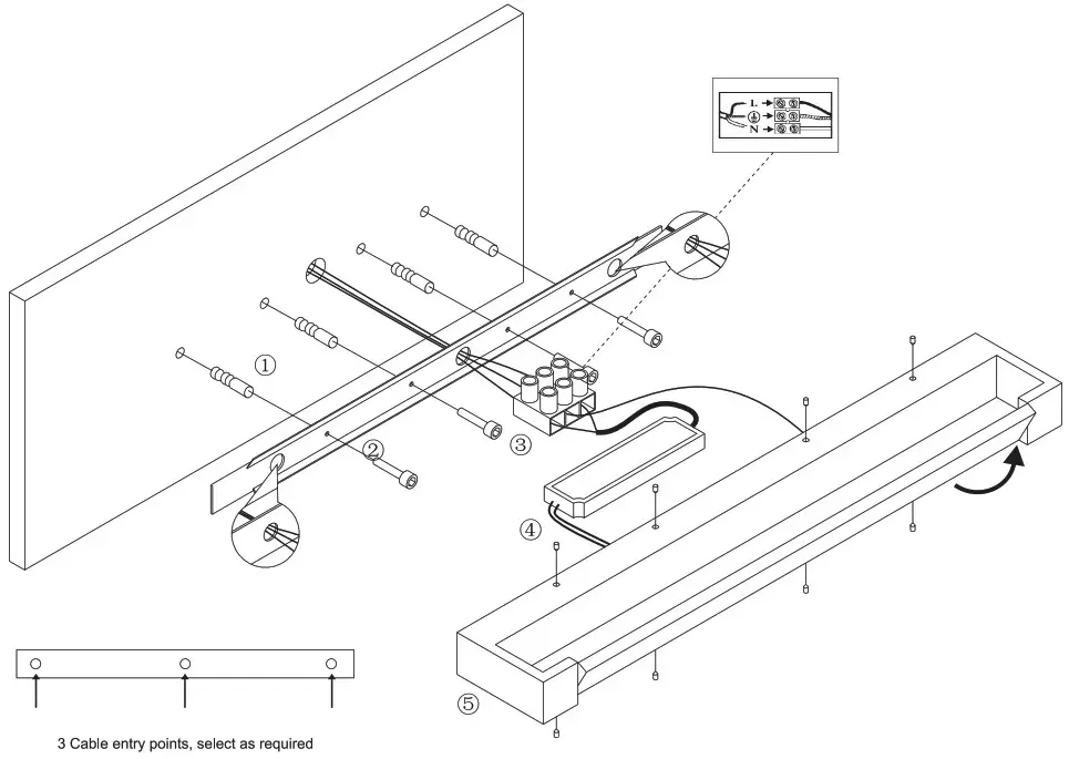
S503 Non Dimmable LED Light
Instruction Manual
S503 Non Dimmable LED Light


S503 Non Dimmable LED Light
Instruction Manual


Download manual
Here you can download full pdf version of manual, it may contain additional safety instructions, warranty information, FCC rules, etc.