
FPH500.245-047-104 Installation Manual
Power Supply, 1-Phase, 24V, 500W,

Doc. ID: PU-447.015.34-xxB (2022-02-08-HE1)
![]()
FPH500.245-047-104 Power Supply
Read this first!
Before operating this device, please read this manual thoroughly and retain this manual for future reference! This device may only be installed and put into operation by qualified personnel. If damage or malfunction should occur during operation, immediately turn power off and send device to the factory for inspection. The device does not contain serviceable parts. The information presented in this document is believed to be accurate and reliable and may change without notice. For any clarifications the English translation will be used.
WARNING Risk of electrical shock, fire, personal injury, or death:
- Turn power off before working on the device. Protect against inadvertent re-powering.
- Do not open, modify or repair the device.
- Do not touch during power-on and immediately after power-off. Hot surfaces may cause burns.
Product Description
The FPH500.245-047-104 is a stand-alone power supply for three-phase mains systems, which provides a stabilized and galvanically separated PELV/ES1 output voltage at 4 outputs. The negative potential of the outputs is permanently connected to PE within the unit.
The housing is rated as IP65 and IP67 according IEC60529 and provides protection against electrical, mechanical and fire hazards.
Intended Use
This indoor use device is intended for commercial use, such as in industrial control, process control, monitoring, measurement or the like.
Do not use this device in equipment, where malfunctioning may cause severe personal injury or threaten human life, without additional appropriate safety devices, that are suited for the endapplication.
If used in a manner outside of its specification, the protection provided by the device may be impaired.
Installation Instructions
Install the device with the terminals on the bottom of the device. Other mounting orientations require a reduction in output current.
When installing watch out for the risk of injury from sharp edges and assure that when installed any sharp edges on the back cannot be accessed and cannot cause injury.
Use 4 screws ( 2 on top and 2 on bottom mounting holes) suitable for the underground and a strength comparable to M4 or UNC 8-32 screws.
The device is designed for pollution degree 3 areas in controlled environments.
The enclosure of the device provides a degree of ingress protection of IP65 and IP67 when installed with all mating connectors firmly connected. Assure that during installation no moisture or dirt gets into the connections. Operation in wet locations or in areas where moisture or condensation can be expected is possible.
The isolation of the device is designed to withstand impulse voltages of overvoltage category III according to IEC 60664-1.
The device is designed as “Class of Protection I” equipment according to IEC 61140. Do not use without a proper PE (Protective Earth) connection.
The device is suitable to be supplied from TN, TT or IT mains networks. The voltage between the input terminals and the PE potential must not exceed 264Vac.
The device is designed for convection cooling without a fan. Do not obstruct airflow.
The device is designed for altitudes up to 5000m (16400ft). Above 2000m (6560ft) a reduction in output current and overvoltage category is required.
Keep the following minimum installation clearances: 30mm on top and bottom, 10mm on the front, the left and the right side.
The device is designed, tested and approved for branch circuits up to 20A (UL) and 32A (IEC) without additional protection device. If an external fuse is utilized, do not use circuit breakers smaller than 6A B- or C-characteristic to avoid a nuisance tripping of the circuit breaker. For DC supply voltages an external fuse (rated 6A with B- or C-characteristic) is required.
Make sure that you only use plugs and cables rated for the device output current and the required temperature range. Follow all local and national codes for installation.
Do not connect outputs or devices in parallel for higher output currents.
Do not connect the negative potential of any output to PE.
The maximum permissible ambient air temperature is +70°C (+158°F). The operational temperature is the same as the ambient or ambient air temperature and is defined 2cm below the device.
Cleaning only with a damp cloth.
Functional Description
The output is electronically protected against no-load, overload and short circuit and can supply any kind of loads, including inductive and capacitive loads. If capacitors with a capacitance >20mF are connected to one output, this output might switch off after turning the unit or the output on or connecting the load.
Do not apply return voltages from the load to the output terminals higher than 35V.
The green Status LED reports an output above 90% of the adjusted voltage of a running device and no output tripped due to overcurrent or overtemperature.
The OUT-OK contact is closed when the Status LED is green and all outputs according settings.
Contact ratings: 60Vdc 0.3A, 30Vdc 1A, 30Vac 0.5A for resistive loads.
The device has an internal overtemperature protection. If the temperature is too high the unit shuts down and starts automatically again after cooling off.
Each output will get the same state as before the shutdown.
In case of an internal defect, a redundant circuit limits the maximum output voltage to 32.5V. The unit shuts down and automatically attempts to restart.
LED bar graph and pushbuttons:
The LED bar normally displays the actual output power as percentage value. 100% equals an output power of 500W. LEDs up to and including 100% are green, the LEDs above 100% are orange. With pressing the up / down buttons you can see the percentage of each output. The orange LED indicates the selected output. If you press the “Set Mode” button for 3 seconds all LEDs light up briefly and one LED stays on, showing the actual output voltage. With pressing the up or down button you can change the set voltage to the values indicated by the green LED. All orange LEDs are dark. The voltage is set immediately and the value stored until the next change. If you press the “Set Mode” button again you can set the output current limit for the selected channel indicated by the orange LED. With the up / down buttons the current limit is changed to the values indicated by the single lit green LED. The valuestored until the next change. Select other outputs with the “Set Mode” button. Without further pressing of push-buttons, the LED bar will return from any other mode to normal mode after 15s. With the buttons at each channel the channel can turned on/off manually by pressing for at least 1s.
Mating connectors:
Use a 3 Pin 7/8” female plug to connect to the input voltage connector (X1).
Pin assignment for (X1): Pin 2 for L, Pin 3 for N, The Pin with the PE symbol for PE.
Use a standard M12 A-coded 5 pin female plug to connect to the OUT-OK signal connector (X2). Pin assignment: Pin 1 and Pin 4 for relay contact.
Use 4 pin 7/8” male plugs for the output voltage connectors (X3, X4).
Pin assignment: Pin 1 for plus out(2,4); Pin 2 for plus out(1,3); Pin 3 for minus out(1,3); Pin 4 for minus out(2,4).

Technical Data
All values are typical figures specified at 200V/230Vac 50Hz input voltage, 24V, 500W output load, 25°C ambient temperature and after a 5 minutes run-in time unless otherwise noted.
| Output voltage | DC 24V | Nominal |
| Adjustment range | 24 – 28Vdc | Factory setting 24.5V |
| Output power continuous | 600W 500W 350W | Below +45°C ambient At +55°C ambient At +70°C |
| Short term up to 5s | 1000W 700W | Below +55°C At +70°C |
| Derate linearly from +45°C/+55°C and 70°C | ||
| Number of outputs | 4 | |
| Current per output | Settable up to 10A | |
| Input voltage AC | AC 200 – 240V | |
| Mains frequency | 50 – 60Hz | ±6% |
| Input current AC | 3.3 / 2.7A | At 200 / 230 Vac |
| Power factor | 0.99 / 0.97 | At 200 / 230 Vac |
| Input voltage DC | DC 200-300V*) | ±20% |
| Input current DC | 3.2 / 2.1A | At 200 / 300Vdc |
| Input inrush current | 2.6 / 6A peak | at 25°C 200 /230 Vac |
| Efficiency | 93.4 / 95% | At 200 / 230 Vac |
| Hold-up time | 33 / 33ms | At 200 / 230Vac |
| Temperature range | -25 to +70°C | |
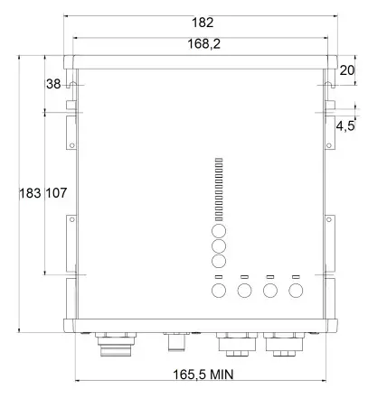
| Size (LxWxH) | 183x182x59mm | Without connectors |
| Weight | 1200g / 2.7lb | |
*) For DC supply voltages an external circuit breaker is required (rated 6A with B- or C-characteristic).
Functional Diagram

Output Characteristic

Temperature Range

Hole Pattern for Mounting

All dimensions in mm; connectors X1 to X4 from left to right
Headquarters: PULS GmbH, Elektrastr. 6, 81925 Munich, Germany, www.pulspower.com
| Germany +49 89 9278 0 China +86 512 62881820 | France +33 478 668 941 North America +1 630 587 9780 |
| Austria +43 2764 3213 Singapore +65 6684 2310 | Switzerland +41 56 450 18 10 United Kingdom +44 1525 841001 |
The information in this document is believed to be accurate and reliable and may change without notice.



















