CAFE CTS90DM2NS5 30 Inch Electric Push-to-Open Door Built-In Wall Ovens

BEFORE YOU BEGIN
Read these instructions completely and carefully.
- IMPORTANT — Save these instructions for local inspector’s use.
- IMPORTANT — Observe all governing codes and ordinances. · Note to Installer Be sure to leave these instructions with Consumer.
- Note to Consumer Keep these instructions for future reference.
- Skill level Installation of this appliance requires a qualified installer or electrician.
- Proper installation is the responsibility of the installer.
- Product failure due to improper installation is not covered under Warranty.
- Product is for indoor use only.
ATTENTION INSTALLER: All electric wall ovens must be hard-wired (direct-wired) into an approved junction box. A plug and receptacle is NOT permitted on these products.
FOR YOUR SAFETY:
Before beginning the installation, switch power off at the service panel and lock the service disconnecting means to prevent power from being switched on accidentally. When the service disconnecting means cannot be locked, securely fasten a prominent warning device, such as a tag, to the service panel.
Be sure the oven is securely installed in a cabinet that is firmly attached to the house structure. Weight on the oven door could cause the oven to tip and result in injury. Never allow anyone to climb, sit, stand or hang on the oven door.
Make sure the wall coverings, counters and cabinets around the oven can withstand the heat (up to 200°F [93.3°C]) generated by the oven.
MATERIALS YOU MAY NEED
- Junction Box
- Wire Nuts
- Strain Relief Clamp for 1/2″ Conduit
- 36″ (91 cm) of String
TOOLS YOU MAY NEED
- 1/8″ Drill Bit and Electric or Hand Drill
- T20 Screwdriver
- Phillips Screwdriver
- Wire Strippers
- 7/16″ Nut Driver (combination ovens)
- 1/4″ Nut Driver (30″ combination ovens)
REMOVE PACKAGING MATERIALS
Failure to remove packaging materials could result in damage to the appliance. Remove all packing parts from oven, racks and heating elements. Remove protective film and labels on the outer door and control panel. Also, remove plastic on trims and panel, all tape around the oven and any shipping screws securing the oven to the base pad. Open oven door and remove literature pack and oven racks. Remove the bottom trim from the top of the oven. It will be installed at the end of the installation process. The trim is wrapped separately and taped to the top of the unit. Remove pedestal rails from separate box and set aside (30″ Double Wall Ovens Only).
DESIGN INFORMATION
SINGLE OVEN INSTALLATIONS
The single oven may be installed in a cabinet alone or above a warming drawer. The single oven may also be installed side by side. See the label on top of the oven for approved models.
DOUBLE AND COMBINATION OVEN INSTALLATIONS
A double or combination oven may be installed in a cabinet alone or above a warming drawer. See the label on top of the oven for approved models.
IMPORTANT: Always refer to individual installation instructions packed with each product for specific requirements.
PREPARE THE OPENING
NOTE: If the cabinet does not have a solid bottom, two braces or runners must be installed to support the weight of the oven. For single ovens, the runners and braces must support 220 lbs (99 kg). For double and combination ovens, the runners and braces must support 400 lbs. (181 kg).
NOTE: If marks, blemishes or the cutout opening are visible above the installed oven, it may be necessary to add wood shims under the runners until the marks or opening are covered.
NOTE: If the cabinet does not have a front frame and the sides are less than ¾” (1.9 cm) thick, shim both sides equally to establish the cutout width.
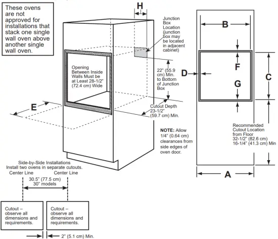
CUTOUT FOR SINGLE OVENS IN WALL CABINET
NOTE: If the cabinet does not have a front frame and the sides are less than ¾” (1.9 cm) thick, shim both sides equally to establish the cutout width.
| Dimension | Dimension Description | 30” Single Oven |
| A | Cabinet Width | 30” (76.2 cm) |
| B | Cutout Width | 281»2” (72.4 cm) min. 285»8” (72.7 cm) max. |
| C | Cutout Height | 271»4” (69.2 cm) min. 275»16” (69.4 cm) max. |
| D | Clearance from cutout – side edges* | 11»16” (1.75 cm) |
| E | Clearance to Adjacent Corners, Drawers, Walls, etc., When Door Is Open | 23” (53.3 cm) min. |
| F | Clearance from cutout – top* | 1” (2.5 cm) min. |
| G | Clearance from cutout – bottom* | 11»4” (3.2 cm) |
| H | Junction Box Location | 91»2” (24.1 cm) max. right side only |
* Refers to minimum clearance required for wall oven installation and does not reflect actual product dimensions.
CUTOUT FOR DOUBLE OVENS (2 THERMAL OVENS)
NOTE: If the cabinet does not have a front frame and the sides are less than ¾” (1.9 cm) thick, shim both sides equally to establish the cutout width.
| Dim. | Description | 30” Double Oven with Pedestal | 30” Double Oven without Pedestal |
| A | Cabinet Width | 30” (76.2 cm) | 30” (76.2 cm) |
| B | Cutout Width | 281»2” (72.4 cm) min. 285»8” (72.7 cm) max. | 281»2” (72.4 cm) min. 285»8” (72.7 cm) max. |
| C | Cutout Height | 5113»16” (131.6 cm) min. 5115»16” (131.9 cm) max. | 50 ¼” (127.64cm) |
| D | Clearance from cutout – side edges* | 11»16” (1.75 cm) | 11»16” (1.75 cm) |
| E | Clearance to Adjacent Corners, Drawers, Walls, etc., When Door Is Open | 23” (53.3 cm) min. | 23” (53.3 cm) min. |
| F | Clearance from cutout – top* | 1” (2.5 cm) min. | 1” (2.5 cm) min. |
| G | Clearance from cutout – bottom* | 11»4” (3.2 cm) | 11»4” (3.2 cm) |
| H | Junction Box Location | 91»2” (24.1 cm) max. right side only | 91»2” (24.1 cm) max. right side only |
| J | Height to Bottom of Junction Box | 47” (119.4 cm) | 47” (119.4 cm) |
| K | Minimum Cutout Location from Floor | 12” (30.5 cm) | 12” (30.5 cm) |
* Refers to minimum clearance required for wall oven installation and does not reflect actual product dimensions.
CUTOUT FOR INSTALLATION OVER A WARMING DRAWER
NOTE: Install the oven only with specific models listed on the label located on top of the oven.
NOTE: Additional clearances between cutouts may be required. Check to be sure the oven supports above the Warming Drawer location do not obstruct the required interior depth and height.
When installing a Warming Drawer below a single, double, or combination oven, a separate 120V, 60 HZ, properly grounded receptacle must be installed. Refer to installation instructions packed with the Warming Drawer for specific installation requirements.

Continue to Section 3 for Double Wall Oven with Pedestal. Otherwise, continue to Section 4.
DETERMINING WHEN TO USE THE PEDESTAL (30″ DOUBLE OVENS ONLY)
WHEN TO USE THE PEDESTAL
When replacing an older GE Appliances 30″ double wall oven with a new GE Appliances model. Cutout height = 51-13/16″ to 51-15/16″. This is our traditional cutout height.
WHEN NOT TO USE THE PEDESTAL
When replacing a 30″ double wall oven from another manufacturer (ie. Whirlpool) with a new GE Appliances 30″ double wall oven. Cutout height = 50-1/4″. You will need to verify that the existing cutout matches the 50-1/4″ dimension.
If the new GE Appliances 30″ double wall oven is being installed into new construction (ie. not a replacement), then the recommended installation is to use the Pedestal.
PEDESTAL RAIL INSTALLATION (30″ DOUBLE OVENS ONLY)
A. Position the pedestal rails with the top cutout toward the front of the opening and the flanges on the bottom, pointing toward the center. Locate each rail on the floor or cabinet runner, slightly inward from the side of the cabinet. Make sure the front of each rail is not protruding beyond the front of the cabinet opening.
B. Drill pilot holes and attach rails to runner or bottom of cabinet with provided hardware.
DOOR REMOVAL (RECOMMENDED FOR THERMAL OVENS)
The door for the microwave oven on a combination oven should never be removed, unless by a certified technician.
NOTE: Door removal is not a requirement for installation of the product but is an added convenience.
To remove the door:
A. Open the oven door as far as it will go.
B. Remove hinge bracket, if equipped, from front frame and set aside. The hinge bracket must be replaced, if equipped, for proper door functionality when door is reinstalled.
Hinge Bracket
C. Push both hinge locks down toward the door frame to the unlocked position. This may require a flat-blade screwdriver. DO NOT LIFT THE DOOR BY THE HANDLE!
D. Place hands on both sides of the door and close the oven door to the removal position (approximately 1″2″ [2.5 cm5.1 cm] from the closed position).
E. Lift the door up and out until the hinge arms clear the slots. NOTE: The oven door is very heavy. Be sure you have a firm grip before lifting the oven door off the hinges. Use caution once the door is removed. Do not lay the door on its handle. This could cause dents or scratches.
ELECTRICAL REQUIREMENTS
This appliance must be properly grounded.
To prevent fire or shock, do not use an extension cord with this appliance.
To prevent shock, remove house fuse or open circuit breaker before beginning installation.
Improper connection of aluminum house wiring to copper leads can result in an electrical hazard or fire. Use only connectors designed for joining copper to aluminum and follow the manufacturer’s recommended procedure closely.
We recommend you have the electrical wiring and hookup of your appliance connected by a qualified electrician. After installation, have the electrician show you how to disconnect power from the appliance.
You must use a single-phase, 120/208 VAC or 120/240 VAC, 60 Hertz electrical system. If you connect to aluminum wiring, properly installed connectors approved for use with aluminum wiring must be used.
Effective January 1, 1996, the National Electrical Code requires that new construction (not existing) utilize a four-conductor connection to an electric oven. When installing an electric oven in new construction, a mobile home, recreational vehicle or an area where local codes prohibit grounding through the neutral conductor, refer to the section on four-conductor branch circuit connections.
Check with your local utilities for electrical codes which apply in your area. Failure to wire your oven according to governing codes could result in a hazardous condition. If there are no local codes, your oven must be wired and fused to meet the National Electrical Code, NFPA No. 70 latest edition, available from the National Fire Protection Association.
This appliance must be supplied with the proper voltage and frequency and connected to an individual, properly grounded branch circuit, protected by a circuit breaker or fuse. See the rating plate located on the oven frame to determine the rating of the product.
Use the chart below to determine the minimum recommended dedicated circuit protection:
| KW Rating 240V | KW Rating 208V | Recommended Circuit Size (Dedicated) |
| ≤4.8 KW | ≤4. KW | 20 Amp |
| 4.9 KW–7.2 KW | 4.2 KW–6.2 KW | 30 Amp |
| 7.3 KW–9.6 KW | 6.3 KW–8.3 KW | 40 Amp |
| 9.7 KW–12.0 KW | 8.4 KW–10.4 KW | 50 Amp |
DO NOT shorten the flexible conduit. The conduit strain relief clamp must be securely attached to the junction box and the flexible conduit must be securely attached to the clamp. If the flexible conduit will not fit within the clamp, do not install the oven until a clamp of the proper size is obtained.
The 3 power leads supplied with this appliance are suitable for connection to heavier gauge household wiring. The insulation of these 3 leads is rated for temperatures much higher than the temperature rating of the household wiring. The current-carrying capacity of the conductor is governed by the wire gauge and the temperature rating of the insulation around the wire.
MAKE ELECTRICAL CONNECTIONS
Switch power off at the service panel and lock the service disconnecting means to prevent power from being switched on accidentally. When the service disconnecting means cannot be locked, securely fasten a prominent warning device, such as a tag, to the service panel.
Place oven on table or platform even with the cutout opening. For a single oven, the platform must support 220 lbs. (99 kg); for a double or combination oven, the platform must support 400 lbs. (181 kg). Connect the flexible conduit to the electrical junction box as shown below*. Position the conduit in such a manner that it will lie behind the unit in a natural loop when the oven is installed**. You will need to purchase an appropriate strain relief clamp to complete the connection of the conduit to the junction box.
*Ovens come equipped with a 48″ long conduit. If a longer conduit is desired, there may be one available for your model. To check availability or order parts, call GE Appliances at 1.800.GE.CARES.
THREE-CONDUCTOR BRANCH CIRCUIT CONNECTION
NOTE: If residence leads are aluminum conductors, see WARNING in Section 5, Electrical Requirements. When connecting to a three-conductor branch circuit, if local codes permit:
A. Connect the oven ground conductor along with the neutral (white) lead to the branch circuit neutral (white or gray in color), using a wire nut.
B. Connect the oven red lead to the branch circuit red lead and the oven black lead to the branch circuit black lead in accordance with local codes, using wire nuts.
C. Install proper strain relief clamp.
FOUR-CONDUCTOR BRANCH CIRCUIT CONNECTION
NOTE: If residence leads are aluminum conductors, see WARNING in Section 5, Electrical Requirements.
NOTE: If using a GFI breaker, the ground wire must be installed correctly to prevent breaker from tripping. Refer to latest edition of the NEC, NFPA No. 70, available from the National Fire Protection Association. When connecting to a four-conductor branch circuit, if local codes permit:

A. Free the neutral (white) lead from being restrained to any other wires. If necessary, cut the neutral (white) lead and then re-strip it to expose the proper length of conductor.
B. Attach the appliance grounding lead (green or bare copper) in accordance with local codes.
C. Connect the oven neutral (white) lead to the branch circuit neutral (white or gray) in accordance with local codes, using Junction Box Cover a wire nut.
D. Connect the oven red lead to the branch circuit red lead and the oven black lead to the branch circuit black lead in accordance with local codes, using wire nuts.
E. Install proper strain relief clamp.
F. Install junction box cover.
SLIDE OVEN INTO OPENING
A. Loop (do not tie) a 36″ (91 cm) string around the conduit before the oven is slid into place. This will keep the conduit from falling behind the oven.
B. Lift oven into cabinet cutout using the oven opening as a grip. Carefully push against oven front frame. Do not push against outside edges.\
C. As you slide the oven back, pull the string so that the conduit will lie on top of the oven in a natural loop. For a combination oven, pull the conduit so that it sits above the lower oven on the left side (as viewed from the front).
D. When you are sure the conduit is out of the way, slide the oven ¾ way back into the opening. Remove the string by pulling on one end of the loop.
INSTALL MOUNTING SCREWS (THERMAL OVENS)
Mounting screws must be used. Failure to do so could result in the oven falling out of the cabinet, causing serious injury.
NOTE: During oven mounting step, ensure that no damage is done to oven gasket which lines the edge of oven cavity.
NOTE: Before drilling the pilot holes, make sure the oven is pushed as far back into the opening as it will go and is centered.
NOTE: If the cabinet is particle board, you must use #8 x ¾” particle board screws. These may be purchased at any hardware store.
A. Drill through the mounting holes (top and bottom) of the side trim for the #8 mounting screws provided.
B. Secure the oven cabinet with the screws provided.
| Some models have custom handles. Please follow the instructions with the handles for proper installation. |
BOTTOM TRIM INSTALLATION
With oven installed, attach the bottom trim through its mounting holes in front vertical brace using two trim screws provided. Bottom trim lip must be placed under flange of bottom air duct.
OVEN RACK GUIDE INSTALLATION (IF APPLICABLE)
A. Locate included oven rack guide mouting hardware.
B. Place oven rack guides on cavity wall studs with metal posts towards back of cavity as shown.
C. Install guides using the 8 provided mounting nuts.
REPLACING THE THERMAL OVEN DOOR
NOTE: The oven door is heavy. You may need help lifting the door high enough to slide it into the hinge slots. Do not lift the door by the handle.

A. Lift the oven door by grasping each side.
B. With the door at the same angle as the removal position (approximately 1″2″ [2.5 cm5.1 cm] from the closed position), seat the notch of the hinge arm into the bottom edge of the hinge slot. The notch of the hinge arm must be fully seated into the bottom of the slot.
C. Fully open the door. If the door will not fully open, the indentation is not seated correctly in the bottom edge of the slot.
D. Push the hinge locks up against the front frame of the oven cavity, to the locked position.
E. Replace hinge bracket, if equipped, to ensure proper door functionality.
F. Close the oven door.
FINAL INSTALLATION CHECKLIST
- Check to make sure the circuit breaker is closed (RESET) or the circuit fuses are replaced.
- Be sure power is in service to the building.
- Check that all packing material and tape have been removed. Failure to remove these materials could result in damage to the appliance once the appliance has been turned on and surfaces have heated.
- Remove all items from inside the oven.
- Check to be sure that the mounting screws are installed and flush with the side trim (see Section 10).
- Check that the bottom trim is installed properly (see Section 11).
- Ensure that air duct opening at bottom of unit is free of obstructions.
- Check that oven rack guides (if applicable) are installed correctly and oven racks function smoothly.
- If applicable – install handles following handle installation instructions and check that both ends are secured.
OPERATION CHECKLIST
- Turn on the power to the oven (refer to your Owner’s Manual). Verify that the bake and broil units and all cooking functions operate properly.
- See your Owner’s Manual for the troubleshooting list.
- Be sure all of the oven controls are OFF before leaving the oven


















