KPH362XT 36 Wallmount Chimney Hood

IMPORTANT SAFETY INSTRUCTIONS
FOR RESIDENTIAL USE ONLY.
READ AND SAVE THESE INSTRUCTIONS.
- PLEASE READ ENTIRE INSTRUCTIONS BEFORE PROCEEDING.
- IMPORTANT: Save these Instructions for the Local Electrical Inspectors use. INSTALLER: Please leave these Instructions with this unit for the owner.
- OWNER: Please retain these instructions for future reference.
- Take care when using cleaning agents or detergents.
- Suitable for use in household cooking area.
- WARNING – To reduce the risk of fire or electric shock, do not use this fan with any Solid-State Speed Control Device.
- CAUTION – To reduce risk of fire and to properly exhaust air, be sure to duct air outside – Do not vent exhaust air into spaces within walls or ceilings or into attics, crawl spaces, or garages.
- CAUTION – For general ventilating use only. Do not use to exhaust hazardous or explosive materials and vapors.
- CAUTION – To avoid motor bearing damage and noisy and/or unbalanced impellers, keep drywall spray, construction dust, etc. off power unit.
- CAUTION – Please read specification label on product for further information and requirements.
- WARNING – TO REDUCE THE RISK OF FIRE, ELECTRIC SHOCK, OR INJURY TO PERSONS, OBSERVE THE FOLLOWING:
- Use this unit only in the manner intended by the manufacturer. If you have questions, contact the manufacturer.
- Before servicing or cleaning unit, switch power off at service panel and lock the service disconnecting means to prevent power from being switched on accidentally. When the service disconnecting means cannot be locked, securely fasten a prominent warning device, such as a tag, to the service panel.
- WARNING – TO REDUCE THE RISK OF A RANGE TOP GREASE FIRE:
- Never leave surface units unattended at high settings. Boilovers cause smoking and greasy spillovers that may ignite. Heat oils slowly on low or medium settings.
- Always turn hood ON when cooking at high heat or when flambeing foods (i.e. Crepes Suzette, Cherries Jubilee, Peppercorn Beef Flambè).
- Clean ventilating fans frequently. Grease should not be allowed to accumulate on fan or filter.
- Use proper pan size. Always use cookware appropriate for the size of the surface element.
- Keep fan, filters and grease laden surface clean.
- Use high range setting on range only when necessary.Heat oil slowly on low to medium setting.
- Don’t leave range unattended when cooking.
- Always use cookware and utensils appropriate for the type and amount off food being prepared.
- WARNING – TO REDUCE THE RISK OF INJURY TO PERSONS IN THE EVENT OF A RANGE TOP GREASE FIRE, OBSERVE THE FOLLOWINGa:
- SMOTHER FLAMES with a close-fitting lid, cookie sheet, or metal tray, then turn off the burner. BE CAREFUL TO PREVENT BURNS. If the flames do not go out immediately, EVACUATE AND CALL THE FIRE DEPARTMENT.
- NEVER PICK UP A FLAMING PAN – You may be burned.
- DO NOT USE WATER, including wet dishcloths or towels – a violent steam explosion will result.
- Use an extinguisher ONLY if:
- You know you have a Class ABC extinguisher, and you already know how to operate it.
- The fire is small and contained in the area where it started.
- The fire department is being called.
- You can fight the fire with your back to an exit.
aBased on “kitchen firesafety tips” published by NFPA.
Proper maintenance of the Range Hood will assure proper performance of the unit.
INSTALLATION INSTRUCTIONS
WARNING – TO REDUCE THE RISK OF FIRE, ELECTRIC SHOCK, OR INJURY TO PERSONS, OBSERVE THE FOLLOWING:
- Installation work and electrical wiring must be done by qualified person(s) in accordance with all applicable codes and standards, including fire-rated construction.
- Sufficient air is needed for proper combustion and exhausting of gases through the flue (chimney) of fuel burning equipment to prevent back drafting. Follow the heating equipment manufacturer’s guideline and safety standards such as those published by the National Fire Protection Association (NFPA), and the American Society for Heating, Refrigeration and Air Conditioning Engineers (ASHRAE), and the local code authorities.
- When cutting or drilling into wall or ceiling, do not damage electrical wiring and other hidden utilities.
- Ducted fans must always be vented to the outdoors.
- This unit must be grounded.
WARNING – TO REDUCE THE RISK OF FIRE, USE ONLY METAL DUCTWORK.
WARNING – UNDER CERTAIN CIRCUMSTANCES DOMESTIC APPLIANCES MAY BE DANGEROUS.
- Do not check filters with hood working.
- Do not touch the lamps after a prolonged use of the appliance.
- No food must be cooked flambè underneath the hood.
- The use of an unprotected flame is dangerous for the filters and could cause fires.
- Watch constantly the fried food in order to avoid the cooking oil flares up.
- Before performing any mainteinance operation, disconnect the hood from the electrical service.
The manufacturers will not to accept any responsability for eventual damages, because of failure to observe the above instructions.
GENERAL
Carefully read the following important information regarding installation safety and maintenance. Keep this information booklet accessible for further consultations. The appliance has been designed for use in the ducting version (air exhaust to the outside – Fig.1B).

Electric Connection
(Fig.9):

For connection to the power supply refer to the follows:
- BLACK = L line
- WHITE = N neutral
- GREEN/YELLOW = G ground
A double-pole switch properly rated must be installed to provide the range hood power supply disconnection. The appliance must be installed at a minimum height of 26 inches (66 cm) from an electric cooker stove, or 30 inches (76 cm) from gas or combined cooker stoves. If a connection ductwork composed of two parts is used, the upper part must be placed outside the lower part. Do not connect the range hood exhaust duct air to the same duct air used to exhaust hot air or fumes from other appliances other than electrical. Before proceeding with the assembly operations, remove the anti-grease filter(s) (Fig.6) so that the unit is easier to handle.
- We recommend the use of an air exhaust tube which has the same diameter as the air exhaust outlet hole (Ø 8”). If a pipe with a smaller diameter is used, the efficiency of the product may be reduced and its operation may become noisier.
- Fixing to the wall:
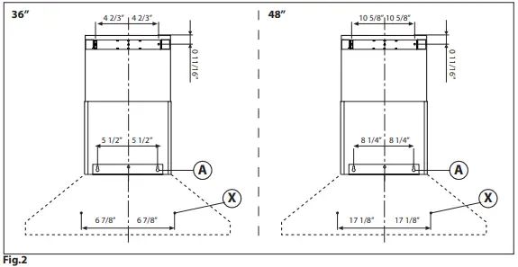
Drill the holes A respecting the distances indicated (Fig.2). Fix the appliance to the wall and align it in horizontal position to the wall units. When the appliance has been adjusted, definitely fix the hood using the screws X (Fig.5). For the various installations use screws and screw anchors suited to the type of wall (e.g. reinforced concrete, plasterboard, etc.). If the screws and screw anchors are provided with the product, check that they are suitable for the type of wall on which the hood is to be fixed. - Fixing the decorative telescopic flue:
Arrange the electrical power supply within the dimensions of the decorative flue. If your appliance is to be installed in the ducting version, prepare the air exhaust opening. Install the upper decorative flue’s support bracket and fix it on the wall using the screws A (Fig.3) so it is in axis with your hood and respecting the distance from the ceiling shown in Fig.2. Connect flange C to air extraction hole via an air extraction pipe (Fig.5).
ATTENTION:
only for models KPH482XT before installing the decorative chimneys, mount the bracket on the upper chimney as shown in figure 2A.
Insert upper decorative flue inside the lower decorative flue and rest them on top of the frame. Extract the upper flue up to the bracket and fix it with the screws B (Fig.3).




USE AND MAINTENANCE
- We recommend that the cooker hood is switched on before any food is cooked. We also recommend that the appliance is left running for 15 minutes after the food is cooked, in order to thoroughly eliminate all contaminated air. The effective performance of the cooker hood depends on constant maintenance; the anti-grease filter require special attention.
- The anti-grease BAFFLE filter: This is a suction system which offers improved perfor-mance with respect to the classic aluminium filters. Its structure means it is able to retain grease particles, thereby reducing noise to a minimum. It should be washed regularly every 15 to 30 days in order to prevent the oil from leaking out; this may be done by hand or using the dishwasher.
- After a few washes, colour alterations may occur. This does not give the right to claim their replacement.
- Clean the hood frequently, both internally and externally, using a cloth dampened with denatured alcohol or neutral liquid detergents that are non abrasive.
- The lighting system is designed for use during cooking and not for the prolonged general lighting of the room. The prolonged use of the lighting system significantly decreases the average duration of the bulbs.
- Attention: the non compliance with the hood cleaning warnings and with the replace-ment and cleaning of the filters entails risk of fires. One therefore recommends keeping to the suggested instructions.
Replacing LED lamps (Fig.7)
The intervention of a specialised technician is necessary to replace them.
• Commands luminous (Fig.8) the key symbols are explained below:


- A = LIGHT
- B = OFF
- C = SPEED I
- D = SPEED II
- E = SPEED III
- F = AUTOMATIC STOP TIMER – 15 minutes (*)
Your appliance has the INTENSIVE speed function, from speed THREE, press key E for 2 seconds and it will be activated for 10 minutes after which it will return to the previously set speed. When the function is active the LED flashes. To interrupt it before the 10 minutes have elapsed, press key E again.
Function Clean air
By pressing key F for two seconds (with the hood switched off) the “clean air” function is activated. This function switches the appliance on for ten minutes every hour at the first speed. As soon as this function is activated the motor starts up at the first speed for ten minutes. During this time key F and key C must flash at the same time. After ten minutes the motor switches off and the LED of key F remains switched on with a fixed light until the motor starts up again at the first speed after fifty minutes and keys F and C start to flash again for ten minutes and so on. By pressing any key for the exclusion of the hood light the hood will return immediately to its normal functioning (e.g. if key D is pressed the “clean air” function is deactivated and the motor moves to the 2nd speed straight away. By pressing key B the function is deactivated).
Function Timer
(*) The “AUTOMATIC STOP TIMER” delays stopping of the hood, which will continue functioning for 15 minutes at the operating speed set at the time this function is activated.
Anti-grease
When the A key flashes with a 2 second frequency the anti-grease filters must be washed. Once the clean filter has been put back one must reset the electronic memory by pressing the A key for approximately 5 seconds until it stops flashing.
ASSISTANCE
Two year limited warranty statement.
WHAT THIS LIMITED WARRANTY COVERS
- The warranties provided by Bertazzoni SpA herein apply exclusively to Bertazzoni ap-pliances and accessories sold as new products to the original owner by an authorized Bertazzoni distributor, retailer, dealer or service center and installed in the United States or Canada. The warranties provided herein are not transferable and are valid from the date of installation.
- The Warranty coverage provided by Bertazzoni SpA (“Bertazzoni”) in this statement ap-plies exclusively to the original Bertazzoni appliance (“Product”) sold to the consumer (“Purchaser”) by an authorized Bertazzoni dealer/distributor/retailer, purchased and installed in the United States, District of Columbia, or Canada which has always remained within the country of original purchase (United States, District of Columbia, or Canada). Warranty coverage is activated on the date of original retail purchase of the Product and has a duration of two (2) years.
- Warranty coverage is non-transferrable. In the event of parts replacement or entire prod-uct replacement, the replacement Product (or parts) shall assume the remaining original Warranty activated with original retail purchase document. This Warranty shall not be extended with respect to such replacement.
Bertazzoni SpA will repair or replace any component/ part which fails or proves defec-tive due to materials and/or workmanship within 2 years from the date of original retail purchase and under conditions of normal residential, non-commercial use. - Repair or replacement will be free of charge, including labor at standard rates and ship-ping expenses. Purchaser is responsible for making the Product reasonably accessible for service. Repair service must be performed by a Bertazzoni Authorized Service company during normal working hours. Labor performed at overtime or premium rates shall not be covered by Warranty.
- IMPORTANT – Retain proof of original purchase to establish warranty period. Bertazzoni’s liability on any claim of any kind, with respect to the goods and/or services provided, shall in no event exceed the value of the goods or service or part thereof which gives origin to the claim.
- 30 Day Cosmetic warranty
Inspection of the product must be made by Purchaser at time of delivery.
Bertazzoni warrants that the Product is free from manufacturing defects in materials and workmanship for a period of thirty (30) days from date of original retail purchase of the Product.
This coverage includes
- Paint blemishes
- Chips
- Macroscopic finish defects Cosmetic warranty does NOT cover:
- issues resulting from incorrect transport, handling and/or installation (i.e: dents, broken, bowed or deformed structures or components, shattered glass components)
- slight color variations in painted/enameled components
- differences caused by natural or artificial lighting, location or other analogous factors
- stains/corrosion/discoloration caused by external substances and/or environmental factors
- labor costs, display, floor, B-stock, out- of-box, “as is” appliances and demo units.
HOW TO OBTAIN SERVICE
To receive warranty service, the Purchaser must contact Bertazzoni Service for problem determination and correct service procedures. Model number, serial number and date of original retail purchase will be requested.
IMPORTANT – Retain proof of original purchase to establish warranty period.
If located in the USA
866 905 0010
hiips://us.bertazzoni.com/more/support
WARRANTY EXCLUSION – WHAT IS NOT COVERED
- Use of the Product in any non-residential, commercial application
- Use of the Product for anything other than its intended scope
- Repair service provided by other than a Bertazzoni authorized service agency.
- Damage or repair service to correct service provided by an unauthorized agency or the use of unauthorized parts.
- Installation not in accordance with local/state/city/ county fire codes, electrical codes, gas codes, plumbing codes, building codes, regulations, or laws.
- Defects or damage due to improper storage of the Product.
- Defects or damage or missing parts on products sold out of the original factory packag-ing or from displays.
- Service calls or repairs to correct the incorrect installation of the product and/or related accessories.
- Replacement of parts/service calls to connect, convert or otherwise repair the electrical wiring and/or gas line to properly use the product.
- Replacement of parts/service calls to provide instructions and education on the use the Product.
- Replacement of parts/service calls to correct issues due to product usage in manner other than what is normal and customary for residential use.
- Replacement of parts/service calls due to wear and tear such as gaskets, knobs, pan supports, shelving, cutlery baskets, buttons, touch displays, scratched or broken ceramic glass tops
- Replacement of parts/service calls for lack of/improper maintenance such as but not limited to: residue build up, stains, scratches, discoloration, corrosion
- Replacement of glass components and light bulbs if claim arises after 30 days from original retail purchase date.
- Defects and damages arising from accidents, alteration, misuse, abuse, improper instal-lation.
- Defects and damages arising from transport, logistics and handling of the Product. Inspection of the product must be made at time of delivery. Any issues from handling, transport and logistics must be notified to selling dealer/delivery company after receipt and inspection.
- Defects and damage arising from external forces beyond the control of Bertazzoni SpA including but not limited to wind, rain, sand, fires, floods, mud slides, freezing temperatures, excessive moisture or extended exposure to humidity, power surges, lightning, structural failures surrounding the appliance and other acts of God.
- Products with altered/damaged/tampered serial number.
In no case shall Bertazzoni be liable or responsible for damage to surrounding property, in-cluding furniture, cabinetry, flooring, panels and other structures surrounding the Product. - Bertazzoni is not liable nor responsible for the Product if located in a remote area or an area where certified trained technicians are not reasonably available. Purchaser must bear any transportation and delivery costs of the Product to the nearest authorized Service center or for the additional displacement rates of a certified trained technician.
- THERE ARE NO EXPRESS WARRANTIES OTHER THAN THOSE LISTED AND DESCRIBED ABOVE, AND NO WARRANTIES WHETHER EXPRESS OR IMPLIED, INCLUDING, BUT NOT LIMITED TO, ANY IMPLIED WARRANTIES OF MERCHANTABILITY OR FITNESS FOR A PARTICULAR PUR-POSE, SHALL APPLY AFTER THE EXPRESS WARRANTY PERIODS STATED ABOVE, AND NO OTHER EXPRESS WARRANTY OR GUARANTEE GIVEN BY ANY PERSON, FIRM OR CORPORA-TION WITH RESPECT TO THIS PRODUCT SHALL BE BINDING ON BERTAZZONI. BERTAZZONI SHALL NOT BE LIABLE FOR LOSS OF REVENUE OR PROFITS, FAILURE TO REALIZE SAVINGS OR OTHER BENEFITS, TIME AWAY FROM WORK, MEALS, LOSS OF FOOD OR BEVERAGES, TRAVEL-ING OR HOTEL EXPENSES, EXPENSES TO RENT OR PURCHASE APPLIANCES, REMODELLING/CONSTRUCTION EXPENSES IN EXCESS OF DIRECT DAMAGES WHICH ARE DEFINITIVELY CAUSED EXCLUSIVELY BY BERTAZZONI, OR ANY OTHER SPECIAL, INCIDENTAL OR CONSE-QUENTIAL DAMAGES CAUSED BY THE USE, MISUSE OR INABILITY TO USE THIS PRODUCT, REGARDLESS OF THE LEGAL THEORY ON WHICH THE CLAIM IS BASED, AND EVEN IF BERTAZ-ZONI HAS BEEN ADVISED OF THE POSSIBILITY OF SUCH DAMAGES. NOR SHALL RECOVERY OF ANY KIND AGAINST BERTAZZONI BE GREATER IN AMOUNT THAN THE PURCHASE PRICE OF THE PRODUCT SOLD BY BERTAZZONI AND CAUSING THE ALLEGED DAMAGE. WITHOUT LIMITING THE FOREGOING, PURCHASER ASSUMES ALL RISK AND LIABILITY FOR LOSS, DAMAGE OR INJURY TO PURCHASER AND PURCHASER’S PROPERTY AND TO OTHERS AND THEIR PROPERTY ARISING OUT OF THE USE, MISUSE OR INABILITY TO USE THIS PRODUCT SOLD BY BERTAZZONI NOT CAUSED DIRECTLY BY THE NEGLIGENCE OF BERTAZZONI. THIS LIMITED WARRANTY SHALL NOT EXTEND TO ANYONE OTHER THAN THE ORIGINAL PUR-CHASER OF THIS PRODUCT, IS NON-TRANSFERABLE AND STATES YOUR EXCLUSIVE REMEDY.
- Bertazzoni does not assume any responsibility for incidental or consequential dam-ages.
Some states do not allow the exclusion or limitation of incidental or consequential damages, so the above limitation or exclusion may not apply to you. This warranty gives you specific legal rights and you may also have other rights which may vary from state to state or province to province.
Any questions about this Limited Warranty may be directed to Bertazzoni Customer Care - If located in the USA
866 905 0010
hiips://us.bertazzoni.com/more/support - If located in CANADA:
800 561 7265
hiips://ca.bertazzoni.com/more/support






















