BERTAZZONI REF30BMBIXLT 15.5 cu. ft. Built-in Bottom Freezer Refrigerator

IMPORTANT
When not otherwise pecified:
- Dimension parentheses are in inches: mm (in)
- Weights in parentheses are in pounds: kg (lb)
- Temperatures in parentheses are in Fahrenheit degrees: °C (°F)
IMPORTANT INSTRUCTIONS
Important safety instructions
Symbols used in the Guide:
- Note
Tips for the correct use of the appliance - Important
Directions to avoid appliance damage - Attention
Directions to prevent
Children safety
DANGER: Risk of child entrapment. Before you throw away your old refrigerator or freezer:
- Take off the doors
- Leave the shelves in place so that children may not easily climb inside.

Attention!
- This appliance must be transported in an upright position. If this was not the case you should leave it upright for 24 hours prior to switch it on.

- Take maximum care during handling to avoid harm to persons and property.

- Secure the top of the appliance to the wall with the two brackets provided with the appliance.

| Description | Integrated |
| Appliance | |
| Fasteners, brackets, screws, wrench for mounting outer panels | |
| Alluminium trims to fill gap between appliance and cabinets | |
| Owner’s Kit (inside the appliance) |
| Description | Maker – Models with Ice Maker |
| Water fill hose (only models with Ice Maker) | |
| Water filter (only models with Ice Maker) | |
| Leveling feet | |
| Anti-tipping brackets, fixing plugs and screws | |
| Appliance cleaning kit | |
| User Manual, Installation Guide, Guarantee Certificate |
Read the User Manual and the Guide attentively and keep it in a safe place.
TECHNICAL REQUIREMENTS
Appliance features and installation requirements
- Appliance dimensions Integrated
- w: 29 15/16″ (761 mm) / h: 83 1/2″ (2120 mm) / d: 24” (610 mm)
- w: 35 15/16″ (913 mm) / h: 83 1/2″ (2120 mm) / d: 24” (610 mm)
- Appliance dimensions Stainless Integrated
- w: 29 15/16″ (761 mm) / h: 83 1/2″ (2120 mm) / d: 24 3/16″ (615 mm)
- w: 35 15/16″ (913 mm) / h: 83 1/2″ (2120 mm) / d: 24 3/16″ (615 mm)
- Appliance dimensions with packaging
- 75 Series w: 31 1/2” (800 mm) / h: 89” (2260 mm) / d: 31 1/2” (800 mm)
- 90 Series w: 37 3/8” (950 mm) / h: 89” (2260 mm) / d: 31 1/2” (800 mm)
- Weight with packaging
- 75 Series up to 606 lb (275 kg)
- 90 Series up to 650 lb (295 kg)
- Voltage 115V, 60Hz
- Power supply cable 3A
- Potable water supply
- pressure
- From 8 PSI to 75 PSI
- Water connection 1/4” attachment
- Provided installation accessories
- Customized panels mounting Kit
- Anti-tipping Kit
- Lateral connecting kit
- 1/8” (4 mm) allen wrench
- Additional equipment necessary
- Phillips head screwdriver
- wood and percussion drill
- 1/8” (2.5 mm) bit for wood
- 3/8” (8 mm) bit for walls
- 3/4” (17 mm) wrench
- Adjusting height of the rear rollers 1/2” (13 mm) socket
Note
Not all models come with an automatic ice maker. Verify if your model is equipped with an ice maker to determine if you require water supply.
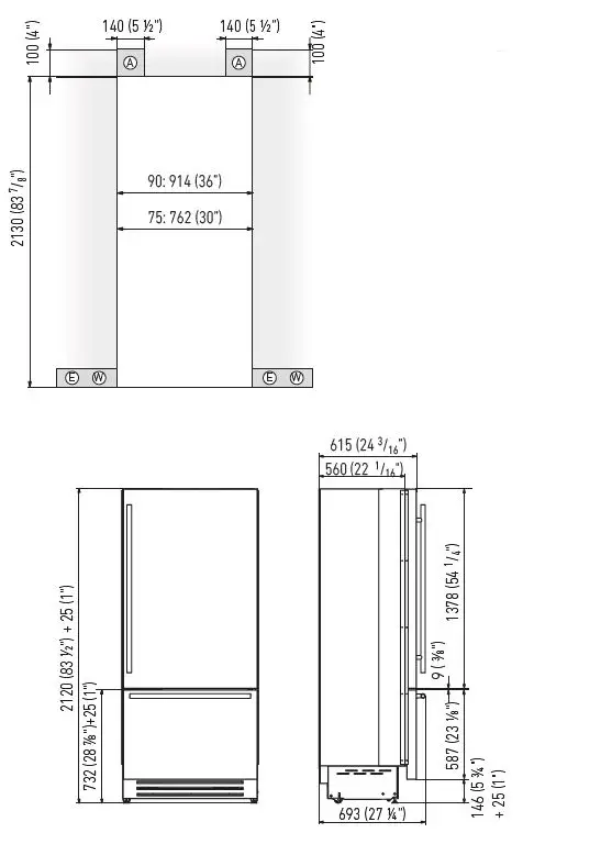
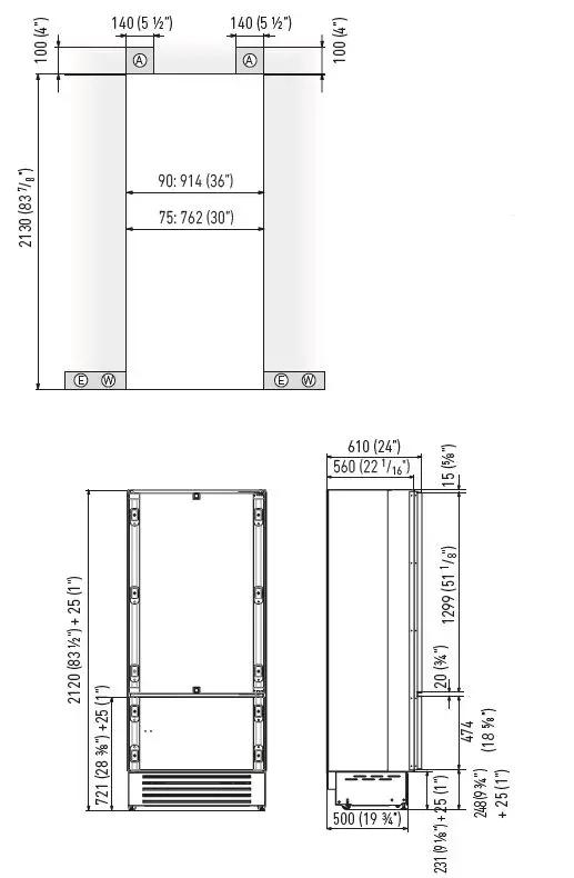
Installation niche features:
Integrated Series
- A – area to be left clear for the anti-tipping brackets
Niche Height
83 7/8″ (2130 mm)
Niche Width
- 36″ (914 mm)
- 30″ (762 mm)

Door Swing Clearance
- 58 7/16″ (1484 mm)
- 52 1/2″ (1333 mm)
Door Opening Angle
- 105°
Width
- 35 15/16″ (913 mm)
- 29 15/16″ (761 mm)
Height
- 83 1/2″ (2120 mm) + 1″ (25 mm)
Depth with door (without panel)
- 24” (610 mm)

Installation niche requirements:
Stainless Integrated Series
- A – area to be left clear for the anti-tipping brackets
Niche Height
- 83 7/8″ (2130 mm)
Niche Width
- 36″ (914 mm)
- 30″ (762 mm)

Door Swing Clearance
- 58 3/8″ (1482 mm)
- 52 3/8″ (1331 mm)
Door Opening Angle
- 105°
Width
- 35 15/16″ (913 mm)
- 29 15/16″ (761 mm)
Height
- 83 1/2″ (2120 mm) + 1″ (25 mm)
Depth with door (with panel)
- 24 3/16″ (615 mm)

PREPARING THE INSTALLATION
Transport to the installation site and unpacking
- The appliance is very heavy. Take maximum care during handling to avoid injury.
- The appliance should always be transported in an erect position. Avoid at all costs leaning it on its front side.

Since this is a large and heavy appliance, before transporting the appliance, check the access to the location where it will be installed (door size, maneuvering space in stairwells, etc.). The appliance is attached to the base of the packa-ging (pallet) through four bolts which can be removed using a 3/4” (19 mm) wrench.
It is recommended to use a manual transporting de-vice to move the appliance to the installation site, and only at this point to remove the base of the packaging. The appliance should always be transported in an erect position. If this is not possible, transport the ap-pliance laying on its rear side. Once at the installation site, the appliance, which is equipped with four wheels, can be taken off the pallet and positioned in the installation area.
Operate as follows:
- Take off the four bolts [ 1 ] securing the appliance to the pallet by means of a 3/4” (19 mm) wrench or socket.
- Remove the fixing brackets [ 3 ] and [ 4 ].
- To remove the front fixing bracket [ 3 ], unscrew for one or two turns the rear wheel adjusting bolt [ 2 ] by means of a 1/2” (13 mm) socket, do not overtighten the nut as it could damage the leveling feet adjusting system.
- From the back of the unit and by means of a suitable, high-duty hand trolley, take off the appliance and place it on the floor. Be mindful of any debris on the floor which could get caught under the rollers and potentially damage the flooring when moving the appliance. Be very careful to avoid any damage to floors. Delicate floors should be protected with plywood, hard cardboard, or similar material panels.
Electrical and water connection
- The Built-in filter cannot make it safe to drink any water which is not suitable for human consumption.
- The appliance should be connected only to a drinkable water supply system.
- Do not use extension cords or adapters. Once the appliance is fully installed, con-nected to the water supply (if applicable) and operational, in the event that the water supply must be turned off, (touch the button on control panel to switch it off) before the main water is shut off to prevent the appliance from entering a ‘NO WATER IN’ alarm state.

The appliances are delivered from the factory for ope-ration at 115V, 60Hz.
Do not connect the refrigerator to any GFCI receptacle. They are provided with a suitable supply cable and plug to be connected to an appropriate 15A socket provided with an effective grounding. A circuit breaker should also be installed and should be easily accessible so that it can be easily switched off before performing any installation or maintenance. To connect to the water supply system (for appliances equipped with ice makers) a 1/4” waterline with ac-cessible shut-off valve must be supplied.
The appliance is provided with a water adapter elbow which is suitable for high water pressure and com-plies the Food Regulations. The water filter cartridge, which is provided with the appliance, should be instal-led according to the accompanying instructions. Use only the new adapter which is supplied with the ap-pliance. The solenoid connection on the appliance is 1/4” diameter but is metric threaded. A standard garden hose threaded connector such as a braided stainless hose found at typical hardware stores will strip or damage the solenoid threads. Use only the supplied 1/4” quick connect elbow adapter for con-necting a 1/4” copper or polyethylene source water line to the appliance.
- Electrical cord length: 98 3/8” (2500 mm)
- Water connection line length: 98 3/8” (2500 mm)
Do not use extension cords and/or multiple adapters for the power supply connection.
ELECTRICAL AND WATER SUPPLY BEHIND THE UNIT INTEGRATED SERIES
Operate as follows:
- Unwind the electric cable and connect it directly to the wall socket.
- Make sure the appliance is in the Stand-by condition and that all lights are off; should it be not so press the Unit button to switch it off.
- Push the 1/4” source waterline fully into the elbow connector thenthread the elbow adapter to the sole-noid at the back of the appliance.
Firmly tighten with fingers – a tool/wrench should not be needed to make a proper seal. Turn on the water and ensure all connections are not leaking prior to pushing the unit into the niche.
Levelling
Adjust the appliance level by means of the front level-ling feetand the rear adjustable wheels.
Operate as follows:
- The grille should ship taped to the back of the appliance. If by chance it is already in place, remove the grille (it is kept in position by magnets), adjust the height of the leveling feet [ 1 ] by means of a 3/4” (17 mm) wrench.
- Then adjust the height of the rear wheels by turning the front adjusting bolts [ 2 ] clockwise or counter-clockwise as it may be required. (Do not use power drivers with high torque settings for this step as it could damage the leveling mechanism)
- Mount the lower ventilation grille only after the unit is finally leveled in the niche.

PANELS MOUNTING
Door and Bottom-Drawer overlay panels layout
The dimensions of the panels are indicated in the table and drawings. Nevertheless, according to the requirements for aligning with other kitchen structures, the door pa-nel can be higher than the upper edge of the re-frigerator door, and the drawer panel can be lower than the edge of the drawer.
The panels must be mounted using special braces which attach to adjustable devices provided on the door and drawer and with brackets that anchor and adjust the panel’s vertical direction. Braces, brackets and fixing screws are provided with the appliance and must be applied to the panel as indicated.
Operate as follows:
To prepare the panels to be mounted on the ap-pliance, follow these steps, working on the back of the panel.
Door panel
- Draw a reference center line, dividing the panel width in half [ 1 ].

- Starting from the bottom edge of the panel, mark the positioning of the brackets [ 2 ].

- Following the corresponding table, mark the out-side and then the inside hole[ 3 ].

- Position the brackets on each set of marks to make sure they are aligned [ 4 ], you may wish to drill pilot holes (pay close attention to the panel’s thickness) [ 5 ]
- Screw the brackets in place [ 6 ].

Drawer panel
- When preparing the Drawer Panel, follow the same instructions as per the door panel, but make sure measurements are taken starting from the top edge[ 7 ]. The support bracket faces the opposite way [ 8 ] (note imgs 4 and 8).

Overlay panels mounting brackets layout
| 90 SERIES | 75 SERIES | |
| A | 35 3/4” (908) | 29 3/4” (756) |
| B | 16 1/2” (418) | 13 1/2” (343) |
| C | 14” (354.5) | 11” (279.5) |
Note
All lateral bracket placement measurements go from the center line to the outside bracket hole.
Vertical adjustment bracket for upper door. Note orientation.
Vertical adjustment bracket for lower drawer. Note orientation.
Holes positions
Panels dimensions
Panels can have thickness ranging between 3/4” (18 mm) and 1 1/8″ (28 mm). Door panels can have a maximum weight 51 lbs (23 kg) and drawer panels may be a maximum weight of 25 lbs (11kg). Exceeding these weights could void your warranty for any service issues which can be attributed to overweight panels. The hinging mechanism on appliances is considered to be `Zero-clearance`. The door and drawer widths specified below assume the minimum niche width is being used and a 3.2 mm (1/8”) reveal is desired around the panels. Adjust your panel dimensions accordingly to your own design criteria considering your niche width and your reveal.
| SERIES | DOOR/DRAWER WIDTH | NICHE WIDTH |
| 90 | 35 3/4” (908) | 36″ (914) |
| 75 | 29 3/4” (756) | 30″ (762) |
Example:
83 7/8″ niche height 36″ niche width 4” toe kick height 1/8” gap desired all around
Door panel:
Width: 35 3/4″ Height: 54 3/4″
Drawer panel:
- Width: 35 3/4″
- Height: 83 7/8″ – 1/8” – 54 3/4″ – 1/8″ – 4″ = 24 7/8″
- With a 6” toe kick, the bottom drawer panel height would become 22 7/8″.
The formula above allows to obtain the freezer drawer panel flush with the toe kick. It is possible to extend the freezer drawer panel by 13/16″ to cover the toe kick more.
Mounting panels to the door and the drawer of Integrated units
Install 1 hanger bolt about 3 threads deep and 1 depth set screw flush to foam gasket in each mounting ca-vity. Once all brackets and small brackets have been applied to the panels, you can begin installing the bottom drawer.
Operate as follows:
- Partially install the adjustment bolt with washer into the two holes in the bottom of the drawer [ 1 ].
- Ensure the L-brackets align with the adjustment bolts on the bottom, place the panel against the drawer face with the hanger brackets above the hanger bolts and allow the panel to drop down. Ensure all the hanger brackets engage the hanger bolts [ 2 ].

- It is now possible to align panels to adjacent cabinets in height using the lower alignment brackets,[ 3 ] tightening or untightening the bolts into position as needed. With the hanger bolts slighty tightened, move the panel sideways to align it to the other panels on the unit or other adjacent structures. Tapping the panel with a rubber mallet is a good way to make small adjustments to the X-alignment of the panel.

- Depth alignment: working from the inside of the drawer, after lifting up the magnetic seal, adjust the panel position so it is closer to or further away from the door using the holes [ 4 ] and then secure the panel using the holes [ 5 ].

Turning in the direction of the thick arrow pulls the panel closer to the door/drawer face, and turning in the direction of the thin arrow pushes the panel away from the face of the door/drawer.
Once the front panel has been adjusted, check that the gasket has been repositioned correctly to as-sure the door/drawer are closing correctly and avoid operational er-rors of the unit.
Mounting panels to the door and the drawer of Integrated units
Operate as follows:
- Ensure the top adjustment L-brackets are aligned and inserted into the cavities at the top of the door [ 6 ].

- At this point, alignment between the panel and adjacent cabinets can be adjusted using the alignment brackets and small brackets [ 7 ] and [ 8 ].

- Vertical alignment: tighten or loosen the screw in the brackets to raise or lower the panel [ 9 ]
- Depth alignment: working from the inside of the door, after lifting up the magnetic seal, adjust the panel position so it is closer to or further away from the door using the holes [ 10 ] and then fix the panel in position using the holes [ 11 ].

Once the front panel has been adjusted, check that the gasket has been repositioned correctly to as-sure the door/drawer are closing correctly and avoid operational errors of the unit.
INSTALLATION
Built-in installation of a single appliance
Once the front panel has been adjusted, check that the gasket has been repositioned correctly to assure the door/drawer are closing correctly and avoid operational errors of the unit.
For a built-in installation, to close gaps between the appliance and the adjacent cabinets, special side profiles (installed) and trim covers (taped to the back of the appliance) are provided. Side profiles are used for fixing the appliance to the niche cabinet and can be shimmed from the side of the appliance in order to match the niche width. (Remove screws holding trim to side of the appliance and place washers between profile and appliance and replace screws for example).
Operate as follows:
- Push the appliance into the installation niche [ 1 ].
- If the unit is to be installed inside a niche or within an enclosed structure, it is not necessary to design a ventilation shaft at the back of the niche as European models come with a top ventilation cap that accommodates sufficient ventilation even though it is behind the overlay panel.
Ensure panels are mounted (BI Series) prior to pushing the appliance all the way into the niche as the panel mounting procedure requires additional height clearance than the niche provides. If for some reason the top ventilation cap has been removed – a minimum 5mm gap must be provided at the top/back of the cabinetry to allow warm air to escape.

- Check the leveling of the appliance, adjusting its feet and wheels to correct it.
- Using the screws provided, secure the appliance to the adjacent cabinets through the holes on the profile side trims [ 2 ].
To make this operation easier keep the door and the drawer open. It may be necessary to hold the door at an approximately 70-degree angle to get the easiest access on the hinge side profile with a screwdriver. - Install the profile trim covers: mate with the face of the appliance and the top of the niche then slide late-rally over the profile trims. It will be necessary to press firmly or use a block and mallet to completely lock the trims into place until a ‘click’ is heard. Take care not to damage the trims. Ensure that the full installation is satisfactory prior to installing the profile trim covers as it is very difficult to remove them without damaging them after installation [ 3 ].

Built-in installation of two or more appliances
- Required accessory to be ordered separately: central connection kit
- Special side profiles and plastic covering frames are provided for closing gaps between the appliance and the adjacent cabinets.
Operate as follows:
- Position the appliances in front of the installation area, leaving enugh space to operate at their back [ 1 ].

IMPORTANT: the appliances must be level with one another.
- Attach both units to each other at the front using the 5 white plastic brackets to hold the units together.
- Adjust the units in the back, so that the side panels are perfectly parallel to each other. There are visual cues that will aid with alignment.
- The gap ( C ) between the units must be the same at the back and top. Measure the gap on all edges and adjust if not equal [ 2 ].
- Once the gap is consistent on all edges, secure the brackets. If the gap between the units is not even, doors will not align properly.

Gap measurements vary according to the types of units installed. Please refer to the table below for correct gap measurements.
Distance between units (A+B)
| Distance between units (A+B) | |||||
| C | A | ||||
| 18” | 24” | 30” | 36” | ||
|
B | 18” | 7/8” (22 mm) | 15/16” (23,5 mm) | 1” (24,5 mm) | 1” (25,5 mm) |
| 24” | 15/16” (23,5 mm) | 1” (25 mm) | 1” (26 mm) | 1 1/16” (27 mm) | |
| 30” | 1” (24,5 mm) | 1” (26 mm) | 1 1/16” (27 mm) | 1 1/8” (28 mm) | |
| 36” | 1” (25,5 mm) | 1 1/16” (27 mm) | 1 1/8” (28 mm) | 1 1/8” (29 mm) | |
Once the appliances have been adjusted and properly leveled, loosen the two screws holding the sealing plate in position.
Lower the plate until flush with the floor, and retighten the screws. This will ensure optimized airflow through the condenser necessary for proper operation [ 3 ].
- Next, join them at the front attaching the plastic connecting brackets with the supplied screws [ 4 ] . Attach the bracket on top of the units (if applicable) as per figure [ 5 ].


- Finish off by mounting the central profile cover onto the central profiles, by pushing it until a click is heard [ 6 ].
- Once completed, push the units into their final position [ 7 ]. Always mount front panels on the door before pushing the unit into its final position inside the cutout or structure.

- Check the leveling of the appliance, adjusting its feet and wheels to correct it.
- Secure the appliance to the adjacent cabinets by fixing to these the side profiles trims factory-installed on the appliance [ 8 ]. To make this operation easier keep the door open.
- Mount the covering frames onto the profiles, first insert them laterally and then push firmly until a “click” is heard [ 9 ].

Take care as appliances will be frontheavy and may tip before they are secured to the adjacent furniture.
Side and central profiles mounting:

COMPLETING THE INSTALLATION
Anti-tipping safety assembly
If the appliance(s) is not connected through the side profile trims to secured cabinetry you must install the anti-tip brackets to ensure the product does not fall forward during use and cause damage or injury. Failing to secure the appliance(s) securely will void any warranty claim attributable to a tipping situation.
Operate as follows:
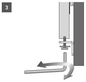
- The brackets should be applied as illustrated us-ing the provided screws If using the anti-tip brackets, lag into wood framing or concrete – drywall will not hold the weight of the appliance. Place a bracket on the top of the appliance in correspondence to the fixing holes and against the wall [ 1 ].

- Mark up the holes position on the wall [ 2 ].

- Drill the wall with an 3/8” (8 mm) bit and insert the expansion plug [ 3 ].

- Reposition the bracket and fix it first to the cabi-net and then to the wall [ 4 ].

In order to use the anti-tip brackets on the top compressor models, it will be neces-sary to temporarily remove the top, metal ceiling / shield to access the bolting points for the brackets./ shield to access the bolt-ing points for the brackets.
Ventilation
PANEL READY AND PANEL INSTALLED MODELS A forced air system assures ventilation through a grille, secured to the unit with magnetic plates, positioned in the lower front part of the unit [ 1 ].
If the kitchen cabinet includes a kickplate, it must be placed in a way to ensure a better airflow [ 2 ].
In case of placing a kickplate differently from pic-ture (2), the kickplate has to be drill at least of an area equal to 50% of the area delimited by A and B dimensions in picture [ 3 ].
The condenser must to be cleaned on a regular basis. In order to do that, the front grille has to be accessible [ 4 ].
Post installation control
- Check that the front leveling feet have been properly installed.
- Check that the connection to the water system does not have any leaks and that the shut-off valve is easily accessible.
- Check that the electrical connection is correctly installed and that the socket and/or breaker are easily accessible.
- Check the perfect alignment of the appliance with adjacent structures.
- Check that all adhesive tape and external or internal temporary protective devices have been removed.
- Check the perfect closing of the doors and the smooth sliding of the drawers and shelves.
Startup
- To start the appliance, connect the plug to the electrical mains: at this point, when opening the door, the control panel will usually visualize the message “Stand by”, and all the panel keys will be off
- To turn on all the appliance compartments, press the Unit button for three seconds. The display will show the message “Initial test” for approximately 2 minutes. After this phase the compressors will start up and remain on until the compartment set temperatures are achieved.. Do bear in mind that this condition could last several hours during which time the display will continue to flash the ‘Start-Up Phase’ message.
- If the appliance is provided with an Ice Maker, prior to switching it on make sure that the water filter cartridge is installed (unless the water supply source is already filtered by other means such as reverse osmosis).

- Purge air from the water lines by performing the ‘Manual Clean’ function from the Menu-
- Functions->Water Filter options. You may need to complete this sequence several times until you stop hearing air sputtering from the ice maker fill tube (Refer to your Use & Care Manual).
- Once you are satisfied that the system is purged of air switch the Ice Maker on by touching the button which will illuminate.
- For further information about the appliance operation, refer to the User Manual.
If at the first start – the message Stand by does not appear, but other messages appear, such as Fridge too warm, Freezer too warm, or sound signals are activated, it means that the appliance has already previously started the cooling process. If this is the case, deactivate any possible acoustic signals by pressing the Alarm button, closing the door, and wait until the set temperature is reached.
It is necessary to let the unit reach the correct temperature before foods are stored inside.
Bertazzoni is constantly researching a new ways to improve the features and the design of its products, therefore models are often upgraded and revised.



















































