STR3065HS Smart Radiant Rangetop With Microwave Drawer Oven
Instruction Manual
STR3065HS Smart Radiant Rangetop With Microwave Drawer Oven
STR3065HS SMART RADIANT RANGETOP WITH MICROWAVE DRAWER™ OVEN
INSTALLATION MANUAL
SPECIAL WARNING
- READ AND SAVE THESE INSTRUCTIONS FOR FUTURE REFERENCE.
- INSTALLATION AND SERVICE MUST BE PERFORMED BY A QUALIFIED INSTALLER.
- IMPORTANT: SAVE THIS INSTALLATION MANUAL FOR LOCAL ELECTRICAL INSPECTOR’S USE.
CLEARANCES AND DIMENSIONS
WARNING
Do not install unit in any combustible cabinetry that is not in accord with the stated clearances and dimensions on page 3.
SAFELY LIFT AND MOVE UNIT
Two people are required to safely lift and move this unit.
UNPACKING APPLIANCE
- Remove all packing materials from inside the unit. DO NOT REMOVE THE WAVEGUIDE COVER located on the top of the unit.

- Remove the feature sticker, if there is one. Check the unit for any damage and ensure all rangetop screws are tight. Damage may include: misaligned or bent drawer; amaged drawer seals and sealing surfaces; broken or loose drawer guides; or dents inside the cavity or on the front side of the drawer. If there is any damage, do not operate the unit and contact your dealer or a SHARP AUTHORIZED SERVICER.
- Record the model and serial number. Open the Microwave Drawer™ Oven fully. The label is beyond the back wall of the microwave oven cavity facing up from the flat surface.
IMPORTANT NOTES TO THE INSTALLER
Leave these instructions with the consumer after installation.
- Read the entire Installation Manual before installing the Smart Radiant Rangetop with Microwave Drawer™ Oven.
- Remove all packing material before connecting the electrical supply.
- Observe all governing codes and ordinances.
- Given dimensions in this manual provide minimum clearance.
- Contact surface must be solid and level.
- Ensure unit installation location has proper electrical supply.
- This unit runs off a single phase, 240V/60Hz AC only electrical supply with ground.
- Minimum distance between rangetop and overhead cabinetry is 30″.
PART INCLUDED
| PARTS | PARTS # | QUANTITY |
| Mounting Screws | LX-CZB073MRE0 | 4 |
| Anti-Tip Bracket | LANGTB471MRP0 | 1 |
| Bracket Screws | LX-CZB073MRE0 | 2 |
| Back Trim | HDEC-B059MRP0 | 1 |
| Trim Screws | XOTWW40P08000 | 2 |
| Magnetic Side Accessory Kit | SKRS00A7FS | 1 |
SUPPLIED BY INSTALLER (NOT INCLUDED)
| PARTS | DIMENSIONS | QUANTITY |
| Mounting Cleats (two-by-four board) | 111/2″ x 3/2″ x 12″(38.1 x 88.9 x 304.8 mm) | 2 |
IMPORTANT NOTES TO THE CONSUMER
Keep this Installation Manual with your Operation Manual for future reference.
- When using any appliance generating heat, safety precautions must be followed. See the Operation Manual for safety precautions and follow them carefully.
- The unit must be installed and grounded properly by a qualified installer or service technician.
- This unit comes equipped for optional Wi-Fi connection. In order to activate the Wi-Fi functionality, the area in which the unit is installed requires a Wi-Fi signal. Please see the Operation Manual for the minimum Wi-Fi requirements.
IMPORTANT SAFETY INSTRUCTIONS
WARNING
If the information in this manual is not followed exactly, a fire or electrical shock may result and could cause property damage, personal injury or death.
- To reduce the risk of tipping, the unit must be secured by a properly installed Anti-Tip bracket.
- This unit must be electrically grounded in accordance with local codes.
- Wall coverings, countertops and cabinets around the unit must be able to withstand heat generated by the unit.
CLEARANCES AND DIMENSIONS
• The dimensions and clearances in this manual indicate minimum clearance required.
• The contact surface of the installation must be solid and level. The surface on which the unit sits must be constructed of plywood strong enough to support 150 lb.
SIDE ACCESSORIES
Transform your Radiant Rangetop into the ultimate workstation with the Stainless Steel Magnetic Side Accessory Kit. Accessories can be placed on either side of the rangetop or attached magnetically to each other on a single side, so you are free to configure your workstation to suit your needs.
The Cooling Surface provides a space to set hot cookware after removing it from the cooktop or oven, and the Spoon Rest provides a space to set utensils while you are cooking. The drip trays of the Spoon Rest are removable for easy cleaning, and all items are dishwasher-safe.
NOTE: An elevated rangetop is recommended for use of Side Accessories. To install the unit with an elevated top, use dimension (A) for the opening height in the figures on pages 3 and 4.
MAGNETIC SIDE ACCESSORY KIT (SKRS00A7FS)
- Includes a Stainless Steel Cooling Rack and Spoon Rest
- Easy to attach magnetic sides
- Dishwasher safe

PREPARE THE CUTOUT OPENINGS
IMPORTANT If the unit will have a plug added for use with an electrical outlet, consider the location of existing outlets when preparing the location of the installation or have a qualified electrician install an electrical outlet at the installation site. Do not use an extension cord with this unit. Please see ELECTRICAL CONNECTIONS on page 7.
Cutout dimensions vary among installation options. Refer to figures on page 4 for the specific cutout opening requirements of your chosen install option. Counters and cabinets vary, so measure cabinetry before installation. Given dimensions are based upon standard dimensions.
STANDARD DIMENSIONS
| Countertop depth | 25″ (635 mm) |
| Countertop height | 36″ (914.4 mm) |
| Countertop thickness | 11/2″ (38.1 mm) |
| Cabinet depth | 24″ (609.6 mm) |
| Cabinet height | 134/2″ (876.3 mm) |
NOTE: To avoid damage to the unit and cabinetry, ensure a minimum 1/2″ clearance between the top of the plywood support surface and any cabinet drawer-front or door-front below the unit.
OPENING WIDTH
All install options require a 30″ (762 mm) wide cutout to accommodate the width of the unit.
OPENING DEPTH
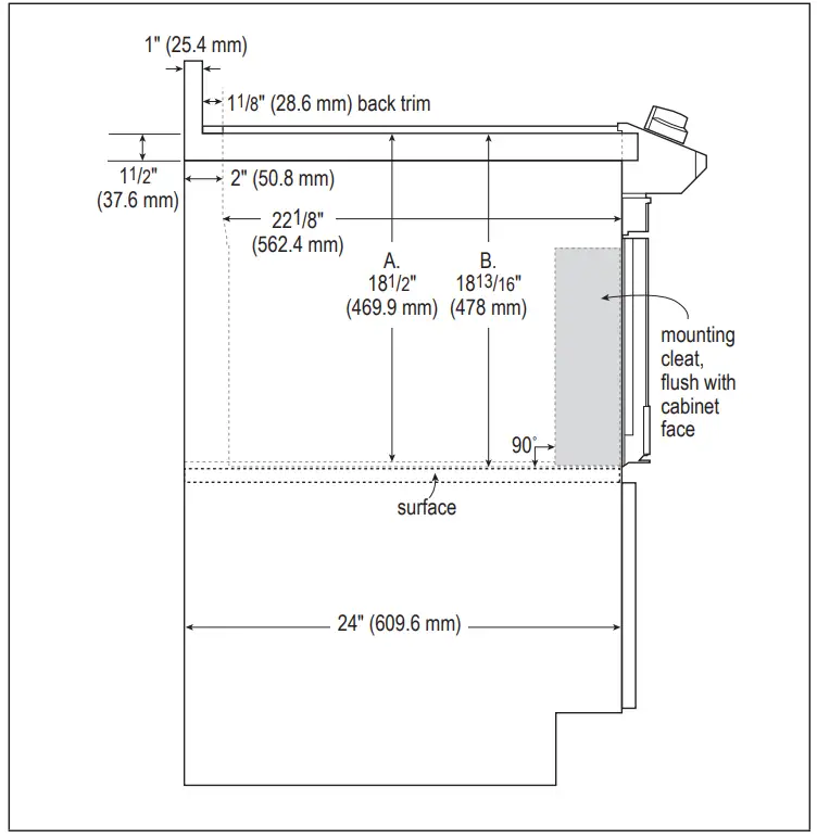
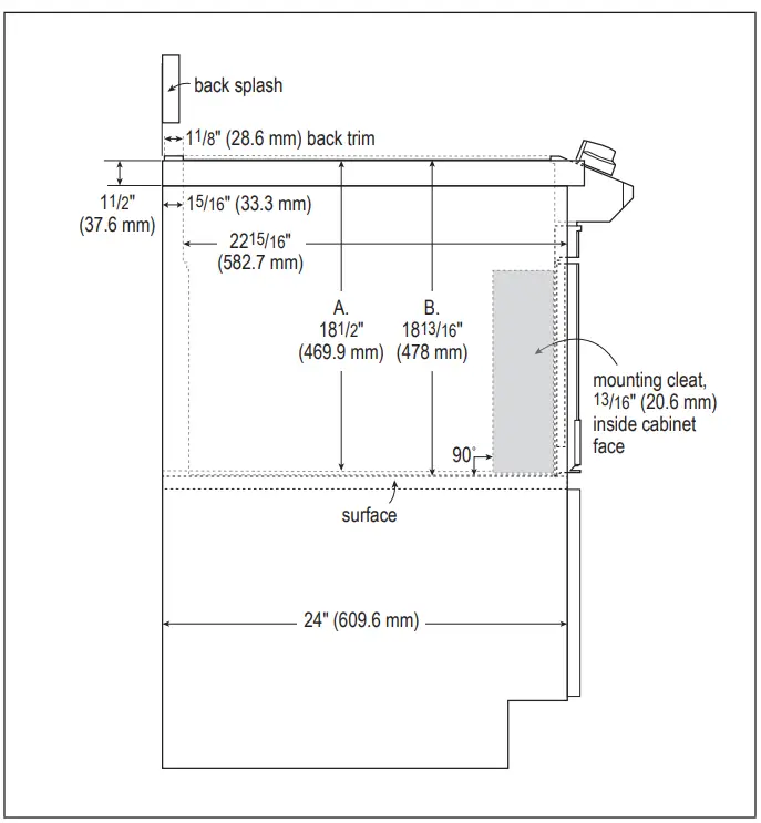
Most countertops overhang 1″ past the cabinet face, but designs vary. Measure the overhang and add its dimension to the cabinet cutout dimension of 22 1/8″ (562.4 mm) to fi nd the total counter top opening.
Back trim can be installed to sit on top of the counter or flush with the countertop. If the backtrim is to be installed flush with the counterop, add 11/8″ (28.6 mm) to the cutout opening.
OPENING HEIGHT
All install options require the installation of a 3 /4″ (19 mm) thick plywood surface to support the unit. The surface must be capable of supporting at least 150 lb. For an elevated top (A), the opening height is 181/2″ (469.9 mm) from the top of the countertop down.
For a flush top (B), the opening height is 1813/16″ (477.5 mm) from the top of the countertop down.
UPPER CABINET CUTOUT
All install options require a vertical clearance of 30″ (762 mm) from rangetop surface to the base of upper cabinets. The cutout opening of upper cabinets must be 30″ (762 mm) wide.
INSTALLATION OPTIONS
Installation of the Smart Radiant Rangetop with Microwave Drawer™ Oven is very customizable. To choose the right installation option, consider the following items:
- The front of the Microwave Drawer™ Oven can be standard, whichis 13/4″ forward of the cabinet face, or flush with the cabinet face.
- The surface of the rangetop can be elevated 5/16″ above the countertop or flush with the countertop.
- Back trim can be included or left off.
How the unit is mounted is a matter of preference and does not affect functionality. However, if you desire to use Side Accessories (not included), an elevated rangetop is recommended. To install with an elevated top, use dimension (A) for the opening height.
Standard Mount with Back Trim
This installation style positions the unit with the Drawer front proudly forward of the cabinet face and includes the use of the optional back trim. The rangetop surface can be elevated (A) or flush (B).
Flush Mount with Back Trim
This installation style positions the unit with the Drawer front flush with the cabinet face and includes the use of the optional back trim. The rangetop surface can be elevated (A) or flush (B).
Flush Mount without Back Trim (Island Installation)
This installation style positions the unit with the Drawer front flush with the cabinet face and does not include back trim. This style is recommended for installation into an island counter. The rangetop surface can be elevated (A) or flush (B).
BEFORE PLACING UNIT
ATTACH MOUNTING CLEATS
All installation options require the use of two 12″ (304.8 mm) twoby-fours as mounting cleats. The two 12″ (304.8 mm) two-by-fours are NOT included and must be
supplied by the installer.
NOTE: As with most dimensional lumber, two-by-four boards are not 2″ x 4″, because they are milled and paned for consistency. A two-by-four is actually 11 /2″ x 31/2″. The true dimensions of the cleats are 11 /2″ x 31 /2″ x 12″ (38.1 mm x 88.9 mm x 304.8 mm).
- Pre-drill two holes in each cleat, roughly 3″ (76.2 mm) from both ends.
- Standard Mount: Position cleats flush with cabinet face. Flush Mount: Position cleats 13/16″ (20.6 mm) recessed from cabinet face.
- Set cleats vertically on the plywood surface with one end flat on the base. With cleats at the correct depth for your chosen install option, attach cleats to the sides of the adjacent cabinets with provided wood screws.
- Use a framing square or other squaring tool to ensure the cleats are attached at a 90° angle to the surface. Adjust if necessary.
ATTACH ANTI-TIP BRACKET
To reduce the risk of tipping the drawer due to abnormal use, the anti-tip bracket must be attached to the plywood surface that will hold the unit. The bracket location is the same for all installation options.
Position the bracket 211/16″ (68.4 mm) from the left adjacent cabinet and 16 1 /4″ (412.5 mm) from the front of the opening. Attach the bracket with provided screws.
When the unit is installed, a lip on the unit will slide under the anti-tip bracket and hold the unit in place.
ATTACH OPTIONAL BACK TRIM
The back trim is an optional piece that can be added for a more built-in appearance. To attach the back trim to the unit, simply screw it into the back of the unit with provided screws.
The height of the back trim is adjustable for various fitment styles. To raise or lower the back trim, loosen the screws slightly and adjust the back trim, then tighten the screws.
ELECTRICAL CONNECTIONS
If codes permit and a separate ground wire is used, it is recommended that a qualified electrical installer determine that the ground path is adequate and wire gauge is in accordance with local codes.
IN U.S.A.
Be sure the electrical connection and wire size are adequate and in conformance with the National Electrical Code, ANSI/ NFPA No. 70-latest edition and all local codes and ordinances. A copy of the above code standards can be obtained from:
National Fire Protection Association nfpa.org/Codes-and-Standards
IN CANADA
Be sure the electrical connection and wire size are adequate and in conformance with CSA standard C22.1, Canadian Electrical Code, Part 1 – latest edition, and all local codes and ordinances.
A copy of the above code standards can be obtained from: Canadian Standards Association csagroup.org/standards
ELECTRICAL REQUIREMENTS
This unit must be supplied with the proper voltage and frequency and connected to an individual, properly grounded branch circuit, protected by a circuit breaker or fuse having amperage as noted on the rating plate.
BREAKER OR FUSE SIZE
| 240V | 40 Amps |
| 208V | 40 Amps |
NOTE: Check local codes for required breaker size.
All electrical wiring and hookup for this unit must be done by a qualifi ed electrician. Make note of the location of the main appliance disconnect.
POWER CONNECTIONS
This unit is manufactured with a neutral (white) power supply wire and a cabinet-connected (green) grounding wire.
Connect the unit cable to the junction box through the UL-listed conduit connector. Complete electrical connection according to local codes and ordinances. See page 3 for junction box or electrical outlet locations.
NOTE TO ELECTRICIAN: The armored cable leads supplied with this unit are UL recognized for connection to larger gauge household wiring. The installation of the leads is rated at temperatures much higher than the temperature rating of household wiring. The current carrying capacity of the conductor is governed by the temperature rating of the installation around the wire, rather than the wire gauge alone.
NOTE:
- The proper size wire nut shall be placed over the stripped leads and the wire nut twisted until the wire nut can not be pulled from the leads. No conductor shall be exposed in the connection.
- Do not shorten the flexible conduit. The conduit strain relief clamp (supplied by installer) must be securely attached to the junction box, and the flexible conduit must be securely attached to the clamp. If the flexible conduit will not fit with the junction box, do not install the unit until a clamp of proper size has been obtained.
WARNING
ELECTRICAL SHOCK HAZARD
- Grounding through the neutral conductor is prohibited for new branch-circuit installations (1996 NEC), mobile homes and recreational vehicles, or in areas where local codes prohibit grounding through the neutral conductor. For installations where grounding through the neutral conductor is prohibited, see the Ungrounded Neutral graphic.
- Use grounding terminal or lead to ground unit.
- Connect neutral terminal or lead to branch circuit neutral in usual manner. Failure to do so could result in death, fire or electric shock.
- The electrical power to the oven branch circuit must be shut off while line connections are being made. Do not use an extension cord with this unit.
- Electrical ground is required on this unit. The free end of the green wire (the ground wire) must be connected to a suitable ground. This wire must remain grounded to the oven.
- If cold water pipe is interrupted by plastic, non metallic gaskets, union connections or other insulating materials, DO NOT use for grounding.
- DO NOT ground to a gas pipe.
- DO NOT have a fuse in the NEUTRAL or GROUNDING circuit. A fuse in the NEUTRAL or GROUNDING circuit could result in an electrical shock.
- If in doubt, have a qualified electrician verify the unit is properly grounded.
- Failure to properly ground the unit could result in death, fire or electric shock.
- Improper connection of aluminum house wiring to copper leads can result in an electrical hazard or fire. Use only connectors designed for joining copper to aluminum and follow manufacturer’s recommended procedure closely.
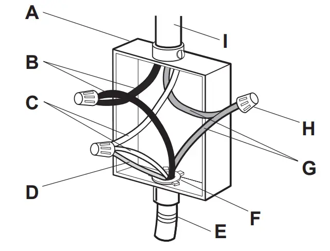
3-WIRE CABLE FROM HOME POWER SUPPLY -U.S. ONLY
IMPORTANT: Use the 3-wire cable from home power supply where local codes permit a 3-wire connection.
GROUNDED NEUTRAL
A Junction Box
B Black Wires
C Neutral (White) Wires
D Ground (Green or Bare) Wire
E Cable from Oven
F UL Listed Conduit Connector
G Red Wires
H UL Listed Wire Connectors
I House Electrical Supply
- Disconnect power before servicing.
- Connect the 2 black wires B together using a UL listed wire connector.
- Connect the 2 neutral (white) wires C and the ground (green or bare) wire D (of the oven cable) using a UL listed wire connector.
- Connect the 2 red wires G together using a UL listed wire connector.
- Install junction box cover.
4-WIRE CABLE FROM HOME POWER SUPPLY
IMPORTANT: Use the 4-wire cable from home power supply in the U.S. where local codes do not allow grounding through neutral, New Branch circuit installations (1996 NEC), mobile homes and recreational vehicles, new construction and in Canada.
UNGROUNDED NEUTRAL
A Junction Box
B Black Wires
C Red Wires
D Cable from Oven
E UL listed or CSA Approved Conduit Connector
F Ground (Green or Bare) Wires
G UL Listed Wire Connectors
H Neutral (White) Wires
I House Electrical Supply
- Disconnect power before servicing.
- Connect the 2 black wires B together using a UL listed wire connector.
- Connect the 2 red wires C together using a UL listed wire connector.
- Connect the 2 neutral (white) wires H together using a UL listed wire connector.
- Connect the ground (green or bare) wire F from the oven cable to the ground (green or bare) wire (in the junction box) using a UL listed wire connector.
- Install junction box cover.
POSITION AND INSTALL UNIT
Two people are required to safely lift, move and install the unit. The unit must be lifted from the right and left sides of the unit by lifting from beneath the rangetop.

- Lift the unit and place the back end on the plywood surface.
- Straighten the unit, then slowly slide it into the opening. The installed anti-tip bracket will hook onto an attached lip and hold the unit in place.
- Open the drawer. Using the 4 holes on the drawer as a template, pre-drill the cabinet using a 1/16″ (1.6 mm) bit.
- Secure the unit with the 4 screws supplied.
MODEL AND SERIAL NUMBER LOCATION
The nameplate includes model and serial number. Open the Microwave Drawer™ Oven fully. The label is beyond the back wall of the microwave oven cavity facing up from the flat surface.
CARE, CLEANING AND MAINTENANCE
Refer to the Operation Manual for cleaning instructions.
BEFORE YOU CALL FOR SERVICE
Read the BEFORE YOU CALL and operating instruction sections in your Operation Manual. It may save you time and expense. The list includes common occurrences that are not the result of defective workmanship or materials in this appliance. Refer to the warranty in your Operation Manual for Sharp’s toll-free service number and address. Please call or write if you have inquiries about your microwave product and/or need to order parts.
SHARP ELECTRONICS CORPORATION
• 100 Paragon Drive • Montvale, New Jersey 07645 • USA
SHARP ELECTRONICS OF CANADA LTD
• 335 Britannia Road East • Mississauga, Ontario • L4Z 1W9 • Canada








![Sharp Microwave Oven [r-651zs] User Manual Sharp Microwave Oven [r-651zs] User Manual](https://static-data1.manualsee.com/1/img/298/17741/2020/12/sharp-microwave-oven-r-651zs-images.png)

![Sharp Convection Microwave Oven User Manual [smc1585bb,smc1585bs,smc1585bw] Sharp Convection Microwave Oven User Manual [smc1585bb,smc1585bs,smc1585bw]](https://static-data1.manualsee.com/1/img/398/60662/2021/02/Sharp-Convection-Microwave-Oven-User-Manual-SMC1585BBSMC1585BSSMC1585BW.jpg)







