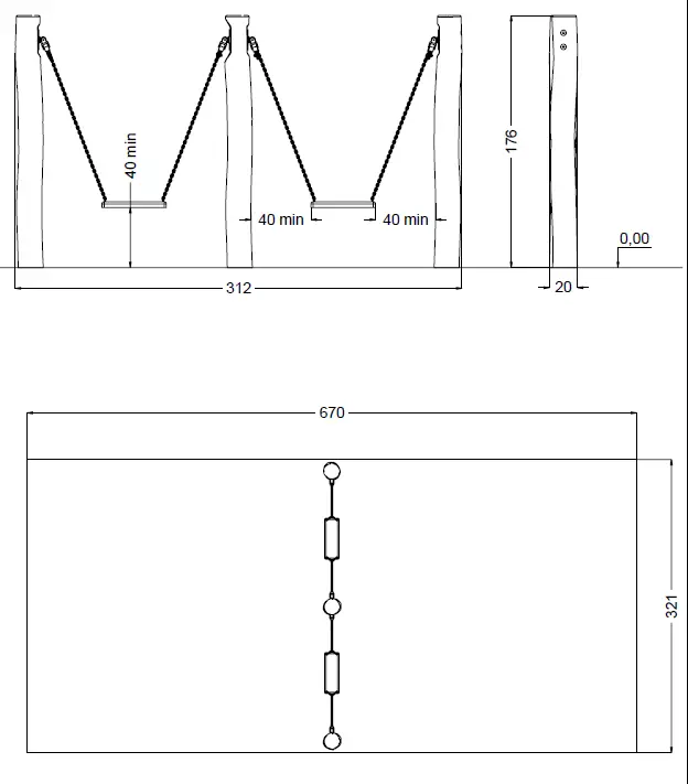
vinci play RB0511 Minigun Double With 2 Silver Sitsar

FEATURES

DIMENSION
WARNING





WARNING





Download manual
Here you can download full pdf version of manual, it may contain additional safety instructions, warranty information, FCC rules, etc.