RoughCam® IPP1377
User Manual
RoughCam-IPP1377 Extremely Robust Network Camera
History of revisions
Product: RoughCam® IPP1377
Title: User Manual for RoughCam® IPP1377
Doc. -Id. 220816-PT10BA-ES-RoughCam-IPP1377_en_rev.00.docx
Author: Eva Schneider, Grad. Eng. (UAS)
Created: 16.08.2022
| Rev. Index | Date | Name | Comment | Approved by |
| 0 | 16.08.2022 | E. Schneider | Compilation of the document | Digital unterschrieben von Alexander Kruse DN: cn=Alexander Kruse, o, ou, email=[email protected], c=DE Datum: 2022.09.13 11:24:43 +02’00’ |
Introduction
The RoughCam IPP1377 is a powerful mega-pixel IP camera of the latest generation, with 5-megapixel resolution at 2592 x 1944 pixels. The camera has a high-definition television resolution and it is equipped with a powerful remote zoom and focus lens (with iCS).
The RoughCam series is suitable for indoor as well as outdoor applications. It is extremely robust and therefore perfect for even the roughest industrial conditions. The stainless steel housing allows additional alloys, a powder coating, or coats of varnishes as well as various mechanical accessories in order to extend the resistance towards extreme environmental conditions (salt water, acid, solar radiation, high mechanical strains etc.). Due to the usage of high-quality PTFE sealings, not only the protection level IP 66/68 is reached but also the chemical resistance is maximized. For further information please visit our website at www.samcon.eu.
When designing the RoughCam IPP1377, we focused very much on safety, mechanical precision and a high quality stainless steel.
Technical data
2.1 Illustration of the model key
| 1) Productname | 2) Type | 3) Housing-combination | 4) Temp.- range | 5) Cable length [m] | 6) Cable termin. |
| RoughCam IPP1377 | T10- | VA2.3.K3.BOR2- | N.H- | 005.N- | P- |
| T10- | VA2.3.K3.BOR2- | N.H- | 005.N- | T- | |
| T10- | VA2.3.K3.BOR2- | N.H- | 005.A- | P- | |
| T10- | VA2.3.K3.BOR2- | N.H- | 005.A- | T- | |
| T10- | VA2.3.K3.BOR2- | LL.H- | 005.N- | P- | |
| T10- | VA2.3.K3.BOR2- | LL.H- | 005.N- | T- | |
| T10- | VA2.3.K3.BOR2- | LL.H- | 005.A- | P- | |
| T10- | VA2.3.K3.BOR2- | LL.H- | 005.A- | T- |
Tab. 2-1 Model key
Explanations:
- RoughCam IPP1377 = Functional camera description of the RoughCam Series (technical data/ specification of the individual camera module)
- T10 = SAMCON Production- Type 10, (for safe areas)
- VA2.3.K3.BOR2 = T11 housing (stainless steel 1.4404) with large diameter ØVA2=113mm)
VA2.3.K3.BOR2 = T11 VA2.3 housing with maximum body length (L.R = 310mm)
VA2.3.K3.BOR2 = K3 cable gland flange
VA2.3.K3.BOR2 = Borosilicate sight glass DIN7080 (standard, for video cameras within visible spectral range: λ = 350…2000 [nm] and photografical infrared range (NIR), not suitable for thermographic applications (MIR/ FIR) - N.X = Normal ambient temperature range, no heater installed (Tamb > -10°C)
N.H= High temperature (Tamb < +60°C)
LL.H= PTC heater installed (Tamb > -60°C)
LL.H= High temperature battery installed (Tamb < +60°C) - 005.N = Length of the connection line in meter at delivery; 5m is the standard cable length, max. cable length is: 005…100 [m]
005.N = Non armoured cable
005.A = Armoured cable - P = Plug- termination (standard)
CAT6, RJ-45 network plug (heavy duty), AWG 26-22, contact assignment acc. To specification EIA/TIA-568B
T = Terminal Box termination (optional)
4 x PoE Mode A connection (camera PoE)
24VDC (Heater) (see chapter electrical connection)
2.2 Electrical parameters of the camera
Supply of 24 V DC for the heating:
Voltage supply: 24 V DC
Power consumption: approx. 40W@-60°C (temperature-dependent)
Power supply of the camera over Ethernet (PoE):
Voltage supply: PoE, IEEE 802.3af/802.3at type 1 class 3
Reference voltage: +48 V DC (44…54 V DC)
Maximum power consumption: 10.7 W
Typical power consumption: 5.4 W
2.3 Connection cable
Description: Data transfer and power supply of the camera module (compliant with DIN EN 60079-14)
Jacket colour: Green (GN), similar to RAL3001
2.3.1 Connection cable for models without heater (SKD01-T/ASKD02-T)
Systemcable SKD01-T:
Outside diameter: 9.1 ± 0.2 mm
Bending radius: 10 x Da when installed, 5 x Da after relocation
Data line: 4 x 2 x AWG22/1 CAT.6
Properties: PUR halogen-free, flame-retardant, UVresistant, chemical resistance, shielded

Systemcable ASKD02-T:
Outside diameter: 12.0 ± 0.4 mm
Bending radius: 20 x Da when installed and 10 x Da after relocation
Data line: 4 x 2 x AWG23/1 CAT.6
Properties: PUR halogen-free, flame-retardant, UVresistant, chemical resistance, shielded (see www.samcon.eu)
Quicklink:
https://www.samcon.eu/fileadmin/documents/en/60-Assembling%26mounting/ASKD02-T_Datasheet.pdf

2.3.2 Connection cable for models with heater (SKDP03-T/ASKDP03-T)
Systemcable SKDP03-T:
Outside diameter: 12.40 ± 0.3 mm
Bending radius: 8 x Da when installed and 4 x Da after relocation
Data line: 4 x 2 x AWG23/1 CAT.6
Performance elements: 3G1.5 (BK-BU-GN/YE)
Properties: PUR halogen-free, flame-retardant, UVresistant, chemical resistance, shielded
Quick link:
https://www.samcon.eu/fileadmin/documents/en/60-Assembling%26mounting/SKDP03-T_Datasheet.pdf

https://www.samcon.eu/fileadmin/documents/en/60-Assembling%26mounting/ASKDP03-T_Datasheet.pdf
Systemcable ASKDP03-T:
Outside diameter: 15.50 ± 0.6 mm
Bending radius: 15 x Da when installed and 10 x Da after relocation
Data line: 4 x 2 x AWG23/1 CAT.6
Performance elements: 3G1.5 (BK-BU-GN/YE)
Properties: PUR halogen-free, flame-retardant, UVresistant, chemical resistance, shielded
Quicklink:
https://www.samcon.eu/fileadmin/documents/en/60-Assembling%26mounting/ASKDP03-T_Datasheet.pdf

2.4 Video-technical characteristics
We use the AXIS P1377 network camera in our enclosure. For details, please refer to the Product Documentation, video-technical data of AXIS®:
https://www.axis.com/products/axis-p1377
2.5 Other technical data
Protection class: IP 66/68 (IEC /EN 60529)
Transport/storage temperature: -40°C…+65°C
Ambient temperature: -10°C…+60°C (Type…N.H)
-60°C…+60°C (Type…LL.H)
| Camera | Terminal box | |
| Permissible ambient temperature | -10°C … +60°C (for PoE power supply) -60°C … +60°C (In the event of additional 24 V DC power supply) | -60°C … +55°C |
| Protection class as per EN 60529/IEC 529 | IP66/68 (Test conditions: 24h/3m water column 5°C) | IP66 |
| Housing material | stainless steel, mat. no. 1.4404 | polyester resin |
| Weight | about 7.8 kg | about 1 kg |
| Dimensions | D113mm x 310mm | 145mm x 145mm x 71mm |
Tab. 2-2. Other technical data
Safety Instructions
Please observe the national safety regulations and regulations for prevention of accidents, as well as to the safety instructions given below in this User Manual!
Attention! Repairs may only be carried out by using original parts from the manufacturer. Repairs may only be carried out in accordance with the nationally applied regulations and exclusively by the manufacturer.
Attention! Prior to installation, take external sources of heat or cold into account! The temperature ranges prescribed for storage, transport and operating must be adhered to!
Installation
For erecting and operating the camera, the relevant national regulations, as well as the generally accepted rules of technology shall prevail. Before mounting the camera, thoroughly check it for any transport damage, especially on the housing and cable. Installation, electrical connection and the first start must only be carried out by qualified specialists.
Work preparation:
Attention!
Prepare your work carefully and in accordance with the relevant regulations.
To ensure the best image quality delivered by the network camera, plan the installation site carefully (consider light conditions, object distance or size, angle and minimum object distance to the focus).
- Use appropriate tools and aids.
- When working, ensure a safe stand.
- Make sure that any static charge is avoided.
Attention!
Please observe the national security, installation and accident prevention regulations and the safety instructions in this User Manual!
The RoughCam® IPP1377 consists of a camera housing and, optionally (models with a terminal box …-T), a terminal box. Both units are connected via a reinforced 5 m cable.
Mount the camera according to the desired field of view. Install the terminal box so that a good accessibility is provided, in order to facilitate electrical connection.
Attention!
Please pay attention to the national and local regulations for mounting heavy loads. If in doubt, take appropriate security measures.
Drawings for drill hole patterns and further information can be viewed on our product page:
Quick link: https://www.samcon.eu/en/products/roughcam/roughcam-ipp1377/
https://www.samcon.eu/en/products/roughcam/roughcam-ipp1377/
Option mounting accessories
| Wall bracket WMB-… | ![]() | WALL MOUNT BRACKET WMB-VA2.3 Wall bracket for devices of T10-VA2.3 series Suitable for hanging the camera on walls. Material: stainless steel 1.4404 Load bearing: 45 kg Dimensions: 445 x 140 x 185 mm |
| Weather protection roof WPR-… | `![]() | WEATHER PROTECTION ROOF WPR-VA2.3 Weathershield for cameras of the T10-VA2.3Series |
| Pole adapter PMB-… | ![]() | WALL MOUNT BRACKET PMB-VA2.3 Pole adapter for VA wall mount Material: stainless steel 1.4404 Suitable for pole diameters between 50 and 105 mm Load-bearing capacity: 45 kg Dimensions:120 x 180 (x 130 bei Mast Ø 60 mm) |
Tab. 4-1 Mounting Accessories
Electrical connection
Attention!
The electrical connection of the equipment may only be carried out by qualified and skilled personnel!
Attention!
It is absolutely necessary to ground the RoughCam® series’ housing via the PA connection.
The delivered RoughCam® IPP1377 is equipped with an electrical connection cable of the type SKD01-T/ASKD02-T (models N.H) or the type (A)SKDP03-T (models LL.H). The maximum transmission range from the camera to the next active network interface is 100 meters and can be individually specified by the client. The user is NOT authorised to do electrical connection procedures inside the enclosure.
5.1 Potential equalization
The potential equalization/grounding of the camera body is absolutely necessary, in order to avoid static charges and thus formation of sparks. For this purpose, a screw terminal is provided at the rear side, at the bottom (right) (see Figure 5.1). The cross-section of the equipotential bonding should comply with the National Ground Rules (at least 4 mm2).

Wiring table:
| Potential | Colour (IEC 60757) | Crosssection | Comment |
| PA | GN/YE | 4 mm2 (rigid) | Terminal: slotted screw M4x0.7 (DIN 84) with washer Ø9mm (DIN 125A), Keep 3Nm tightening torque! |
5.2 Connection and Fusing

The green system cable is intended for communication and data transfer to the connected network devices and, at the same time, for voltage supply (PoE) to the camera. To ensure the power supply of RoughCam IPP1377 (Powered Device/ PD), it is necessary to make sure that the power-over-Ethernet provider (Power Sourcing Equipment/ PSE) on the connection side (for example PoE Midspan PoE injector, switch, etc.) fulfils the specification IEEE 802.3af and 802.3at type 1 Class 3 (“classification current: 26-30 mA @48VDC, max. feed-in power (power source equipment): 15.4 W, maximum offtake (power device): 6.49 – 12.95 W”). The data transfer of the RoughCam IPP1377 series is done via a 100 Mbit/s Ethernet connection (100BASE-TX).
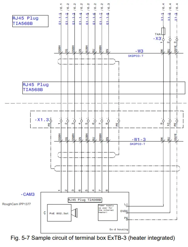
The figures 5.3 and 5.4 illustrate the potential cable terminations of the RoughCam IPP1377. Possible terminations are: terminal box or plug.

Video Tutorial:
Please view our video tutorial: “SAMCON 01 Wiring the cable SKDP03-T to the junction box ExTB-3” https://go.samcon.eu/v01
https://www.youtube.com/watch?v=lqd5fsS7MsM

The pin assignment of the SKD01-T is executed in accordance with the standard EIA/TIA-568B for 100BaseTX and 24VDC, as follows:
| Camera (T568B) | Colour SKDO1-T (IEC60757) | Terminal | Cross-sectional surface | Comment |
| Tx+ | WH / OG | 1 | 0.26 mm² | Solid conductor |
| Tx- | OG | 2 | 0.26 mm² | Solid conductor |
| Rx+ | WH / GN | 3 | 0.26 mm² | Solid conductor |
| Rx- | GN | 4 | 0.26 mm² | Solid conductor |
| (PoE +48 VDC) | WH / BU | 5 | 0.26 mm² | Solid conductor |
| (PoE +48 VDC) | BU | 6 | 0.26 mm² | Solid conductor |
| (PoE GND) | WH / BN | 7 | 0.26 mm² | Solid conductor |
| (PoE GND) | BN | 8 | 0.26 mm² | Solid conductor |
| GND/SHD | YE / GN | PE | 2.5 mm² | Flex |
Tab. 5-2. Wire assignment of terminal box (without heater)
The pin assignment of the ASKD02-T is executed in accordance with the standard EIA/TIA-568B for 100BaseTX and 24VDC, as follows:
| Camera (T568B) | Colour ASKDO2-T (IEC60757) | Terminal | Cross-sectional surface | Comment |
| Reinforcement | YE / GN | PE | 2.5 mm² | Flex |
| Tx+ | WH / OG | 1 | 0.26 mm² | Solid conductor |
| Tx- | OG | 2 | 0.26 mm² | Solid conductor |
| Rx+ | WH / GN | 3 | 0.26 mm² | Solid conductor |
| Rx- | GN | 4 | 0.26 mm² | Solid conductor |
| (PoE +48 VDC) | WH / BU | 5 | 0.26 mm² | Solid conductor |
| (PoE +48 VDC) | BU | 6 | 0.26 mm² | Solid conductor |
| (PoE GND) | WH / BN | 7 | 0.26 mm² | Solid conductor |
| (PoE GND) | BN | 8 | 0.26 mm² | Solid conductor |
| GND/SHD | YE / GN | PE | 2.5 mm² | Flex |
Tab. 5-3 Wire assignment of terminal box (model N/ASKD02-T)
The pin assignment of the SKDP03-T is executed in accordance with the standard EIA/TIA-568B for 100BaseTX and 24VDC, as follows:
| Camera (T568B) | Colour SKDP03-T (IEC60757) | Terminal | Cross-sectional surface | Comment |
| Tx+ | WH / OG | 1 | 0.26 mm² | Solid conductor |
| Tx- | OG | 2 | 0.26 mm² | Solid conductor |
| Rx+ | WH / GN | 3 | 0.26 mm² | Solid conductor |
| Rx- | GN | 4 | 0.26 mm² | Solid conductor |
| (PoE +48 VDC) | WH / BU | 5 | 0.26 mm² | Solid conductor |
| (PoE +48 VDC) | BU | 6 | 0.26 mm² | Solid conductor |
| (PoE GND) | WH / BN | 7 | 0.26 mm² | Solid conductor |
| (PoE GND) | BN | 8 | 0.26 mm² | Solid conductor |
| GND/SHD | YE / GN | PE | 2.5 mm² | Flex |
| L+ | BK | 9 | 1.5 mm² | L+ 24VDC |
| L- | BU | 10 | 1.5 mm² | L- 24VDC |
| PE | YE / GN | PE | 1.5 mm² | PE |
Tab. 5-4. Wire assignment of terminal box (integrated heater)
The pin assignment of the ASKDP03-T is executed in accordance with the standard EIA/TIA-568B for 100BaseTX and 24VDC, as follows:
| Camera (T568B) | Colour ASKDP03-T (IEC60757) | Terminal | Cross-sectional surface | Comment |
| Reinforcement | YE / GN | PE | 2.5 mm² | Flex |
| Tx+ | WH / OG | 1 | 0.26 mm² | Solid conductor |
| Tx- | OG | 2 | 0.26 mm² | Solid conductor |
| Rx+ | WH / GN | 3 | 0.26 mm² | Solid conductor |
| Rx- | GN | 4 | 0.26 mm² | Solid conductor |
| (PoE +48 VDC) | WH / BU | 5 | 0.26 mm² | Solid conductor |
| (PoE +48 VDC) | BU | 6 | 0.26 mm² | Solid conductor |
| (PoE GND) | WH / BN | 7 | 0.26 mm² | Solid conductor |
| (PoE GND) | BN | 8 | 0.26 mm² | Solid conductor |
| GND/SHD | YE / GN | PE | 2.5 mm² | Flex |
| L+ | BK | 9 | 1.5 mm² | L+ 24VDC |
| L- | BU | 10 | 1.5 mm² | L- 24VDC |
| PE | YE / GN | PE | 1.5 mm² | PE |
Tab. 5-5 Wire assignment of terminal box (model LL/ASKDP03-T)



Attention!
Introduce the foiling up to about 15 mm close to the terminals, in order to prevent alien crosstalk. Make sure that the foiling cannot cause any short circuit of the data pairs!
Attention!
Bring the twisted pair composite up to about 10 mm close to the terminals, in order to ensure interference immunity.
Attention!
Use only terminals approved by SAMCON.
Attention!
Finally, check your network installation with a Class-D Link Test.
5.2.1 Fusing
PoE power supply requires no fuses.
The power supply fusing depends on the cable cross-section and length.
Attention!
Recommendation for fusing relates to 40W@24VDC at 100 meters 1.5 mm²
Attention!
When the heating switches on, high current peaks occur! Use slowblow fuses.
Attention!
Please pay attention to the national and international regulations regarding selectivity and line protection.
| Potential/Wire no. | Colour (IEC60757) | Conductor | Voltage | Maximum power consump-tion/fusing: |
| L+ / 1 | BK | 1.5mm2, stranded wire | +24 V DC | 40 W of continuous power Fine-wire fuse (L+) 4000 mA -T- slow-blow (high inrush load!) |
| L- / 2 | BU | 1.5mm2, stranded wire | 0 VDC / GND | |
| PE | YE/GN | 1.5mm2, stranded wire | PE |
Tab. 5-6 Recommendation for fusing
5.2.2 Plug assignments (RJ45)
The data transfer of the RoughCam IPP1377 uses a 100 Mbit/s Ethernet connection (100BASE-TX). If the cable termination uses a plug, the latter should be plugged into the RJ45 PoE slot of the network device (PSE). Prior to connecting it to the camera, the network device (PSE) can already be supplied with power, hence there is no „power ON“ priority which has to be observed.
Attention!
Use appropriate RJ45 plugs! Check the cable shielding, cross-section and the outside diameter!
Attention!
It is imperative to ensure a correct routing of the individual wires according to the EIA/TIA-568B”
Attention!
Finally, check your network installation with a Class-D Link Test.
Detailed instructions on how to connect a RJ45 plug are available in our video tutorial: “SAMCON 03 Mounting and installing the RJ45 jack to SAMCON cables” https://go.samcon.eu/v03

https://www.youtube.com/watch?v=LOJ_7drrn4E&feature=youtu.be
5.2.3 Tests prior to switching on the voltage
Attention!
Prior to starting the device, perform all tests as indicated by the national regulations.
Furthermore, check the correct function and installation of the device in accordance with this User Manual and other applicable regulations.
Attention!
Incorrect installation and operation of the camera may lead to a loss of warranty!
Attention!
Do not switch on the camera at temperatures below 0°C!
Working inside the camera housing
The customer may open the housing only if it is absolutely necessary. Only exchanging the SD memory card or a hardware reset are reasons for this. Open the housing carefully!
After having finished the work, securely re-close it!
To do this, you need to proceed step by step, as described in the instructions below.
6.1 Work preparation:
Attention!
Prepare your work carefully and in accordance with the relevant regulations.
6.2 Opening the housing
If the RoughCam IPP1377 is equipped with a weather protection roof (optional accessory), remove the roof before you start working!
To do so, untighten the 4x12mm lens screws M4*0.7 at the front and rear sides of the bracket holders (Fig. 6-1).

To open the RoughCam IPP1377’s stainless steel housing (T11 VA2.3.x.x) of, loosen the eight cylinder-head hexagon screws (DIN 912/ ISO 4762) together with their spring rings (DIN 127A) on the rear side of the cable and power supply flange (see Fig. 6-3).
Caution: Do not touch the screw threads with your skin or clothes! On the threads, there is LOCTITE® 243™ (chemical basis is dimethacrylate ester) applied to prevent the bolted connection from unintentional loosening because of impacts and vibrations and to seal them tightly. It is not permitted for the customer to open the front-side sight glass flange! There is no need of such an action.
Carefully pull out the cable and supply flange to the rear, as straight as possible. Because of negative pressure, it may be difficult to remove the flange.

Attention: The mounting adapter with the housing’s PTC heater, camera module and optics, as well as the CB06 temperature control and (if applicable) auxiliary relays and terminal box are fixed on the cable and supply flange. Dealing with these components, too, you have to work very carefully and precisely in order to avoid canting and damage to the in-built components! Caution: Do not touch the cylindrical fit surface with your skin or clothes! On the surface, there is oil lubricating paste to protect the surface against fretting corrosion and mechanical stresses. When you open the housing, heed that you do not damage the GYLON® flat seal (blue, RAL5012) and do not make it dirty. The flat gasket is loosely attached to the cable and power supply flange. It is fixed only by the bolted connections!
Fig. 6-4. Mounting adapter with built-in components
| 1 MicroSD card slot 2 Status LED 3 Built-in microphone. 4 Zoom slider 5 Setting screw for the focus ring 6 Focus ring 7 Power supply (DC) 8 I/O port 9 Iris connector | 10 RS48S/422 port 11 Power LED 12 Network LED 13 Control key 14 Safety slot 15 Audio input 16 Audio output 17 Network connection port (PoE) |
6.3 Removing/inserting a SD memory card
Note:
The RoughCam IPP1377 disposes of a micro SDHC memory card slot (see Fig. 6-4 1).
Saved video files can be played and deleted via the web interface. They are also available in a download list.
Moreover, the videos available on the memory card can also be accessed via an FTP server in the network.
If the memory card has to be replaced by the user, it should be, as far as possible, empty and pre-formatted with an ext4 or vFAT file system.
When touching electrical components, observe potential equalization (grounding of the body): carry electrostatic-discharge clothes, a PE wristband etc.!
6.4 Status LED
The user can see the Status LED (Fig. 6-4) only if the camera housing is open.
6.5 Hardware Reset
To re-set all parameters of the RoughCam IPP1377 (including the IP address) to default setting, a hardware reset has to be carried out.
The parameters can be either reset via the web interface or manually. If the camera in the network can no longer be reached or its state is uncontrollable, the reset should be performed manually. To do so, proceed as follows:
- Disconnect the camera installation module (Axis P1377) from the power supply.
- Press and hold the control button 13 (see the illustration 6-4) and, at the same time, connect the system to the voltage supply (PoE).
- Press and hold the control button until status indicator 2 (Fig. 6-4) lights yellow (wait about 30 seconds).
- Release the control button. When the status indicator lights green (it can take about 1 minute), P1377 will be reset to the factory settings axis. If there is a DHCP server in the network, the IP address will be the following: 192.168.0.90 (subnet masking 255.255.255.0).
- IP address and password can be redefined. If the hardware reset is not satisfactory, or the network camera shows serious conflicts, or does not work as usually (errors in the browser visualisation, frozen images, control commands no longer processed, slowing down of the system, etc.), it may be necessary to re-install the current firmware, or to install an update (see Chapter 7).
6.6 Closing of the pressure-resistant housing
For closing the housing, proceed in reverse order as when opening. Use exclusively original screws included in the supply. The cable and power-supply flange (K3) is fixed by 8 cylinder-head screws M4*0.7 (ISO metric right-turning) with 12 mm thread length (DIN 912/ ISO 4762, grade 6g). Materials of bolted connections are identical to the stainless steel housing (standard material no. 1.4404 AISI316L).
Attention!
Do not lock-in any foreign objects in the housing.
Dismantled screw locks (spring washers DIN 127A) must be used again. The GYLON® gasket must be used in undamaged condition, according to the flange hole pattern, and placed between the flange and the body. The lateral position of the flat surface/ contact surface is arbitrary.
If, when closing the housing, you see that the surface of the fitting gap is dirty or insufficiently lubricated, clean it with a clean cloth and de-grease it with a suitable cleaning agent. Then re-grease it with lubricant suitable for this specific application (e.g., Molykote® P-40 gel for standard applications or special grease OKS 403 in the event of heavy seawater influence).
The screwed connections of flange and body components must always be tightened crosswise at a torque of 3 Nm! Do not tighten the screws too strongly! It can cause rupture of the cylinder head!
Cylinder-head bolts for connection of the camera body with the flange component must always be tightened at a 3 Nm torque – crosswise and evenly!
6.7 Battery
RoughCam IPP1377 is equipped with a high-temperature resistant Panasonic button cell BR2330A/VAN. This cell supplies energy to the internal real time clock (RTC). The customer is not allowed to replace the battery!
In this case, please contact the manufacturer.
Settings of the lens
The RoughCam IPP1377 lens can be set up only via the web interface or the visualization software.
The user cannot do any mechanical settings on at remote zoom lens. To configure the focus and tele-range, you can use the control function (slider) via the web interface and mouse command (see Fig. 7-1).

This step is only necessary if the camera factory settings are unsatisfactory, or if user settings (focus, sharpness, digital zoom, etc.) to be done via the web interface do not allow the user to achieve the desired results.
| P 1377 | |
| Lens type | Varifocal, IR-corrected, CS-mount, mega-pixel |
| Iris control | ICS iris, F1.2/ 2.7 mm |
| aspherical technology | No |
| Focal length | 2.8 — 8.5 mm |
| Image angle, horizontal | 103° (wide) – 38° (tele) |
| Control characteristic (iris) | automatic (the camera module contains an analogue circuit) |
| MOD (min. object distance) | 0.30 m (wide) 1.00 m (tele) |
Tab.7-1 Lens Data
Please note!
If not agreed otherwise, the RoughCam® IPP1377 is pre-configured by the manufacturer to the maximum sensor resolution and low image compression (high image quality and high network bandwidth). The focus is optimized for objects at approximately 10 metres distance.
The focus of the RoughCam IPP1377 network camera is optimised by the manufacturer to about 10 m object distance. The complete viewing angle is located in the “wide” area.
This means a horizontal viewing angle of 103°. Usually, no adjustment is required. To focus the objects at a smaller or greater distance, or to change the zoom range (wide -> tele), you can change the lens settings, as follows:
- Via a web browser (Mozilla Firefox, MS Internet Explorer, etc.), open the user interface of RoughCam IPP1377 (for network access, see Chapter 8). Navigate in the “Setup” menu via the “Basic Setup” pull-down menu to the “Focus” settings.
- Follow the shown instructions and first click on the “Open iris” button. If this button is disabled, this means that the iris is already open.
- Now click on “Reset”, to reset the lens level to the default value.
- Release the zoom and sharpness regulators on the lens, by turning it counter-clockwise. By moving the two regulators, adjust the zoom strength and image sharpness. Check the image quality in the window below.
- Re-tighten the zoom and sharpness regulators.
- The click on the button “Fine-tune focus automatically” in the configuration menu and wait until the automatic optimization is finished.
- To re-enable the iris, click “Enable iris”. If the button is disabled, this means that the iris is already activated.
- If necessary, you can make further settings in the “Advanced” tab.
Please note:
Before you start the automatic fine tuning, adjust the image sharpness as precisely aspossible with the aid of the sharpness regulator or focus wizard. The sharpness regulatorusually provides the best results.
Network access and visualization
The most important procedures of the camera’s initial commissioning are described below.
The configuration menu of the web surface allows an intuitive navigation and offers several configuration possibilities. For detailed documentation and information how to
use the web Interface, please see the User Manual for Axis or visit the following website:
https://www.axis.com/products/axis-p1377
The delivered RoughCam IPP1377 is set to the applicable net frequency (50Hz or 60Hz).
If the camera is used at a location with a differing net frequency, the image might start to flicker, particularly in surroundings with fluorescent tubes. In such a case, the applicable settings have to be carried out within the menu “System Options > Advanced > Plain Config”.
User: root
Password: root
8.1 Browser Support
A list of the currently supported web browsers, operating systems, required add-ons, etc. can be viewed at:
https://www.axis.com/support/technical-notes/browser-support
8.2 Assigning the IP address
The RoughCam IPP1377 is intended for use in an Ethernet network and requires an IP address to access and control it. In most of today’s networks, a DHCP server is integrated.
This server automatically assigns an IP address.
If there is no DHCP server available in the network, the IP default address of RoughCam IPP1377 is “192.168.0.90” (subnet masking 255.255.255.0).
With the “AXIS IP Utility”, it is possible to determine the IP address under Windows.
If it is not possible to assign the IP address, it might be necessary to change the firewall settings!
The “AXIS IP Utility” tool automatically recognizes all RoughCam devices and visualises them in the device list. It can also be used to manually assign a static IP address. For this purpose, the RoughCam IPP1377 network camera should be installed in the same physical network segment (physical subnet) as the computer on which the AXIS IP Utility is running. The network signature of RoughCam IPP1377 is “AXIS P1377” (see Fig. 8-1).
MAC address and serial number for clear device identification are also detected and displayed.

8.3 Password/ Identification
The following user name is set at the factory: root
The following password is set at the factory: root
Maintenance/ Modification
The required maintenance intervals are specific to the individual devices. The operating company has to determine these intervals depending on the application parameters. If
maintenance measures are necessary they have to be initiated and/or executed.
Repairs may only be carried out with original parts of SAMCON Prozessleittechnik GmbH. If in doubt, send the part in question back to SAMCON Prozessleittechnik GmbH.
Rebuilding of or alterations to the devices are not permitted.
Disposal/ Recycling
When disposing of the device, nationally applicable regulations must be observed.
This Document is subject to alterations and additions.
Drawings & 3D models
All drawings, 3D models, certificates and other information are available in the download area of the product page on our website:
Quick link: https://www.samcon.eu/en/products/roughcam/roughcam-ipp1377/

If you wish additional technical information, please contact us at: [email protected]
Certificates and further documentation
Certificates and further documentation are available in the download area at the product website:
Quick link: https://www.samcon.eu/en/products/roughcam/roughcam-ipp1377/
Schillerstrasse 17, 35102 Lohra-Altenvers, Germany
www.samcon.eu, [email protected]
Phone: +49 6426 9231-0, fax: – 31
https://www.samcon.eu/en/products/roughcam/roughcam-ipp1377/
References
Explosion Proof Camera Housings - IECEx and ATEX CCTV Systems
Explosion Proof Camera Housings - IECEx and ATEX CCTV Systems
YouTube
YouTube
AXIS P1377 Network Camera | Axis Communications
RoughCam IPP1377- Extremely robust Network-Camera (CCTV) with superb light sesitivity, with fullHD resolution, IP66, IP68




















