ASSEMBLY GUIDE
URBANA
6X6 KEYHOLE GARDEN
VT17507 / VT17607
ESPRESSO SLATE

V 1.12 | AUG 08, 2020




1-800-282-9346
[email protected] WWW.WEAREVITA.COM 8:00 AM – 4:00 PM EST
PARTS LIST
![]()
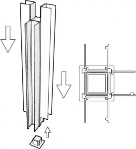
16002 – POST A – 21 7/8″ (55.5 CM) – X11
![]()
16200 – POST B – 12 3/8″ (31.5 CM) – X1
![]()
16037 – C-CHANNEL C – 21 7/8″ (55.5 CM) – X24
![]()
16201 – C-CHANNEL D – 12 3/8″ (31.5 CM) – X6
![]()
16202 – BASKET POST E – 22″ (55.8 CM) – X2

16203 – SLATE
15203 – ESPRESSO
BOARD F
34 1/8″ (86.6CM) – X12

16204 – SLATE
15204 – ESPRESSO
BOARD G
22 1/4IN (56.6CM) – X10

16205 – SLATE
15205 – ESPRESSO
BASKET PANEL H
22″ X 9 3/4″ (55.8 CM X 24.8 CM) – X2

3 V 1.12 | AUG 08, 2020

16206 – SLATE
15206 – ESPRESSO
BASKET PANEL I
22″ X 24 1/2″ (55.8 CM X 62.1 CM) – X1
![]()
16207 – SLATE
15207 – ESPRESSO
U-SPACER J
9 1/2″ (24 CM) – X6
![]()
16208 – SLATE
15208 – ESPRESSO
BRACE K
34 1/8″ (86.6 CM) – X3

16325
POST CAP L
1 1/4”(3.2 CM) – X24

4 V 1.12 | AUG 08, 2020
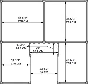
PRODUCT DIMENSIONS



5 V 1.12 | AUG 08, 2020
1
16002 – x11 A ![]()
16325 – x11 L ![]()
X11
2
16037 – x12 C ![]()
X6
6 V 1.12 | AUG 08, 2020
3
16037 – x6 C ![]()
X3
4
16037 – x6 C ![]()
X2
7 V 1.12 | AUG 08, 2020
5
16203/15203 – x2 F ![]()
16204/15204 – x2 G ![]()

6
16203/15203 – x2 F ![]()
x1 ![]()
x1 ![]()

8 V 1.12 | AUG 08, 2020
7
16203/15203 – x2 F ![]()
16204/15204 – x3 G ![]()
x1 ![]()
x3 ![]()
x1 ![]()
8
16203/15203 – x6 F ![]()
16204/15204 – x5 G ![]()

9 V 1.12 | AUG 08, 2020
9
16205/15205 – x2 H 

10
16202 – x2 E ![]()

10 V 1.12 | AUG 08, 2020
11
16206/15206 – x1 I 

12
16201- x3 D ![]()
16207/15207 – x3 J ![]()


11 V 1.12 | AUG 08, 2020
13
16201 – x3 D ![]()
16200 – x1 B ![]()
16325 – x1 L ![]()

14
16208/15208 – x3 K ![]()
16207/15207 – x3 J ![]()

12 V 1.12 | AUG 08, 2020
15
16325 – x12 L ![]()

13 V 1.12 | AUG 08, 2020
A. FILL WITH SOIL!

B. MAKE YOUR OWN SOIL!
1 2


3 4 5



CARBON
NITROGEN

14 V 1.11 | AUG 05, 2020
vita Urbana 6X6 Keyhole Garden VT17507, VT17607 Assembly Guide – Download [optimized]
vita Urbana 6X6 Keyhole Garden VT17507, VT17607 Assembly Guide – Download




























