SYMMONS IM600 IceMate Valve
Operation & Maintenance
Model Numbers
| ☐ | IM600 | IceMateTM Supply Box with Valve |
Options/Modifications
| ☐ | A | Water Hammer Arrestor Size AA |
| ☐ | P1 | Crimp PEX |
| ☐ | P2 | Cold Expansion PEX |
Note: Append appropriate -suffix to model number.
Compliance
- ASME A112.18.1/CSA B125.1
- NSF 61.9, NSF 372
- ASSE 1010 (IM600A only)
Feature Highlights
• Installation straps for 16″ O.C. stud mounting or direct-to-stud mounting.
• Ice Maker Valve.
• 1/2-14 NPSM with 1/2″ Sweat Inlets 1/4″ Outlet.
• Valve can be installed as bottom or top supply.
• Accommodates 1 layer of 1/2″ drywall up to 2 layers of 5/8″ drywall.
• Mounting straps.
Warranty
Limited Lifetime – to the original end purchaser in consumer/residential installations.
10 Years – for commercial/industrial installations. Refer to www.symmons.com/warranty for complete warranty information.
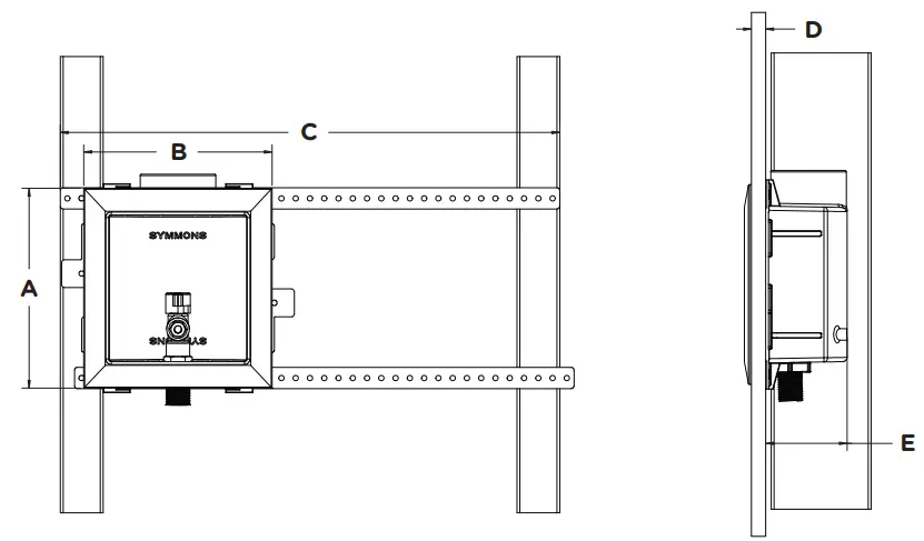
Dimensions
| Measurements | |
| A | 7″, 178 mm |
| B | 6-5/8″, 168 mm |
| C | 17-1/2″, 445 mm |
| D | Min. 1/2″, 13 mm Max. 1-1/4″, 32 mm |
| E | 2-7/8″, 72 mm |
Note: Dimensions subject to change without notice.
Installation
Section A: (Steps 1-7)
- Slide straps in mounting tabs
- Attach strap to studs with user provided screws
- Insert provided screws through tabs to secure box in place
Section B: (Step 4)
- Knockout inside hole of supply box for water supply
- Secure valve to box with supplied nut
- Connect supplies to valves with either:
- a. Sweat connect
- b. P1 Option – Crimp PEX or
P2 Option – Cold Expansion PEX
- Check for leaks
Section C (Steps 8 & 9)
- Complete finish wall
- Press on covers
- a. If finish wall is 1/2’’ thick, break tabs from cover off
- b. If 2 layers of 5/8” drywall leave tabs on
Section D (Step 10) Direct Stud Installation:
- Mount box on adjacent side of wall stud with provided tabs
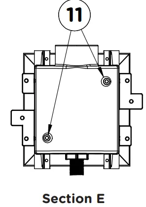
Section E (Step 11) Surface Mount Installation:
- Drill holes out of box and use user provided screws to attach to wall
- Symmons Industries, Inc. 31 Brooks Drive
- Braintree, MA 02184 Phone: (800) 796-6667
- Fax: (800) 961-9621 Copyright © 2021
- Symmons Industries, Inc.
- symmons.com
- [email protected]
- ZV-3467 REV A
- 031622

Operation & Maintenance























