Eccotemp 6.5GB Builder Series Indoor Propane Tankless Water Heater

A DANGER! WARNING: If the information in these instructions is not followed exactly. a fire or explosion may result causing property damage. personal injury or death.
- Do not store or use gasoline or other flammable vapors and liquids in the vicinity of this or any other appliances.
- WHAT TO DO IF YOU SMELL GAS
- Do not try to light any appliances.
- Do not touch any electrical switch; do not use any phone in your building.
- Immediately call your gas supplier from a neighbor’s phone. Follow the gas supplier’s instructions.
- If you cannot reach your gas supplier. call the fire department.
- Installation and service must be performed by a qualified installer. service agency or the gas supplier.




Tankless Water Heater
- WARNING: This water heater may not be suitable for use in manufactured (mobile) homes! Please check local code restrictions pertaining to permanent/fixed installations in manufactured homes in your area.
- The purpose of this manual is twofold: one, to provide the installer with the basic directions and recommendations for the proper installation and adjustment of the water heater; and two, to the owner-operator, to explain the features, operation, safety precautions, maintenance, and troubleshooting of the water heater. This manual also includes a parts list.
- It is imperative that all persons who are expected to install, operate or adjust this water heater read the instructions carefully so they may understand how to perform these operations. If you don’t understand these instructions or any terms within it, seek professional advice.
- Any questions regarding the operation, maintenance, service, or warranty of this water heater should be directed to the seller from whom it was purchased. If additional information is required, refer to the section on If You Need Service.
- Do not destroy this manual. Please read it carefully and keep it in a safe place for future reference.
- Recognize this symbol as an indication of Important Safety Information!
- California Proposition 65 Warning: This product contains chemicals known to the State of California to cause cancer, birth defects or other reproductive harm.
- ARNING: If the information in these instructions is not followed exactly, a fire or explosion may result causing property damage, personal injury or death.
FOR YOUR SAFETY!
- Improper installation, adjustment, alteration, service or maintenance can cause property damage, personal injury, or death. Refer to this manual. Installation and service must be performed by a qualified installer, service agency or the gas supplier.
- DO NOT store or use gasoline or other flammable vapors or liquids or other combustible materials in the vicinity of this or any other appliance. To do so may result in an explosion or fire.
WHAT TO DO IF YOU SMELL GAS
- DO NOT try to light any appliances.
- DO NOT touch any electrical switch; do not use any phone in your building.
- Immediately call your gas supplier from a neighbor’s phone. Follow the gas supplier’s instructions.
- day one are departmenur gas supplier,
- DO NOT return to your home until authorized by the gas supplier or fire department.
- PLEASE NOTE: 6.5GB IS FOR INDOOR PERMANENT INSTALLATIONS ONLY. THIS MANUAL AND ALL ECCOTEMP CONTECT IS SUBJECT
TO CHANGE WITHOUT NOTICE. PLEASE VISIT WWW.ECCOTEMP.COM/SUPPORT FOR MORE INFORMATION.
FOR YOUR RECORDS
Write the model and serial numbers here:
- You can find them on a label on the water heater and/or packaging.
- Staple sales slip or canceled check here.
- Proof of the original purchase date is needed to obtain service under the warranty.
READ THIS MANUAL
- Inside you will find many helpful hints on how to use and maintain your water heater properly. A little preventive care on your part can save you time and money over the life of your water heater. You’ll find many answers to common problems in the Troubleshooting Guide. If you review the chart of Troubleshooting Tips first, you may not need to call for service.
READ THE SAFETY INFORMATION
- Your safety and the safety of others are very important. There are many important safety messages in this manual and on your water heater. Always read and obey all safety messages. This is the safety alert symbol. Recognize this symbol as an indication of Important Safety Information! This symbol alerts you to potential hazards that can kill or hurt you and others.
- All safety messages will follow the safety alert symbol and either the word “DANGER”, “WARNING”, “CAUTION” or “NOTICE”. These words mean:
- DANGER – An imminently hazardous situation that will result in death or serious injury
- WARNING – A potentially hazardous situation that could result in death or serious injury and/or damage to property .
- CAUTION – A potentially hazardous situation that may result in minor or moderate injury .
- NOTICE: Attention is called to observe a specified procedure or maintain a specific condition.
SAFETY INFORMATION
IMPORTANT READ ALL INSTRUCTIONS BEFORE USING
- Be sure to read and understand the entire Use and Care Manual before attempting to install or operate this water heater. It may save you time and money. Pay particular attention to the Safety Instructions. Failure to follow these warnings could result in serious bodily injury or death. Should you have problems understanding the instructions in this manual, or have any questions, STOP, and get help from a qualified service technician, or the local gas utility.
DANGER!
PROPERLY INSTALL WATER HEATER
- Failure to properly install the water heater INDOORS as outlined in the Installation Instructions in this manual can result in unsafe operation of the water heater. To avoid the risk of fire, explosion, or asphyxiation from carbon monoxide, never operate this water heater unless it is installed properly and has an adequate air supply for proper operation. Be sure to inspect the flue terminal for proper installation at initial start-up; and at least annually thereafter. Refer to the Care and Cleaning section of this manual for more information regarding flue terminal inspection.
WARNING!
- Gasoline, as well as other flammable materials and liquids (adhesives, solvents, paint thinners etc.), and the vapors they produce are extremely dangerous. DO NOT handle, use or store gasoline or other flammable or combustible materials anywhere near or in the vicinity of a water heater or any other appliance. Be sure to read and follow the labels on the water heater, as well as the warnings printed in this manual. Failure to do so can result in property damage, bodily injury or death.

DANGER! WATER TEMPERATURE SETTING
Safety and energy conservation are factors to be considered when selecting the water temperature setting. Water temperatures above 125°F can cause severe burns or death from scalding. The thermostat is adjusted to its lowest temperature position when shipped from the factory. Be sure to read and follow the warnings outlined on the label pictured below.
DANGER
Water temperature over 125°F can cause severe burns instantly or death from scalds. Children, disabled and elderly are at highest risk of being scalded. See instruction manual before setting temperature at water heater. Feel water before bathing or showering. Temperature limiting valves are available, see manual.
Time/Temperature Relationship in Scalds
| Water Temperature | Time To Produce a Serious Burn |
| 120°F | More than 5 minutes |
| 125° F | 1 1/2to 2 minutes |
| 130°F | About 30 seconds |
| 135°f | About 10 seconds |
| 140°F | l ess than 5 seconds |
| 145°f | l ess than 3 seconds |
| l S0°F | About 1 1/ 2 seconds |
| l 55°f | About 1 second |
Table courtesy of Shriners Burn Institute
- The chart shown above may be used as a guide in determining the proper water temperature for your home
- DANGER: Households with small children, disabled, or elderly persons may require a 120’F. or lower temperature setting to prevent contact with”HOT” water.
Maximum water temperature occurs while burner is on. To find water temperature being delivered, turn on a hot water faucet and place a thermometer in the water stream and read the thermometer. - The temperature of the water at the outlet of the water heater can be regulated by setting the temperature on Remote Control . The remote control was set at 110° F before it was shipped from the factory.
- The illustration to the bottom left illustrates the Remote Control and how to adjust the water temperature.
- NOTICE: When this water heater is supplying general purpose hot water requirements for use by individuals, a thermostatically controlled mixing valve for reducing point of use water temperature is recommended to reduce the risk of scald injury. Contact a licensed plumber or the local plumbing authority for further information.
- NOTICE: The factory recommended operating temperatures are between 90° F and 140° F.
DANGER! NATURAL GAS AND LIQUEFIED PETROLEUM MODELS
Both LP and natural gas have an odorant added to aid in detecting a gas leak. Some people may not physically be able to smell or recognize this odorant. If you are unsure or unfamiliar with the smell of LPG or natural gas, ask the gas supplier. Other conditions, such as “odorant fade”, which causes the odorant to diminish in intensity, can also hide or camouflage a gas leak. Always check with commercial leak detector or soapy water.
- Gas detectors are recommended in LP and natural gas applications and their installation should be in accordance with the detector manufacturer’s recommendations and/or local laws, rules, regulations or customs.
- Water heaters utilizing LPG are different from natural gas models. A natural gas water heater will not function safely on LPG and vice versa.
- No attempt should ever be made to convert the water heater from natural gas to LPG. To avoid possible equipment damage, personal injury or fire, do not connect the water heater to a fuel type not in accordance with the unit data plate; propane for propane units and natural gas for natural gas units. These units are not certified for any other fuel type.
- LP water heaters should not be installed· below grade (for example, in a basement) if such installation is prohibited by federal, state and/or local laws, rules, regulations or customs.
- Propane or LPG must be used with great caution. It is heavier than air and will collect first in lower areas making it hard to detect at nose level.
- Before attempting to light the water heater, make sure to look and smell for gas leaks. Use a soapy solution to check all gas fittings and connections. Bubbling at a connection indicates a leak that must be corrected. When smelling to detect a gas leak, be sure to sniff near the floor also.
- It is recommended that more than one method, such as soapy solution, gas detectors, etc., be used to detect leaks in gas applications.
- Notice: If a gas leak is present or suspected:
- DO NOT attempt to find the cause yourself.
- DO NOT try to light any appliances.
- DO NOT touch any electrical switch.
- DO NOT use any phone in your building.
- Leave the house immediately and make sure your family and pets leave also.
- Leave the doors open for ventilation and contact the gas supplier, a qualified service agency or the fire department.
- Stay away from the house (or building) until the service call has been made, the leak is corrected and a qualified agency has determined the area to be safe.
WARNING!
- For your safety, the information in this manual must be followed to minimize the risk of fire or explosion, electric shock, or to prevent property damage, personal injury, or loss of life.
FOR INSTALLATIONS IN THE STATE OF CALIFORNIA
- California Law requires that residential water heaters must be braced, anchored or strapped to resist falling or horizontal displacement due to earthquake motions. For residential water heaters up to 52 gallon capacity, a brochure with generic earthquake bracing instructions can be obtained from: Office of the State Architect, 400 P Street, Sacramento, CA 95814 or you may call 916-445-8100 or ask a water heater dealer.
- However, applicable local codes shall govern installation. For residential water heaters of a capacity greater than 52 gallons or tankless style, consult the local building jurisdiction code for acceptable bracing procedures.
SAFETY PRECAUTIONS
- Have the installer show you the location of the gas shut-off valve and how to shut it off if necessary. Turn off the manual shut-off valve if the water heater has been subjected to overheating, fire, flood, physical damage or if the gas supply fails to shut off.
- Read this manual entirely before installing or operating the water heater.
- Use this water heater only for its intended purpose as described in this Use and Care Manual.
- Be sure your water heater is properly installed in accordance with local codes and the provided installation instructions.
- Part of your water heater unless it is specifically recommended in this manual.
- All other servicing should be referred to a qualified technician.
READ AND FOLLOW THIS SAFETY INFORMATION CAREFULLY
SAVE THESE INSTRUCTIONS
This water heater must be installed in accordance with these instructions, local codes, utility company requirements, and/or in the absence of local codes, use the latest edition of the American National Standard/National Fuel Gas Code. A copy can be purchased from either the American Gas Association, 400 North Capitol Street Northwest, Washington, DC 20001 as ANSI standard Z223.1 or National Fire Protection Association, 1 Batterymarch Park, Quincy, MA 02269 as NFPA 54. In Canada, the latest edition of the CSA B149.1 Natural Gas and Propane Installation, and the Canadian Electrical Code, CSA. C22.1 Part1, in the absence of local codes.
INSTALLING THE 6.5GB WATER HEATER
Location
- This water heater is for INDOOR installation ONLY!
- Make sure before installation that the gas type you will use is the same type on the data plate.
- The water heater unit should be installed by professionals from your local gas company. Please don’t attempt installation by yourself. Improper installation may cause failure or dangerous conditions such as gas leaking or explosion.
- This water heater is an INDOOR model and must be mounted on a vertical wall. It must not be installed outdoors or in a confined space. The water heater should be installed close to the most frequently used outlet and its position chosen with safety and service in mind.
- Make sure people (particularly children, disabled, and elderly) will not touch the hot water outlet or the flue terminal. The flue terminal and air inlet must be clear of obstruction and shrubbery.
- If installed in a public corridor, please assure that the surrounding area is free of debris, obstruction and flammable materials.
- The unit must be installed on a fire retardant area, and must be away from all flammable materials. Clearance should be 1.75 ft to the left and right side of flammable materials, and 6.75 ft to the front.
- The unit should be installed in open area where strong currents are not prevalent
- This unit is of high power and will consume a lot of oxygen when working, so the installation area must be well ventilated, and air in and out of the area has no blockage.
- The INDOOR unit should not be installed in a corridor with rooms on the both sides or in the closed corridor.
- Take measures to avoid direct wind, rain and snow. The installation area should be constructed of fire retardant materials. The power socket connecting the water heater should be properly grounded.
- The water heater must be located so it is not subject to physical damage, for example, by moving vehicles, area flooding, etc.
- The water heater must be installed vertically with the water, gas, and power connections on the underside, pointing toward the ground.
- Failure to properly install the water heater INDOORS as outlined in this manual can result in unsafe operation.
- Hot and cold water lines should be insulated to conserve water and energy.
- DO NOT install water heater where subject to vibrations.
- DO NOT install the water heater in Recreational Vehicles, Mobile Homes, Boats and other Watercraft.
- DO NOT install the water heater near vents for heating or cooling. A minimum of 4 feet should be maintained.
- If the clearances stated on the Instruction/Warning Label, located on the front panel of the heater differ, install the water heater according to the clearances stated on the label.
- WARNING: Combustible construction refers to adjacent walls and ceilings and should not be confused with combustible or flammable products and materials. Combustible and/or flammable products and materials should never be stored in the vicinity of this or any gas appliances.
- WARNING: The 6.5GB is to be installed INDOORs only. In some climates the ambient air temperature will fall below the temperature in which water freezes 32°F I o•c. DO NOT use the 6.5GB water heater in unsafe freezing conditions because it could damage the water heater or cause other property damage. Make sure that all components and controls are suitable for use in the current temperature before using.

INSTALLING THE 6.5GB WATER HEATER
- Proper operation of the water heater requires air for combustion and ventilation. Provisions for combustion and ventilation air must comply with referenced codes and standards.
Combustion and Ventilation Air
- This water heater is for INDOOR installation ONLY.
- It must NOT be installed outdoors or in a confined space.
- NOTICE: The water heater should not be installed near an air supply containing halogenated hydrocarbons.
Corrosive Atmospheres
- The air in beauty shops, dry cleaning establishments, photo processing labs, and storage areas for liquid and powdered bleaches or swimming pool chemicals often contain such halogenated hydrocarbons.
- An air supply containing halogenated hydrocarbons may be safe to breathe, but when it passes through a gas flame corrosive elements are released that will shorten the life of any gas burning appliance.
- Propellants from common spray cans or gas leaks from A/ C and refrigeration equipment are highly corrosive after passing through a flame.
- The water heater warranty is voided when failure of the heater is due to operation in a corrosive atmosphere.
Inspect Shipment
- Inspect the water heater for possible damage. Check the markings on the rating plate of the water heater to be certain the type of gas supplied corresponds to the water heater requirements. Verify all included parts are present (see below)

CLEARANCES FOR INDOOR WATER HEATER INSTALLATION LOCATIONS
- Clearance in accordance with local installation codes and the requirments of the gas supplier.
- vent shall not terminate directly above a sidewalk or paved driveway that is located between two single family dwellings.
- This water heater is strictly forbidden to be installed outdoors and in the bathroom.
- The water heater shall not be installed under the exhaust fan of the exhaust fan or range hood.
- here shall be no other gas appliances near the installation of the water heater, and there shall be no flammable gasses, liquid, etc. around it.
- Installation of INDOOR water heaters should avoid the impact of others people’s lives due to exhaust and noise.
- he water heater must be installed in a well ventilated area (eg. open balcony, patio).
- The distance between the water heater and the surrounding wall (mm).
VENT TERMINATlON CLEARANCES FOR NON-DIRECT VENT INSTALLATIONS IN THE US AND CANADA
PERFORMANCE FEATURES
- This product is a forced type gas water heater. When powered on the waste gas will be forced to exhaust outside under the help of the draught fan.
- Rain proof INDOOR gas water heater Its rain proof design helps to stop the rain from dropping into the water heater. The water heater inhales air from outside to burn and exhaust the gas waste to outside, the user can operate the water heater through a remote control.
- Temperature control system controls and coordinates the water, electricity, and gas to make sure the outlet water temperature is consistent.
- Low start up water pressure Flame-out protection, if the water heater flames out suddenly, it will cut off the gas automatically to make sure a gas leak does not occur.
WARNING
- The water heater has an automatic draining function. When the water inlet pressure of the water heater exceeds 145 psi – 174 psi, the water heater will automatically drain. Please do not place objects around the water heater to avoid damage caused by water immersion of the water heater. When the water heater automatically drains the water, it indicates that the water system pressure is too high. After the pressure is reduced or the water valve is closed, confirm that the pressure meets the requirment for using the water heater.
NOTES
- The appliance will operate at reduced performance below 49 psi water pressre
- For information relating to burner test point pressures and injector sizes refer to the name plate located on the right hand side of the case for each model.
- For information relating to overall dimensions and connection point refer to diagrams.
- Installing in areas over 1 mile above sea level will reduce performance.
PRODUCT DIMENSIONS
NOTICE: The National Fuel Gas Code (NFGC) mandates a manual gas shut- off valve: See (NFGC) for complete instructions. Local codes or plumbing authority requirements may vary from the instructions or diagrams provided and take precedent over these instructions.

TECHNICAL DATA AND DIMENSIONS
WATER HEATER INSTALLATION
- Mark the wall with a dark mark, then drill three holes with a diameter of 8mm and a depth of 2 3/4 inch, then insert three 1/4 x 2 inch expansion screws into the hole and tighten the screws with a wrench.
- Hang up the water heater, screw on the 1/4 inch nut and fix the heater to the wall.
- Incorrect installation of the heater will affect the normal use of the water heater
PLUMBING NOTES
- When connecting the hot water supply to the fixtures of the property a minimum of 6.5 FT of pipe work must be used between the outlet of the water heater and first outlet. (Shown below)
- The hot water line should be insulated with armaflex or similar pipe insulation.
- When the installation is completed the temperature is to be tested at the outlet to confirm the water temperature does not exceed the required 122’f (SO’c) setting.
- Water pipe size is nominal 1/2 inch from hot water outlet to the first outlet.
- Gas pipe size in nominal 3/4 inch.

CONNECTING THE WATER 
- All pipes, pipe fittings, valves and other components, including soldering materials, must be suitable for potable water systems.
- A manual shut off valve must be installed on the cold water inlet to the water heater between the main water supply line and the water heater.
- Only a gate valve or a ball valve is to be used on the cold water supply.
- Check the cold water pressure. If above 145 psi an approved limiting valve must be fitted.
- Before installing the water heater, flush the water line to remove all debris, and after installation complete, purge the air from the line. Failure to do so may cause damage to the heater. To prevent water heater water system damage caused by excessive pressure. At the water outlet of the water heater, it is necessary to install an appropriate pressure relief valve to protect the water system and user safety. The pressure relief valve complies with ANSIZ21.22/CSA 4.4
- In the hot water system, the temperature rises continuously, and the volume of water expands.
- If the system is equipped with an expansion tank or a flexible connection bellows can absorb a part of the expansion amount, the expansion tank or the soft connection bellows cannot absorb the pressure relief valve needed to protect the pressure relief valve to protect The entire system prevents breakage of pipes and other components, so the relief valve pressure setting is generally selected to be slightly less than the maximum pressure (Pmax) that the entire system can withstand.
- In addition, the pressure cannot be the same as the normal operating pressure, too close to the normal operation of the pressure relief valve will frequently pressure relief, lower temperature and pressure relief valve service life.
- In order to prevent the damage of the temperature probe or control system and cause the continuous heating of hot water to reach 212° F(100°C) vaporization, it is necessary to install a temperature and pressure safety valve, and the temperature and pressure valve temperature reaches 210° F(99°C) to relieve the pressure, thereby protecting the entire system. So the safety valve temperature is generally set to 210° F(99°C).
- There is a wire mesh filter to discourage debris from entering your heater. Clean filter after initial installation to ensure no debris from the pipe work has clogged it.
CONNECTING THE GAS SIZING AND CONNECTION SUITABILITY
- Check the gas type label to make sure that the unit was built for the type of gas you will be using , and that the gas inlet pressure is within the appropriate range.
- Gas pressure below the specified range for the water heater and/or insufficient gas volume will adversely affect performance
- Inlet gas pressure must not exceed the maximum values, gas pressure above the specified range will cause dangerous operating conditions and
damage the unit - Until testing of the main gas line supply pressure is completed, ensure the gas line to the water heater is disconnected to avoid any damage to the water heater
- Always use approved connectors to connect the unit to the gas line. Always purge the gas line of any debris before connecting to the water heater.

- Install a manual gas shut-off valve between the water heater and the gas supply line.
- The regulator is preset to factory standards. It is computer controlled and is not to be adjusted by any person other than a licensed professional.
- When the gas connections are completed, perform a gas leak test either by applying soapy water to all gas fittings and observing for bubbles or by using a gas leak detection device.
PRESSURE AND GAS LEAK TESTING
- Shut off the manual gas valve on the supply gas line.
- Open a tap/outlet. The unit should turn on and the air in the gas pipeline should be purged
- Leave the tap/outlet running until the unit shuts down due to lack of gas supply. Then turn off the tap/outlet
- Remove the screw on the pressure port located on the gas inlet of the water heater shown in the diagram to the right.
- Connect the manometer to the pressure port.
- Re-open the manual gas valve. Check to see that there are no gas leaks.
- Open some of the fixtures that use a high flow rate to turn on the water heater.
- Check the inlet gas pressure in the position shown in the circle above. When the heater is at maximum capacity, the gas pressure point must be within the appropriate range.
PRESSURE RELIEF VALVE 
- Please use sealant tape to seal the thread of pressure relief valve, then install it into Tee valve G3/4 outlet (As shown above).
- Please use sealant tape to seal the thread of water outlet, then install pressure relief valve, tee valve and water outlet together. Please select a suitable position to install (As shown above).
- Please note that the outlet of pressure relief valve cannot face upward, otherwise it will always leave some water inside.
- Anti-fouling and anti-scaling, dirt will directly affect the normal function of the safety valve function. The drain pipe must match the drain port to ensure that the valve does not interfere with the normal operation of the valve.
- The pressure relief valve outlet can be installed horizontally or vertically, but it cannot make pressure outlet facing upwards, otherwise it cannot work normally. It is forbidden to block its outlet The dirt will directly affect the normal function of the safety valve function. It requires hot water system maintenance of anti-fouling and anti-scaling cleaning.
- The user must check the relief valve at least once a year. When checking, turn off the water heater’s power supply and gas. Turn on the water inlet switch to create pressure in the water system. Then gently open relief valve handle until there is water out and then gently close, if there is no water out, indicating that the valve is invalid, this time should immediately turn off the water heater water switch and ask the service personnel to deal with.
- Before operating the handle, check the discharge line connecting the valve to ensure that the water drained from the valve can be drained to a suitable place.
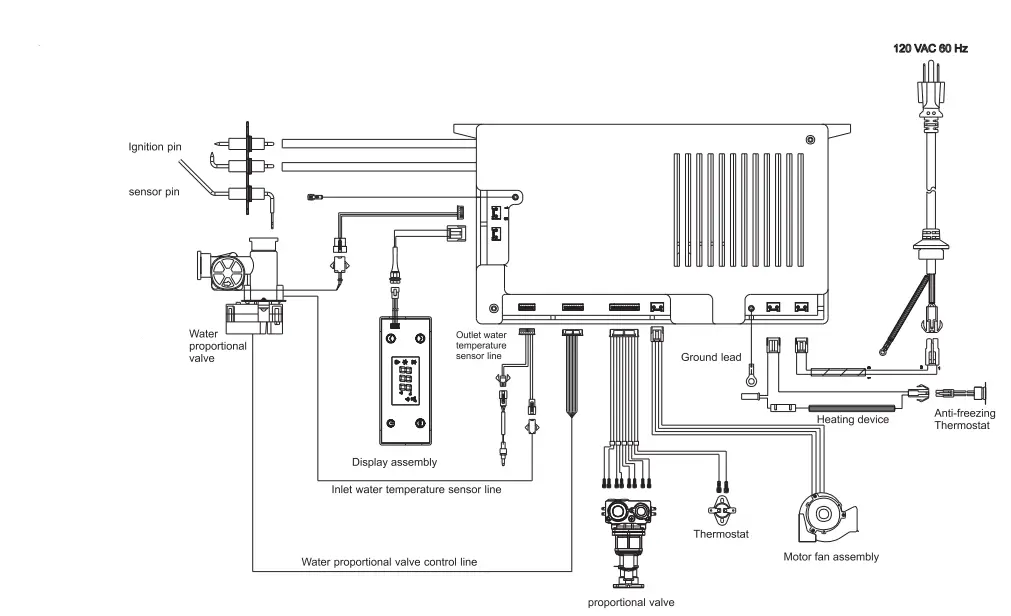
WIRING DIAGRAM 
CONNECTING THE ELECTRIC
- The water heater must be electrically grounded. Do not attach the ground wire to either the gas or water piping.
- The water heater requires an AC 120V 60Hz.
- The weather-proof power point should be no more than 3FT from the base of the water heater for easy access.
- Install a power switch so that the electrical power can be switched off if necessary.
- If the cord supplied with this appliance must be replaced, it must be replaced with the correct appliance wiring material supplied by the Manufacturer.
- When servicing or replacing parts within the water heater, label all wires prior to disconnection to facilitate an easy and error free reconnection. Verify proper operation after servicing.
Warning
- Turn off the electric power to the water heater and manual gas valve located on the outside of the unit before beginning gas connection. Confirm the postition of the gas inlet. Do not connect water line to gas inlet.
Warning
- Conversion of this unit from natural gas to propane (LPG) or propane (LPG) to natural gas cannot be done in the field. Contact your supplier to get the correct unit for your gas type.
CHECK THE WATER HEATER
After the installation of the water heater is completed, it is necessary to check that the water heater has no air leakage and water leakage, and the ignition operation is normal, and there is no fault alarm.
INITIAL OPERATION
FOR YOUR SAFETY, READ BEFORE OPERATING:
- Check the GAS and WATER CONNECTIONS for leaks before startup for the first time.
- Open the main gas supply valve to the unit using only your hand to avoid any spark. Never use tools. If the knob will not turn by hand, do not try to force it. Forced repair may result in a fire or explosion due to gas leaks.
Check the GAS PRESSURE
- Do not try to light the burner manually.
- It is equipped with an electronic ignition device that automatically lights the burner.
- Check for PROPER VENTING and COMBUSTIBLE AIR to the heater. Purge the GAS and WATER LINES to remove any air pockets.
- Do not use this water heater if any part has been submerged under water.
NORMAL OPERATION
- Turn on the power switch.
- After confirming power is on, press the remote control power button.
- Open the inlet water valve and gas valves.
- Open the water valve (hot water tap), the water heater will ignite and work, and hot water will flow out.
- During the operation of the water heater, if the power supply suddenly stops, the water heater will stop working and close the gas valve. When the power is reset, the water heater with the remote control can be started by the remote control, and the water heater without the remote control can be started after re opening the water.
- Power failure before operation, the water heater cannot start to provide hot water service.

FREEZE PREVENTION
- Only the pipes and heat exchanger inside the water heater will be protected.
- Any hot or cold water pipes located outside of the unit will not be protected.
- Proper protection and insulation of these pipes will be required to ensure these are protected from freezing.
WARNING
- If freezing conditions are expected, turn off water and gas and drain all water from the appliance.
- If power and the automatic frost protection are connected freezing will be prevented.

MAINTENANCE AND SERVICE
- The water heater should be checked at least once a year or as necessary by a licensed technician.
- If repairs are needed, any repairs should be done by a licensed technician.
- The water heater’s lifetime may be extended by regular maintenance.
- Clean the cold-water inlet filter.(Refer to diagram below).
- Be sure that all openings for combustion air are not blocked. If blocked, remove obstruction. Check that the opening for exhaust is not blocked. If blocked, shutoff the water heater’s combustion .And then after a while, remove obstruction.
- DO NOT touch while unit operating, otherwise you might get burnt due to high temperature. Check the gas pressure.
- Keep the area around the water heater clear. Remove any combustible materials, gasoline or any flammable vapors and liquids.
UNIT DRAINING AND FILTER CLEANING
- Close the manual gas shut off valve.
- Turn off the power supply to the water heater. Close the manual water shut off valve.
- Open all hot water taps in the house (Bathroom, kitchen, laundry, etc.). When the residual water flow has ceased, close all hot water taps.
- Have a bucket or container to catch the water from the unit’s drain plugs. Unscrew the drain plugs to drain all the water out of the unit.
- Wait a few minutes to ensure all water has completely drained from unit.
- Clean the filter: Check the water filter located within the cold inlet. With a tiny brush, clean the water filter of any debris which may have accumulated and reinsert the filter back into the cold water inlet. Securely screw the drain plugs back into place. Hand- tighten only.
- Remove by turning counter clockwise and then clean and replace
- Turn off the water inlet supply valve.
- Open a hot water tap to release the line pressure

TROUBLESHOOTING 
PCB ERROR CODES
Troubleshooting :
When the water heater fails, the display will display the fault code, while the buzzer will issue continuously “Beep” alarm sound, please follow the table to deal with accordingly
| Error Code | Fault description and handling method |
| EO | Water temperature probe fault |
| E1 | Flame falt, please check whether the gas supp ly is normal or not, confirm the gas is correctly connected and then use |
| E2 | False fire fault |
| E3 | Thermostat protection |
| E4 | Water temperature probe fault |
| ES | Fan fault, before the ignition, fan speed is detected for 8s less than 1000 r/min or when burning fan speed for 6s le ss than 600 r/min continuously. |
| E6 | Over-heating protection. Please check wether the water pressure is too lo w, confirm the water pressure is over starting pressure and then use |
| E7 | Solennoid valve fault |
| ES | Flue jam fault |
| EN | The set shutdo wn time has been reached |
If any codes appear in the chart above and the water heater is functioning normally, restart the water heater. After restarting and it is not operating normally, please notify the after-sales service staff maintenance.
THE FOLLOWING CONDITIONS ARE NOT A FAULT
| Phenomenon | Reason and Handling Method |
| Exhaust white Smoke | INDOOR temperature is too low . The exhausted smoke encountered the cold air and then is condensing into a white mist. |
| Flow rate of generated hot water is too small to achieve requested water temperature | Hot water flow is too low to ignite the water heater. The water heater will not turn on if the flow is too low and then the water will become cold. Raise the flow rate higher to activate the heater . |
| Can’t supply high enough temperature in winter | The incoming water temperature is very low and the water adjustment knbo is already turned to maximum . The set temperature may be more than the heating capacity allows. Please adjust the flow lower to allow the water to heat to higher temperatures. |
| Water is too hot during the summer | Incoming water temperature is too high and the incoming flow is too low. It may cause the hot water to be too hot. Please adjust the flow to be more to lower the temperature . |
| The water heater turns off after 40 minutes | In order to prevent hypoxia, some models have a 40 minute timer protection function. When you continuously use the water heater for 40 minutes, it will turn off. Please turn off the tap and restart. |
| Close the hot water valve, but the fan does not stop immediately | The fan has a delay in the shutdown fucntion in order to completely clean the water heater exhaust to ensure the safety of users. |
| Open the hot water valve, but hot water does not flow immediately | There is a distance from the water heater to the outlet , so the cold water in the line must flow out before the hot water reaches your outlet. The farther the distance from the water heater, the more time it takes to receive hot water. |
| There is always some water from the drain valve | This is because the inlet water pressure is too high and the drain valve will work to release the high pressure. Try to reduce the inlet water pressure by turning down the gate valve or the ball valve until water leakage stops. |
WARNING
- Service shall be carried out only by authorized personnel and the appliance shall not be modified;
- The appliance must be installed, commissioned and serviced by an authorized person in accordance with the requirements;
- Warning: For continued safety of this appliance it must be installed, operated and maintained in acordance with the manufacturer’s instructions
WARRANTY
Eccotemp Systems ,LLC Limited Warranty Information
Model (s): 6.5GB ING/ILP Whole HomeTankless Water Heater
LIMITED WARRANTY
Subject to the terms below. Eccotemp Systems. LLC (“Eccotemp”‘) provides this limited warranty (the “Limited Warranty”) to cover the following Products and Covered Components:
| PRODUCT NAME | COVERED COMPONENTS |
| 6.5GB ING/ILP Whole Home Tankless Water Heater | 6.5GB ING/ILP Whole Home Tankless Water Heater and accesso ries: CSA certified gas regulator and hose, mounting hard ware. |
- This Limited Warranty is being provided to the original purchaser and subsequent owners (the “Owner’1, but only while the Product remains as the site of the original installation.
LIMITED WARRANTY PERIOD
- The term of this Limited Warranty (the “Warranty Period”) begins on the date of purchase and ends as set forth below:
5 YEAR WARRANTY
- The covered components, except for the Heat Element, in the Product are warranted by Eccotemp for a period of five (5) years from the date of purchase when installed according to Eccotemp’s Installation and Operating Instructions.
10 YEAR WARRANTY
- The Heat Exchanger in the Product is warranted by Eccotemp for a period of ten (10) years from the date of purchase when installed according to Eccotemp’s Installation and Operating Instructions.
30 DAY WARRANTY
- All accessories that have been provided with the Product at no cost are warranted by Eccotemp for a period of thirty (30)
days from the date of purchase when installed according to Eccotemp’s Installation and Operating Instructions. - If, during the Warranty Period, a component in the Product fails because of a manufacturing defect, Eccotemp will repair, replace, or refund the Product to the Owner at Eccotemp’s sole discretion and as determined to be appropriate by the Eccotemp Support Team. As set forth in Section IV, the Owner may be responsible for all shipping, freight, and handling charges, as well as all fees and costs associated with the warranty service, including, but not limited to, all labor and other costs involved in diagnostic calls or in removing, repairing, servicing, or replacing any component. Eccotemp’s sole responsibility under this Limited Warranty is to repair, replace, or refund the cost of the Product at Eccotemp’s sole discretion. In the event that an exact replacement component is no longer available, Eccotemp will, at its option, provide a substitute component that Eccotemp deems suitable for the Product. If the Owner reports a subsequent issue with any covered component in the Product, the Owner may be responsible for retaining the failed component(s) for 90 days after a warranty claim is filed and must surrender the component(s) at the request of Eccotemp.
- Both Eccotemp and the Owner of the Product are bound by this Limited Warranty.
MAKING A WARRANTY CLAIM
- To make a warranty claim through this Limited Warranty, the Owner must contact Eccotemp’s Customer Service team at [email protected], schedule a call or live chat on the Eccotemp support page at http://support.eccotemp.com, It is within Eccotemp’s sole discretion when a repair, replacement, or refund will be issued. Any return for refund must be approved by Eccotemp’s Customer Service team prior to shipping the Product back to Eccotemp. Please refer to Returning Your Product For Repair or Refund Policy provided with the Product.
- Within the first 45 days of purchase, Eccotemp will cover all ground shipping costs for warranty related issues in the US
and Canada, excludin Alaska, Hawaii and any location outside of the continental US and Canada. After the first 45 days of purchase, the Owner 1s responsible for all shipping to Eccotemp, regardless of reason or circumstance. Eccotemp will cover the warranty related shipping costs when returning the Product to the Owner after repair/inspection. The method for warranty related shipping will be ground equivalent with the provider within Eccotemp’s sole discretion.
What information you will need for processing of your warranty claim:
- Proof of purchase
- Serial number
- l8l Photos of the installation
- Photos of the damage point (if there is one)
- All shipments of any type of product coming to Eccotemp for any reason must have a Return Goods Authorization (“RGA”) number for any repairs to be made. Please contact Eccotemp to obtain an RGA number prior to shipping anything to Eccotemp. Failure to do so could result in loss of Product. Eccotemp will not be responsible for replacement due to loss or damage if these steps are not properly followed.
- Any returns to Eccotemp must be sent in the original packaging. If your returned product does not have the original packaging and/or is missing any of the components that came with the product, there will be a nonnegotiable 15% restock fee.
Eccotemp Systems ,LLC Limited Warranty Information
Model (s): 6.5GB ING/ILP Whole Home Tankless Water Heater
DISCLAIMER OF WARRANTIES AND RESPONSIBILITY FOR DAMAGES ONE EXCEPT AS AS TO FITNESS PROVIDED FOR IN ANY THIS LIMITED PURPOSE, WARRANTY, MERCHANTABILITY, ECCOTEMP DESIGN, MAKES NO CONDITION, WARRANTY, CAPACITY, EXPRESS OR PERFORMANCE, IMPLIED, TO OR ANY ANY OTHER NOTWITHSTANDING ASPECT OF THE THIS PRODUCT DISCLAIMER, OR ITS ARE MATERIAL LIMITED OR TO THE WORKMANSHIP. DURATION OF ALL THIS IMPLIED LIMITED WARRANTIES WARRANTY. WHICH THIS MAY LIMITED EXIST, TIONS, WARRANTY OR IS LIABILITIES, MADE IN LIEU EXPRESS OF OR ALL IMPLIED. OTHER GUARANTEES, WARRANTIES, REPRESENTATIONS, CONDITIONS, OBLIGA
QUENTIAL ECCOTEMP SHALL DAMAGES, NOT OR BE ANY LIABLE, LOSS, EITHER DAMAGE, IN OR CONTRACT INJURY OR TO TORT, PERSONS, FOR ANY INCLUDING DIRECT, DEATH, INDIRECT, PROPERTY, INCIDENTAL OR OR THINGS, CONSE OR I FOR PATED DAMAGES PROFITS OF OR ANY SAVINGS KIND OR OCCASIONED NATURE BY INCLUDING OR ARISING BUSINESS OUT OF THE INTERRUPTION, USE, MISUSE, NON INCONVENIENCE-OR USE, REPAIR, LOSS OF REPLACEMENT ANTIC OR PURCHASER DELAY IN OR DELIVERY OTHERS OF TO THE THE PRODUCT. PRODUCT. ECCOTEMP SHALL NOT BE LIABLE FOR THE COST OF ANY WORK DONE BY
- This Limited Warranty gives specific legal rights. Some jurisdictions do not allow limitations the or exclusion exclusions or limitation do not of apply implied to the
Owner. warranties The or Owner incidental may or also have consequential other rights damages.
EXCLUSIONS
The following exclusions apply to this Limited Warranty:
- A defective repair, component replacement, is or properly refund will installed not and be provided maintained under according this to Limited Eccotemp’s Warranty unless Installation the Product Manual and containing Use & the Care Any with abuse, all misuse, applicable alteration, federal, neglect, state/province, or and misapplication local laws, of the regulations, Product will codes,ren deer olicies, this and Limited
- A service repair, providers replacement, other than or refund Eccotemp will not Systems. be provided if the Product is damaged by services performed by third party
- on or Eccotemp removal systems services is not due to a responsible warranty for any claim. expenses arising from labor services, including but net limited to, installa
- A circulation repair, system, replacement, where or an refund on-demand will not be recirculation provided if the system is Product is incorporated, used in a or hot in any water other circulation corrosive loop, or in otherwise series with Use & destructive Care Manual. environment where the Product is not intended to be used as set forth in Eccotemp’s Installation Manual and
- A including repair, improper replacement, ventilation or refund materials, will not sizing, be provided length, if the elevation, Product is condensation damaged as drainage, a result or of inadequate improper airflow. installation,
- A repair, the replacement, unit or or refund surrounding will not piping, be provided incorrect if the sizing for Product the is application, damaged as scale a result build of up, or improper incorrect use, gas including and/or
water freezing pressure. within - misuse This and Product will shall render not this be used Limited as a Warranty pool or null spa and heater. void. Use of the Product as a pool or spa heater shall be considered
- A poorly repair, treated well replacement, water, or or refund water will with not high be PH provided levels or if the hardness Product levels is in damaged excess by of 12 the use grains of per gallon non-potable, (200 mg/L). untreated or
- A Product repair, has been replacement, removed or or refund altered will in not a be way that provided causes under the this serial Limited number to Warranty not if be the readily original determined. serial number on the
- eluding Eccotemp additional will not or pay unusual electricity use of or fuel supplemental costs, or electrical increases heat. in electricity or fuel costs, for any reason whatsoever, in default or delay in performance under this Limited Warranty caused by any
MISCELLANEOUS
- No agent, employee or representative of Eccotemp s Limited has any Warranty. authority to Eccotemp bind reserves Eccotemp the to right any and representation authority to or change, warrant ty modify concerning or alter the this Product warranty not at any contained given in time. thi
FOR CUSTOMERS WITH A HOME WARRANTY
- Often heater. your Be sure home to check warranty with will your assist home in covering warranty some company of the for fees assistance related to prior your to home reaching out appliances, to such Eccotemp. as your water
- PLEASE NOTE: 6.5GB IS FOR INDOOR PERMANENT INSTALLATIONS ONLY. THIS MANUAL AND ALL ECCOTEMP CONTECT IS SUBJECT TO CHANGE WITHOUT NOTICE. PLEASE VISIT WWW.ECCOTEMP.COM/SUPPORT FOR MORE INFORMATION.
- 315 Industrial Road, Summerville, SC 29483 I 1-866-356-1992
© Eccotemp 2022 All Rights Reserved I Printing Version 1.0 - Support Support Eccotemp com Shop Online: www.Eccotemp.com
- 2 Store Locator: www.Eccotemp.com/locator



















