S S REGELTECHNIK KHSSF Duct Top Hat Rail Airflow Sensor Instruction Manual
Operating Instructions, Mounting & Installation
Duct top-hat rail airflow sensor ⁄ airflow monitor, electronic, external flow probe incl. mounting flange, with active ⁄ switching output
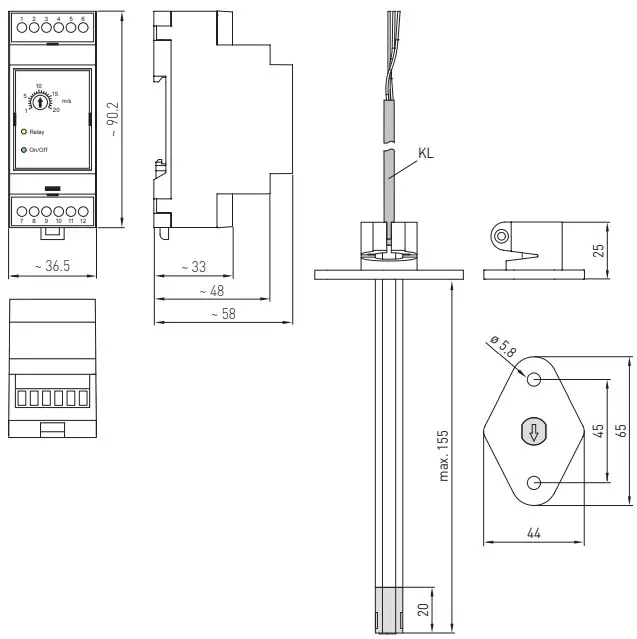
Dimensional drawing


Electronic duct top-hat rail airflow sensor RHEASGARD® KHSSF with active ⁄ switching output, housing for installation in distributor boxes or control cabinets with 35 mm mounting rail, external flow probe incl. mounting flange, for determining the flow velocity (0.1…20 m/s). The measuring transducer automatically detects the required output type and converts the measurands into the required standard signal of 0–10 V or 4…20 mA (Automatic Output Switching).
Electronic duct top-hat rail airflow monitor RHEASREG® KHSSW with switching output, housing for installation in distributor boxes or control cabinets with 35 mm mounting rail, external flow probe incl. mounting flange, for determining the flow velocity (0.1…20 m/s).
The flow sensors ⁄ flow monitors are suitable for monitoring or controlling airflows in ducts, at fans and dampers, for flow-dependent monitoring of humidifiers and electric heating registers according to DIN 57100, Sect. 420, or for use in connection with DDC systems
- KHSSF xx Housing

- KHSSF xx KHSSW xx Probe

- KHSSW xx Housing

RHEASGARD® KHSSF: Duct top-hat rail airflow sensor, with active and switching output
RHEASREG® KHSSW: Duct top-hat rail airflow monitor, with switching output
| Type ⁄ WG01 | Power supply | Output active | Output switching | Item no. |
| KHSSF | AOS | |||
| KHSSF-W | 24 V AC ⁄ DC | 0 -10 V ⁄ 4…20 mA | 1 changeover contact | 1701-5118-0102-001 |
| KHSSW | ||||
| KHSSW-W24 | 24 V AC ⁄ DC | – | 1 changeover contact | 1701-5113-0102-001 |
| KHSSW-W230 | 230 V AC | – | 1 changeover contact | 1701-5133-0102-001 |
| Note: Changeover contact with automatic reset(relay opens automatically when value falls below the threshold again) AOS (Automatic Output Switching) = patented analogue interface (patent no. DE 10 2015 015 941 B4), the unit automatically detects the required output type 0–10 V or 4…20 mA | ||||
Installation and Commissioning

FUNCTION
The supplied probe with the electronic sensor is firmly connected (see also connection diagram on housing side) to the top-hat rail housing via a connection cable (KL = approx. 2.4 m).
The measuring transducer compares the air velocity at the sensor with the set threshold at the potentiometer (0.1…20 m/s).
The changeover contact closes when the threshold is reached or exceeded.
The integrated start-up override ensures trouble-free start-up (e.g. of the fan) and thus avoids unwanted fault messages (BMS).
START-UP OVERRIDE
There are application scenarios in which fan motors and measuring instruments are switched off and on again.
When switched on, the fans take a few seconds to build up a flow.
During this start-up time, the BMS could switch to fault mode (lack of flow).
For this reason, a start-up override of 60 s is permanently programmed into all unit types.
After the supply voltage is switched on, a flow of 20 m/s or greater than the set switching threshold during this start-up time is assumed and the output signal is increased to 10 V or the relay is switched, depending on the type.
After the start-up time has elapsed, the unit switches to normal measuring mode.
SWITCHING POINT
The switching point (0.1…20 m/s) for the changeover contact is set via a potentiometer on the front of the housing.
LED STATUS INDICATOR
The current switching status of the changeover contact/relay and the operating status of the unit is indicated via two LEDs on the front of the housing.
YELLOW LED = “Relay” (switching status):
Off = Switching point not reached → Contact 5-6 open
Continuous light = Switching point reached → Contact 5-6 closed
Flashing = Start-up override active
GREEN LED = “On ⁄Off” (operating status):
Continuous light = Readiness for operation of the measuring transducer
Flashing = Error in sensor or sensor line
Notes for mounting
Installation shall take place while observing all relevant regulations and standards applicable for the place of measurement (e.g. such as welding instructions, etc.). It is particularly important to comply with the following:
- VDE ⁄ VDI directives “Technical temperature measurements” and “Measuring arrangements for temperature measurements”
- The EMC directives must be adhered to
- It is imperative to avoid parallel laying of current-carrying lines
- We recommend to use shielded cables with the shielding being attached at one side to the DDC PLC
- The cable length between sensor and BMS should not exceed 100 m
- Reversing the polarity of the connections can cause damage to the unit and/or other units on the wiring harness
Before installation, make sure that the existing technical parameters of the measuring instrument comply with the actual conditions at the place of utilisation, particularly with regard to:
- Measuring range
Permissible maximum pressure, flow velocity - Protection type and protection class
- Installation length, tube dimensions
- Oscillations, vibrations, shocks are to be avoided (< 0.5 g)
- Only suitable for non-precipitating, pollutant-free air without positive or negative pressure!
- Contamination must be removed with air only!
- Observe a minimum inlet distance of 5x d in upstream and an outlet distance of 3x d!
- Installation length depends on direction, observe marking!
Attention!
In all cases, please observe the mechanical and thermal load limits of protective tubes according to DIN 43763 respectively according to specific S+S standards!
Mounting diagram

Note for mounting:
Sensor works unidirectionally.
Observe the markings for the direction of flow!
General notes
Our “General Terms and Conditions for Business“ together with the “General Conditions for the Supply of Products and Services of the Electrical and Electronics Industry“ (ZVEI conditions) including supplementary clause “Extended Retention of Title“ apply as the exclusive terms and conditions.
In addition, the following points are to be observed:
- These instructions must be read before installation and putting in operation and all notes provided therein are to be regarded!
- Devices must only be connected to safety extra-low voltage and under dead-voltage condition. To avoid damages and errors at the device (e.g. by voltage induction) shielded cables are to be used, laying parallel with current-carrying lines is to be avoided, and EMC directives are to be observed.
- This device shall only be used for its intended purpose. Respective safety regulations issued by the VDE, the states, their control authorities, the TÜV and the local energy supply company must be observed. The purchaser has to adhere to the building and safety regulations and has to prevent perils of any kind.
- No warranties or liabilities will be assumed for defects and damages arising from improper use of this device.
- Consequential damages caused by a fault in this device are excluded from warranty or liability.
- These devices must be installed and commissioned by authorised specialists.
- The technical data and connecting conditions of the mounting and operating instructions delivered together with the device are exclusively valid. Deviations from the catalogue representation are not explicitly mentioned and are possible in terms of technical progress and continuous improvement of our products.
- In case of any modifications made by the user, all warranty claims are forfeited.
- This device must not be installed close to heat sources (e.g. radiators) or be exposed to their heat flow. Direct sun irradiation or heat irradiation by similar sources (powerful lamps, halogen spotlights) must absolutely be avoided.
- Operating this device close to other devices that do not comply with EMC directives may influence functionality.
- This device must not be used for monitoring applications, which serve the purpose of protecting persons against hazards or injury, or as an EMERGENCY STOP switch for systems or machinery, or for any other similar safety relevant purposes.
- Dimensions of housings or housing accessories may show slight tolerances on the specifications provided in these instructions.
- Modifications of these records are not permitted.
- In case of a complaint, only complete devices returned in original packing will be accepted.
Notes on commissioning:
This device was calibrated, adjusted and tested under standardised conditions. When operating under deviating conditions, we recommend performing an initial manual adjustment on-site during commissioning and subsequently at regular intervals.
Commissioning is mandatory and may only be performed by qualified personnel!
These instructions must be read before installation and commissioning and all notes provided therein are to be regarded!
SUPPLY VOLTAGE :
For operating voltage reverse polarity protection, a one-way rectifier or reverse polarity protection diode is integrated in this device variant.
This internal one-way rectifier on AC supply voltage.
The output signal is to be tapped by a measuring instrument. The output signal is measured her against zero potential (O V) of the input voltage!
When this device is operated on DC supply voltage, the operating voltage input UB+ is to be used for 15…36 V DC supply and UB – or GND for ground wire!
When several devices are supplied by one 24 V AC voltage supply, it is to be ensured that all ”positive“ operating voltage input terminals (+) of the field devices are connected with each other and all ”negative“ operating voltage input terminals (–) (= reference potential) are connected together (in-phase connection of field devices). All outputs of field devices must be referenced to the same potential!
In case of reversed polarity at one field device, a supply voltage shortcircuit would be caused by that device. The consequential short-circuit current flowing through this field device may cause damage to it.
Therefore, pay attention to correct wiring!
© Copyright by S+S Regeltechnik GmbH
Nachdruck, auch auszugsweise, nur mit Genehmigung der S+S Regeltechnik GmbH.
Reprint in full or in parts requires permission from S+S Regeltechnik GmbH.
Subject to errors and technical changes. All statements and data herein represent our best knowledge at date of publication. They are only meant to inform about our products and their application potential, but do not imply any warranty as to certain product characteristics. Since the devices are used under a wide range of different conditions and loads beyond our control, their particular suitability must be verified by each customer and/or end user themselves. Existing property rights must be observed. We warrant the faultless quality of our products as stated in our General Terms and Conditions.
Schematic diagram



TECHNICAL DATA
| Power supply: | 24 V AC/ DC It 10%1 (KHSSW-W24, KHSSF-W) 230 V AC (110%1. 50 Hz (KHSSW-W230) | |||
| Convent consumption: | approx. 3 VA | |||
| Outputs: | KHSSF-W | 0-10V/4…20 mA (via Automatic Output Switching -the unit recognises the required output typeand automaucaly switches to U or I output):24 V changeover contact (max. 5 A. cos p = 1). a switching hysteresis of 2 % final vela. threshold can be adjusted via potentiometer | ||
| KIISSW IN24 | 24 V changeover contact (max. 5 A. cos p = 1). a switching hysteresis of 2 % final yak*. threshold can be adjusted via potentiometer | |||
| KHSSW-W230 | 230 V AC changeover contact (max. 10 A. cos p = 1). a switching hysteresis of 2% final value. threshold can be adjusted via potentiometer | |||
| Oats point. | flow velocity Im/s) | |||
| Sensor. | calorimetric. temperature compensated. sensor breakage protection | |||
| Meant rig range. | 0,1_20 m/s | |||
| Accuracy: | 0.5 m/s .. 3 % measured value | |||
| Long-term stability | :0.5 % of final value per year | |||
| Reproducibility. | :1.0% of fins value | |||
| Switching hysteresis: | 2.0 % of final value | |||
| Warm•up time: | < 2 min | |||
| Response time: | < 60 s | |||
| Start-up override: | 60 s (changeover contact switched or 10 V / 20 mA at output. after applying the SIP* voltage) | |||
| LEO operating status indicator: | Yellow LEO | off: on: flashing: | switching point not reached (contact 5.6 open) switching point reached (contact 5.6 closed) start-up override is active | |
| Green LEO | on: flashing: | Unit is ready for operation error in sensor or sensor line | ||
| Housing: | PC / ABS (UL94-1/0) material light grey colour. 36mm (2TE) wide for 35 mm motnting rail. approx. 90 x 36 x 58 mm (H x W x DI | |||
| Probe/sensor. | Polyamitle (PAL) material. white colour (blue sensor holder’. with torsion protection. 0 12 mm. EL = approx. 20-155 mm. v,,,,, = 30 m/s (air) | |||
| Sensor cable: | PVC LIMY. 3-wire. KL = approx. 2.4 m | |||
| Electrical connection: | 0.14-2.5mm2. via screw terminal | |||
| Process connection: | by means of mounting flange with seal (included in the scope of delivery) | |||
| Ambient temperature: | storage -20. 50 °C. operation 0…..60 ‘C | |||
| Medium temperature: | 0…+70`C | |||
| Permitted humidity: | <98%RH, non-preciotaung or free of harmful substances | |||
| Protection class | ll(according to EN 60730) with U8=230 V IKHSSW-W2301 lll (according to EN 607301 with U8=24 V IKHSSW-W24. KHSSF-W) | |||
| Protection type: | IP 30 (according to EN 60529) housing IP 20 (according to EN 60529) sensor technology | |||
| Standards. | CE conformity according to EMC Directive 2014/30/EU. according to EN 61326.1. as per EN 61326.2.3 | |||
S+S REGELTECHNIK GMBH
THURN-UND-TAXIS-STR. 22
90411 NÜRNBERG ⁄ GERMANY
FON +49 (0) 911 ⁄ 519 47- 0
[email protected]
www.SplusS.de






















