Carrier 40RF Packaged Air Handling Units Instruction Manual

SAFETY CONSIDERATIONS
Installation of this accessory can be hazardous due to electrical components and equipment location (such as a ceiling or elevated structure). Only trained, qualified installers and service mechanics should install and service this equipment.
When installing this accessory, observe precautions in the literature, labels attached to the equipment, and any other safety precautions that apply.
- Follow all safety codes.
- Wear safety glasses and work gloves.
- Use care in handling and installing this accessory
![]()
To avoid the possibility of electrical shock, open and tag all disconnects before installing this equipment.
![]()
Wear a hard hat and safety shoes when working in an area where there is danger of falling objects. Wear safety glasses to protect your eyes. When welding, brazing, or cutting, wear gloves and goggles for personal protection.
Follow safe rigging practices when handling larger duct adapters. Refer to ANSI Z49.1 (latest edition) for American Welding Society Standards of safe welding and flame cutting practices.
All field piping must conform to local codes.
INTRODUCTION
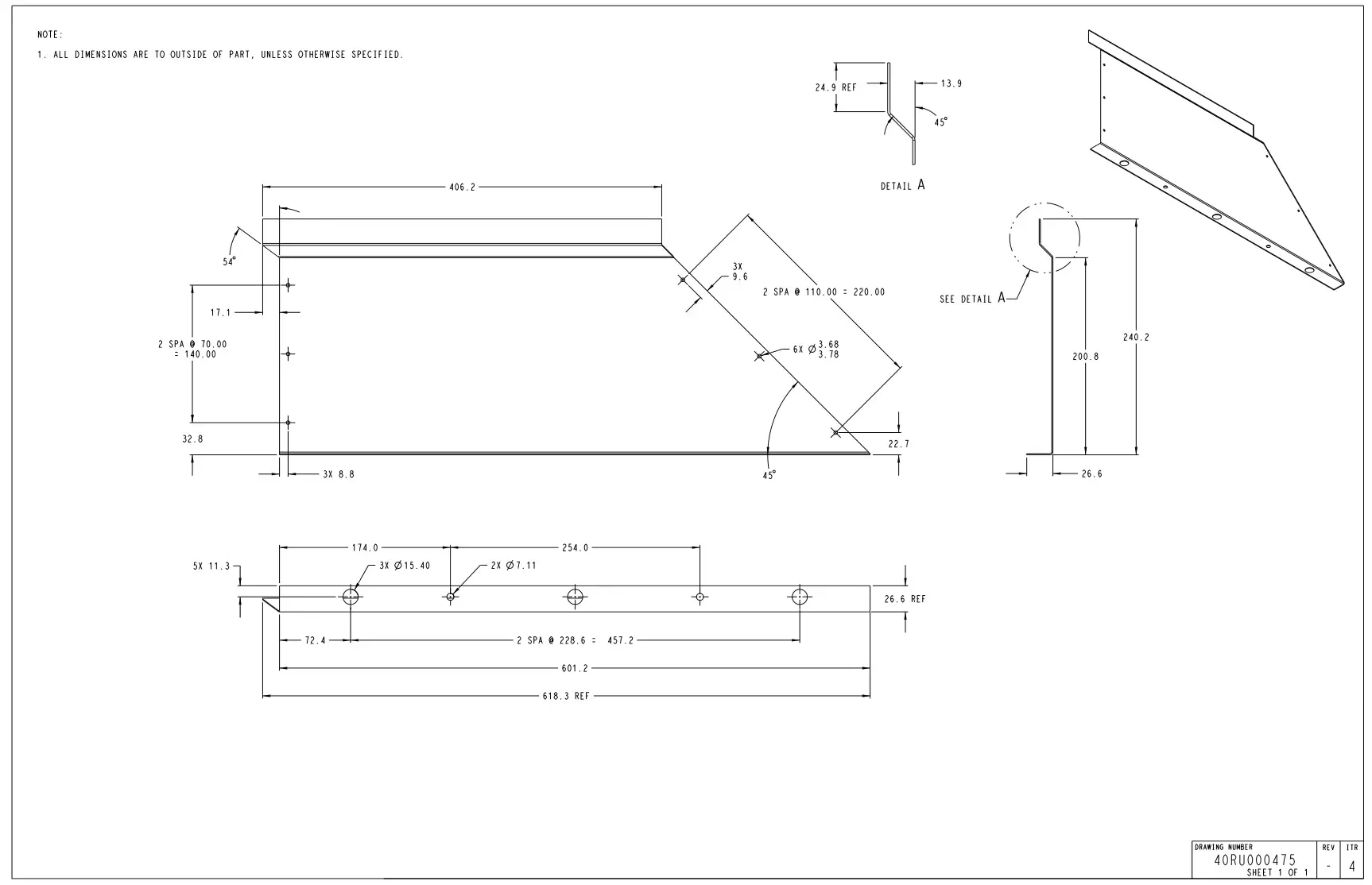
The duct adapter accessories provide blow-thru heat sources for 6 to 10 ton packaged air-handling units (see Table 1). The duct adapters are mounted directly over the unit fan discharge(s) and do not require duct flanges. Table 2 shows accessory kit weight and contents. See Fig. 1-4 for duct adapter dimensions.
Table 1 — Package Usage

Table 2 — Package Contents


Fig. 1 — Duct Adapter Dimensions, Item 1

Fig. 2 — Duct Adapter Dimensions, Item 2

Fig. 3 — Duct Adapter Dimensions, Item 3

Fig. 4 — Duct Adapter Dimensions, Item 4
PRE-INSTALLATION

Complete Pre-Installation Checks
Remove accessory packaging and inspect shipment for damage.
File claim with shipping company if accessory is damaged or incomplete.
Check Unit Clearance
Provide sufficient space for airflow clearance and servicing accessory after it is mounted on unit. The base unit minimum clearances
of 2-1/2 ft for front and sides of unit and 3 in. for rear of unit also apply to the duct adapters.
INSTALLATION
Assemble and Secure Duct Adapter

Fig. 5 — Duct Adapter Assembly
Reference Fig. 5 for duct assembly.
- Discard duct flanges shipped with unit. Save screws for securing the duct transition to the fan’s discharge outlet.
a. Duct flanges are factory supplied; they are shipped inside the unit attached to the hairpin end of the coil tube sheet for field installation. - Secure Item 1 to Item 3 using 3 of the screws provided in the duct transition kit.
- Secure Item 4 to Item 3 using 3 of the screws provided in the duct transition kit.
- Secure Item 2 to Items 1 and 4 using 6 of the screws provided in the duct transition kit.
- Secure duct transition assembly to the discharge outlet as shown in Fig. 6, or Fig. 7 for units with an electric heater.
Using the screws shipped in the unit for the standard duct flanges.

Fig. 6 — Duct Adapter on Unit

Fig. 7 — Duct Adapter on Unit with Electric Heater
Connecting Adapter to Ductwork
After the duct transition assembly is installed on discharge outlet, connect the assembly to the supply duct using a field-supplied canvas connection to prevent vibration. It is important that this connection be properly fabricated to prevent high air friction losses and noises.
START-UP
- Turn on unit power.
- Set fan switch at ON position to energize indoor air fan.
- Check output at air outlet(s).
SERVICE
![]()
Before servicing the unit duct adapter, shut off and tag the steam and hot water valves.
See Cautions under Safety Considerations section on page 1.
Disconnect power to base unit to avoid electrical shock when servicing.
Cleaning Duct Adapter
Refer to base unit instructions regarding unit panel removal for duct adapter access. Clean duct adapter with a stiff brush, vacuum cleaner, or compressed air. Procedure and precautions for cleaning duct adapter are similar to those regarding cleaning of evaporator coil as described in base unit instructions.
Manufacturer reserves the right to discontinue, or change at any time, specifications or designs without notice and without incurring obligations.
Catalog No. 04-53400078-01
Printed in U.S.A.
Form IIK-CADUCADP01-01
Replaces: NEW


















