STERLING JVA/JVB-ARS Commercial Finned Tube Radiation

Product Information
J Classic Commercial Finned Tube Radiation JVA/JVB-ARS STJARS-II-2
The J Classic Commercial Finned Tube Radiation JVA/JVB-ARS STJARS-II-2 is a heating system that can be installed on walls. The system comes with a backplate, enclosure, and overlapping accessories. The backplate is mounted to the wall at a prescribed height, ensuring that it is straight and level. Valve compartments can also be installed on the backplate if needed. The enclosure is installed by starting at the left end of the run and working clockwise. The enclosure back bends mounts directly into the ‘V’ bend of the backplate. The next piece of the cover is firmly pushed into the slip joint tabs of the piece on the left until the run is completed. The bottom of the enclosure is then secured into brackets, and the posi-loc clamps are tightened to secure the enclosure. Overlapping accessories can be installed as indicated on the room schedule. All accessories are overlapping, and valve compartments are installed in the same way as the enclosure. The top back bend is slipped between the wall and the backplate, and the accessory bottom returns to the wall and is secured with fasteners by others.
Product Usage Instructions
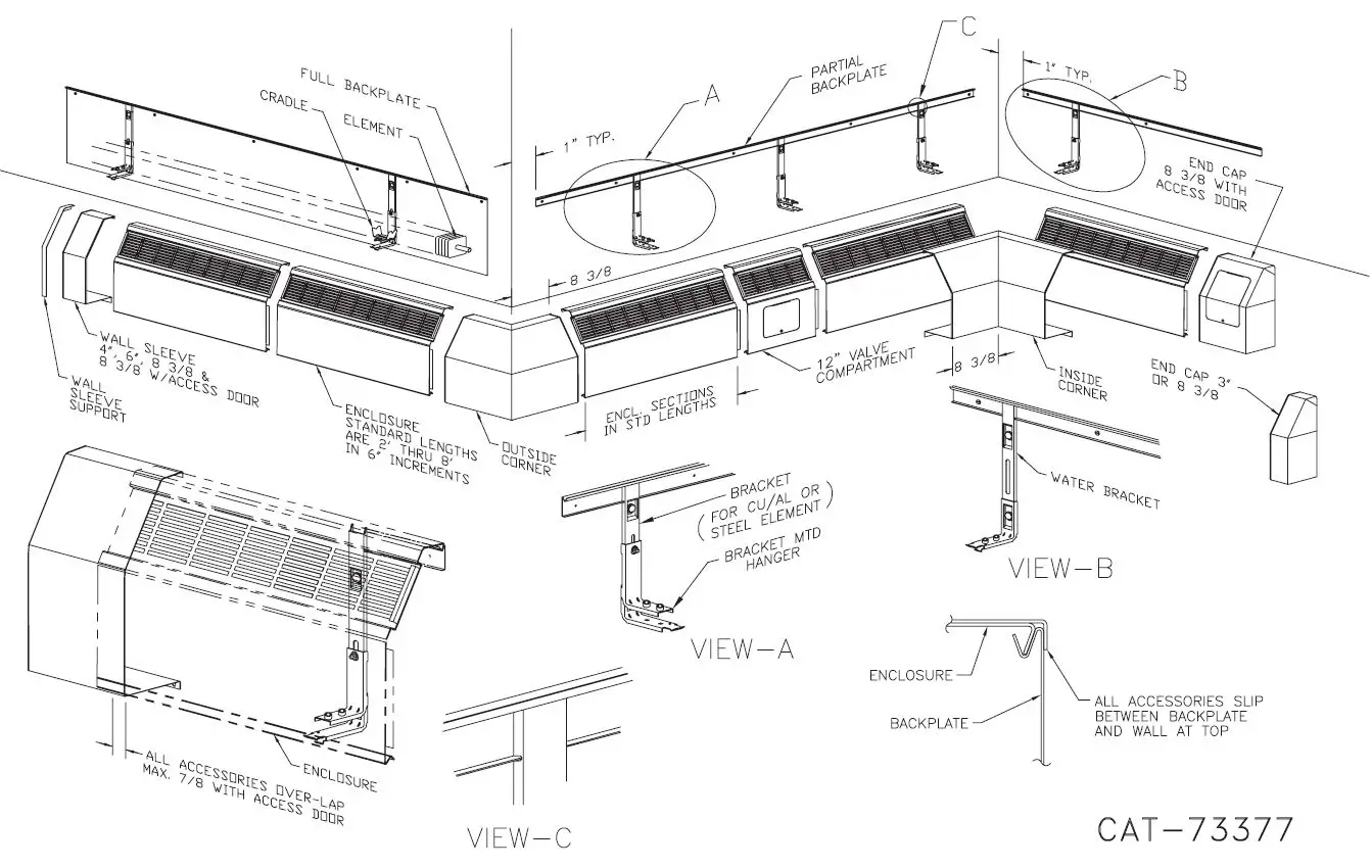
- Mount the backplate to the wall at a prescribed height, ensuring it is straight and level. If valve compartments are being used, make sure that an equivalent amount of backplate is installed.
- Install the enclosure by starting at the left end of the run and working clockwise. The enclosure back bends mounts directly into the ‘V’ bend of the backplate. Firmly push the next piece of cover into slip joint tabs of the piece on the left until the run is completed. Secure the bottom of the enclosure into brackets. Tighten the posi-loc clamps to secure the enclosure.
- Install overlapping accessories as indicated on the room schedule. All accessories are overlapping. Valve Compartments are installed the same as the enclosure. The top back bend is slipped between the wall and the backplate. The accessory bottom returns to the wall and is secured with fasteners by others.
INSTALLATION INSTRUCTIONS
“J” CLASSIC COMMERCIAL FINNED TUBE RADIATION JVA/JVB-ARS
- Determine quantities of enclosure and accessories required per wall or run. If the installation is wall-to-wall, run the backplate to within ½” of the adjoining wall(s). If run ends with an end cap, extend the backplate beyond the end of the required enclosure 1-1/2″ for 3″ end and 6″ for 8-3/8″ end.
- Mount the backplate (full or partial) to the wall at the prescribed height (Refer to Submittal Drawing) making sure that it is straight and level. If valve compartments are being used, make sure that an equivalent amount of backplate is installed.
Hot Water Systems
Water brackets are used to support the enclosure and a single tier of elements. Water brackets do not provide a pitch for the element. If a second tier (row) of the element is to be installed, mount bracket-mounted hangers to the water bracket using the 5/16-18 carriage bolt and nut supplied before installation of the brackets to the wall. Install two (2) water brackets per enclosure length up to 6′-0″ of length. Three (3) water brackets per cover 6′-6″ up to 8′-0″of length. Valve compartments should have a minimum of one (1) bracket (Accessories do not require brackets). Insert the top of the bracket into ‘V’ bend of the backplate (Full or Partial) and insert it onto the horizontal flange of the Partial backplate. Secure brackets to the wall using fasteners (as specified) by others. Supply/Return Pipe hangers (if required) can be mounted to the wall adjacent to the water bracket (every other one).
Steam Systems (Two Pipe)
Attach bracket-mounted hangers to the steam bracket (one per each tier of element per steam bracket) with 5/16-18 carriage bolts and nut supplied before the installation of the steam brackets to the wall. Install two (2) brackets per enclosure length up to 6′-0″ of length. Three (3) brackets per cover 6′-6″ up to 8′-0″of length. Valve compartments should have a minimum of one (1) bracket (Accessories do not require brackets). Insert the top of the bracket into the ‘V’ bend of the backplate (Full or Partial) and insert it onto the horizontal flange of the Partial backplate. Secure brackets to the wall using fasteners (as specified) by others. Valve compartments should have a minimum of one (1) bracket (Accessories do not require brackets). Supply/Return Pipe hangers (if required) can be mounted to the wall adjacent to the steam bracket (every other one).
- Lay out the heating element as required. Place the sliding cradle onto the bottom of the element at each bracket location. The element cradle has two legs that angle out slightly. Position the legs between the fins so there is tension against the legs. This holds the cradles in position. For Two Pipe Steam systems adjust the element pitch by raising the bracket-mounted hanger and tightening the nut to secure the hanger into position. Second-tier elements mounted on the bracket-mounted hangers can be adjusted up or down. Check the submittal drawing for the correct position of the element in. For copper tube elements, flush the loop or series with system water after soldering to neutralize the remaining flux material and prevent corrosive action and resulting pinhole leaks.
- The enclosure can now be installed. Start the enclosure at the left end of the run, working clockwise. The enclosure back bends mounts directly into the ‘V’ bend of the backplate. Firmly push the next piece of cover into slip joint tabs of the piece on the left until the run is completed. Secure the bottom of the enclosure into brackets. Tighten the posi-loc clamps to secure the enclosure.
- Install overlapping accessories as indicated on the room schedule. All accessories are overlapping. Valve Compartments are installed the same as the enclosure. The top back bend is slipped between the wall and the backplate. The accessory bottom returns to the wall and is secured with fasteners by others.
MAINTENANCE
Before each heating season, remove accessories and enclosure panels to inspect finned tube elements for accumulation of dust or other debris that may accumulate and block airflow between fins. Remove dust and debris from coil fins with a vacuum cleaner or compressed air. Inspect for leaks or areas of corrosion. It should not be required, but if necessary, place a drop of lubricant (machine oil) onto each ball bearing (where applicable) located in the water brackets or bracket-mounted hangers. Replace the cover and accessories.
GENERAL LAYOUT

260 North Elm St., Westfield, MA 01085 Tel: (413) 564-5535 Fax: (413) 562-8437 www.sterlingheat.com




















