
ALL-IN-ONE KITCHEN
OWNER’S MANUAL
Model No.: C30EL / C30ELBK / C36EL / C39EL / C48EL / C60EL C30ELGLASS / C36ELGLASS / C39ELGLASS C39ELGLASSBK / C48ELGLASS / C60ELGLASS CK36EL / CK36ELGLASS / CK54SINKL / CK542SINKR CK72ADASNKL / CK722ADASNKR ALK36COIL / ALK36GLASS / ALK54RSINK
ALK543LSINK / ALK72ADADLL / ADA723ADARR
BEFORE USE, PLEASE READ AND FOLLOW ALL SAFETY RULES AND OPERATING INSTRUCTIONS.
Write Model & Serial Nos. (on back of unit) here:
Model: _____________________________
Serial #: ____________________________
Felix Storch, Inc.
An ISO 9001:2015 registered company
770 Garrison Avenue
Bronx, New York 10474
www.summitappliance.com
APPLIANCE SAFETY
Your safety and the safety of others are very important.
We have provided many important safety messages in this manual and on your appliance. Always read and obey all safety messages.
This is the Safety Alert Symbol. The symbol alerts you to potential hazards that can kill or injure you and others. All safety messages will follow the Safety Alert Symbol and either the words DANGER or WARNING.
DANGER
DANGER means that failure to heed this safety statement may result in severe personal injury or death.
WARNING
WARNING means that failure to heed this safety statement may result in extensive product damage, serious personal injury, or death.
All safety messages will alert you about the potential hazard, tell you how to reduce the chance of injury, and let you know what can happen if the instructions are not followed.
IMPORTANT SAFEGUARDS
Before the appliance is used, it must be properly positioned and installed as described in this manual, so read the manual carefully. To reduce the risk of fire, electrical shock or injury when using the appliance, follow basic precautions, including the following:
DANGER ![]()
Plug into a grounded 3-prong outlet, do not remove the grounding prong, do not use an adapter, and do not use an extension cord.
After servicing, replace all panels before operating.
It is recommended that a separate circuit serving only your appliance be provided. Use receptacles that cannot be turned off by a switch or pull chain.
Never clean appliance parts with flammable fluids. These fumes can create a fire hazard or explosion.
And do not store or use gasoline or other flammable vapors and liquids in the vicinity of this or any other appliance. The fumes can create a fire hazard or explosion.
Before proceeding with cleaning and maintenance operations, make sure the power line of the unit is disconnected.
Do not connect or disconnect the electric plug when your hands are wet.
Unplug the appliance or disconnect power before cleaning or servicing. Failure to do so can result in electrical shock or death.
User Servicing – Do not attempt to repair or replace any part of your appliance unless it is specifically recommended in this manual. All other servicing should be referred to a qualified technician.
WARNING
FOLLOW WARNING CALLOUTS BELOW ONLY WHEN APPLICABLE TO YOUR MODEL Use two or more people to move and install appliance. Failure to do so can result in back or other injury.
To ensure proper ventilation for your appliance, the front of the refrigerator must be completely unobstructed. Choose a well-ventilated area with temperatures above 60°F (16°C) and below 90°F (32°C). This unit must be installed in an area protected from the elements, such as wind, rain, water spray or drips.
The refrigerator should not be located next to ovens, grills or other sources of high heat. The appliance must be installed with all electrical, water and drain connections in accordance with state and local codes. A standard electrical supply (115 V AC only, 60 Hz), properly grounded in accordance with the National Electrical Code and local codes and ordinances, is required.
Do not kink or pinch the power supply cord of the appliance.
The size of the fuse (or circuit breaker) should be 15 amperes.
It is important that the appliance be leveled in order to work properly. You may need to make several adjustments to level it.
Proper Installation – Be sure your appliance is properly installed, per the manufacturer instructions.
Never use your appliance for warming or heating the room.
Do Not Leave Children Alone – Children should not be left alone or unattended in area where the appliance is in use. They should never be allowed to sit or stand on any part of the appliance.
Wear Proper Apparel – Loose fitting or hanging garments should never be worn while using the appliance.
Storage in or on Appliance – Flammable materials should not be stored in the unit.
Do Not Use Water on Grease Fires – Smother fire or flame or use dry chemical or foam-type extinguisher.
Only Use Dry Potholders – Moist or damp potholders on hot surfaces may result in burns from steam.
Do not let potholder touch hot heating elements as this can create a Fire Hazard. Do not use a towel or other bulky cloth.
Use Proper Pan Size – This appliance is equipped with one or more surface units of different size.
Select utensils having flat bottoms large enough to cover the surface unit heating element. The use of undersized utensils will expose a portion of the heating element to direct contact and may result in ignition of clothing. Proper relationship of utensil to burner will also improve efficiency.
Never Leave Surface Units Unattended at High Heat Settings – Boil-over causes smoking and greasy spillovers that may ignite and can create a Fire Hazard.
Make Sure Reflector Pans or Drip Bowls Are in Place – Absence of these pans or bowls during cooking may subject wiring or components underneath to damage.
Protective Liners – Do not use aluminum foil to line surface unit drip bowls or oven bottoms, except as suggested in the manual. Improper installation of these liners may result in a shock or fire hazard. Glazed Cooking Utensils – Only certain types of glass, glass/ceramic, ceramic, earthenware, or other glazed utensils are suitable for range top service without breaking due to sudden change in temperature.
Utensil Handles Should Be Turned Inward and Should Not Extend Over Adjacent Surface Units – To minimize burns, ignition of flammable materials, and spillage due to unintentional contact with the utensil, the handle of a utensil should be positioned so that it is turned inward, and does not extend over adjacent surface units.
Do Not Soak Removable Heating Elements – Heating elements should never be immersed in water.
Caution – Do not store items of interest to children in cabinets above a range or on the back guard of a range – children climbing on the range to reach items could be seriously injured.
Do Not Touch Heating Elements or Areas Near Heating Elements – Heating elements may be hot even though they are dark in color. Areas near heating elements may become hot enough to cause burns. During and after use, do not touch or let clothing or other flammable materials contact heating elements or areas near heating elements until they have had sufficient time to cool. Among these areas are the cook-top and surfaces facing the cook-top.
When Replacing Your Faucet – For safety reasons do not use a spout longer than 150mm (6”). All installations must be in accordance with local plumbing code requirements.
Make certain that the pipes are not pinched, kinked or damaged during installation.
Check for leaks after connection.
Never allow children to operate, play with or crawl inside the appliance.
Although the unit has been tested at the factory, due to long-term transit and storage, the first batch of ice cubes must be discarded.
Do not use solvent-based cleaning agents or abrasives on the interior. These cleaners may damage or discolor the interior.
Use this appliance only for its intended purpose as described in this Owner’s Manual.
Keep fingers out of the “pinch point” areas. Clearances between the doors and between the doors and cabinet are necessarily small. Be careful closing doors when children are in the area.
DANGER ![]()
Risk of child entrapment!
Child entrapment and suffocation are not problems of the past. Junked or abandoned appliances are still dangerous, even if they will “just sit in the garage a few days”.
Before discarding your old refrigerator:
Take off the doors
Leave the shelves in place so that children may not easily climb inside.
– SAVE THESE INSTRUCTIONS –
LOCATIONOF PARTS

REMARK: Models C30EL / C36EL / C36ELBK / C39EL/ C48EL / C30ELGLASS / C36ELGLASS / C39ELGLASS / C39ELGLASSBK / C48ELGLASS / ALK36COIL / ALK36GLASS only have one storage compartment. Images inside the manual may vary from the actual products.
INSTALLATION INSTRUCTIONS
BEFORE USING YOUR APPLIANCE
Remove the exterior and interior packing.
Before connecting the refrigerator of your All-in-One Kitchen to the power source, let it stand upright for approximately 2 hours. This will reduce the possibility of a malfunction in the cooling system from handling during transportation.
Clean the interior surface with lukewarm water using a soft cloth.
INSTALLATION OF YOUR APPLIANCE
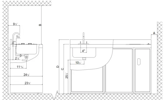
NOTE:
- In order to remove crisper and/or shelves of refrigerator, a clearance A of 10 inches is required. When the refrigerator is built-in, leave at least 3/16” clearance on both sides, 1/16” at the top and 2” at the rear. Be sure that airflow under the appliance is not blocked.
- B = a minimum clearance of 30 inches is required between the top of the cooking surface and the bottom of an unprotected wood or metal cabinet.
- C = 37⅝” for C30, 34” for C72, 36” for all other models.
- D = 41⅛” for C30, 37½” for C72, 39½” for all other models.
To eliminate the risk of burns or fire when reaching over heated surface units, cabinet storage space located above the surface units should be avoided. If cabinet storage is to be provided, the risk can be reduced by installing a range hood that projects horizontally a minimum of 5 inches beyond the bottom of the cabinets.
Place your Compact Kitchen on a floor that is strong enough to support it when it is fully assembled as in the illustration above. To level your Refrigerator, adjust the leveling legs at the bottom of the refrigerator.
WARNING: Do not store or install the appliance outdoors.
For satisfactory water drainage of the sink, and proper cabinet door function, it is important to level the Compact Kitchen in both directions, using the leveling legs provided on the bottom of the Compact Kitchen for this purpose.
Locate the Compact Kitchen away from direct sunlight and sources of heat (heater, radiator, etc.).
Direct sunlight may affect the acrylic coating and heat sources may increase electrical consumption. Extremely cold ambient temperatures may also cause the unit to perform improperly.
Avoid locating the unit in moist areas as this may result in the risk of electrical shock.
Do not under any circumstances cut or remove the third (ground) prong from the power cord of your refrigerator or burners. Any questions concerning power and/or grounding should be directed toward a certified electrician or an authorized service center.
After connecting the appliance to the power supply, allow the refrigerator to cool down for 2-3 hours before placing items inside.
ELECTRICAL CONNECTION
WARNING![]()
Improper connection of the equipment-grounding can result in the risk of electrical shock. If the power cord of the range or refrigerator is damaged, have it replaced by an authorized service center.
This appliance should be properly grounded for your safety. The range and refrigerator power cords of the appliance are equipped with a grounded plug which mates with standard three-prong wall outlets to minimize the possibility of electrical shock.
Do not under any circumstances cut or remove the third ground prong from the power cord supplied.
For personal safety, this appliance must be properly grounded.
This appliance requires a standard 115/120 Volt AC ~/60Hz electrical ground outlet with three-prong socket. Have the wall outlet and circuit checked by a qualified electrician to make sure the outlet is properly grounded. When a standard 2-prong wall outlet is encountered, it is your responsibility and obligation to have it replaced with a properly grounded 3-prong wall outlet.
To prevent accidental injury, the cord should be secured behind the appliance and not left exposed or dangling.
The appliance should always be plugged into its own individual electrical outlet which has a voltage rating that matches the rating label on the appliance. This provides the best performance and also prevents overloading house wiring circuits that could cause a fire hazard from overheating. Never unplug the appliance by pulling the power cord. Always grip the plug firmly and pull straight out from the receptacle. Repair or replace immediately all power cords that have become frayed or otherwise damaged. Do not use a cord that shows cracks or abrasion damage along its length or at either end.
When moving the appliance, be careful not to damage the power cord.
Do not attempt to repair or replace any part of the appliance unless it is specifically recommended in this manual. All other servicing should be referred to a qualified technician.
To minimize the possibility of electric shock, disconnect this appliance from the A/C power supply before attempting any maintenance.
Do not use extension cords for the connections of the range and refrigerator.
NOTE: Turning the appliance off does not disconnect the appliance from the power supply. We recommend having a qualified technician service your appliance.
BACKSPLASH INSTALLATION
Install the backsplash to the kitchen cabinet as shown below:
WATER FAUCET INSTALLATION AND WATER LINE CONNECTION
Connection to the water supply must be performed by a professional licensed plumber and comply with all Local Codes and Ordinances.
WARNING![]()
IMPROPER WATER LINE CONNECTION MAY RESULT IN FLOODING.
YOU MUST USE A LICENSED PLUMBER.
REVIEW STATE AND LOCAL PLUMBING CODES BEFORE INSTALLATION.
Turn off the water supply.
Install the water faucet as in above picture.
Connect the water supply hoses to the water faucet by matching cold to cold and hot to hot. Do not stretch the water supply hose. If the hose is too short, replace the hose with a longer, high-pressure hose.
SINK STRAINER INSTALLATION AND WATER DRAIN
Connection to the water sink must be performed by a professional licensed plumber and comply with all Local Codes and Ordinances.
The sink strainer is already preassembled in the factory.
Secure the water drain system to the sink strainer as below shown.
OVERFLOW DRAIN LINE INSTALLATION
The molded end of the waste drain must fit the connections on the waste tee and overflow adapter.
Connect the waste tee with overflow adapter to the waste drain hose and secure drain hose to the waste tee and overflow adapter with clamps. The connection must be performed by a professional licensed plumber and comply with all Local Codes and Ordinances as shown below:
INSTALLATION OF YOUR REFRIGERATOR
NOTE: The refrigerator is supplied with a separate instruction manual. Please review prior to final installation of your Compact Kitchen.
Disconnect the power supply. Failure to disconnect the appliance could result in electrical shock or personal injury.
Connect the Refrigerator power supply cord to the power.
Slide the refrigerator into the slot of kitchen cabinet by slightly lifting the rear part of refrigerator. Make sure the power supply cord is not kinked or damaged under the refrigerator.
OPERATING YOUR APPLIANCE
OPERATING YOUR REFRIGERATOR
The refrigerator is supplied with a separate instruction manual where you will find the details on how to operate the refrigerator.
OPERATING YOUR BURNERS FOR MODELS WITH SPIRAL BURNERS
Your compact kitchen comes with two burners (500W and 900W power input). To operate the burners simply push in and turn the knob to the desired position. These
controls go from low to high power output, having a number of positions. When the burners are in operation the indicator lights on the cooktop panel will be lit regardless of the setting.
OPERATING YOUR COOKTOP FOR MODELS WITH GLASS COOKTOP
Any burner can be turned on by pushing the control knob down and turning it clockwise or counterclockwise to the desired setting. To adjust the setting, turn the knob without pressing down. The burner is turned off by turning the control knob clockwise or counter-clockwise to “OFF”.
Operating Indicators
When a burner is turned on, the corresponding operating indicator will light up regardless of the setting.
Residual Heat Indicator
The residual heat indicator will light up when some part of the glass-ceramic cooktop is too hot to touch or place articles upon. Do not place articles other than cookware on the cooking surface while this light is glowing
WARNING ![]()
Do not touch or lay any heat-sensitive objects on the cooktop while the operating/residual heat indicator is still on. Danger of burns and fire hazard!
Cookware Selection
The cooking surface
Your ceramic cooktop is made of an extremely hard and durable material. The surface is scratch-resistant, not scratch proof. Avoid using cookware with ridged bottoms. Ridged pots with dirty or chipped enamel bottoms may scratch the cooktop if they are pulled across the ceramic surface.
Make sure the cooktop and pot bottoms are clean before cooking. Certain items, particularly sugar grains or crystallized liquids such as molasses or syrups are actually harder than ceramic and can scratch the surface if they are not cleaned off immediately. However, small or light scratches will not affect the safety or performance of the cooktop.
Pots and pans
Special cookware is not required, but as is true with all types of cooking appliances, the better the cookware, the better the performance.
Following these tips will allow you to make the most of your ceramic cooktop.
– For the most even and energy-efficient cooking, the diameter of the pots should match the diameter of the burners as closely as possible.
– Use cookware with thick, flat, smooth bottoms. Slightly concave bottoms will also work adequately.
Pans with convex bottoms will not cook well.
– Using a lid while cooking will minimize the loss of heat and decrease the cooking time.
– Copper bottom and aluminum pans may leave a residue on the cooktop in the form of metallic lines.
This is normal. These lines can be removed using a non-abrasive ceramic cooktop cleaner or a shielded scraper blade.
– Cast iron, glass or stoneware should not be used because they have poor heat transfer and may scratch the surface.
CAUTION: Be sure to clean the cooktop after each use. Each time the residue is allowed to melt it becomes harder to remove and may mar the appearance of the cooktop. Let the cooktop cool before cleaning.
CARE AND MAINTENANCE
CLEANING YOUR APPLIANCE
Turn off the power, unplug the cooktop and refrigerator, make sure all surface units are off and cool before removing anything, then remove all items including shelves and rack.
Wash the inside surfaces with a solution of warm water and baking soda. The solution should consist of about 2 tablespoons of baking soda in a quart of water.
Wash the shelves and rack with a mild detergent solution.
The outside of the Compact Kitchen should be cleaned with mild detergent and warm water.
Wring excess water out of the sponge or cloth when cleaning the area of the controls, or any electrical parts.
Wash the outside cabinet with warm water and mild liquid detergent. Rinse well and wipe dry with a clean soft cloth.
Do not use steel wool or a steel brush on the cooktop.
CAUTION:
Failure to unplug the appliance during cleaning could result in electrical shock or another personal injury.
CLEANING BURNERS AND REFLECTOR BOWLS
Disconnect the cooktop from the power and turn off the Compact Kitchen to make sure that burners are off and cool before removing burners and reflector bowls.
Remove the burners and reflector bowls as follows:
1. Lift the edge of each burner opposite the receptacle and pull it gently out of the mounting receptacle.
2. After the burners have been removed, the reflector bowls can be lifted out of their mountings.
Clean the burners and reflector bowls with mild detergent and warm water. Wring excess water out of the sponge or cloth when cleaning them.
Replace the burners and reflector bowls as follows:
1. Line up the opening of the reflector bowls with the burners’ receptacles, hold the burners as level as possible with the terminals just positioned into the receptacle, then push the burners’ terminals into the receptacles.
2. When the terminals are pushed into the receptacles as far as they will go, push down the edge of each burner opposite the receptacle.
NOTE: Do not immerse burners in water or any other liquids.
POWER FAILURE
Most power failures are corrected within a few hours and should not affect the temperature of your refrigerator if you minimize the number of times the door is opened. If the power is going to be off for a longer period of time, you need to take the proper steps to protect the contents of the refrigerator.
When a power failure occurs, make sure to turn all burners off.
VACATIONS
Short vacations: Leave the Refrigerator of your Compact Kitchen operating during vacations of less than three weeks.
Long vacations: If the appliance will not be used for several months, remove all items and turn off the power supply. Clean and dry the interior thoroughly. To prevent odor and mold growth, leave the door open slightly, blocking it open if necessary.
MOVING YOUR APPLIANCE
Disconnect the power supply from the cooktop and refrigerator.
Shut off the water supply. Use a qualified plumber to disconnect the water supply connections and water drain connection.
Remove all items from the storage compartment.
Unplug the refrigerator, remove it from the Compact Kitchen and move them separately.
Securely tape down all loose items (shelves and basket) inside your Compact Kitchen Compartment and Refrigerator.
Turn the adjustable feet up to the base to avoid damage.
Tape the doors shut.
Be sure the Compact Kitchen and Refrigerator stay secure in the upright position during transportation. Also protect the outside of the Compact Kitchen and Refrigerator with a blanket or similar item.
TROUBLESHOOTING
You can solve many common problems easily, saving you the cost of a possible service call. Try the suggestions below to see if you can solve the problem before calling a service technician.
Troubleshooting Guide
| PROBLEM | POSSIBLE CAUSE |
| Compact Kitchen does not operate. | Not connected to power supply. Circuit breaker is tripped or fuse has blown. |
| The Refrigerator does not operate. | Not connected to power supply. Circuit breaker is tripped or fuse has blown. The temperature control knob is set in “OFF” position. |
| The Refrigerator turns on and off frequently. | The room temperature is hotter than normal. The door is opened too often. The door is not closed completely. The temperature control is not set correctly. The door gasket does not seal properly. |
| Vibrations | Check to assure that the refrigerator is leveled. |
| The Refrigerator seems to make too much noise. | The rattling noise may come from the flow of the refrigerant, which is normal. As each cycle ends, you may hear gurgling sounds caused by the flow of refrigerant. Contraction and expansion of the inside walls may cause popping and crackling noises. The refrigerator is not leveled. |
| The refrigerator door will not close properly. | The refrigerator is not leveled. The gasket is dirty. The shelves are out of position. |
| Burners will not maintain a rolling boil or frying rate is not fast enough. | You must use pans that are absolutely flat. Pan bottom should closely match the diameter of the burner selected. |
| Foods cook slowly. | Improper cookware being used. |
| Burners do not operate. | Circuit breaker is tripped or fuse has blown. The burners are not plugged into the receptacle all the way. The power switch knobs are not set correctly. |
| Burners control knobs will not turn. | You are not pushing in before turning. |
| The heating element cycles on and off frequently. | The power setting is too low. |
LIMITED WARRANTY
ONE-YEAR LIMITED WARRANTY
Within the 48 contiguous United States, for one year from the date of purchase, when this appliance is operated and maintained according to instructions attached to or furnished with the product, the warrantor will pay for factory specified parts and repair labor to correct defects in materials or workmanship. Service must be provided by a designated service company. Outside the 48 states, all parts are warranted for one year from manufacturing defects. Plastic parts, shelves and cabinets are warranted to be manufactured to commercially acceptable standards and are not covered from damage during handling or breakage.
5-YEAR COMPRESSOR WARRANTY
- The compressor is covered for 5 years.
- The replacement does not include labor.
ITEMS WARRANTOR WILL NOT PAY FOR:
- Service calls to correct the installation of your appliance, to instruct you how to use your appliance, to replace or repair fuses or to correct wiring or plumbing.
- Service calls to repair or replace appliance light bulbs or broken shelves. Consumable parts (such as filters) are excluded from warranty coverage.
- Damage resulting from accident, alteration, misuse, abuse, fire, flood, acts of God, improper installation, installation not in accordance with electrical or plumbing codes, or use of products not approved by the warrantor.
- Replacement parts or repair labor costs for units operated outside the United States.
- Repairs to parts or systems resulting from unauthorized modifications made to the appliance.
- The removal and reinstallation of your appliance if it is installed in an inaccessible location or is not installed in accordance with published installation instructions.
DISCLAIMER OF IMPLIED WARRANTIES; LIMITATION OF REMEDIES
CUSTOMER’S SOLE AND EXCLUSIVE REMEDY UNDER THIS LIMITED WARRANTY SHALL BE PRODUCT REPAIRAS PROVIDED HEREIN. IMPLIED WARRANTIES, INCLUDING WARRANTIES OF MERCHANTABILITY OR FITNESS FOR A PARTICULAR PURPOSE, ARE LIMITED TO ONE YEAR.
WARRANTOR SHALL NOT BE LIABLE FOR INCIDENTAL OR CONSEQUENTIAL DAMAGES. SOME STATES DO NOT ALLOW THE EXCLUSION OR LIMITATION OF INCIDENTAL OR CONSEQUENTIAL DAMAGES, OR LIMITATIONS ON THE DURATION OF IMPLIED WARRANTIES OF MERCHANTABILITY OR FITNESS, SO THESE EXCLUSIONS OR LIMITATIONS MAY NOT APPLY TO YOU. THIS WARRANTY GIVES YOU SPECIFIC LEGAL RIGHTS AND YOU MAY ALSO HAVE OTHER RIGHTS, WHICH VARY FROM STATE TO STATE.
WARNING: This product can expose you to chemicals including Nickel
(Metallic) which is known to the State of California to cause cancer. For more information go to www.P65Warnings.ca.gov
Note: Nickel is a component in all stainless steel and some other metal components.
FELIX STORCH, INC.
770 Garrison Avenue
Bronx, NY10474
Phone: (718) 893-3900
Fax: (844) 478-8799
www.summitappliance.com
For parts and accessory ordering,
troubleshooting and helpful hints, visit:
www.summitappliance.com/support
Printed in China


















