CR2110B Ceramic Glass Electric Cooktop
User Manual
Models
CR2110B CR2BV115BK LCR2B120BK
CR2110WHE CR2BV115WHE LCR2B120WHE
CR2220B CR2BV230BK LCR2B230BK
CR2220WHE CR2BV230WHE LCR2B230WHE
BEFORE USE, PLEASE READ AND FOLLOW ALL SAFETY RULED AND OPERATING INSTRUCTIONS
Write Model and Serial Numbers here
Model:_______________
Serial No._____________
SAFETY INSTRUCTIONS
We have provided many important safety messages in this manual and on your unit. Always read and obey all safety messages.
This is the Safety Alert Symbol. The symbol alerts you to potential hazards that can kill or injure you and others. All safety messages will follow the Safety Alert Symbol and either the words “DANGER” or “WARNING”.
DANGER means that failure to heed this safety statement may result in severe personal injury or death.
WARNING means that failure to heed this safety statement may result in extensive product damage, serious personal injury, or death.
All safety messages will alert you about the potential hazard, tell you how to reduce the chance of injury, and let you know what can happen if the instructions are not followed.
IMPORTANT SAFEGUARDS
Before the equipment is used, it must be properly positioned and installed as described in this manual, so read the manual carefully. To reduce the risk of fire, electrical shock or injury when using this equipment, follow basic precautions, including the following:
![]()
- Be sure your appliance is properly installed and grounded by a qualified technician.
- Never use your appliance for warming or heating the room.
- Children should NEVER be left alone or unattended in the area where the appliance is in use. They should never be allowed to sit or stand on any part of the appliance. Do not store items of interest to a child in cabinets above cooktop. Children climbing on the cooktop to reach such items could be seriously injured.
- Wear proper clothing/apparel: loose-fitting or hanging garments should never be worn while using the appliance.
- Do not repair or replace any part of the appliance. If service ever becomes necessary, this appliance should be serviced by AUTHORIZED PERSONNEL ONLY or call
- SUMMIT Customer Service at 1-800-932-4267.
- Keep flammable materials away from the cooktop.
- Do not store plastic material (such as plastic utensils) in storage areas beneath cooktop.
o Plastic items with low melting temperatures should not be stored under, over or near the cooktop.
o Never immerse the removable heating elements in water or any other liquid - Do not use water on grease fires.
- Smother fire or flame or use dry chemical or foam-type extinguisher.
- Use only dry potholders.
- Damp potholders on hot surfaces may result in burns from steam. Do not let potholder touch the heating elements on the appliance. Do not use a towel or other bulky cloth in place of a potholder.
- Do not cook on a broken cooktop.
- If your cooktop should break, cleaning solutions and spillovers may penetrate the broken cooktop and create a risk of electric shock. Immediately contact an authorized service center or call the SUMMIT Customer Service at 1-800- 932-4267.
- Clean cooktop with caution.
- If a wet sponge or cloth is used to wipe spills on a hot cooking surface, be careful to avoid steam burns. Some cleaners produce noxious fumes if applied to a hot surface. Read the cleaner label for details prior to use.
- DO NOT TOUCH HEATING ELEMENTS.
- The heating elements on the cooktop may be hot even if they are dark in color. These areas may be hot enough to cause burns. Never touch heating elements until they have had sufficient time to cool. Likewise, never allow clothing or flammable materials to come in contact with heating elements or the cooktop surface until they have had sufficient time to cool. Other surfaces of the appliance may become hot enough to cause burns.
- Use proper pan size.
- This appliance is equipped with one or more 6″-diameter surface units. Select utensils having flat bottoms large enough to cover the surface unit heating element. The use of undersized utensils will expose a portion of the heating element to direct contact and may result in ignition of clothing.
- Proper relationship of utensil to burner will also improve efficiency.
- Never leave surface units unattended at high heat settings.
- Boil-over causes smoking and greasy spillovers that may ignite.
- Utensil handles should be turned inward and not extend over adjacent surface units.
- To reduce the risk of burns, ignition of flammable materials, and spillage due to unintentional contact with the utensil, the handle of a utensil should be positioned so that it is turned inward, and does not extend over adjacent surface units.
- These cooktops are for HOUSEHOLD USE ONLY.
INSTALLATION INSTRUCTIONS
This appliance must be properly installed and grounded by a qualified technician.
Unpacking the Cooktop
- Carefully unpack the cooktop from its shipping container. If possible, retain the original shipping carton and protective packaging in the event the unit ever has to be returned for service.
- Identify the package contents. Verify the following items are included in the carton. Call SUMMIT immediately if any components are missing or damaged.

Parts included:
- Ceramic glass c ooktop
- Mounting brackets: 2 pieces for Single and Double Burners and 4 pcs. for Triple Burners
- Mounting screws: 2 pieces for Single and Double Burners and 4 pieces for Triple Burners
- Self-adhesive sealant s trip
Electrical Supply Requirements
This product must be installed in accordance with national, state and local electric codes. The following table provides the correct voltage, amperage and frequency that must be supplied to the cooktop.

| Model Number | Max. Connected Load | Required Power Supply Input | Min. Wire Size |
| CR2110WHE | 2,400 Watts | 120V AC/20A/50-60Hz | #16 AWG |
| CR2110B | 2,400 Watts | 120V AC/20A/50-60Hz | #16 AWG |
| CR2220WHE | 2,400 Watts | 240V AC/10A/50-60Hz | #16 AWG |
| CR2220B | 2,400 Watts | 240V AC/10A/50-60Hz | #16 AWG |
- The supply must be from an individual grounded circuit that is protected by a circuit breaker and rated per the specifications for the various models as shown in the table above.
- Consult with a licensed electrician before proceeding with the installation if the electrical power supply does not meet the product specifications,
CAUTION: Installations must comply with all local, state, and national electrical codes. Failure to comply with the applicable codes may result in fire, property damage, personal injury, or death.
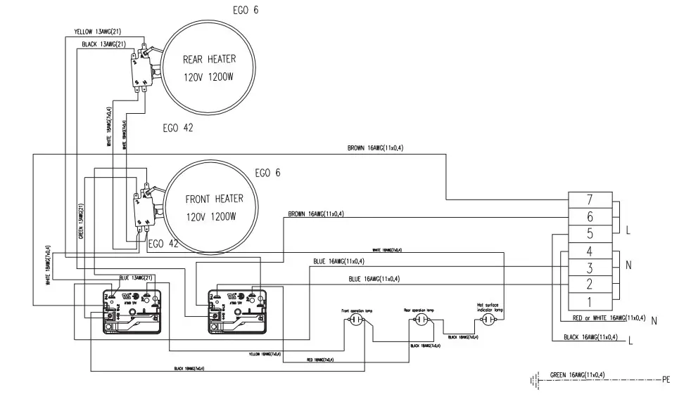
Electrical Connection
- Before installing your cooktop, disconnect the power supply. Verify that the appropriate electrical supply requirements have been met. Refer to the table above for the appropriate electrical requirements.
- The cooktop is supplied with a 40” long power cable to connect to an accessible junction box.
The conduit consists of three insulated wires.
o In 120V units, there is a hot lead conductor (black insulated tinned copper), one insulated ground conductor (green insulated tinned copper) and a neutral conductor (red or white insulated tinned copper).
o In 240V units, there is a hot lead conductor (black insulated tinned copper), one insulated ground conductor (green insulated tinned copper) and a neutral conductor (red or white insulated tinned copper).
Attach conductor wires to residence wiring in accordance with national, state and local electric codes.
WARNING
The entire appliance must be grounded at all times when the electrical power supply is on.
Connect the red to red, black to black and green to ground. Do not ground the appliance with the neutral house supply wire. A separate ground must be used.
Countertop Preparation
Before installing your cooktop, be mindful of the proper dimensions and clearances needed to ensure safe use and operation. Refer to the dimensions below, in accordance with Fig. 2:
A. 13” maximum depth of overhead cabinets.
B. 36” minimum height of the countertop above floor.
C. NOTE: The minimum flat countertop surface that the cooktop will rest upon must be equal or greater than the overall cooktop dimensions. Refer to the following pages for overall cooktop dimensions.
D. 30” minimum clearance between the top of the cooking surface and the bottom of an unprotected wood or metal cabinet or 24” minimum clearance when the bottom of wood or metal cabinet is protected by no less than ¼-inch-thick flame retardant millboard covered with no less than No. 28 MSG sheet steel, 0.015” thick stainless steel, 0.024” thick aluminum or 0.020” thick copper.
E. 1” minimum from the backsplash of the countertop to edge of glass cooktop. Refer to the following pages for overall cooktop dimensions. 
CAUTION: Do not install the cooktop closer than ½” (12mm) from any adjacent surface.
- Cabinets located above the surface of the cooktop should be avoided to eliminate the risk of burns caused by reaching over the heated cooktop. If cabinet storage is necessary, the risk of burns or fire can be reduced by installing a range hood that projects horizontally a minimum of 5” out beyond the bottom of the cabinets.
- Before making the countertop cutout, check for clearance. Check to see if the cooktop will clear the front and side walls of the base cabinet. It is also important to provide enough ventilation.
- Adequate ventilation of the space below the countertop must be provided to ensure proper operation of the cooktop. Heat transferred from the cooktop bottom pan during operation will overheat an improperly ventilated area.

- Allow a 2” minimum clearance between the bottom of the metal pan of the cooktop and any combustible surface located below, i.e.: the upper edge of a drawer installed below the cooktop (refer to Fig. 3). Failure to provide proper clearances and ventilation may result in a fire hazard.
- Cooktop dimensions and countertop cutout dimensions for each model are shown below:


NOTE: When making the countertop, radius the corner of the cutout (1/4” radius is typical). This will prevent cracking of the countertop. Follow manufacturer’s instructions regarding minimum corner radius and reinforcement of corners.
Installation
- Attach the self-adhesive sealant as described below. The sealant prevents liquid from infiltrating into the cabinet. Additionally, the cooktop should be bedded to the countertop using a soft bedding compound that will prevent damage if later removal for service is necessary. The mounted special seal prevents this damage. Strictly comply with the following instructions in order to correctly apply this seal:
a. Detach the seals from their backing, checking that the transparent protection still adheres to the seal itself.
b. Turn the cooktop over and correctly position the seal under the edge of the cooktop so that the outer side of the seal aligns with the outer peripheral edge of the cooktop (refer to Fig.
5). The ends of the strips must fit together without overlapping.
c. Fix the seal to the cooktop evenly and securely, pressing it in place with your fingers.
- Attach the mounting brackets to the inside bottom surface of the cutout (refer to Figs. 6-7-8).
The brackets are to be mounted on opposing sides. - Center the bracket in the opening flush with the countertop, and secure with long self-tapping screws (included).
- Position the cooktop in the cutout opening and press firmly on all sides to seal the frame into the bedding compound.
- Secure the cooktop to the brackets from underneath with the small sheet metal screws that are supplied. There are two mounting brackets for the single and double glass
- ceramic cooktops and four brackets for the triple glass ceramic cooktop.
- These brackets are designed to tighten the cooktop and then seal it onto the counter to avoid any movement of the cooktop and to provide good insulation.


OPERATION
The cooking surface areas of your glass ceramic cooktop are identified by permanent patterns in the cooktop. Keeping the cooktop at top performance levels can be achieved by following the simple guidelines for use and cleaning below.
Heating Elements
This cooktop contains radiant heating elements, which will “light up” about 4-5 seconds after being turned on. The special design of these elements directs the heat up through the ceramic glass, providing efficient cooking. Temperature limiters are included in each element to ensure that the safe operating temperature of the ceramic glass top is not exceeded. The temperature limiter will cycle the radiant element on and off to prevent exceeding the maximum safe surface temperature.
Cookware
Cooking on a glass ceramic cooktop does not require special pots or pans. Since cookware plays an important role in cooking efficiency and convenience, keep in mind the following information when selecting your cookware.
- The cookware should have a flat bottom. Although glass and other types of cookware can be used, aluminum, stainless steel and other types of metal cookware, with thick, smooth, flat bottoms usually work best. Avoid cookware with shaped and rounded bottoms, as well as utensils that warp when heated.
- Use cookware that is about as wide as the cooking zone on which it is used. Using cookware with the correct diameter achieves maximum heating efficiency in the shortest possible time.
- Be certain that both the cooktop surface and the bottom of your pots and pans are clean and dry before use. By doing so, you will help prevent scratches and stains.
Controls and Indicators
The cooking area controls begin at low and increase heat output by cycling the heating elements between OFF and full power as you turn the knob clockwise. The heating elements will stay at full power for longer periods and at zero power for shorter periods as you turn the knob clockwise, thus increasing the heat output.
There is a light next to each of the control knobs that provides an indication of burner operation and a hot surface. When a control is in the ON position, the red light is lit indicating which burner is on and is therefore too warm to touch.
DO NOT place articles other than cookware on the cooking surface while this light is glowing.
CLEANING
To help ensure that your cooktop stays clean, follow these easy-care tips:
Clean the cooktop before you use it for the first time. A thorough cleaning with a recommended cooktop cleaner will provide a coating on the cooktop prior to its first use.
Always remove food spills, grease spatters and metal rub-off from cookware. A razor blade scraper or the equivalent works well to remove spillovers.
Clean the cooktop with a paper towel or a clean, soft cloth and a recommended cleaner. After cleaning, always wipe the cooktop with a clean, damp cloth to avoid cooked-on cleaner residue.
Wipe the cooktop dry.
Do not use a dish towel or sponge to wipe off the cooktop. A film may be left by the detergent and may cause discoloration of the cooktop surface.
Avoid abrasive scouring cleaners of any kind. Also avoid using plastic, nylon or metal cleaning pads. They may scratch or melt onto the cooktop.
Avoid chemical cleaners such as chlorine bleach, ammonia, hydrofluoric acid or chemical oven cleaners. They can etch or discolor the surface.
Do not let anything that melts – plastic, aluminum foil, sugar, etc., come into contact with the cooktop surface when it is hot. Should something melt onto the surface, immediately move it to a cool area of the cook top with a razor blade scraper and then remove it from the cooktop as soon as possible.
LIMITED WARRANTY
ONE-YEAR LIMITED WARRANTY
Within the 48 contiguous United States, for one year from the date of purchase, when this appliance is operated and maintained according to instructions attached to or furnished with the product, warrantor will pay for factory-specified parts and repair labor to correct defects in materials or workmanship. Service must be provided by a designated service company. Outside the 48 states, all parts are warranted for one year from manufacturing defects. Plastic parts, shelves and cabinets are warranted to be manufactured to commercially acceptable standards, and are not covered from damage during handling or breakage.
ITEMS WARRANTOR WILL NOT PAY FOR:
Service calls to correct the installation of your appliance, to instruct you how to use your appliance, to replace or repair fuses or to correct wiring or plumbing.
Service calls to repair or replace appliance light bulbs or broken glass shelves. Consumable parts (such as filters) are excluded from warranty coverage.
Damage resulting from accident, alteration, misuse, abuse, fire, flood, acts of God, improper installation, installation not in accordance with electrical or plumbing codes, or use of products not approved by warrantor.
Replacement parts or repair labor costs for units operated outside the United States.
Repairs to parts or systems resulting from unauthorized modifications made to the appliance.
The removal and reinstallation of your appliance if it is installed in an inaccessible location or is not installed in accordance with published installation instructions.
DISCLAIMER OF IMPLIED WARRANTIES – LIMITATION OF REMEDIES
CUSTOMER’S SOLE AND EXCLUSIVE REMEDY UNDER THIS LIMITED WARRANTY SHALL BE PRODUCT REPAIR AS PROVIDED HEREIN. IMPLIED WARRANTIES, INCLUDING WARRANTIES OF MERCHANTABILITY OR FITNESS FOR A PARTICULAR PURPOSE, ARE LIMITED TO ONE YEAR. WARRANTOR SHALL NOT BE LIABLE FOR INCIDENTAL OR CONSEQUENTIAL DAMAGES. SOME STATES DO NOT ALLOW THE EXCLUSION OR LIMITATION OF INCIDENTAL OR CONSEQUENTIAL DAMAGES, OR LIMITATIONS ON THE DURATION OF IMPLIED WARRANTIES OF MERCHANTABILITY OR FITNESS, SO THESE EXCLUSIONS OR LIMITATIONS MAY NOT APPLY TO YOU. THIS WARRANTY GIVES YOU SPECIFIC LEGAL RIGHTS AND YOU MAY ALSO HAVE OTHER RIGHTS, WHICH VARY FROM STATE TO STATE.
WARNING: This product can expose you to chemicals including Nickel (Metallic) which is known to the State of California to cause cancer.
For more information go to www.P65Warnings.ca.gov
Note. Nickel is a component in all stainless steel and some other metallic compositions.
Summit Appliance Division of Felix Storch, Inc.
An ISO 9001:2015 registered company
770 Garrison Avenue
Bronx, NY 10474
www.summitappliance.com
For parts and accessory ordering, troubleshooting and helpful hints, visit:
www.summitappliance.com/support

























