SYSTEM SENSOR PDRP-1001 Deluge Preaction Control Panel User Guide

Installation Precautions – Adherence to the following will aid in problem-free installation with long-term reliability:
WARNING – Several different sources of power can be connected to the fire alarm control panel. Disconnect all sources of power before servicing. Control unit and associated equipment may be damaged by removing and/or inserting cards, modules, or interconnecting cables while the unit is energized. Do not attempt to install, service, or operate this unit until this manual is read and understood.
CAUTION – System Reacceptance Test after Software Changes: To ensure proper system operation, this product must be tested in accordance with NFPA 72-1993 Chapter 7 after any programming operation or change in site-specific software. Reacceptance testing is required after any change, addition or deletion of system components, or after any modification, repair or adjustment to system hardware or wiring.
All components, circuits, system operations or software functions known to be affected by a change must be 100% tested. In addition, to ensure that other operations are not inadvertently affected, at least 10% of initiating devices that are not directly affected by the change, up to a maximum of 50 devices must also be tested and proper system operation verified.
This system meets NFPA requirements for operation at 0-49O C/ 32-120O F and at a relative humidity of 85% RH (non-condensing) at 30O C/86O F. However, the useful life of the system’s standby batteries and the electronic components may be adversely affected by extreme temperature ranges and humidity. Therefore, it is recommended that this system and its peripherals be installed in an environment with a nominal room temperature of 15-27O C/60-80O F.
Verify that wire sizes are adequate for all initiating device loops. Most devices cannot tolerate more than a 10% I.R. drop from the specified device voltage.
Fire Alarm System Limitations
An automatic fire alarm system – typically made up of smoke detectors, heat detectors, manual pull stations, audible warning devices and a fire alarm control with remote notification capability can provide early warning of a developing fire. Such a system, however, does not assure protection against property damage or loss of life resulting from a fire.
Any fire alarm system may fail for a variety of reasons:
Smoke detectors may not sense fire where smoke cannot reach the detectors such as in chimneys, in walls, or roofs, or on the other side of closed doors. Smoke detectors also may not sense a fire on another level or floor of a building. A second floor detector, for example, may not sense a first floor or basement fire. Furthermore, all types of smoke detectors – both ionization and photoelectric types, have sensing limitations. No type of smoke detector can sense every kind of fire caused by carelessness and safety hazards like smoking in bed, violent explosions, escaping gas, improper storage of flammable materials, overloaded electrical circuits, children playing with matches, or arson.
IMPORTANT! Smoke detectors must be installed in the same room as the control panel and in rooms used by the system for the connection of alarm transmission wiring, communications, signaling and /or power. If detectors are not so located, a developing fire may damage the alarm system, crippling its ability to report a fire.
Like all solid state electronic devices, this system may operate erratically or can be damaged when subjected to lightning induced transients. Although no system is completely immune from lightning transients and interferences, proper grounding will reduce susceptibility. Overhead or outside aerial wiring is not recommended, due to an increased susceptibility to nearby lightning strikes. Consult with the Technical Services Department if any problems are anticipated or encountered.
Disconnect AC power and batteries prior to removing or inserting circuit boards. Failure to do so can damage circuits.
Remove all electronic assemblies prior to any drilling, filing, reaming or punching of the enclosure. When possible, make all cable entries from the sides or rear. Before making modifications, verify that they will not interfere with battery, transformer and printed circuit board location.
Do not tighten screw terminals more than 9 in-lbs. Over tightening may damage threads, resulting in reduced terminal contact pressure and difficulty with screw terminal removal.
This system contains static-sensitive components Always ground yourself with a proper wrist strap before handling any circuits so that static charges are removed from the body. Use static suppressive packaging to protect electronic assemblies removed from the unit.
Follow the instructions in the installation, operating and programming manuals. These instructions must be followed to avoid damage to the control panel and associated equipment. FACP operation and reliability depend upon proper installation.
While installing a fire alarm system may make lower insurance rates possible, it is not a substitute for fire insurance!
Audible warning devices such as bells may not alert people if these devices are located on the other side of closed or partly open doors or are located on another floor of a building.
A fire alarm system will not operate without any electrical power. If AC power fails, the system will operate from standby batteries only for a specified time.
Rate-of-Rise heat detectors may be subject to reduced sensitivity over time. For this reason, the rate-of-rise feature of each detector should be tested at least once per year by a qualified fire protection specialist.
Equipment used in the system may not be technically compatible with the control panel. It is essential to use only equipment listed for service with your control panel.
Telephone lines needed to transmit alarm signals from a premise to a central monitoring station may be out of service or temporarily disabled.
The most common cause of fire alarm malfunctions, however, is inadequate maintenance. All devices and system wiring should be tested and maintained by professional fire alarm installers following written procedures supplied with each device. System inspection and testing should be scheduled monthly or as required by National and/or local fire codes. Adequate written records of all inspections should be kept.
FCC Warning
WARNING: This equipment generates, uses and can radiate radio frequency energy and if not installed and used in accordance with the instruction manual, may cause interference to radio communications, It has been tested and found to comply with the limits for class A computing device pursuant to Subpart B of 15 of FCC Rules, which is designed to provide reasonable protection against such interference when operated in a commercial environment. Operation of this equipment in a residential area is likely to cause interference, in which case the user will be required to correct the interference at his own expense.
Canadian Requirements
This digital apparatus does not exceed the Class A limits for radiation noise emissions from digital apparatus set out in the Radio Interference Regulations of the Canadian Department of Communications.
NFPA Standards
This control panel complies with the following NFPA standards:
NFPA 13 Sprinkler Systems
NFPA 15 Water Spray Systems Systems
NFPA 16 Foam-Water Deluge and Foam-Water Spray Systems
NFPA 72 Central Station Signaling Systems (Automatic, Manual, and Waterflow). Protected Premises Unit (Requires NOTI•FIRE 911AC DACT or MS-5012 Slave Communicator)*
NFPA 72 Local (Automatic, Manual, Waterflow and Sprinkler Supervisory) Fire Alarm Systems NFPA 72 Auxiliary (Automatic, Manual, and Waterflow) Fire Alarm Systems. (Requires 4XTM) NFPA 72 Remote Station (Automatic, Manual, and Waterflow) Fire Alarm Systems. Requires 4XTM, NOTI•FIRE 911AC DACT*
*Applications which require the NOTI•FIRE 911AC are not FM approved.
Additional Information
Before proceeding, the installer should be familiar with the following documents and standards:
NFPA Standards:
NFPA 13 Sprinkler Systems
NFPA 15 Water Spray Systems Systems
NFPA 16 Foam-Water Deluge and Foam-Water Spray Systems
NFPA 72 Installation, Maintenance and Use of Central Station Signaling Systems NFPA 72 Local, Auxiliary, Remote Station and Proprietary Fire Alarm Systems NFPA 72 Automatic Fire Detectors
NFPA 72 Installation, Maintenance and Use of Notification Appliances for Fire Alarm Systems NFPA 72 Testing Procedures for Signaling Systems
Underwriters Laboratories Documents:
UL 38 Manual Actuated Signaling Boxes
UL 217 Smoke Detectors, Single and Multiple Station UL 228 Door Closers – Holders for Fire Alarm Systems UL 268 Smoke Detectors for Fire Alarm Systems
UL 268A Smoke Detectors for Duct Applications UL 346 Waterflow Indicators for Fire Alarm systems UL 464 Audible Signaling Appliances
UL 521 Heat Detectors for Fire Alarm Systems
UL 864 Standard for Control Units for Fire Alarm Systems UL 1481 Power Supplies for Fire Alarm Systems
UL 1638 Visual Signaling Appliances
UL 1971 Signaling Devices for the Hearing Impaired
CAN/ULC-S524-M91 Standard for Installation of Fire Alarm Systems CAN/ULC-S527-M87 Standard for Control Units for Fire Alarm Systems
Other:
NEC Article 300 Wiring Methods NEC Article 760 Fire Alarm Systems
Applicable Local and State Building Codes Requirements of the Local Authority Having Jurisdiction Notifier Device Compatibility Document, 15378
1 The PDRP-1001/PDRP-1001A/PDRP-1001E
Features
- Microprocessor-controlled
- Alarm and trouble resound
- Four Class B (Style B)/Class A (Style D) Initiating Device Circuits
- Two Class B (Style Y)/Class A (Style Z) Notification Appliance Circuits
- Two Class B (Style Y) Release Circuits
- General alarm and trouble relays
- Optional module for 4 zone/function relays (4XZM)
- Optional transmitter module (4XTM). Complies with NFPA 72 Auxiliary and Remote Station Fire Alarm Systems
- Optional volt/amp meter module (4XMM)
- Optional supervised remote annunciator RZA-4X). Requires LED Interface Module (4XLM)
- Optional digital communicator (NOTI•FIRE 911AC)*
- Complies with NFPA 72 Central Station and NFPA 72 Remote Station Fire Alarm Systems
- Designed for sprinkler standards NFPA 13, 15, and 16
- Disable/enable controls per initiating zone
- Last Event Recall
- Battery/Earth fault supervision
- Fuse protection on all Notification/Release Circuits
- RMS regulated output power, 2.25 amps
- 7 amp/hour to 15 amp/hour battery options, up to 90 hours standby
- Resettable and non-resettable regulated power outputs
- Extensive transient protection
- Watchdog timer to supervise microprocessor (includes MICRO FAIL LED)
- Output circuits protected against false activations
- Slide-in zone identification labels
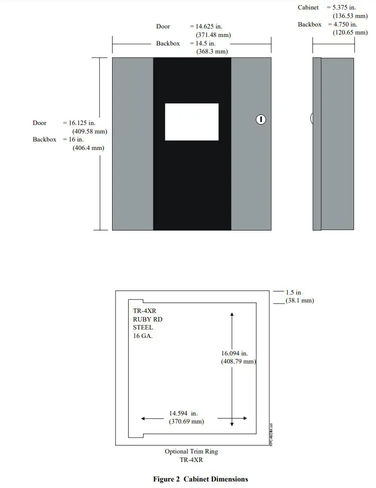
- Steel cabinet 14.5″ wide by 16″ high by 5″ deep
- Dead-front dress panel option (DP-4X)
- Trim ring for flush mount between 16″ center studs (TR-4XR)
- Cross-zone (double-interlock) option
- Municipal Box output
- Interface Module (4XLM)
- Dual hazard operation
- Adjustable discharge timer
*Applications which require the NOTI•FIRE 911AC are not FM approved.
Circuits
Input Circuits
Manual Release/Detector Circuit 1, Class A (Style D)/Class B (Style B) Detector Circuit 2, Class A (Style D)/Class B (Style B)
Waterflow, Class A (Style D)/Class B (Style B) Supervisory, Class A (Style D)/Class B (Style B)
Output circuits (optional auxiliary relays track these four circuits)
Alarm/Waterflow Bell, Class A(Style Z)/Class B (Style Y) Waterflow/Supervisory Bell, Class A(Style Z)/Class B (Style Y) Releasing Circuit 1, Class B (Style Y)
Supervisory Bell/Release Circuit 2, Class B (Style Y)
Front Panel Control Switches
Switch 1 Tone Silence
Switch 2 Alarm Silence
Switch 3 Alarm Activate
Switch 4 System Reset

Optional Boards
The PDRP-1001/PDRP-1001A/PDRP-1001E has mounting slots for two option boards. Any two of the three option modules may be installed.
Transmitter Module (4XTM – NOTIFIER)
The Transmitter Module provides a supervised output for local energy municipal box transmitter (for NFPA 72 Auxiliary Fire Alarm System) and alarm and trouble reverse polarity circuits (for NFPA 72 Remote Station Fire Alarm System). Also included is a DISABLE switch and disable trouble LED.
As a jumper option, the alarm reverse polarity circuit will open on trouble if no alarm exists.

LED Interface Module (4XLM – NOTIFIER)
The LED Interface Module supports the RZA-4X Remote Annunciator module. Annunciator wiring is supervised for open conditions by this module. The Annunciator Driver Module mounts to the main board, occupying one of the two option connectors.

Zone Relay Module (4XZM – NOTIFIER)
The Zone Relay module provides Form-C contacts for the following:
- Alarm/Waterflow Bell
- Waterflow/Supervisory Bell
- Releasing Circuit 1
- Supervisory Bell/Release Circuit 2
- System Alarm
- System Trouble
As a jumper option, the first four relays described below can be made silence able.

Transmitter Module (4XTM – NOTIFIER)
For Local Energy Municipal Box service (NFPA 72 Auxiliary Fire Alarm System)
Supervisory current: 5.0 mA
Trip current: 0.35 amps. (Subtracted from Notification Appliance power) Coil Voltage: 3.65 VDC
Coil resistance: 14.6 ohms
Maximum allowable wire resistance between panel and trip coil: 3 ohms Municipal Box wiring can leave the building
For Remote Station Service
(NFPA 72 Remote Station Fire Alarm System):
Maximum load for each circuit: 10mA Reverse polarity output voltage: 24 VDC
Remote Alarm and Remote Trouble wiring can leave the building
LED Interface Module (4XLM – NOTIFIER)
Maximum voltage/current, each output: 27.6V/8mA
Note: Outputs are power limited
Zone Relay Module (4XZM – NOTIFIER)
Dry Form-C contacts rated: 2.0 amps @ 30VDC (resistive), 0.5 amps @ 30 VAC (resistive)
Remote Annunciator
Remote Annunciator (RZA-4X – NOTIFIER)
The Remote Annunciator mounts on a standard single- gang box, and provides LED indication of the following:
- Alarm/Waterflow Bell (red)
- Waterflow/Supervisory Bell (red)
- Releasing Circuit 1 (red)
- Supervisory Bell/Release Circuit 2 (red)
- System Trouble LED (yellow)

A Local Trouble Sounder and Silence Switch are also provided. All LED wiring is supervised for open conditions. Any open condition will cause the System Trouble LED to illuminate.
Note: The Remote Annunciator requires the use of an LED Interface module (4XLM).
Optional Meters
Voltage, Current Meters (4XMM – NOTIFIER)
The Meter Module provides a voltmeter to measure the voltage across the batteries and an ammeter to measure the charging current to the batteries. The meters are provided as an assembly that mounts to the lower left- hand corner of the cabinet.

Specifications
AC Power
For the PDRP-1001/PDRP-1001A/PDRP-1001E: 120
VAC, 50/60 Hz, 1.2 amps
For the PDRP-1001E: 220/240 VAC, 50 Hz, 0.6 amps
Wire size: minimum #14 AWG with 600V insulation

Battery (lead acid only)
Maximum Charging Circuit: 27.6V, 1.5 amps
Maximum Battery Capacity: 15 AH. (Batteries larger than 12 AH require NOTIFIER #BB-17 or other UL listed external battery cabinet.)
Initiating Device Circuits
Power-limited circuitry
Operation: Class A (Style D)/Class B (Style B)
Normal Operating Voltage: 24 VDC (ripple = 1.0V peak-to-peak) Alarm current: 15 mA minimum
Short circuit current: 40 mA maximum
Maximum detector current in standby: 2 mA (max) per zone Maximum loop resistance: 200 ohms
End-of-line resistor: 4.7K, 1/2-Watt (NOTIFIER part # 71252, UL listed)
Detector loop current is sufficient to ensure operation of one alarmed detector per zone. Supervisory current: 5 mA (including end-of-line resistor)
Notification Appliance and Releasing Circuits
Power-limited circuitry
Maximum allowable voltage drop due to wiring: 2 VDC Normal Operating Voltage: 24 VDC
Total current available to all external devices: 2.25 amps
Maximum signaling current per circuit: 1.5 amps
End-of-line resistor: 4.7K, 1/2-Watt (NOTIFIER part # 71252, UL listed)
Alarm and Trouble Relays
Dry Form-C contacts rated: 2.0 amps @ 30 VDC (resistive), 0.5 amps @ 30 VAC (resistive). All relays must be connected to a power limited power supply.
Four-wire Smoke Detector Power
Up to 200 mA is available for powering 4-wire smoke detectors. Maximum ripple voltage: 1.0 V p/p
Non-resettable Power
Total DC current available from this output is up to 200 mA (subtracted from 4-wire smoke power).
Maximum ripple voltage: 1.0 V p/p
RMS Regulated Power
Total DC current available for powering external devices is 0.5 amp (subtracted from
2.25 amps available to notification appliance circuits). Maximum ripple voltage: 100 mV p/p
Note: For device compatibility, refer to Device Compatibility Chart.

2 System Operation
System Status LEDs
Alarm, Trouble and Supervisory LEDs will flash on and off until the event(s) has been acknowledged (TONE or ALARM SILENCE), at which point the LED will illuminate steadily.
AC POWER
Green LED that illuminates steadily to indicate presence of AC power.
SYSTEM ALARM
Red LED that flashes when an alarm occurs.
RELEASE
Red LED that illuminates steadily when release occurs.
SUPERVISORY
Yellow LED that flashes upon activation of a supervisory device (such as tamper switch) on Output 4 if selected (see “Setting Mode of Operation” in Section 3 of this manual).
SYSTEM TROUBLE
Yellow LED that flashes for any trouble condition, including those associated with option boards.
CIRCUIT TROUBLE
Yellow LED that flashes for trouble conditions on output circuits (notification and releasing circuits).
ALARM SILENCED
Yellow LED that illuminates steadily when the ALARM SILENCE switch has been pushed after an alarm.
POWER TROUBLE
Yellow LED that flashes for low or disconnected batteries and earth fault conditions.
BATT
Yellow LED that illuminates steadily on motherboard when battery is low or not detected (not visible through door).
EARTH
Yellow LED that illuminates steadily on motherboard during a ground fault condition (not visible through door)
MICRO FAIL
Yellow LED that illuminates on motherboard when watchdog timer detects microprocessor failure (not visible through door)
Control Switches

Zone Status LEDs
The alarm and/or trouble LED(s) will flash until the event(s) has been acknowledged (TONE or ALARM SILENCE), at which point the LED(s) will illuminate steadily

Supervisory
Zone 4 is always used for monitoring supervisory devices (such as valve tamper switches). A short circuit on this zone (activation of a N.O. contact) will cause the supervisory LED and the zone 4 yellow LED to flash. The piezo sounder will generate a unique Pressing TONE SILENCE will silence the piezo and cause the supervisory LED to illuminate steadily, but the Zone 4 Trouble LED will continue to flash.
Supervisory signals latch and require RESET to clear. The ALARM SILENCE switch will silence the piezo, cause the supervisory LED to illuminate steadily and turn off the
Supervisory Notification Appliance Circuit. An open circuit on Zone 4 will be reported as a zone trouble.
Zone Disable
If a zone has been disabled, an alarm that occurs on that zone will flash the red zone LED, but not the piezo or any output circuit. If both power sources are removed from the system, all zones will be re-enabled upon restoration of power. Disable status will be lost.
The Zone Disable routine makes use of the four panel switches as follows:
- Press and hold in the TONE SILENCE switch.
- With the TONE SILENCE switch held in, press (in sequence) the ALARM SILENCE switch, the ALARM ACTIVATE switch, and then the RESET switch.
- The Zone 1 Alarm LED will
- To disable Zone 1, press the RESET The Zone 1 yellow LED will light to show that the zone is disabled.
Note: The RESET switch toggles disable status for the selected zone.
- To select the next zone, press the ALARM SILENCE
- To select the previous zone, press the ALARM ACTIVATE
- When disable selections are complete, release the TONE SILENCE
If any zone has been disabled, the trouble relay will activate and System Trouble LED will flash.
Last Event Recall
Last Event Recall allows the user to display the previous panel status. The last event recall uses the four panel switches as follows:
- Press and hold in the TONE SILENCE
- With the TONE SILENCE switch held in, press (in sequence) the RESET switch, the ALARM ACTIVATE switch, and then the ALARM SILENCE
- Last Event is
- Release the TONE SILENCE switch to return to normal
Note: To clear the last event buffer, press RESET twice.
3 Installation Procedure
General
Carefully unpack the system and check for shipping damage. Mount the cabinet in a clean dry, vibration-free area in which extreme temperatures are not encountered. The location should be readily accessible with sufficient room for easy installation and maintenance. Locate the top of the cabinet approximately five feet above the floor with the hinge mounting on the left. Determine the number of conductors required for the devices to be employed. Pull required conductors into the box through the knockout provided. All wiring should be in accordance with the National and/or Local codes for fire alarm systems.
UL Power Limited Wiring Requirements
Power limited and non-power limited circuit wiring must remain separated in the cabinet. All power limited circuit wiring must remain at least 0.25 in (6.35 mm) away from any non-power limited circuit wiring. Furthermore, all power limited circuit wiring and non-power limited circuit wiring must enter and exit the cabinet through different knockouts and/or conduits. A typical wiring diagram for the PDRP-1001/ PDRP-1001A/PDRP-1001E is shown below.

Initiating Device Circuits
Zones
Wire all alarm initiating devices sequentially for proper supervision. Initiating devices include: heat, photoelectric, and ionization type detectors; and waterflow alarm devices. Refer to the Compatibility Chart in Appendix B.
Note:
- Observe polarity when connecting polarized
- All circuits are supervised and power
- Leave Dummy Load (provided) on all unused

4- Wire Smoke Detector Connections
Refer to the Device Compatibility Document for suitable 4-wire smoke detectors.

Notes on Class A (Style D) and Class B (Style B) field wiring:
- The Power Supervision Relay coil leads must be connected to the last detector base 24V screw terminals.
- Calculation of the maximum allowable resistance in the 24VDC detector power wiring:
RMAX = (20.6 – VOM)
(N x IS) + (NA x IA) + (IR)
Where:
RMAXis the maximum resistance of the 24V wires.
VOMis the minimum operating voltage of the detector or end-of-line relay, whichever is greater, in volts.
N is the total number of detectors on the 24V supply loop.
ISis the detector current standby.
NAis the number of detectors on the 24V power loop which must function at the same time in alarm.
IAis the detector current in alarm.
IRis the end-of-line relay current.
Output Circuits
Notification Appliance Circuits
This control panel can provide two Class A (Style Z)/Class B (Style Y) Notification Appliance Circuits and two Class B (Style Y) Releasing Circuits (see section “Setting Mode of Operation” for DIP switch configuration). Each circuit is capable of 1.5 amps of current. Total current drawn from all four circuits cannot exceed 2.25 amps. Refer to the Compatibility Chart. Circuits are supervised and power-limited.
Note: Wiring must be configured to maintain a minimum voltage of 20.4V on release circuits. Calculation of maximum allowable resistance:

Note: Output #4 can be configured for releasing or supervisory circuit (see Section “Setting Mode of Operation”). If configured as a releasing circuit, the circuit will be non-power limited. If configured as a supervisory circuit, the circuit will be power limited. All wiring must follow the power limited “General” Section.
Figure 6 Notification Appliance Circuits
Alarm Relay
One Form-C dry alarm contact is provided in the basic panel for controlling supplementary devices. It is rated 2 amps at 30 VDC and 0.5 amps at 30 VAC (resistive), and is non-silence able when an alarm occurs. See below for terminal location.
Trouble Relay
One Form-C dry trouble contact is provided in the basic panel for controlling supplementary devices. It is rated 2 amps at 30 VDC and 0.5 amps at 30 VAC (resistive), and will silence when trouble condition is cleared. See below for terminal location.
Note: The alarm and trouble Form-C dry contact relays must be power limited relays. They must be wired from one of the 24V power limited terminals as shown in the figure below or a comparable UL listed power limited power supply.

Power
⚠ CAUTION: Several different sources of power can be connected to this panel. Disconnect all sources of power before servicing. The panel and associated equipment may be damaged by removing and/or inserting cards, modules, or interconnecting cables while this unit is energized.

AC Power
Primary power required for the PDRP-1001/PDRP-1001A/PDRP-1001E panel is 120 VAC, 50/60 Hz, 1.2 amps and primary power for the PDRP-1002E is 220/240 VAC, 50 Hz, 0.6 amps. Overcurrent protection for this circuit must comply with Article 760 of the National Electrical Code (NEC) and/or local codes. Use #14 AWG (2.00 mm2) or larger wire with 600 volt rating.
Battery Power
Observe polarity when connecting battery. Connect battery cable to J9 on the main board using the plug-in connector provided. See Appendix A for calculation of correct battery rating.
⚠ CAUTION: Batteries contain sulfuric acid which can cause severe burns to the skin and eyes, and can destroy fabrics. If contact is made with sulfuric acid, immediately flush skin or eyes with water for 15 minutes and seek immediate medical attention.
Voltmeter/Ammeter
To monitor battery voltage and battery charging current, a 4XMM (NOTIFIER) is required. To install the power meter module, remove the jumper labeled “AMP” and connect cable assembly P2 to pin connector J2 and cable assembly P3 to pin connector J3 on the main board. Secure the 4XMM to the backbox with the two screws provided. On some models, it will be necessary to install the meter bracket with the nuts and bolts provided.

Optional Modules
The fire control panel has two module connectors – J5 and J8. Three modules are available for the panel and they can be used in any combination, including duplicate modules. The corresponding option jumper must be cut before installation of an optional module, to enable module supervision.

Installing Option Modules
Insert the two stand-offs (provided) into the holes located on the right-side edge of the main board. Carefully align the pins on the main board with J1 and/or J2 on the option board. Insert screw through the option board until it is secured on the stand-offs. Affix the terminal identification labels provided with the option modules as shown below.

Transmitter Module – 4XTM (NOTIFIER)
Polarities shown in activated positions. The wiring of this module must follow the requirements as specified in the “General” section, “UL Power Limited Wiring Requirements.”

Push the disconnect switch down to prevent unwanted activation of the Municipal Box and Remote Station Outputs during testing of the control panel. The Disconnect LED will remain illuminated while the Municipal Box is disconnected. The System Trouble LED will indicate disconnected and/or Open Circuit conditions on the Municipal box. Cutting the TBL jumper will allow the alarm reverse polarity circuit to open on trouble, if no alarm exists.
Note: Remote Alarm, Remote Trouble, and Municipal Box wiring can leave the building.
Zone Relay Module – 4XZM (NOTIFIER)
Non-power limited and power limited wiring must have a minimum distance of 0.25 in. (6.35 mm) wire to wire. If this module is used to drive non-power limited and power limited circuits, please follow the instructions below.
Relay #1 through #4 will activate with Output #1 through #4 and remain latched unless jumper “LATCH” is cut.

Note: Refer to the Protected Premises Unit label, located on the door of the control panel, to indicate if any dry contacts are to be used as non-power limited dry contacts.
LED Interface Module – 4XLM (NOTIFIER)
The wiring of this module must follow the requirements as specified in section ”UL Power Limited Wiring Requirements.”

Dip Switch Location and Descriptions
For DIP switch settings, refer to the Section “Setting Mode of Operation.”

Setting Mode of Operation
Basic Program
Select the desired mode of operation and set SW1 DIP switches 1 and 2 per the appropriate column.

Discharge Timer
Select the desired Discharge Timer setting by setting SW1 DIP switches 3, 4 and 5.

For NFPA 13 and 15 applications, Timer must be set to DISABLED.
For NFPA 16 applications, Timer may be set to 10 MINUTES or 15 MINUTES.
Note: Discharge Timer:
- Timer will always start at Zone 2 normal to alarm Upon time-out, corresponding release circuits will shut off.
- Zone 1 will always override timer shutoff (except for Mode #4 – Split Release).
Appendix A: Power Calculations
Standby Battery Requirements
The Standby Battery Current figure obtained in the following table (Table 1) represents the amount of current that must be supplied by the secondary power source (batteries) to sustain control panel operation for one hour.

Note: The control panel will support the installation of one or two optional modules, including two of the same type of module.
Ampere-Hour Calculations

Select a battery with an equal or greater amp/hour rating than the figure obtained in Table 2. Batteries must be lead-acid type.
PS-1270 12 volt, 7 amp/hour (two required) PS-12120 12-volt, 12 amp/hour (two required)
Notes:
- Alarm amp-hours assumes a maximum system draw of 3 amps in alarm for 5 minutes (0.25 amp/hour) or for 10 minutes (0.5 amp/hour)
- NFPA 72 Central Station and Local and Proprietary Fire Alarm Systems require 24 hours of
- NFPA 72 Auxiliary and Remote Station Fire Alarm Systems require 60 hours of
- Factory Mutual Systems require 90 hours of
- The battery charger in this panel will charge a maximum of 15 amp/hours of batteries within 48 hours (7 amp/hour minimum). Batteries larger than 12 amp/ hour will require a UL listed battery cabinet (e.g. NOTIFIER BB-17).
Appendix B: Device Compatibility
| Smoke Detector/Base | Detector Type | Max Standby Current (mA) | Max Alarm Current (mA) |
| System Sensor 2424 | Photoelectric | 0.10 | 41 |
| System Sensor 2424TH | Photoelectric | 0.10 | 41 |
| System Sensor 2451 | Photoelectric | 0.10 | 39 |
| System Sensor 2451TH (with/B402B Base) | Photoelectric | 0.10 | 39 |
| System Sensor 1424 | Ionization | 0.10 | 41 |
| System Sensor 1451 (w/B402B Base) | Ionization | 0.10 | 39 |
| System Sensor 2412 | Photoelectric | 0.12 | 77 |
| System Sensor 2412AT | Photoelectric | 0.12 | 58 |
| System Sensor 2412TH | Photoelectric | 0.12 | 77 |
| System Sensor 2312/24TB | Photoelectric | 0.12 | 50 |
| System Sensor B112LP | Base | 0.12 | 36 |
| System Sensor B114LP | Base | —– | —– |
| System Sensor B404B | Base | —– | —– |
| System Sensor 6424 | Projected Beam | 10 | 28.4 |
| System Sensor DH400ACDCI | Ionization Duct | 25 | 95 |
| System Sensor DH400ACDCP | Photoelectric Duct | 25 | 95 |
| System Sensor 1112/24 | Ionization | 0.05 | 50 |
| System Sensor 2112/24 | Photoelectric | 0.05 | 50 |
| System Sensor 2112/24B | Photoelectric | 0.05 | 65 |
| System Sensor 2112/24T | Photoelectric w/135° Thermal | 0.05 | 50 |
| System Sensor 2112/24TSRB | Photoelectric w/135° Thermal Supervisory Relay | 15 | 45 |
Table 3 UL Listed Four-Wire Smoke Detectors
FM-Approved Releasing Devices
(System Sensor’s PDRP-1001/PDRP-1001A/PDRP-1001E)
Solenoid Group [A]
Skinner solenoid valve Model LV2LBX25, 24 VDC, 11 Watts, 458 mA, 1/2 in. NPS, 5/ 8 in. orifice.
Solenoid Group [B] These valves are interchangeable.
ASCO solenoid valve Model T8210A107, 24 VDC, 16.8 Watts, 700 mA, 1/2 in. NPS, 5/8 in. orifice.
ASCO solenoid valve Model R8210A107, 24 VDC, 16.8 Watts, 700 mA, 1/2 in. NPS, 5/8 in. orifice.
ASCO solenoid valve Model 8210A107, 24 VDC, 16.8 Watts, 700 mA, 1/2 in. NPS, 5/ 8 in. orifice.
Solenoid Group [C]
Star Sprinkler Corp. Solenoid P/N 5550, 24 VDC, part of Model D deluge valve. Kidde-Fenwal Electric Control Head P/N 890181; 24V, 2.0 Amps
Kidde-Fenwal Electric Control Head P/N 899175; 24V, 2.0 Amps
Kidde-Fenwal Electric Control Head Stackable (XP) P/N 48650001; 24V, 0.2 Amps
Kidde-Fenwal Electric and Cable Op Control Head (XP) P/N 897494; 24V, 1.5 Amps, 33 Watts
Refer to the FM approval guide for automatic water control valves which are compatible with solenoids listed above.
| Model | Type | Current (mA) |
| FM980-24 | Floor Mount, single | 68 |
| FM996-24 | Wall Mount Surface Wiring | 68 |
| FM998-24 | Wall Mount Concealed Wiring | 68 |
| DH150A | Floor Mount | 96 |
| DH154A | Flush Mount | 96 |
| DH158A | Surface Mount | 96 |
Table 4 24 VDC Door Holders
| Vendor | Model | Current(mA) |
| System Sensor | A77-716B | 20 |
| Air Products & Controls, LTD | MR-101/C | 15 |
| MR-201/C | 35 |
Table 5 UL Listed 24 VDC Relays
| SYSTEM SENSOR | Rated Voltage² | FWR DC | Filtered DC |
| System Sensor MA-12/24D Electronic Sounder | 24VDC | 73 | 46 |
| System Sensor SS24 Strobe | 24VDC | note 5 | 30 |
| System Sensor SS24LO Strobe | 24VDC | 45 | 25 |
| System Sensor SS24LOC Ceiling Strobe (SS24LOBC – beige) | 24VDC | 45 | 25 |
| System Sensor SS24M Strobe | 24VDC | 125 | 75 |
| System Sensor SS24MC Ceiling Strobe | 24VDC | 125 | 75 |
| System Sensor MASS24D Electronic Sounder/Strobe | 24VDC | 118 | 71 |
| System Sensor MASS24LO Electronic Sounder/Strobe | 24VDC | 118 | 71 |
| System Sensor MASS24LOC Electronic Ceiling Sounder/Strobe | 24VDC | 118 | 71 |
| System Sensor MASS24LOLA Electronic Sounder/Strobe with Fuego lens | 24VDC | 118 | 71 |
| System Sensor MASS24M Electronic Sounder/Strobe | 24VDC | 198 | 121 |
| System Sensor MASS24MC Electronic Ceiling Sounder/Strobe | 24VDC | 198 | 121 |
| System Sensor PA400R Sounder | 24VDC | note 5 | 15 |
| System Sensor PS24LO Add-on Strobe | 24VDC | 45 | 25 |
| System Sensor SS2415ADA Signaling Strobe | 24VDC | 90 | 75 |
| System Sensor SS2475ADA Signaling Strobe | 24VDC | 200 | 170 |
| System Sensor SS24110ADA Signaling Strobe | 24VDC | 245 | 210 |
| System Sensor SS241575ADA Signaling Strobe | 24 VDC | 120 | 93 |
| System Sensor SS2415ADAS Signaling Strobe with Synch. Circuit | 24 VDC | 125 | 106 |
| System Sensor SS241575ADAS Signaling Strobe with Synch. Circuit | 24 VDC | 180 | 115 |
| System Sensor MASS2415ADA Sounder/Signaling Strobe | 24VDC | 163 | 121 |
| System Sensor MASS2475ADA Sounder/Signaling Strobe | 24VDC | 273 | 216 |
| System Sensor MASS24110ADA Sounder/Signaling Strobe | 24VDC | 318 | 256 |
| System Sensor MASS241575ADA Sounder/Signaling Strobe | 24 VDC | 193 | 139 |
| System Sensor MASS2415ADAS Sounder/Signaling Strobe w/ Synch. Ckt. | 24 VDC | 163 | 121 |
| System Sensor MASS241575ADAS Sounder/Signaling Strobe w/ Synch. Ckt. | 24 VDC | 193 | 139 |
| System Sensor PS2415ADA Mini-Sounder/Strobe | 24VDC | 110 | 90 |
| System Sensor PS2475ADA Mini-Sounder/Strobe | 24VDC | 135 | 108 |
| System Sensor PS241575ADA Mini-Sounder/Strobe | 24VDC | 135 | 108 |
| System Sensor PS24110ADA Mini-Sounder/Strobe | 24VDC | 240 | 225 |
| System Sensor SP1R2415ADA Speaker/Signaling Strobe | 24VDC | 90 | 75 |
| System Sensor SP1R2475ADA Speaker/Signaling Strobe | 24VDC | 200 | 170 |
| System Sensor SP1R24110ADA Speaker/Signaling Strobe | 24VDC | 245 | 210 |
| System Sensor SP1R241575ADA Speaker/Signaling Strobe | 24 VDC | 120 | 93 |
| System Sensor V4R2415ADA Speaker/Signaling Strobe | 24VDC | 90 | 75 |
| System Sensor V4R2475ADA Speaker/Signaling Strobe | 24VDC | 200 | 170 |
| System Sensor V4R24110ADA Speaker/Signaling Strobe | 24VDC | 245 | 210 |
| System Sensor V4R241575ADA Speaker/Signaling Strobe | 24 VDC | 120 | 93 |
| System Sensor SP100W24LOC Ceiling Speaker/Strobe, 8″ round grille | 24VDC | 45 | 25 |
| System Sensor SP101R24LO Speaker/Strobe, 5″ square grille | 24VDC | 45 | 25 |
| System Sensor SP101R24M Speaker/Strobe, 5″ square grille | 24VDC | 125 | 75 |
| System Sensor SP100W24MC Ceiling Speaker/Strobe, 8″ round grille | 24VDC | 125 | 75 |
| System Sensor MA12/24EH Multi Alert Horn with Mechanical Tone | 12VDC/ 24VDC | 20/64 | 38/43 |
| System Sensor MAEH24LO Multi Alert Horn with Mechanical Tone/Strobe | 24VDC | 109 | 68 |
| System Sensor MAEH24LOC Multi Alert Horn with Mechanical Tone/Strobe | 24VDC | 109 | 68 |
| System Sensor MAEH24LOLA Multi Alert Horn with Mechanical Tone/Strobe | 24VDC | 153 | 96 |
| System Sensor MAEH24M Multi Alert Horn with Mechanical Tone/Strobe | 24VDC | 189 | 118 |
| System Sensor MAEH24MC Multi Alert Horn with Mechanical Tone/Strobe | 24VDC | 189 | 118 |
| System Sensor MAEH1215ADA Multi Alert Horn with Mechanical Tone/Strobe | 12VDC | 240 | 191 |
| System Sensor MAEH121575ADA Multi Alert Horn with Mechanical Tone/Strobe | 12VDC | 310 | 246 |
| System Sensor MAEH2415ADA Multi Alert Horn with Mechanical Tone/Strobe | 24VDC | 278 | 216 |
| System Sensor MAEH2475ADA Multi Alert Horn with Mechanical Tone/Strobe | 24VDC | 273 | 216 |
| System Sensor MAEH241575ADA Multi Alert Horn with Mechanical Tone/Strobe | 24VDC | 343 | 271 |
| System Sensor MAEH24110ADA Multi Alert Horn with Mechanical Tone/Strobe | 24VDC | 318 | 256 |
| System Sensor MAEH2415ADAS Multi Alert Horn with Mechanical Tone/Strobe | 24VDC | 198 | 152 |
| System Sensor MAEH241575ADAS Multi Alert Horn with Mechanical Tone/Strobe | 24VDC | 253 | 241 |
| System Sensor H12 SpectrAlert Horn | 12VDC | 25 | 14 |
| System Sensor H42 SpectrAlert Horn3 | 24VDC | 42 | 37 |
| System Sensor S1215 SpectrAlert Strobe | 12VDC | 159 | 133 |
| System Sensor S121575 SpectrAlert Strobe | 12VDC | 182 | 168 |
| System Sensor S2415 SpectrAlert Strobe3 | 24VDC | 142 | 83 |
| System Sensor S241575 SpectrAlert Strobe3 | 24VDC | 132 | 76 |
| System Sensor S2475 SpectrAlert Strobe3 | 24VDC | 170 | 145 |
| System Sensor S24110 SpectrAlert Strobe3 | 24VDC | 220 | 169 |
| System Sensor P1215 SpectrAlert Horn/Strobe | 12VDC | 173 | 144 |
| System Sensor P121575 SpectrAlert Horn/Strobe | 12VDC | 196 | 179 |
| System Sensor P2415 SpectrAlert Horn/Strobe3 | 24VDC | 165 | 94 |
| System Sensor P241575 SpectrAlert Horn/Strobe3 | 24VDC | 177 | 111 |
| System Sensor P2475 SpectrAlert Horn/Strobe3 | 24VDC | 215 | 180 |
| System Sensor P24110 SpectrAlert Strobe3 | 24VDC | 265 | 214 |
| System Sensor RP1215ADAARetrofit Strobe Plate | 12VDC | 200 | 170 |
| System Sensor RP121575ADAARetrofit Strobe Plate | 12VDC | 240 | 255 |
| System Sensor RP2415ADAARetrofit Strobe Plate | 24VDC | 90 | 75 |
| System Sensor RP241575ADAARetrofit Strobe Plate | 24VDC | 120 | 93 |
| System Sensor RP2475ADAARetrofit Strobe Plate | 24VDC | 200 | 170 |
| System Sensor RP24110ADAARetrofit Strobe Plate | 24VDC | 245 | 210 |
| System Sensor H24 SpectrAlert | 24VDC | 42 | 37 |
| System Sensor S2415 SpectrAlertStrobe3 | 24VDC | 142 | 83 |
| System Sensor S241575 SpectrAlert Strobe3 | 24VDC | 132 | 76 |
| System Sensor S2475 SpectrAlert Strobe3 | 24VDC | 170 | 145 |
| System Sensor S24110 SpectrAlert Strobe3 | 24VDC | 220 | 169 |
| System Sensor S2415 SpectrAlert Horn/Strobe3 | 24VDC | 165 | 94 |
| System Sensor S241575 SpectrAlert Horn/Strobe3 | 24VDC | 177 | 111 |
| System Sensor S2475 SpectrAlert Horn/Strobe3 | 24VDC | 215 | 180 |
| System Sensor P24110 SpectrAlert Horn/Strobe3 | 24VDC | 265 | 214 |
| System Sensor S2415 SpectrAlertStrobe3 | 24VDC | 142 | 83 |
| System Sensor S241575 SpectrAlert Strobe3 | 24VDC | 132 | 76 |
| Note: 1) Control panels suppling Special Application (FWR, Filtered) power must use the notification appliances, relays or door holders listed in this table. 2) All currents are in Millamperes and worst case average. 3) Nominal Operating voltage. 4) Refer to Installation Instructions for more information. 5) Contact manufacturer for currents. | |||
Table 6 UL Listed Notification Appliances
| Number of Detectors Per Zone | ||||||
| Model | Det. ID | Detector Type | Base Model | Base ID | Standby Current (uA) | PDRP-1001/ PDRP-1001A/ PDRP-1001E |
| System Sensor 1400 | A | Ionization | n/a | n/a | 100 | 20 |
| System Sensor 1451 | A | Ionization | B401B / B406B | A | 120 | 15 / 1 |
| System Sensor 1851DH | A | Ionization | DH1851DC | A | 120 | 15 |
| System Sensor 2400 | A | Photoelectric | n/a | n/a | 120 | 15 |
| System Sensor 2400AIT | A | Photo / Isolated Thermal / Horn | n/a | n/a | 120 | 1 |
| System Sensor 2400AT | A | Photo / Thermal / Horn | n/a | n/a | 120 | 1 |
| System Sensor 2400TH | A | Photo / Thermal | n/a | n/a | 120 | 15 |
| System Sensor 2451 | A | Photoelectric | B401B / B406B | A | 120 | 15 / 1 |
| System Sensor 2451TH | A | Photo / Thermal | B401B / B406B | A | 120 | 15 / 1 |
| System Sensor 2851DH | A | Photoelectric | DH2851DC | A | 120 | 15 |
| System Sensor 1451DH | A | Ionization | DH-400 | A | 120 | 15 |
| System Sensor 2451 | A | Photoelectric | DH-400 | A | 120 | 15 |
| System Sensor 2300T | A | Photo / Thermal | n/a | n/a | 120 | 15 |
| System Sensor 1800 | A | Ionization | n/a | n/a | 100 | n/a |
| System Sensor 1851B | A | Ionization | B101B | A | 120 | n/a |
| System Sensor 1851B | A | Ionization | B107B | A | 120 | n/a |
| System Sensor 2800 | A | Photoelectric | n/a | n/a | 120 | n/a |
| System Sensor 2800TH | A | Photo / Thermal | n/a | n/a | 120 | n/a |
| System Sensor 2851B | A | Photoelectric | B101B | A | 120 | n/a |
| System Sensor 2851B | A | Photoelectric | B107B | A | 120 | n/a |
| System Sensor 2851BTH | A | Photo / Thermal | B101B | A | 120 | n/a |
| System Sensor 2851BTH | A | Photo / Thermal | B107B | A | 120 | n/a |
| System Sensor 1151 | A | Ionnization | B401 / B110LP / B116LP | A | 120 | 15 / 15 / 1 |
| System Sensor 2151 | A | Photoelectric | B401 / B110LP / B116LP | A | 120 | 15 / 15 / 1 |
Table 7 UL Listed, Compatible Two-Wire Smoke Detectors for Notifier Control Panels
Appendix C: NFPA Standard-Specific Requirements
The PDRP-1001/PDRP-1001A/PDRP-1001E has been designed for use in commercial, industrial, and institutional applications and meets the requirements for service under the National Fire Protection Association (NFPA) Standards outlined in this appendix. The minimum system components required for compliance with the appropriate NFPA standards are listed below.
PDRP-1001/PDRP-1001A/PDRP-1001E Control Panel containing the main control board, cabinet (backbox and door), main supply transformer and power supply.
Batteries (refer to Appendix A for Standby Power Requirements).
Initiating Devices – connected to one of the control panel’s Initiating Device Circuits.
Notification Appliances – connected to one of the control panel’s Notification Appliance Circuits.
Releasing Devices – connected on one of the control panel’s Releasing Circuits.
The following additional equipment is needed for compliance with the NFPA standards listed below.
NFPA 72 Signaling Systems for Central Station Service
(Protected Premises Unit) NOTI•FIRE 911AC DACT* – for connection to a Central Station Receiver or Protected
Premises Receiving Unit. This unit must be installed as illustrated below. For additional information on the 911AC, refer to document 74-06200-005.
All connections between the FACP and 911AC must be in conduit, less than 20 ft (609.6cm) in length in the same room. If the NOTI•FIRE 911AC is not mounted in the PDRP-1001/PDRP-1001A/PDRP-1001E backbox all connections must be in conduit, less than 20 ft. (609.6 cm) in length in the same room.
*This application using the NOTI•FIRE 911AC is not FM approved.
Note: For 911AC
- The Maximum standby load shall be 125 mA.
- The Standby by Battery Requirement: 24VDC, 7Amp-Hour-Max.
- The PDRP-1001/PDRP-1001A/PDRP-1001E is not suitable for transmission of a supervisory signal to
the DACT.

Using the MS-5012 as a DACT
- Reference the MS-5012 manual for additional information.
- Program the MS-5012 for slave applications.
- The PDRP-1001/PDRP-1001A/PDRP-1001E is not suitable for transmission of a supervisory signal to the DACT.

NFPA 72 Auxiliary Fire Alarm System
All connections are power limited and supervised. This application is not suitable for separate transmission of sprinkler supervisory or trouble conditions.
Note: Maximum loop resistance allowed for wiring from control panel to Municipal Box is 3 ohms.

NFPA 72 Remote Station Fire Alarm System
Intended for connection to a polarity reversal circuit of a remote station receiving unit having compatible ratings. All connections are power limited and supervised with the exception of the reverse polarity loop. Supervision of the loop is the responsibility of the receiver.

Troubleshooting Table

Limited Warranty
System Sensor® warrants its products to be free from defects in materials and workmanship for eighteen (18) months from the date of manufacture, under normal use and service. Products are date stamped at time of manufacture. The sole and exclusive obligation of System Sensor® is to repair or replace, at is option, free of charge for parts and labor, any part which is defective in materials or workmanship under normal use and service. For products not under System Sensor® manufacturing date-stamp control, the warranty is eighteen (18) months from date of original purchase by System Sensor® distributor unless the installation instructions or catalog sets forth a shorter period, in which case the shorter period shall apply. This warranty is void if the product is altered, repaired or serviced by anyone other than System Sensor® or its authorized distributors or if there is a failure to maintain the products and systems in which they operate in proper and workable manner. In case of defect, phone System Sensor® Repair Department, RA #_ , 3825 Ohio Avenue, St. Charles, IL 60174. Please include a note describing the malfunction and suspected cause of failure.
This writing constitutes the only warranty made by System Sensor® with respect to its products. System Sensor® does not represent that its products will prevent any loss by fire or otherwise, or that its products will in all cases provide the protection for which they are installed or intended. Buyer acknowledges that System Sensor® is not an insurer and assumes no risk for loss or damages or the cost of any inconve- nience, transportation, damage, misuse, abuse, accident or similar incident.
SYSTEM SENSOR® GIVES NO WARRANTY, EXPRESSED OR IMPLIED, OF MERCHANTABILITY, FITNESS FOR ANY PARTICULAR PURPOSE, OR OTHERWISE WHICH EXTEND BEYOND THE DESCRIPTION ON THE FACE HEREOF. UNDER NO CIRCUMSTANCES SHALL SYSTEM SENSOR® BE LIABLE FOR ANY LOSS OF OR DAMAGE TO PROPERTY, DIRECT, INCIDENTAL OR CONSEQUENTIAL, ARISING OUT OF THE USE OF, OR INABILITY TO USE SYSTEM SENSOR® PRODUCTS. FURTHERMORE, SYSTEM SENSOR® SHALL NOT BE LIABLE FOR ANY PERSONAL INJURY OR DEATH WHICH MAY ARISE IN THE COURSE OF, OR AS A RESULT OF, PERSONAL, COMMERCIAL OR INDUSTRIAL USE OF ITS PRODUCTS.
This warranty replaces all previous warranties and is the only warranty made by System Sensor®. No increase or alteration, written or verbal, of the obligation of this warranty is authorized.
System Sensor
3825 Ohio Avenue, St. Charles, IL 60174 1-800-SENSOR2 Fax: 630-377-6495



















