LUTRON Wireless Lighting Control

PowPak 347 V~ Dimming Module with 0 –10 V- Control
PowPak 347 V~ Relay Module
The Vive 347 V~ Dimming Module with 0 –10 V- control is a radio frequency (RF) control that operates 0 –10 V- controlled fluorescent ballasts or LED drivers based on input from Pico remote controls and Radio Powr Savr sensors. The dimming module with 0 –10 V- control is ideal for small areas (e.g., classrooms, conference rooms, private offices). The Vive 347 V~ Relay Module is the same but is only for use with electronic non-dim lighting loads.
Communication with RF input devices (e.g., Pico remote controls, Radio Powr Savr sensors) is accomplished by using Lutron Clear Connect – Type A RF Technology.
These products are also compatible with the Vive hub which enables an app-based or simple setup process using a standard web browser on any Wi-Fi enabled phone, tablet or computer. It also enables control and monitoring of all Vive devices. The Vive hub can be added at any time. System reprogramming will be required. For a complete list of features supported with the Vive hub, see specification submittal 369902 at www.lutron.com

Models
| Model Number | Region | Capability | Operating Voltage | Frequency Band |
| RMJS-5T-347 | Canada | 0-10 V- dimming and 5 A switching | 347 V~ | 431.0 –437.0 MHz |
| RMJS-5T-347-EM | Canada | Emergency model, 0-10 V- dimming and 5 A switching | 347 V~ | 431.0 –437.0 MHz |
| RMJS-5R-347 | Canada | 5 A switching only | 347 V~ | 431.0 –437.0 MHz |
| RMJS-5R-347-EM | Canada | Emergency model, 5 A switching only | 347 V~ | 431.0 –437.0 MHz |
| PICO-347WBX-ADAP* | Canada | Used for mounting a Pico to a 347 V~ wallbox | N/A | N/A |
| 5T-347-DIVIDER** | Canada | Provides Class 2 / Class 1 separation in a 101.6 mm x 101.6 mm (4 in x 4 in) junction box | N/A | N/A |
- For mounting a Pico to a 347 V~ wallbox, use Lutron model number PICO-347WBX-ADAP.
Refer to https://www.lutron.com/TechnicalDocumentLibrary/347VWallBoxAdapterInstallationInstructions.pdf.
Note: A 347 V~ designer-opening wallplate is required (not supplied by Lutron; for example, Hubbell® HPS1347W). - For use with RMJS-5T-347 and RMJS-5T-347-EM only.
Refer to https://www.lutron.com/TechnicalDocumentLibrary/5T347DividerInstallationInstructions.pdf for more information.
Features
(RMJS-5T-347 and RMJS-5T-347-EM)
- Controls up to 60 mA of 0 –10 V- controlled fixtures together
- RMJS-5T-347-EM model available for use with emergency lighting. See App Note 048628 at www.lutron.com
- Switches up to 5 A total of LED drivers or fluorescent ballasts
- Works with all ballasts and drivers that provide a current source that is compliant to IEC 60629 Annex E. 2, and whose inrush current does not exceed NEMA410 standards for electronic ballast / driver
- 0 –10 V- control link (current sink only)
- Configurable high- and low-end trim
- Receives wireless inputs from up to 10 Pico remote controls, 10 Radio Powr Savr occupancy / vacancy sensors, and 1 Radio Powr Savr daylight sensor
- Utilizes Lutron Clear Connect – Type A RF Technology
- Mounts in a standard 101.6 mm x 101.6 mm (4 in x 4 in) junction box.
(NOTE: must use metal junction box, minimum depth 53.975 mm (2.125 in)) - For more information on these model numbers and related products, refer to 048753 [PDF]
(RMJS-5R-347 and RMJS-5R-347-EM)
- RMJS-5R-347-EM model available for use with emergency lighting. See App Note 048628 at www.lutron.com
- Switches up to 5 A total of LED drivers or fluorescent ballasts
- Works with all ballasts and drivers whose inrush current does not exceed NEMA410 standards for electronic ballast / driver
- Receives wireless inputs from up to 10 Pico remote controls, 10 Radio Powr Savr occupancy / vacancy sensors, and 1 Radio Powr Savr daylight sensor
- Utilizes Lutron Clear Connect -Type A RF Technology
- Mounts in a standard 101.6 mm x 101.6 mm (4 in x 4 in) junction box. (NOTE: must use metal junction box, minimum depth 53.975 mm (2.125 in))
- For more information on these model numbers and related products, refer to 048753 [PDF]
Specifications
Regulatory Approvals (applies to all four RMJS- models unless otherwise noted)
- cULus 508 Listed
- CSA C22.2 No. 141-15 Listed (RMJS-5T-347-EM and RMJS-5R-347-EM only)
- Complies with the limits for a Class B device, pursuant to IC and FCC rules
- Complies with requirements for use in other spaces used for environmental air (plenums) per NEC® 2014 300.22 (C) (3)
- Listed in accordance to CAN / ULC-S142 standard method of fire test for heat and visible smoke release for discrete products
Power
Operating voltage 347 V~ 60 Hz
Output Ratings
- Switch rating of 5 A.
- Rated for 0 –10 V- electronic driver and ballast loads as defined by IEC / EN 60669-2-1 (RMJS-5T-347 and RMJS-5T-347-EM only)
- 0 –10 V- control link for 60 mA maximum output, sink only (RMJS-5T-347 and RMJS-5T-347-EM only)
- Output must not be used to control receptacles
- Output must be directly connected to the load
- Output breakers or switches must not be used
Other Power Specifications
- Standby power:
- 347 V~ 610 mW
- BTU / hour when fully loaded: 9
- Works with all ballasts and drivers that provide a current source that is compliant to IEC 60629 Annex E.2, and whose inrush current does not exceed NEMA410 standards for electronic ballast / driver Mounting
- This device must be installed into a metal junction box using two screws. The device must be mounted such that the backcover is inside the 101.6 mm x 101.6 mm (4 in x 4 in) junction box and the front faceplate is outside the 101.6 mm x 101.6 mm (4 in x 4 in) junction box (see diagrams below). Improper installation can result in degraded wireless communications and intermittent or sustained communications failures and will not be covered under warranty.
For all other installations, refer to the installation instructions and consult local and national electric codes for proper installation. The front of the dimming module needs to be accessible for some programming steps. Record where it is mounted so that it can be easily located later.
System Communication
- Operates using Clear Connect – Type A RF Technology for reliable wireless communication; refer to model number chart on page 2 for frequency band details.
- Wireless sensors and controls must be located within 18 m (60 ft) line of sight, or 9 m (30 ft), through walls, of the associated control module. The 18 m (60 ft) range is not reduced by a ceiling tile obstruction.
Environment
- Ambient operating temperature: 0 °C to 40 °C (32 °F to 104 °F).
- 0% to 90% humidity, non-condensing.
- For indoor use only.
- All drivers and ballasts used with Vive wireless controls must comply with the limits device pursuant to CAN ICES-005 and the FCC Rules.
0 –10 V- Control Link (RMJS-5T-347 and RMJS-5T-347-EM only)
- Communicates with up to 60 mA of fixtures
- Control link is IEC SELV / NEC® Class 2
- 0 –10 V- control can be installed using CEC / NEC® Class 1 or Class 2 wiring methods. Alternately, it can be wired to basic or double-insulated devices
- Always consult local wiring codes
- Compatible with ANSI E1.3 2001 (R2006), IEC 60929 Annex E
Default Operation
- Associated wireless input devices control all connected fixtures together
- Occupancy Sensors:
- Occupied: 100%; Unoccupied: 0% (OFF)
- Pico Remote Controls:
- On: 100%; Favorite Level: 50%; Off: 0% (OFF)
- Daylight Sensor: Decreases electric light in response to additional available daylight
Key Design Features
- LED status indicator shows RF communication, error codes, and provides programming feedback
- Configurable high-end and low-end trim (RMJS-5T-347 and RMJS-5T-347-EM only)
- Power failure memory: If power is interrupted, connected loads will return to the level prior to interruption
- The Off level (minimum light level) can be set in standalone (non-hub) mode.
Warranty
1-year limited warranty. The customer can register the product to increase the warranty period from 1 year to 5 years. Please visit 369-119_Wallbox_Warranty [PDF] for warranty details.
Programming
Note that some programming will be lost if done before adding to a Vive system.
See more details on 369902_ENG [PDF]
Installation


Note: 101.6 mm x 101.6 mm (4 in x 4 in) junction box not provided by Lutron. Shown here with fully installed product.

Cutaway of product in junction box, with 5T-347-DIVIDER
Note: For RMJS-5T-347 and RMJS-5T-347-EM only, if local wiring code requires separation of Class 1 and Class 2 wires, use Lutron model number 5T-347-DIVIDER (sold separately). In this case it is recommended, to facilitate installation, that the dimming module with divider be mounted in a separate junction box. See 048753 on www.lutron.com for other options or refer to https://www.lutron.com/TechnicalDocumentLibrary/5T347DividerInstallationInstructions.pdf for more information
RMJS-5T-347-EM and RMJS-5R-347-EM Sequence of Operation With a Vive hub:
- Normal mode: The module can control loads as normal and respond to local button presses, Pico remote controls, occupancy sensors, daylight sensors, timeclock events and preset scene calls.
- Emergency mode: Upon loss of power greater than 250 ms OR override signal* from the Vive hub, the module will override the light output to its emergency level (configured using the Vive hub) and lockout. It will not respond to any local button presses, Pico remote controls, occupancy sensors, daylight sensors, timeclock events, or preset scene calls.
- Return from Emergency mode to Normal mode: When normal power is restored to the Vive hub or the override signal* from the Vive hub is cleared, the emergency PowPak module will return to the previous light level between 3 and 10 minutes of normal power being restored. It will again respond to local button presses, Pico remote controls, occupancy sensors, daylight sensors, timeclock events, and preset scene calls.
- Override signal triggered from the contact closure #2 on the Vive hub from one of the following inputs:
- Fire alarm control panel
- Security system
- LUT-ELI-3PH
Without a Vive hub:
- Normal mode: The module can control loads as normal and respond to local button presses, Pico remote controls, and occupancy / daylight sensors.
- Emergency mode: When the module is powered up after a loss of power greater than 250 ms the module will override the light output to full and lockout for 120 minutes. It will not respond to any local button presses, Pico remote controls, occupancy sensors or daylight sensors.
- Returning from Emergency mode to Normal mode: When normal power is restored, the emergency PowPak module will remain in emergency mode for 120 minutes (full output). It will then return to the previous light level and respond to local button presses, Pico remote controls, occupancy sensors and daylight sensors.
Advanced Configurations
(can all be configured locally)
Pico Remote Controls
- Supports up to 10 Pico remote controls
- Separate favorite levels can be set for each Pico remote control (when used only with RMJS-5T-347 and RMJS-5T-347-EM)
Radio Powr Savr Daylight Sensor
- Supports up to one Radio Powr Savr daylight sensor
- The Radio Powr Savr daylight sensor will affect all connected ballast and LED drivers equally
- For multple rows of daylighting, a separate dimming module with 0 –10 V- must be used for each daylighting row (RMJS-5T-347 and RMJS-5T-347-EM only)
- Note: A Radio Powr Savr daylight sensor will only be able to trigger non-dim (switched) loads to turn on and off (RMJS-5R-347 and RMJS-5R-347-EM only)
Minimum Light Level Setting (optional, only applies to RMJS-5T-347 and RMJS-5T-347-EM) (can also be configured with the Vive hub)
Certain applications, such as hallways, may require that the lights never turn off. For these areas, adjust the minimum light level option and the load will lower to programed low-end level. Default operation lowers to OFF.
High- and Low-End Trim (can also be configured with the Vive hub) (RMJS-5T-347 and RMJS-5T-347-EM only)
- High-end and low-end trim affect all connected fixtures equally, and can be configured from the dimming module.
- Adjustable low-end trim (0% –45%). Trimmable low-end can ensure a stable light level. Some fixtures will flicker or drop out if trimmed too low.
- The maximum light output of connected fixtures can be decreased down to 55% for energy savings in over-lit spaces.
Note: The perceived light output of low-end trim may vary between fixture manufacturers and model numbers. For best results, do not mix different ballasts or drivers on the same 0 –10 V- circuit.
Radio Power Saver Occupancy Sensors
- Supports up to 10 Radio Powr Savr occupancy or vacancy sensors.
- Radio Powr Savr occupancy and vacancy sensors control all connected ballasts or drivers.
- Pico remote controls can be used to adjust the occupied levels of fixtures that they control from 1% to 100% (of output signal) or can make them unaffected by occupancy events (when used only with RMJS-5T-347 and RMJS-5T-347-EM).
- Vacancy events (area becomes unoccupied) turn all ballasts and driver models off or to minimum light level.
System Diagram


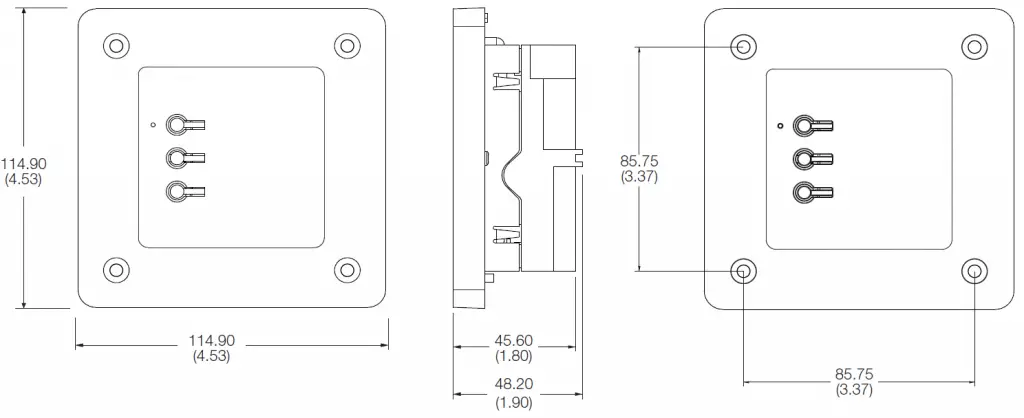
Dimensions
Dimensions are shown as: mm (in)

Note: RMJS-5T-347 shown above, but dimensions also apply to RMJS-5R-347, RMJS-5R-347, and RMJS-5R-347-EM.
Range Diagram

Lutron, the Lutron logo, Clear Connect, Pico, PowPak, Radio Powr Savr, and Vive are trademarks or registered trademarks of Lutron Electronics Co., Inc. in the US and / or other countries.
All other product names, logos, and brands are property of their respective owners.
![]()



















