54 in. W x 22 in. D Bath Vanity in Gray
Instructions

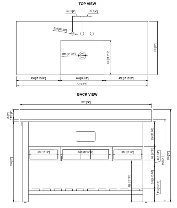
Wesley 54 in. W x 22 in. D Bath Vanity in Gray
We hope we were able to provide your home with the perfect vanity. This vanity has been constructed with design, quality, and functionality in mind. We hope you enjoy this new addition! Your feedback is invaluable to us and we would love to hear about your experience. Please take the time to leave us a review.
We encourage you to take a few minutes to go through this booklet. It contains important information on installation and care tips to keep your furniture looking as good as new. Before installation, please check and ensure you received the items in the below “Part List”. Please report any missing items to your retailer immediately.
Part List

NOTES, ASSEMBLY, AND INSTALLATION
- Faucet, Drain, Silicone, and all other plumbing components, tools & hardware are not included.
- Handling will require two people.
- Ensure the vanity is installed on a level floor. Unevenness can cause the vanity to become misaligned, resulting in twisting of the cabinet. Repair any uneven areas with shims.
- Adjust shelves as needed to accommodate plumbing.
- Ensure all building & plumbing codes are respected. Professional installation is recommended.
STEP 1
- Place the vanity in the desired location.
- Ensure the vanity is level by using adjustable foot levelers.
- Install the faucet and all plumbing.
- Ensure there are no water leaks.
STEP 2
- With the vanity in its location and all plumbing in place, apply a bead of silicone to the unpolished back side and bottom edge of the backsplash and secure it to the vanity and wall.
- Wipe away any excess silicone immediately. Allow 24 hours to dry.

Instructions to remove the drawers
The drawer can be removed if ever required. Locate the clips on both sides of the bottom of the drawer, press the clips and pull the drawer out. To reinsert, simply align the two sides of the drawer glides and slide it until fully inserted.

CARE CLEANING AND MAINTENANCE
- Dust regularly with a soft, dry cloth.
- Avoid the use of all chemicals, household cleaners and abrasives that may damage the finish.
- Excessive exposure to sunlight and extreme changes in temperature and moisture can damage wood furniture.
- Avoid placing hot appliances, such as curling irons and hot hair dryers directly on the countertop.
- Avoid placing extremely heavy items on the marble top.
- Stone countertops are surprisingly resilient to stains and scratches. However, as a preventative measure, any spills on the stone surfaces should be wiped up within a reasonable amount of time. Don’t let the liquid sit on the stone overnight. Stones are most prone to staining by oil and acid, so be sure to blot these spills up as soon as they happen. Follow up by cleaning the stone with mild non-abrasive soap and water. In bathrooms specifically, stone tends to attract soap scum, just like man-made tile. Rinse vanity top with clean, hot water frequently. The use of sealers is also a powerful preventative measure. Your stone was sealed at the factory, but reapplication is necessary over time. How often is determined by the quality of the sealer used, and the frequency of use. We recommend using a penetrating nontoxic sealer for bath areas, but a food-safe sealer is typically not necessary.
- If stains and scratches do occur, there are many things you can do as a consumer to remove them. Remove oil-based stains with acetone, mineral spirits, or ammonia. Organic stains like coffee, tea, or juice can be removed with hydrogen peroxide, and mixed with a few drops of ammonia. Water spots or rings are the most common problem with bath vanities and are caused by minerals left behind when water evaporates. These can be removed by buffing the spots gently with 00 gauge steel wool. Likewise, small nicks and scratches can often be removed the same way.
- Larger scratches, chips, and resilient stains may require professional help. Please contact your local stonemason for details.
DIMENSIONS

















