KitchenAid KMHC319L Over-the-Range Convection Microwave with Air Fry Mode

Product Information
The KitchenAid KMHC319L/YKMHC319L Microwave Oven has the following dimensions:
- A width of 30 inches (76 cm)
- A height of 32 1/4 inches (82 cm)
- A depth of 17.1 inches (43.5 cm)
- The microwave interior cavity has the following dimensions:
- A cavity height of 10 inches (25.5 cm)
- A cavity height including the highest point of the turntable of
9 7/16 inches (24 cm) - A cavity width of 21 11/16 inches (53.5 cm)
- A cavity depth of 14 inches (35.5 cm)
- A turntable diameter of 14 5/16 inches (36 cm)
- The microwave oven requires a minimum cabinet opening width of
30 inches (76.2 cm) and a minimum depth of upper cabinet of 12-15
inches (30.5-38.1 cm). - The electrical requirements for the microwave oven are a 120 V,
60 Hz, AC only, 15 A or 20 A fused electrical supply.
Product Usage Instructions
Before using the KitchenAid KMHC319L/YKMHC319L Microwave Oven, ensure that it is installed correctly and that the electrical supply meets the requirements. The following steps can be used to install and use the microwave oven:
- Ensure that the support structure can support 150 lb (68 kg) including the microwave oven and upper cabinet, including contents.
- Mount the microwave oven using the provided mounting plate. The mounting plate must be attached to a minimum of one 2 x 4 (5.1 cm x 10.2 cm) wall stud.
- The mounting distance between a fixed wall on the hinged side of the door and the microwave oven should be 5 inches (12.7 cm).
- If venting through the roof or wall is required, refer to the installation instructions for further information.
- Ensure that the microwave oven is plugged into a grounded 3-prong outlet. Do not remove the ground prong, use an adapter, or use an extension cord.
- To use the microwave oven, open the door and place the food to be heated or cooked on the turntable.
- Close the door and set the desired cooking time and power level using the control panel on the front of the microwave oven.
- Press start to begin cooking.
- When cooking is complete, carefully remove the food from the microwave oven.
PRODUCT DIMENSIONS
| MODEL # | KMHC319L/YKMHC319L | ||
| Unit of Measurement | in | cm | |
| A | Overall Width (A) | 30 | 76 |
| B | Overall Width with Handle (A1) | 321/4 | 82 |
| C | Overall Height (B) | 17.1 | 43.5 |
| D | Height of the Door (C) | ||
| E | Depth without Door (D) | 143/4 | 37.5 |
| F | Depth with Door (E) | 175/16 | 44 |
| G | Depth with Door Handle (F) | 195/16 | 49.1 |
| H | Depth with Door Open 90˚ (G) | 45 | 114.3 |
| I | Depth with Bump Out Kit (H) | 201/4 | 51.35 |
| J | Depth with Bump Out Kit With Door Handle (J) | 181/4 | 46.35 |

IMPORTANT: Dimensional specifications are provided for planning purposes only.
Do not make any cutouts based on this information. Refer to the Installation Guide before selecting cabinetry, verifying electrical/gas connections, making cutouts or beginning installation. All KitchenAid® appliances are appropriately UL, CUL or CSA approved. W11626217A
MICROWAVE INTERIOR CAVITY DIMENSIONS
| MODEL # | KMHC319L/YKMHC319L | ||
| Unit of Measurement | in | cm | |
| A | Cavity Height (J) | 10 | 25.5 |
| B | Cavity Height Including Highest Point of the Turntable (K) | 97/16 | 24 |
| C | Cavity Width (L) | 211/16 | 53.5 |
| D | Cavity Depth (M) | 14 | 35.5 |
| E | Turntable Diameter (N) | 143/16 | 36 |

IMPORTANT: Dimensional specifications are provided for planning purposes only.
Do not make any cutouts based on this information. Refer to the Installation Guide before selecting cabinetry, verifying electrical/gas connections, making cutouts or beginning installation. All KitchenAid® appliances are appropriately UL, CUL or CSA approved.
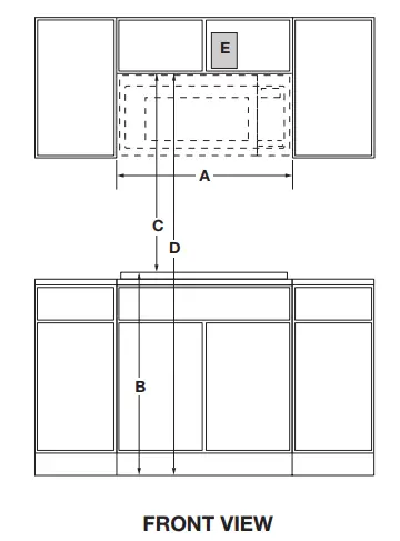
OPENING/CLEARANCE DIMENSIONS
| MODEL # | KMHC319L/YKMHC319L | ||
| Opening/Clearance Measurement | in | cm | |
| A | Width of cabinet opening (minimum) (A) | 30 | 76.2 |
| B | Typical height from cooking surface to floor based on 36″ (91.4 cm) countertops. (B) | 36 | 91.4 |
| C | Typical height from top of cabinet to cooking surface based on 36″ (91.4 cm) countertops. (C) | 30 | 76.2 |
| D | Minimum height from floor to top of cabinet opening. (B + C = D). (D) | 66 | 167.6 |
| E | Recommended electrical connection location. (E) | See below schematic | |

ELECTRICAL REQUIREMENTS
A 120 V, 60 Hz, AC only, 15 A or 20 A fused electrical supply is required. A time-delay fuse or dedicated circuit is recommended. Do not use an extension cord.
WARNING: Electrical Shock Hazard
- Plug into a grounded 3 prong outlet.
- Do not remove ground prong.
- Do not use an adapter.
- Do not use an extension cord.
- Failure to follow these instructions can result in death, fire, or electrical shock.
LOCATION REQUIREMENTS
- Support structure must be able to support 150 lb (68 kg) including microwave oven and upper cabinet including contents. Mounting plate must attach to a minimum of one
2″ x 4″ (5.1 cm x 10.2 cm) wall stud. - Mounting distance between a fixed wall on the hinged-side of the door and the microwave oven is 5″ (12.7 cm).
VENTING REQUIREMENTS
- The microwave oven is factory set for recirculating ventilation. To vent through the roof or wall, refer to installation instructions for further information.
- IMPORTANT: Dimensional specifications are provided for planning purposes only.
Do not make any cutouts based on this information. Refer to the Installation Guide before selecting cabinetry, verifying electrical/gas connections, making cutouts or beginning installation. All KitchenAid® appliances are appropriately UL, CUL or CSA approved.
| MODEL # | KMHC319L/YKMHC319L | ||
| Opening/Clearance Measurement | in | cm | |
| A | Depth of upper cabinet (minimum-maximum)* (F) | 12~15 | 30.5~38.1 |
| B | Can this product be installed flush? Flush refers to the appliance not protruding past the cabinet depth. (Y/N) | N | |
This microwave oven is factory set for 12″ (30.5 cm)~14″ (35.56 cm) depth of upper cabinet, install with the provided mouting plate. For 15″ (38.1 cm) depth of upper cabinet, install with the optional bump out mounting kit W11185746, the bumpt out mounting kit is not provided, but can purchased from KitchenAid.
IMPORTANT: Dimensional specifications are provided for planning purposes only.
Do not make any cutouts based on this information. Refer to the Installation Guide before selecting cabinetry, verifying electrical/gas connections, making cutouts or beginning installation. All KitchenAid® appliances are appropriately UL, CUL or CSA approved.
®/™ ©2022 KitchenAid. All rights reserved. Used under license in Canada.



















