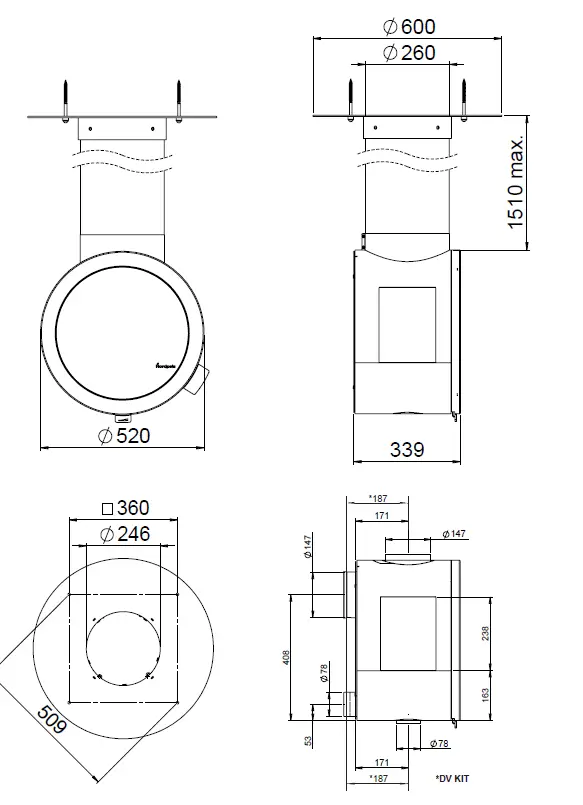
Nordpeis Me Ceiling Stove with DV Kit

IMPORTANT SAFETY PRECAUTIONS!
- Please follow the installation manual when connecting your stove / fireplace to the chimney / flue pipe. If connected differently from instruction please, consider the heat radiation from the flue pipe to the surrounding materials.
- Before use, please carefully read the user manual and follow the instructions.
- Integrated or defined convection openings may never be reduced or partially obstructed. This may lead to overheating, which again can cause house fire or serious damage to the product.
- Use only designated fire starters. Never use gasoline, diesel or other liquids to start the fire. This may cause explosions!
- Never use other fuel than natural dry chopped wood. Briquettes, peat, coke, coal and waste from construction materials develops far higher temperatures and emissions than natural wood. Since your product has been designed for use with natural wood only, other fuels may damage the product, chimney and surrounding constructions.
- In case of damage to glass or door gasket, all use of the product must be discontinued until the damage has been repaired.
- Products connected to a vented steel chimney must never be operated with open or ajar door other than reloading of wood or shortly during kindling process. Failure to follow these precautions will leave your warranty void and expose people and property to danger.
Advise: Even if not required in your area, it is always wise to have a qualified stove / fireplace fitter do the installation, or at least the final inspection before use.
IMPORTANT: When lifting or handling the stove we strongly recommend that the stove remain in its pallet crib or lifted using the provided harness. Lifting in the door or applying pressure to the glass may result in permanent damage and will not be covered by the warranty!
Before installing a new stove
All our products are tested according to the latest European requirements and also to the Norwegian standard NS 3058 and NS 3059, which include particle tests. However, several European countries have local regulations for installation of fireplaces, which change regularly. It is the responsibility of the client that these regulations are complied with in the country/region where the fireplace is installed. Nordpeis AS is not responsible for incorrect installation.
Important to check:
- distance from firebox to combustible/flammable materials
- insulation materials/requirements between fireplace surround and back wall
- size of floor plates in front of fireplace if required
- flue connection between firebox and chimney
- insulation requirements if flue passes through a flammable wall
Chimney draught
Compared with older models, the clean burning stoves of today put significantly higher demands on the chimney. Even the best stove will not work properly if the chimney does not have the right dimensions or is not in good working order. The draught is mainly controlled by gas temperature, outside temperature, air supply as well as the height and inner diameter of the chimney. Recommended effective chimney height is minimum 4 meters with a diameter of 150 – 200mm. The diameter of the chimney should never be less than that of the flue/chimney collar. For draft requirements at nominal heat output, see technical table.
The draught increases when:
- The chimney becomes warmer than the outside air
- The active length of the chimney over the hearth increases
- There is good air supply to the combustion
It can be difficult to obtain the right draught conditions in case the chimney is too large relative to the stove, as the chimney does not heat up well enough. In such cases you should contact professional for evaluation of possible measures. Draught that is too strong can be controlled with a damper. If necessary, contact a chimney sweeper.
Air supply
A set for fresh air supply is available as accessory. This will ensure that the air supply to the combustion chamber is less affected by ventilation systems, kitchen fans and other factors which can create a down-draught in the room. In all new construction, we strongly recommend that it is designed and prepared for direct supply of outside air. In older houses, the use of fresh air supply set is also recommended. Insufficient air supply can cause down-draught and thereby low combustion efficiency and the problems that this entails: soot stains on the glass, inefficient use of the wood and a soot deposits in the chimney.
Warning! Keep the air intakes, supplying combustion air, free from blockage. If the requirements for ventilation are NOT complied with, the product can overheat. This can cause a fire.
Warning! Extractor fans when operating in the same room or space as the appliance may cause problem.
For your own safety, comply with the assembly instructions. All safety distances are minimum distances. Installation of the stove must comply with the current rules and regulations of the country where the product is installed. Nordpeis AS is not responsible for wrongly assembled stoves. The illustrations indicate the approximate centre height of the recess for the flue. Consider possible inclination of the flue prior to perforating the chimney. Distortions in floors and walls may also influence the height. Place the stove for accurate height and positioning of the flue/chimney connection. Subject to errors and changes.
For the latest updated version go to www.nordpeis.com.
Technical information
The stoves from Nordpeis all have secondary combustion and are clean burning. The combustion takes place in two phases: first the wood burns and then the gases from the fumes are lit by the hot air. This ensures that these new stoves have minimal emissions of soot particles and un-burnt gases (such as CO) and are thus better for the environment. Clean burning stoves require a small amount of wood in order to obtain a good heat output. Use exclusively clean and dry wood. We recommend seasoned hardwood with a maximum moisture content of 20%.
- Material Steel
- Weight (kg)
- with sideglass / w/o sideglass 64 / 68
- Ceiling (the weight of the chimney connection not included) 83 / 87
- Draught system Air vent control
- Combustion system Secondary combustion (clean burning)
- Operating range, Clean burn (kW) 3-6
- Maximum fuel length (cm) 37 cm
- Flue outlet Top and rear
- Flue (Ø mm) Outer Ø 150 mm *Alternative versions exsists due to National requirements
- Flue gas temperature at flue connector (°C) 388
- Flue gas mass flow (g/s) 4,8
- Draft at flue connector recommended (Pa) 15 – 25
- Nominal heat output (kW) 5,8
- Efficiency > 65 %
- CO @ 13% O2 <1500 mg/m³
- Flue gas temperature (°C) 324
- Draft (Pa) 15
- Fuel recommended Wood
- Fuel length recomended (cm) 30-35
- Fuel charge (kg) 1,20
- Refueling interval (minutes) 45
- Operation Intermittent*
Intermittent combustion refers to normal use of a fireplace, .ie. new wood is inserted when the previous load has burned down to ember.
Warning: If the requirements for ventilation are NOT complied with, the cooling airflow around the product will be considerably reduced and the product can overheat. This can cause a fire.
Distance to combustible material
Ensure that the safety distances are respected (FIG 1A, 1B and 1C). When connecting a steel chimney to the top outlet use the security distances required from the manufacturer.
Assembly
Operating control
When the stove is in an upright position, and prior to connecting it, control that all functions are easy to manoeuvre and appear satisfactory.
Connecting the flue
Please be aware when connecting the 150 mm flue to the smoke dome that the flue is placed outside the flue outlet collar. *Alternative versions exsists due to National requirements. For the flue connection to the chimney, follow the recommendations from the chimney manufacturer. We recommend a maximum chimney weight of 150 kg.
Lighting the fire for the first time
When the stove is assembled and all instructions have been observed, a fire can be lit. Take care when inserting logs into the burn chamber, in order not to damage the Thermotte plates. Please note that there might be some humidity in the insulation plates which can result in a slower burn rate the first few times the stove is used. These will be resolved once the humidity has evaporated. It is advisable to ventilate the room well when firing for the first time as the varnish on the stove may release some smoke or smell. Both the smoke and smell will disappear and are not hazardous.
Lighting a fire
Insert small dry pieces of kindling wood,open the air vent control and ignite. When the flames are stable and the chimney is warm, the air supply is regulated with the air vent control. When there is a glowing layer of ash, new wood logs can be inserted. Pull the hot ember to the front of the combustion chamber when inserting new logs so that the wood is ignited from the front. The fire should burn with bright and lively flames.
Using the stove with low combustion effect and firing around the clock increase pollution as well as the risk for a fire in the chimney. Never allow the stove or flue to become glowing red. Turn off the air vent control should this happen. Regulation of the air vent control takes some experience, but after a little while a natural rhythm for the fire will be found.
IMPORTANT! Always remember to open the air vent control when new wood logs are inserted into a hot burn chamber. Let the flames get established on the wood before the air supply is reduced. When the draught in the chimney is low and the vents are closed, the gas from the firewood can be ignited with a bang. This can cause damages to the product as well as the immediate environment.
Maintenance
Cleaning and inspection
The stove should be inspected thoroughly and cleaned at least once per season (possibly in combination with the sweeping of the chimney and chimney pipes). Ensure that all joints are tight and that the gaskets are rightly positioned. Exchange any gaskets that are worn or deformed. Remember that the stove must always be cold when inspected.
Ashes
The ashes should be removed at regular intervals. Be aware that the ashes can contain hot ember even several days after the fire is finished. Use a container of non-combustible material to remove the ashes. It is recommended to leave a layer of ashes in the bottom as this further insulates the burn chamber. Take care with the Thermotte plates when the ashes are removed, particularly when using an ash shovel, so as not to damage them.
Thermotte™ insulating plates
The insulation plates (Thermotte – FIG 3b) are classified as “wear and tear” parts which will require to be exchanged after some years. The wear time will depend on the individual use of your product. Nordpeis offers a one-year warranty on these parts. After this, replacements can be purchased. If new plates are needed, contact your dealer:
A. Baffle plate
B. Back plate
C. Fire plate
D. Right bottom plate
E. Left bottom plate
F. Lateral plate right – w/o side glass (*)
G. Lateral plate left – w/o side glass (*)
Please note: Wood logs that are too long can cause strain and crack the plates, due to the tension created between the side plates.
Door and glass
Should there be any soot on the glass it may be necessary to clean it. Use dedicated glass cleaner, as other detergents may damage the glass. (Attention! Be careful, even dedicated glass cleaner can damage the varnish on the door frame). A good advice for cleaning the glass is to use a damp cloth or kitchen roll paper and apply some ash from the burn chamber. Rub around the ash on the glass and finish off with a piece of clean and damp kitchen roll paper. Attention! Only clean when the glass is cold. Check regularly that the transition between the glass and the door is completely tight. Periodically, it may be necessary to change the gaskets on the door to ensure that the burn chamber is air tight and working optimally. These gaskets can be bought as a set, usually including ceramic glue.
Packaging recycle
The packaging accompanying the product should be recycled according to national regulations.
Warranty
Warning!
Use replacement parts recommended only by the Manufacturer.
Warning!
Any unauthorized modification of the appliance without written permission of the Manufacturer are prohibited. For detailed description of the warranty conditions see the enclosed warranty card or visit our website: www.nordpeis.com
Advice on lighting a fire
The best way to light a fire is with the use of lightening briquettes and dry kindling wood. Newspapers cause a lot of ash and the ink is damaging for the environment. Advertising flyers, magazines, milk cartons and similar are not suitable for lighting a fire. Good air supply is important at ignition.
Warning: In order to avoid injuries, please be aware that the surfaface may become hot during operation and that extra care need to be taken to avoid skin burn.
Warning: NEVER use a lighting fuel such as petrol, kerosene, alcohol or similar for lighting a fire. This could cause injury to you as well as damaging the product.
Use clean and dry wood with a maximum moisture content of 20%. Humid wood requires a lot of air for the combustion, as extra energy/heat is required for drying the humid wood and the heat effect is therefore minimal. This in addition creates soot in the chimney with the risk of creosote and chimney fire.
In case of a chimney fire, close the door and air supplies on the stove and call the Fire Brigade. After a chimney fire the chimney must in all cases be inspected by an authorized chimney sweeper before you use the appliance again.
Storing of wood
In order to ensure that the wood is dry, the tree should be cut in winter and stored during the summer, covered and in a location with adequate ventilation. The wood pile must never be covered by a tarpaulin lying on the ground as the tarpaulin will then act as a sealed lid that will prevent the wood from drying. Always keep a small amount of wood indoors for a few days before use so that moisture in the surface of the wood can evaporate.
Usage
Not enough air to the combustion may cause the glass to soot. Hence, supply the fire with air just after the wood is added, so that the flames and gases in the combustion chamber are properly burnt. Open the air vent in order for the flames to establish properly on the wood.
Note that the air supply for the combustion also can be too large and cause an uncontrollable fire that very quickly heats up the whole combustion chamber to an extremely high temperature (when using with a closed or nearly closed door). For this reason you should never fill the combustion chamber completely with wood.
Choice of fuel
All types of wood, such as birch, beech, oak, elm, ash and fruit trees, can be used as fuel in the stove. Wood species have different degrees of density – the more dense the wood is, the higher the energy value. Beech, oak and birch has the highest density.
Attention! We do not recommend using fuel briquettes/ compact wood in our products. Use of such fuel may cause the product to overheat and exceed the temperatures determined safe. Burning briquettes/ compact wood is done so at your own risk and only small amounts (max 1/3 of normal load) should be used for each load.
Warning:
NEVER use impregnated wood, painted wood, plywood, chipboard, rubbish, milk cartons, printed material or similar. If any of these items are used as fuel the warranty is invalid. Common to these materials is that during combustion they can form hydrochloric acid and heavy metals that are harmful to the environment, yourself and the insert. Hydrochloric acid can also corrode the steel in the chimney or masonry in a masonry chimney. Also, avoid burning with bark, sawdust or other extremely fine wood, apart from when lighting a fire. This form of fuel can easily cause a flashover that can lead to temperatures that are too high.
Warning:
Make sure the insert is not overheated- it can cause irreparable damage to the product. Such damage is not covered by the warranty. Source “Håndbok, effektiv og miljøvennlig vedfyring” by Edvard Karlsvik SINTEF Energy Research AS and Heikki Oravainen
Some advice in case of combustion problems
| Error | Explanation | Solution |
|
No draught | The chimney is blocked | Contact a chimney sweeper / dealer for more information or clean the flue, smoke baffle and burn chamber. |
| The flue is sooty or there is accumulated soot on the smoke baffle | ||
| The smoke baffle is wrongly positioned | Verify the assembly of the smoke baffle – see assembly instructions. | |
|
The stove release smoke when lighting the fire and during combus- tion | Downdraught in the room caused by no draught, that the house is too “air tight”. | Light the fire with an open window. If this helps, more/bigger vents must be installed in the room. |
| Downdraught in the room – caused by extractor and/or central ventilation system that pulls too much air out of the room. | Turn off/regulate extractor and/or other ventilation. If this helps, more vents must be installed. | |
| The flues from two fireplaces/stoves are connected to the same chimney at the same height. | One flue must be repositioned. The height difference of the two flue pipes must be of at least 30 cm. | |
| The flue is in a declining position from the smoke dome to the chimney. | The flue must be moved so that there is an inclination of at least 10º from smoke dome to chimney. Possibly install a smoke suction device*. | |
| The flue is too far into the chimney. | The flue must be reconnected so that it does not enter into the chimney but ends 5 mm before the chimney inner wall. Possibly install a smoke suction device*. | |
| Soot hatch in the basement or attic that is open and thus creating a false draught. | Soot hatches must always be closed. Hatches that are not tight or are defected must be changed. | |
| Damper/top draught vents or doors on fireplaces that are not in use are open and create a false draught. | Close damper, doors and top draught vents on fireplaces that are not in use. | |
| An open hole in the chimney after that a fireplace has been removed, thus creating a false draught. | Holes must be completely sealed off with masonry. | |
| Defect masonry in the chimney, e.g. it is not airtight around the flue pipe entry and/or broken partition inside the chimney creating a false draught. | Seal and plaster all cracks and sites that are not tight. | |
| The cross-section in the chimney is too large which results in no or very low draught. | The chimney must be refitted, possibly install a smoke suction device*. | |
| The cross-section in the chimney is too small and the chimney cannot carry out all the smoke. | Change to a smaller fireplace or build new chimney with a larger cross section. Possibly install a smoke suction device*. | |
| The chimney is too low and hence a poor draught. | Increase the height of the chimney and/or install a chimney cap/ smoke suction device*. | |
| The stove releases smoke inside when it is windy outside. | The chimney is too low in relationship to the surrounding terrain, buildings, trees etc. | Increase the height of the chimney and/or install a chimney cap/ smoke suction device*. |
| Turbulence around the chimney due to the roof being too flat. | Increase the height of the chimney and/or install a chimney cap/ smoke suction device*. | |
| The stove does not heat suf- ficiently. | The combustion receives too much oxygen due to a leakage under the lower border of the stove or too strong chimney draught. Difficult to regulate the combustion and the wood burn up too quickly. | Any possible leakage must be sealed off. A draught regulator or possibly a damper can reduce the chimney draught. NB! A leakage of only 5 cm2 is enough for 30% of the heated air to disappear. |
|
Too much draught | The smoke buffer is wrongly positioned. | Verify the positioning of the smoke buffer – see assembly instruc- tions. |
| In case of using oven-dried wood, this requires less air supply than when using normal wood. | Turn down the air supply. | |
| The gaskets around the door are worn and totally flat. | Replace the gaskets, contact your dealer. | |
| The chimney is too large. | Contact chimneysweeper or other professional for more details. | |
|
The glass is sooty | The wood is too wet. | Only use dry wood with a humidity of maximum 20%. |
| The air vent control is closed too tightly. | Open the air vent control to add air to the combustion. When new wood logs are inserted all vent controls should be completely opened or the door slightly opened until the flames have a good take on the wood. | |
|
White glass | Bad combustion (the temperature is too low) | Follow the guidelines in this user guide for correct combustion. |
| Using wrong material for combustion (such as: painted or impregnated wood, plastic laminate, plywood etc) | Ensure to use only dry and clean wood. | |
| Smoke is relea- sed when the door is opened | A levelling out of pressure occurs in the burn chamber. | Open the air vent control for about 1 min before opening the door – avoid opening the door too quickly. |
| The door is opened when there is a fire in the burn chamber. | Open the door carefully and/or only when there is hot ember. | |
| White smoke | The combustion temperature is too low. | Increase the air supply. |
| The wood is humid and contains water damp. | Ensure to use only dry and clean wood. | |
| Black or grey/ black smoke | Insufficient combustion. | Increase the air supply. |
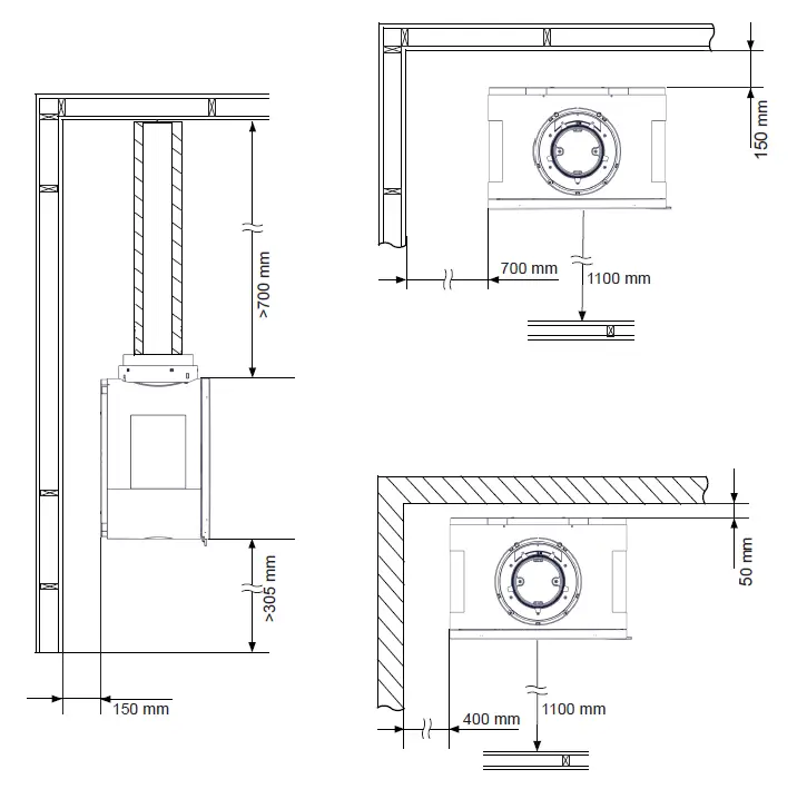
IMPORTANT: Included in the installation kit are 4 x Ø8×120 wood screws. These are only intended for use in solid wood beams. Follow the instructions below on how to insert cross-beams between the original beams in order to create a safe construction. If your ceiling construction is made from other material we strongly suggest to use protruding M8 bolts or threaded bars with appropriate washers on top. We recommend a maximum chimney weight of 150 kg.
ATTENTION: Always follow the chimney manufacturer’s instructions and safety distances!
FIG 1 Me Ceiling – Stove Ceiling = mm / air / chimney

FIG 1A Me Ceiling – Stove – safety distances
FIG 1B: Me Ceiling – Stove with sideglass – safety distances
FIG 1C: Me Ceiling – Stove w/o sideglass – safety distances

FIG 2: ME with sideglass Thermotte plates disassembling




FIG 3: ME w/o sideglass Demontering av Thermotteplater / Demontering av thermotte-plattor Thermotte plates disassembling / Thermotte-levyjen irrotus



To re-install the thermotte plates reverse the order they were removed.
The air vent control is turned to the right to increase the air supply. The vent is working in two modes.
A. Turn the vent all the way to the right for ignition mode.
B. Turning the vent gradually left will decrease the ignition air untill a click can be noticed. This indicates that the ignition air is now cut off and the stove is in normal operational mode. Further turning the vent to the left will gradually decrease the combustion air in the operational mode.



Example on how to fit the cross-beams (FIG 2): For sufficient strength and stability we strongly recommend to use minimum 2×6” lumber. As the cross-beams are supporting the entire weight and stability of the stove and the chimney, it is very important that they are securely fixed to the original beams. 



Make sure the bolts are placed in the middle of the prolonged bean-shaped holes in the ceiling collar. This will allow you to adjust the angle of the stove with 15 degrees in each direction after the ceiling collar has been fastend to the ceiling.
The supplied bolts are only intended for solid wooden beams measuring at least 150mm in height and 50mm in width.Pre-drill Ø6mm holes before applying the supplied bolts and capping them at the end with the supplied plastic caps.

Declaration of Ecodesign Conformity
This is to declare that Nordpeis Me complies to the Ecodesign requirements described in the Commission Regulation, Directive 2015/1185 of the European Parliament and of Council 2009/125/WE for local solid fuel space heaters.
| Emission from combustion: | |
| Carbon monoxide at 13% O2 | CO: < 1500 mg / m3 |
| Oxygen nitride NOx at 13% O2 | NOx : < 200 mg / m3 |
| Organic Gaseous Carbon at 13% O2 | OGC : < 120 mg / m3 |
| Particulate Matter at 13 O2 | PM : < 40 mg / m3 |
| Energy efficiency | > 65 % |
The undersigned is responsible for the manufacture and conformity with declared performance.
Technical parameters for solid fuel local space heaters
| Model identifier(s): Me | ||||||||
| Indirect heating functionality: no | ||||||||
| Direct heat output: 5,8 (kW) | ||||||||
| Fuel | Preferred fuel (only one): | Other suitable fuel(s): | ||||||
| Wood logs with moisture content ≤ 25 % | yes | no | ||||||
| Compressed wood with moisture content < 12 % | no | no | ||||||
| Other woody biomass | no | no | ||||||
| Non-woody biomass | no | no | ||||||
| Anthracite and dry steam coal | no | no | ||||||
| Hard coke | no | no | ||||||
| Low temperature coke | no | no | ||||||
| Bituminous coal | no | no | ||||||
| Lignite briquettes | no | no | ||||||
| Peat briquettes | no | no | ||||||
| Blended fossil fuel briquettes | no | no | ||||||
| Other fossil fuel | no | no | ||||||
| Blended biomass and fossil fuel briquettes | no | no | ||||||
| Other blend of biomass and solid fuel | no | no | ||||||
| Characteristics when operating with the preferred fuel | ||||||||
| Seasonal space heating energy efficiency η s > 65 % | ||||||||
| Energy Efficiency Index (EEI): 105,6 | ||||||||
| Item | Symbol | Value | Unit | Item | Symbol | Value | Unit | |
| Heat output | Useful efficiency (NCV as received) | |||||||
| Nominal heat output | Pnom | 5,8 | kW | Useful efficiency at nominal heat output | ηth,nom | > 65 % | % | |
| Auxiliary electricity consumption | Type of heat output/room temperature control (select one) | |||||||
| At nominal heat output | elmax | kW | single stage heat output, no room temperature control | no | ||||
| At minimum heat output | elmin | kW | two or more manual stages, no room temperature control | yes | ||||
| In standby mode | elSB | kW | with mechanic thermostat room temperature control | no | ||||
| with electronic room temperature control | no | |||||||
| with electronic room temperature control plus day timer | no | |||||||
| with electronic room temperature control plus week timer | no | |||||||
| Other control options (multiple selections possible) | ||||||||
| room temperature control, with presence detection | no | |||||||
| room temperature control, with open window detection | no | |||||||
| with distance control option | no | |||||||
| Permanent pilot flame power requirement | ||||||||
| Pilot flame power requirement (if applicable) | Ppilot | kW | ||||||
| Contact details | Name and address of the supplier: Nordpeis AS, Gjellebekkstubben 11, N-3420 LIERSKOGEN, Norway | |||||||
Nordpeis AS, Gjellebekkstubben 11, N-3420 LIERSKOGEN, Norway
www.nordpeis.no
References
The largest fireplace supplier in Norway | Nordpeis
Kaminanlage und Kaminofen | Wärmende Innovation | Nordpeis
Nordpeis | Fireplaces and stoves
Nordpeis Finland | Nordpeis
Cheminées et poêles | Un design chaleureux | Nordpeis
Størst på peis - finn din favoritt | Nordpeis
Allt du behöver till öppen spis och kaminer | Nordpeis



















