Continental Refrigerator R290 Solid Door Reach-In Refrigerator

Product Information
The product is a refrigeration unit that comes with an installation and operations manual. It includes worktops/under counters & sandwich units, refrigerators & freezers. The model uses R-290 refrigerant which is flammable. The manual has been compiled to aid in the installation, operation, and maintenance of the equipment.
Serial Data Tag
A serialized data tag is permanently attached to the inside right-hand wall of the unit. This tag provides important information regarding electrical requirements and refrigeration charge, as well as agency listings and factory contacts.
Uncrating Your New Model
The equipment should never be transported on legs/casters unless the cabinet bottom is properly supported. Consult the factory for more information.
Product Usage Instructions
- Fill in the following information for your new unit: model no., serial no., purchased from, install date.
- Refer to the data tag to see what refrigerant is used on your product of choice. If it is R-290, do not damage the refrigerant circuit and do not store explosive substances, such as aerosol cans with flammable propellant, in the appliance. Component parts shall be replaced with like components and servicing shall be done by authorized service personnel to reduce the risk of possible ignition.
- Read the manual and familiarize yourself with your equipment, its operation, and available accessories to enjoy optimum performance.
- Note down the model and serial number on the front cover of the manual in the spaces provided. If parts or service are ever needed for your unit, this information will be required to verify warranty status and to properly identify any parts that may be needed.
- Before moving the cabinet to its final point of installation, measure all doorways or passages to assure clearance. If additional clearance is needed, you can remove the cabinet doors (see Removal of Doors and Door Adjustment) and lids (when equipped) (see Removing Lid and Hood).
- Caution: Risk of electrical shock. Keep electrical components and controls dry. Do not spray with water. Failure to follow these instructions can cause a hazard & void factory warranty.
Some models utilize R-290 refrigerant, which is flammable.
Refer to data tag to see what refrigerant is used on your product of choice.
WARNING: Do not damage the refrigerant circuit. Do not store explosive substances, such as aerosol cans with flammable propellant, in this appliance. Component parts shall be replaced with like components and servicing shall be done by authorized service personnel to reduce the risk of possible ignition.
FOR FLAMMABLE (R-290) REFRIGERANT ONLY:
- DANGER: RISK OF FIRE OR EXPLOSION. FLAMMABLE REFRIGERANT USED. DO NOT USE MECHANICAL DEVICES TO DEFROST REFRIGERATOR. DO NOT PUNCTURE REFRIGERANT TUBING.
- DANGER: RISK OF FIRE OR EXPLOSION. FLAMMABLE REFRIGERANT USED. TO BE REPAIRED ONLY BY TRAINED SERVICE PERSONNEL. DO NOT PUNCTURE REFRIGERANT TUBING.
- CAUTION: RISK OF FIRE OR EXPLOSION. FLAMMABLE REFRIGERANT USED. CONSULT REPAIR MANUAL, OWN-ERS GUIDE BEFORE ATTEMPTING TO SERVICE THIS PRODUCT. ALL SAFETY PRECAUTIONS MUST BE FOL-LOWED.
- CAUTION: RISK OF FIRE OR EXPLOSION. DISPOSE OF PROPERLY IN ACCORDANCE WITH FEDERAL OR LOCAL REGULATIONS. FLAMMABLE REFRIGERANT USED.
- CAUTION: RISK OF FIRE OR EXPLOSION DUE TO PUNCTURE OF REFRIGERANT TUBING; FOLLOW HANDLING INSTRUCTIONS CAREFULLY. FLAMMABLE REFRIGERANT USED.
RECEIVING YOUR NEW MODEL
Congratulations on your purchase of Continental Refrigerator’s superior food service equipment! When your shipment arrives, thoroughly examine the packaging for any punctures, dents or signs of rough handling. It is in your best interest to partially remove or open the shipping container to examine the contents for any missing accessories or concealed damage which may have occurred during shipment. If the cabinet is damaged, it must be noted on the carrier’s delivery slip or bill of lading and a Freight Claim must be filed with the shipping company. FREIGHT DAMAGE IS NOT COVERED UNDER WARRANTY.
GENERAL INFORMATION AND IMPORTANT OPERATING FACTS
- This manual has been compiled to aid in the installation, opera-tion and maintenance of your equipment. Please read it and familiarize yourself with your equipment, its operation and avail-able accessories, to enjoy optimum performance.
- This equipment is prohibited from use in California with any refrigerants on the “List of Prohibited Substances” for that specific end-use, in accordance with California Code of Regulations, title 17, section 95374. This disclosure statement has been reviewed and approved by NRAC, Inc. and NRAC, Inc. attests, under penalty of perjury, that these statements are true and accurate.
SERIAL DATA TAG
- A serialized data tag is permanently attached to the inside right-hand wall of your unit. (see Figure 1). In addition to identifying the specific product, this label provides important information regarding electrical requirements and refrigeration charge, as well as agency listings and factory contacts.
FIGURE 1: Data Tag
IMPORTANT NOTE: The model and serial number should be noted on the front cover of this manual, in the spaces provided. If parts or service are ever needed for your unit, this information will be required to verify warranty status and to properly identify any parts that may be needed.
- All cabinets must be given sufficient time to reach normal operating temperature before placing any food inside cabinet or pans (if equipped). For refrigerators, approximately 1 hour of operation is required to lower the cabinet and pan tempera-ture to 40°F (4°C). During pull-down of open top models, pans should be in place and the top lid should be kept closed. Freezers require approximately 2 hours of operation to lower the cabinet temperature to 0°F (-18°C) (see “Operation” section for further information).
- Prior to factory shipping, all products are performance-run tested for a minimum of 12 hours providing a highly sophis-ticated temperature recording exclusive to each individual cabinet. This recording is supplied within this manual packet. A final evaluation, including analysis of cabinet performance, leak check, vibration, noise level and visual examination is made by a qualified quality control team to assure a superior product. The carrier signs to this effect when they accept the product for shipping. To insure maximum safety and sanitation, all models are listed under applicable Underwriters Laboratories and National Sanitation Foundation standards.
CAUTION
- RISK OF ELECTRICAL SHOCK
- KEEP ELECTRICAL COMPONENTS AND CONTROLS DRY
UNCRATING YOUR NEW MODEL
- IMPORTANT: Your equipment should never be transport-ed on legs/casters unless the cabinet bottom is properly supported. Consult the factory for more information.
- The shipping container should remain on your cabinet to avoid dents or scratches while transporting to the actual set-up loca-tion. All shelving, accessories and legs or casters are carefully packaged and secured inside your cabinet to prevent damage. After moving unit to its final location, remove all the staples from around the bottom of the crate using a pry bar. Slide the cardboard carton up and off the unit, being careful not to rub against the cabinet. Remove any accessories or boxes on the skid. Dispose of all packaging materials properly.
- Four (4) bolts secure the cabinet to the wooden skid. The bolts are located at each end on the underside of the skid. In order to remove these bolts, tilt the cabinet backwards and place wooden blocks at each end in order to hold it in its tilted posi-tion. Using a ¾” socket or open end wrench, remove the bolts and carefully slide the cabinet off of the skid. After skid removal, the cabinet should never be moved without dollies or rollers to avoid damage to the cabinet bottom or floor.
- IMPORTANT NOTE: Do not under any circumstances, lay your new model on its front or sides. For a brief period of time, you may lay the cabinet on its back, but only when its properly blocked so as not to crush the louvered venting panel and also to allow provision for your hands, in order to set it in its upright position without damaging the cabinet. Do not plug in and operate model for at least three (3) hours after cabinet is set upright from being on its back as this can damage the compressor.
INSTALLATION AND LOCATION
- Before moving the cabinet to its final point of installation, mea-sure all doorways or passages to assure clearance. If additional clearance is needed, you can remove the cabinet doors (see “Removal of Doors and Door Adjustment”) and lids (when equipped) (see “Removing Lid and Hood”).
VENTILATION
- The final location site of your air cooled refrigerator or freezer must provide a sufficient quantity of cool, clean air. All refrigera-tion systems operate more efficiently and trouble-free with cool, dry air circulation. Avoid locations near heat and moisture gen-erating equipment including ovens, fryers, dishwashers, steam kettles, etc. Do not install in direct sunlight (where temperatures may exceed 100°F) or in an unheated area (where temperatures may drop below 55°F).
- Air supply to the condensing unit is critical. Restricting airflow places excessive heat load on the unit, adversely affecting its operation and may cause premature failure. The condenser coil must be kept clean and free from obstruction. Condenser air fil-ters are not recommended, since they hinder airflow, especially if they are not replaced frequently. Contact our factory Service Department for more information.
- For optimum performance, all models should be installed on casters or legs (see “Installing Casters” or “Legs”) with a minimum 3” on each side and back of cabinet (see Figure 2). This spacing will provide sufficient room for proper air circu-lation and clearance to access components for cleaning and maintenance. If any of the these conditions cannot be met, the installer should provide special venting or air ducts, as required. 60” and 72” models have also been designed to operate suf-ficiently without legs or casters and directly on the floor as long as a minimum clearance of 3” is provided from the rear venting louvers and the rear wall (see Figure 2). Cabinet side clearance is not required when mounting your model directly on the floor, without legs or casters. If any of the above conditions can not be achieved, the installer should provide special venting or air sup-ply ducts, or a Front-Breather Kit (see “Optional Accessories”) can be ordered by contacting the factory.
FIGURE 2: Minimum Clearance Dimensions for Optimum Conditions
“UC” series models and units provided with the Front-Breather Option do not require any clearance around the the sides or back of the cabinet, since they take in and exhaust air under the cabinet and through the front grill, under the door. The air flow under the cabinet and through the front grill cannot be restrict-ed. (see “Front Breather Kit” under “Optional Accessories”).
IMPORTANT NOTE: For maximum efficiency, your new cabinet must be located where an unrestricted air supply can circulate above and behind it. Never obstruct the face of the condenser or the grill area in the front of the cabi-net and never place or store anything inside the cabinet machine compartment. These rules are essential for long life. FAILURE TO FOLLOW THESE GUIDELINES MAY VOID YOUR WARRANTY.
FLOOR LOADS
- The floor at the final location site must be level, free of vibration and strong enough to support the total combined weights of your new model plus the maximum product load which might be placed into it. Keep in mind that all the weight is concentrated at the caster or leg locations. A fully loaded reach-in model may reach 2,000-3,000 pounds. To estimate the possible product weight, assume that each cubic foot of storage space weighs approximately 35 pounds. Multiply 35 pounds by the amount of cubic feet in the cabinet to obtain the product load weight.
- For example, a 20 cubic foot refrigerator can hold approximately 700 pounds of product (35 x 20). Assuming the cabinet itself weighs 300 pounds, the total combined weight of cabinet and product is approximately 1000 pounds. Therefore, the floor in this example must be able to support up to 1000 pounds.
INSTALLING CASTERS AND LEVELING
- If your new unit is supplied with swivel casters, they will be packed in the accessory box that came with your cabinet. Casters should be installed only when the cabinet is close to it’s final installation site. To install casters on your new model, carefully tip the unit back and position (4) 2” thick wood blocks underneath. Locate the large threaded holes on the bottom of the cabinet and screw the threaded caster studs into the mounting holes, closest to the front of the unit. Repeat this procedure by tilting the cabinet in the opposite direction and installing the remaining casters.
- Make sure the casters are tightened extremely well (see Figure 3). If the casters are not installed tightly, the cabinet will be unstable and may sway or rock, which can damage the cabinet.
- If the height of a caster needs to be raised, shims must be installed under the casters which need leveling. Extra large washers, available at most hardware or furniture stores, can be used to shim casters, or contact the factory for caster shims.
- Do not attempt to level casters by unscrewing them from the cabinet and leaving them loose, as this will cause damage to the cabinet and leg hole threads, voiding all warranties.
FIGURE 3: Installing Casters
IMPORTANT NOTE: It is extremely important that your cabinet is perfectly level for proper operation. If it is not level, the following adverse conditions may occur:
- The door(s) will not be properly aligned and consequently will not provide a good seal.
- Your unit may run excessively.
- An excessive amount of ice will accumulate inside the cabinet, around the door opening(s) and on the finned evaporator coil. If allowed to continue, ice will eventually block the coil and the unit will fail. This can result in the loss of all food stored in the cabinet.
- Defrost water will fail to drain properly and will overflow the evaporator coil drain pan and into the cabinet of both refrigerator and freezer models.
INSTALLING LEGS AND LEVELING
- If your new unit is supplied with adjustable legs, they will be packed in the accessory carton in the cabinet. Each model has four leg mounting holes on the bottom of the cabinet (see Figure 4). In order to install the legs, carefully tip the cabinet back, adding four (4) 2” wood blocks underneath, and simply screw the threaded leg studs into the case bottom front leg holes. Repeat this procedure by tilting the cabinet in the oppo-site direction and install the remaining legs. Make sure the legs are tightened extremely well or the entire model will sway or rock with each opening or closing of the doors, possibly causing damage to the case bottom. This procedure should be performed close to the final installation site and allow access to the rear of the cabinet for condensate evaporator installation (see “Installing Condensate Evaporator” under Installation and Location” section).
- To assure your cabinet is level, all legs are equipped with bullet-type leveling bolts. These bolts can be turned by hand or by wrench, clockwise or counterclockwise to level the cabinet.
FIGURE 4: Leg Installation
CONDENSATE REMOVAL
- During the refrigeration process, warm, air is cooled and mois-ture condenses into water which collects in a drain pan in your cabinet. No floor drains or plumbing connections are required for your cabinet, since all models use a self-contained, auto-matic condensate water evaporating system (see Figure 5). Some models include a wick pad in the drain pan, to maximize evaporation. The pad is made of a composite wicking material with a metallic facing, specifically designed to safely absorb and eliminate water as quickly as possible. The wick has a special antimicrobial coating which minimizes any potential growth of mold or bacteria. The wick pad should be replaced once a year, or if it ever appears clogged or will not retain its shape.
- In some adverse conditions such as extreme ambient tempera-ture, high humidity, exceptionally heavy usage, frequent loading for prolonged periods of time, or extra heavy pan loading, the amount of condensate water generated could overflow the pan. If this occurs, the plastic drain tube from the cabinet can be diverted directly to a floor drain, bypassing the condensate pan. Alternatively, an optional electric condensate heater may be purchased as an accessory. To install the optional condensate heater, follow the steps for: “Installing Electric Condensate Heater” in the “Optional Accessories” section, located at the back of this manual. (Note: An electric condensate heater is supplied standard on all remote models.)
- Periodically (at least once a month) the condenser coil should be inspected, to make sure it is not dirty or blocked, and the wick pad can be easily checked at the same time.
- To check the condenser and wick, disconnect the cabinet power supply, remove the screws securing the back cover to the cabinet and set the parts aside. Inspect the condenser coil and wick pad for any damage or debris. Make sure the wick is secured in the drain pan as shown. Remove any mineral deposits or dirt build-up on the condenser, as well as on the wick pad and drain pan. Reattach the back cover and reconnect power to the cabinet. Contact the factory if you need to order a new wick pad or any replacement parts.
FIGURE 5: Model Components
DOOR ADJUSTMENT
All doors are aligned at the factory, however vibration during transit may cause them to shift and adjustment may be neces-sary. If a door requires realignment, carefully open the door (90°) and loosen, but do not remove the mounting screws securing both the top (see Figure 6) and bottom (see Figure8) hinge brackets to the cabinet. Move the door to the desired position by hand or by gently tapping on the edge with a rubber mallet. Hold the door firmly in place and tighten all mounting screws securely, above and below the door. Check alignment and repeat adjustment if necessary.
FIGURE 6: Hinge Adjustment
HINGE TENSION ADJUSTMENT
- The self-closing doors on your unit have a spring-loaded hinge cartridge concealed in the door (see Figure 7) with a hold-open feature and a cushioned stop. When the door is fully opened (115°) the hinge should be tension free. When the door is moved between the open and closed position, the spring-loaded hinge will automatically rotate the door toward the closed position. For proper operation, self-closing doors must be installed with the spring-loaded hinge mechanism set to apply tension in the proper direction (see Figure 8).
- To adjust spring tension, Open the door fully (115°) so it stays in position when released. Remove the mounting screws secur-ing the cartridge bracket to the cabinet (see
- Figure 6). The bracket should stay in position when released, but if it is moved or bumped, it may snap into the closed position.
- THE HINGE CARTRIDGE IS SPRING-LOADED AND MAY SNAP BACK ON FINGERS WHEN THE BRACKET IS LOOSE. WEAR WORK GLOVES AND USE CAUTION WHEN REMOVING MOUNTING SCREWS!!
- Use a hinge cartridge bracket as a wrench by positioning it upside down with the square hole over the square hub on the spring mechanism (see Figure 7). Carefully turn the square hub on the cartridge in the direction shown to tighten the spring. The mechanism should snap to a neutral position. Remount the hinge as shown and repeat the procedure described above until the hinge snaps back when it is moved from the open-door posi-tion towards the closed-door position.
FIGURE 7: Spring-Loaded Hinge Mounting
REMOVAL AND REPLACEMENT OF DOORS
If you need to remove a door from your cabinet, first identify the location of the spring-loaded hinge cartridge (see Figure 8). Depending on the age of your cabinet, the cartridge is located either on the top or the bottom of the door.
CAUTION: THE HINGE CARTRIDGE IS SPRING LOADED AND THE BRACKET MAY SNAP TOWARDS THE DOOR!
- For doors with spring cartridge on the top: Open the door fully (115°) and remove the mounting screws (see Figure 6) secur-ing the hinge cartridge bracket to the cabinet above the door. (The bracket should stay in the open position, but if it is moved it may snap closed). Pick the door straight up, being careful not to bump the cartridge bracket, and lift it off the pivot pin bracket below the door. To reinstall a door, reverse this procedure and follow the instructions above to set the hinge tension and adjust the door properly.
- For doors with spring cartridge on the bottom: Open the door fully (115°) and remove the mounting screws securing the hinge cartridge bracket to the cabinet below the door. Lower the door down carefully, to avoid bumping the cartridge bracket, and slide it off the pivot pin bracket over the door. To reinstall, reverse this procedure and follow the instructions above to set the hinge tension and adjust the door properly.
FIGURE 8: Door Hinge Components
RE-HINGING DOORS
IMPORTANT NOTE: DOORS ARE FIELD REVERSIBLE, BUT DIFFERENT HINGE BRACKETS ARE REQUIRED. HAVE YOUR MODEL & SERIAL NUMBER READY AND CONTACT THE FACTORY FOR THE PARTS NEEDED FOR YOUR UNIT.
- Remove the door and hinge cartridge bracket from the cabinet, as described above (see Figure 7). Remove the pivot bracket, located at the opposite edge of the door (see Figure 8) by loosening the (2) mounting screws. Remove the hinge cartridge from the door by removing the (2) screws and sliding the car-tridge out. Remove the plastic pivot insert from the opposite end of the door by carefully prying it out with a flat-blade screw-driver or putty knife. Remove the remaining “filler screws” from the face of the cabinet and reinstall them in the threaded holes where the brackets were originally mounted.
- To re-assemble the reverse-hinged door, obtain the correct cartridge bracket and pivot bracket for the top and bottom of the “opposite-hand” door (see Figure 8 for parts identification). Follow the steps above, in reverse order.
SANDWICH TOP AND FOOD PANS
- Sandwich units are provided with food pans and divider bars. All pans must be kept in place whenever your unit is operating and lids should be closed whenever possible for optimum performance. To remove the lid over the pans (see Figure 9), lift it 1/2 way up and carefully push in on one end at the bottom corner, so the pivot pin comes out of the mating hole in the hood. Swing the end of the lid forward, so it clears the end of the hood. Slide the entire lid sideways, so the pivot pin on the opposite end is free from the hood. If you have an insulated lid, to remove the liner and insulation, take out the screws along the back edge, let the back of the liner drop down and rotate it so the front edge of the liner disengages from the front of the lid. To remove the hood from the cabinet, take out the screws located inside each end and along the back edge.
FIGURE 9: Sandwich Top Lid Open
IMPORTANT NOTE: The top opening on your sandwich unit must be completely filled with pans at all times, even if some pans are empty, to maintain air flow for proper cabinet and pan temperature.
INTERIOR ACCESSORIES
- Your new unit is shipped with (1) shelf per section and (4) pilaster clips for each shelf.
SHELVING INSTALLATION
- Pilaster strips which support the shelving are secured to the cabinet walls with special pilaster screws which allow the strips to be readily removed for cleaning without the use of tools. Shelf clips are easily installed by inserting them into the pilasters at the desired shelf location and shelf installation is as simple as placing the shelf on the (see Figure 10).
FIGURE 10: Standard Shelf Pilaster
INITIAL CLEANING PROCEDURE
Prior to start-up and before placing any product inside of your new model, the interior of the cabinet should be thoroughly cleaned. Remove the protective film (which is clear on some models) from all interior sides, bottom and other internal metal panels, by working the corner loose and slowly pulling the film back. Washing with a mild soap and warm water solution is recommended for cleaning the aluminum and stainless steel surfaces of your cabinet. This should be followed by cleaning with a baking soda solution (three (3) tablespoons of baking soda to each quart of warm water). Wipe down thoroughly with a damp cloth or sponge that has been soaked in clean water and wrung out thoroughly, and dry with a clean, soft cloth.
IMPORTANT NOTE: Never use harsh detergents, clean-ers, scouring powders or chemicals when cleaning your model. Failure to dry the interior surfaces after cleaning may result in a streaking or staining of the metal.
Complete cleaning procedures and precautions are listed in the (“Periodic Cleaning Procedure” under the “Maintenance”).
START-UP PROCEDURE
ELECTRICAL CONNECTIONS
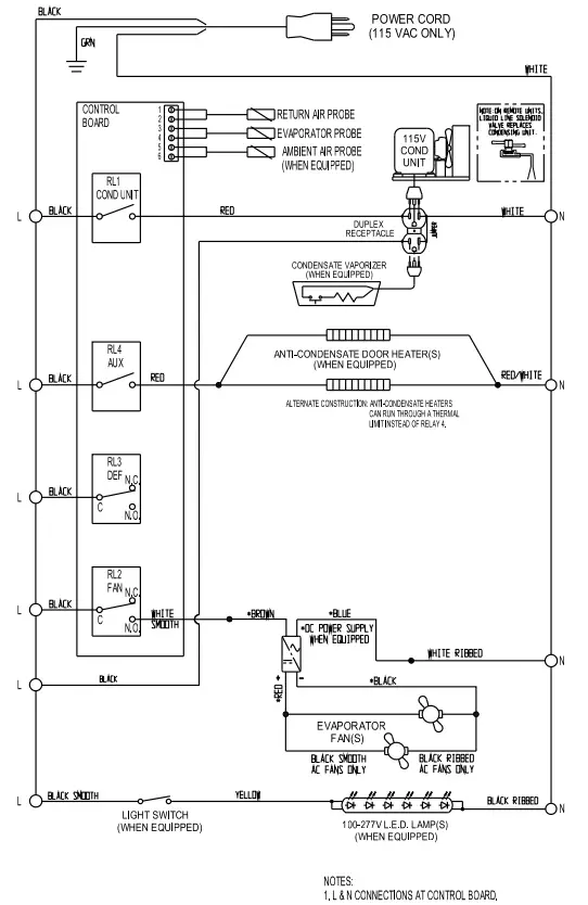
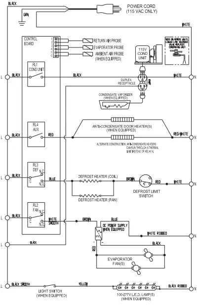
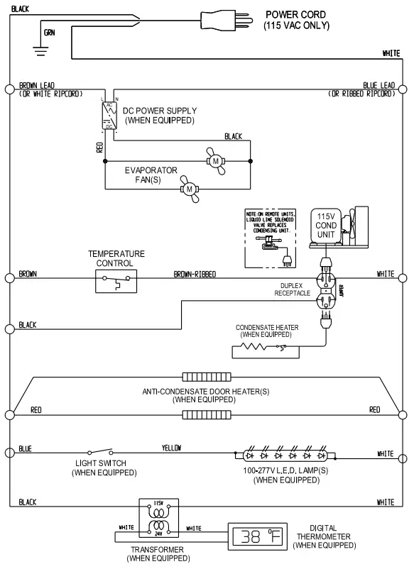
To insure proper operation, your new model must be connected to an individual circuit that can supply the full voltage as stated on the cabinet serial data plate. For correct voltage, power draw and wire accommodations, check the data on the serial data plate located on the inner right wall of your new model. Verify that this information exactly matches the electrical character-istics at the installation location. An electrical wiring diagram, located on the inside compressor compartment rear, next to the electrical console box, should also be consulted during connection. For reference, a copy of each electrical wiring dia-gram is located towards the back of this manual (see “Wiring Diagrams” section).
IMPORTANT NOTE: The condensing unit supplied with all self-contained models is designed to operate within a range of +/-10% of the voltage indicated on the cabinet serial data plate. Full voltage of the correct rating, on an isolated line, not affected by the operation of other electri-cal appliances, must be available to the refrigeration unit at all times. Burnout of the compressor due to exceeding high or low voltage limits is easily detected and will void the factory warranty.
GFI/GFCI RECEPTACLES
Ground-Fault Circuit Interrupter (GFCI or GFI) devices are not recommended for most commercial refrigerators and freezers, since nuisance trips may occur, typically due to moisture. This can cause temporary loss of power, which may result in high storage temperatures and potentially unsafe food product.
Building codes in some areas may require certain 115 volt receptacles to be protected by a GFI. If you need to connect your equipment to a protected circuit, a properly sized, commercial grade GFI circuit breaker should be used on a separate, isolated power supply. Or a qualified electrician may be able to hard wire your equipment, eliminating the need for a GFI device. Contact Continental’s Service Department before making any modifica-tions to your cabinet, to avoid loss of warranty.
NOTE: GFI RECEPTACLES ARE NOT RECOMMENDED, PRODUCT LOSS OR SERVICE PROBLEMS RESULTING FROM NUISANCE TRIPS, CONNECTION TO A DEFECTIVE OR IMPROPER POWER SUPPLY, AND UNAUTHORIZED MODIFICATIONS TO YOUR EQUIPMENT CAN CAUSE A HAZARD AND WILL VOID FACTORY WARRANTY.
115 VOLT, 60 HZ, 1 PHASE CONNECTION
All 115 volt models are provided with a factory installed, UL approved 15-amp power cord and NEMA 5-15P plug, or a 20-amp power cord and NEMA 5-20P plug. To insure proper operation, this equipment must be plugged into a NEMA compatible, grounded receptacle that can sup-ply the full voltage and amperage stated on the serial plate (see Figure 1).
IMPORTANT NOTE: A SEPARATE, ISOLATED, PROPERLY SIZED POWER SUPPLY MUST BE PROVIDED. GFCI DEVICES AND/OR EXTENSION CORDS SHOULD NOT BE USED. PRODUCT LOSS, AS WELL AS PROBLEMS RESULTING FROM NUISANCE TRIPS OR HIGH/LOW VOLTAGE, ARE NOT COVERED UNDER WARRANTY.
CAUTION: IF UNIT IS UNPLUGGED OR DISCONNECTED FOR ANY REASON, ALLOW 5-6 MINUTES BEFORE TURNING THE UNIT BACK ON TO ALLOW THE SYSTEM TO EQUALIZE. DISREGARDING THIS PROCEDURE COULD CAUSE AN OVERLOAD AND PREVENT THE UNIT FROM OPERATING.
SPECIAL VOLTAGE CONNECTIONS
- When models are ordered from the factory with special, optional voltages, connections should be made as required on the electri-cal wiring diagram provided on the inside compressor compart-ment rear next to the electrical console box.
START-UP CHECKLIST
- After your unit has been installed and electrically connected in accordance with this manual, please take time to check the fol-lowing before loading product, to assure trouble free operation:
- Sufficient clearance provided (see “Ventilation”)
- Seperate supply with correct voltage (see “Electrical Connections”)
- Cabinet level and casters/legs tight (see “Installation and Location”)
- Doors close and seal properly (see “Door Adjustment”)
- Proper cabinet temperature (see “System and Adjustment”)
- Refrigeration lines free of kinks and vibration (see “Refrigeration System”)
- Condenser and evaporator fans rotate freely (see “Refrigeration System”)
- Freezers only: Defrost clock set (see “Freezer System and Adjustment”)
- Pilaster clips secure and shelves level (see “Shelving Installation”)
- Sandwich Units: All pans and dividers in place (see “Sandwich Top and Food Pans”)
- All packaging discarded and cabinet cleaned (see “Periodic Cleaning”)
- The system should run smoothly and quietly in accordance with generally accepted commercial standards. If any unusual noises are heard, turn the unit off immediately and check for any obstructions of the condenser or evaporator fans. Fan motors, fan blades, or fan housings can be jarred out of position through rough handling in transit or during installation.
OPERATION WITH MECHANICAL THERMOSTAT
- All cabinets must be given sufficient time to reach normal operating temperature before placing any product in cabinet. Refrigerators are designed to maintain cabinet temperature of 38° to 40°F (3.3° to 4.4°C), about 1 hour of operation is required to reach this temperature. Food pans in sandwich tops must be kept in place at all times and lids should be kept closed whenever possible. Freezers are designed to maintain an ideal cabinet temperature of -4° to 0°F (-20° to -18°C), about 2 hours of operation is required to reach temperature.
THERMOMETER
- Your new model has a non adjustable hanging thermometer located inside the cabinet, mounted on the coil housing cover (see Figure 10). This thermometer is maintenance-free and needs no further calibration.
REFRIGERATION SYSTEM AND ADJUSTMENT
- All self-contained refrigerators are designed and factory set to maintain an average cabinet temperature of 38° to 40°F (3.3° to 4.4°C). The temperature control is accessible inside of the cabinet product compartment, on the right back wall next to the evaporator coil (see Figure 11). If an adjustment is necessary to maintain temperature within the range noted above, place a screwdriver into the thermostat slot and turn clockwise for a colder cabinet temperature or counterclockwise for a warmer cabinet temperature. Further adjustments out of the factory design temperature range should only be made by a qualified refrigeration mechanic.
- IMPORTANT NOTE: Turning a thermostat fully counter-clockwise turns the refrigeration compressor “off.”
EVAPORATOR ASSEMBLY
- All undercounter refrigerators and freezers have an easily acces-sible, easily serviceable, performance-rated, forced-air evapora-tor assembly which utilizes a plasticized fin coil for extended life. All models utilize a full length, extra large evaporator coil with a uniquely directed air flow distribution which keeps compartment product at uniformly constant temperatures (see Figure 11).
FIGURE 11: Evaporator Assembly (Sandwich)
IMPORTANT NOTE: All refrigerators are designed with an automatic, “off-cycle” defrost system which means that defrosting occurs automatically when the compressor is not operating during an off-cycle. Do not set the thermo-stat too cold where the cabinet temperature will fall below 35°F (1.7°C) because the evaporator will become blocked by ice since the compressor off-cycle will be considerably shortened. This will result in loss of product stored within the cabinet and require service to defrost the evaporator and re-adjust the thermostat.
FREEZER SYSTEM AND ADJUSTMENT
All self-contained sandwich unit freezers are designed and fac-tory set to maintain an average cabinet temperature of -4° to 0°F (-20° to -18°C). All freezers are designed for the purpose of holding pre-frozen product and although they are capable of freezing small quantities of fresh product, they are not designed to be blast chillers or ice-cream freezers. Do not attempt to freeze bulk quantities of fresh food or ice-cream. The temperature con-trol is accessible inside of the cabinet product compartment, on the right back wall next to the evaporator coil (see Figure 11 for thermostat location). If an adjustment is necessary to maintain the above temperature range only, place a screwdriver into the thermostat slot and turn clockwise for a colder cabinet tem-perature or counterclockwise for a warmer cabinet temperature. Further adjustments out of the factory design temperature range must be made by a qualified refrigeration mechanic only.
IMPORTANT NOTE: Turning a thermostat fully counter-clockwise turns the refrigeration compressor “off.”
DEFROST OPERATION
- All freezer models are equipped with an automatic, electric defrost system consisting of electric evaporator coil and drain pan heaters, a defrost time clock and an automatic defrost limit switch. The defrost system is time initiated by the time clock and temperature terminated by the automatic limit switch. The time clock is preset for three (3) defrost periods per day at eight (8) hour intervals and a fail safe cut-off time of 20 minutes. Please note that defrost settings are not programmable.
- The defrost time clock is located in front of the electrical con-sole box in the rear machine compartment of your freezer (see Figure 12). If desired, to pre-set the initiation of the defrost cycle to the time of day on the defrost time clock, turn the knob on the center dial of timer face clockwise until the unit defrost cycle begins (compressor and all fans will terminate). Defrost will begin at this same time every day at eight (8) hour intervals. For example, if an 8:00 am defrost is desired, at 8:00 am turn the defrost manual set knob to initiate defrost and a defrost cycle will start every day at 8:00 am, 4:00 pm, 12:00 am. It will be necessary to reset the time of defrost on the timer if the freezer is turned off or has loss of power.
FIGURE 12: Defrost Timer
OPERATION WITH ELECTRONIC CONTROL
ELECTRONIC CONTROL DISPLAY AND BUTTONS
- The control has a 3 button interface.
- The “AUX HTRS/UP” button is used for adjustment of the auxiliary anti-condensate heaters or for increasing values.
- The “SET/MUTE” button is used to lock in a new value or to silence the alarm beeper.
- The “DEFROST/DOWN” button is used to activate a manual defrost or for decreasing values.
- The control icons shown above will be illuminated when the associated function is active. If an icon is flashing, it means the function will be activated after the controller delays are finished.
- NOTE: The electronic control can have 3 probes. There is a regulation probe in the return air stream, an evaporator probe located in the evaporator coil, and models that have anti-condensate heaters, there is an ambient probe.
INITIAL SEQUENCE OF OPERATION
- Cabinet is plugged in.
- The display will illuminate with the current cabinet temperature.
- NOTE: If the display does not illuminate, make sure the main power switch on top of the control box is set to ON (when provided).
- b. The compressor icon, fan icon, and the aux heater icon may flash for a period of time, indicating normal delayed start-up.
- c. After the start-up delay, the compressor and evaporator fan(s) will start if the control is calling for cooling.
- The control will cycle the compressor on and off determined by the SET-POINT and DIFFERENTIAL.
- a. The SET-POINT is the preprogrammed temperature which shuts off the compressor.
- b. The DIFFERENTIAL is the preprogrammed temperature that is added to the SET POINT temperature that will start the compressor.
- EXAMPLE: Set-Point 36°F and the differential is 4°F the com-pressor will cycle off at 36°F and back on at 40°F.
- The control may be preprogrammed to initiate a defrost by time interval.
- a. During defrost, the defrost icon will appear in the display and the compressor will turn off until a preprogrammed temperature or time is reached. During this time for freezers only, the evaporator fan(s) will also turn off and the defrost heater will be energized.
- b. After a preprogrammed evaporator temperature has been reached, there may be a short delay for both the compressor and evaporator fan(s) to restart.
- c. After the defrost cycle is completed, the control will resume normal operation.
HOW TO CALIBRATE THE ELECTRONIC CONTROL
The controller temperature display can be calibrated if required. Before attempting to calibrate the temperature display, check the display by placing a pre-calibrated temperature sensing device in the center of the refrigerated compartment and keep the doors closed for at least 15 minutes. The temperature display should read the same temperature as the sensing device, within +/-2°F. If not, follow these instructions to calibrate.
- Press and HOLD the “SET” button until “PS” appears flashing in the display. Release the “SET” button.
- Press the “UP” button until “/C1” appears in the display. Release the “UP” button.
- Press and release the “SET” button. The current value of the offset will appear in the display.
- Press the “UP” button to increase or the “DOWN” button to decrease the offset value.
- Press and HOLD the “SET” button for 5 seconds to confirm and save the new value. When complete, the current temperature will be displayed. RELEASE the “SET” button.
EXAMPLE: If a sensing device in the cabinet reads 38°F and the control display shows 41°F, follow steps above and decrease the current offset by 3°F. If the current offset was 0, change to -3.
HOW TO CHANGE THE SET-POINT
Refrigerators are factory set to maintain an average temperature of 38°F. Freezers are factory set to maintain an average temperature of 0°F. To change set-point:
- Press and HOLD the “SET” button until the current set-point begins flashing. Release the “SET” button.
- Press the “UP” or “DOWN” button to adjust to the new setpoint value.
- Press and release the “SET” button to lock in the new setpoint. The control will now resume normal operation with the new set-point.
ANTI-CONDENSATE CONTROL (Freezers only)
- To see the current state of the aux heaters (anti-condensate), press and HOLD the “AUX HTR” button for 1 second.
RELEASE the “AUX HTR” button. The display will show the current state of the heater (“ON” or “OFF”) when the button is pressed. - To change the current state of the AUX Heaters, press and HOLD the “AUX HTR” button. The display will show the current state of heater operation. After 5 seconds, the heater will switch to the opposite state and the display will return to displaying the cabinet temperature. RELEASE the button.
The control has a built in energy saving feature for the anticondensate (AUX) heaters. When set to ON, the heaters will automatically energize when conditions require additional heat, to eliminate condensation. The “AUX” icon on the display will illuminate when the AUX heaters are energized. To maximize energy savings, the AUX heaters can be set to OFF, as described above. In this state, the heaters will never energize. If you ever notice moisture accumulating on the face of your cabinet, adjust the AUX control to ON. This will energize the heaters and warm the face of the cabinet, eliminating any condensation that may accumulate.
HOW TO INITIATE A MANUAL DEFROST
This is used when a one-time additional defrost may be necessary to clear accumulated ice from the evaporator coil.
- Press and HOLD the defrost button for 5 seconds.
- After 5 seconds, the defrost icon will illuminate. RELEASE the defrost button.
HOW TO CHANGE THE DEFROST INTERVAL
- This is used to increase or decrease the frequency of defrosts.
- If the interval is set at “8”, a defrost will occur every 8 hours. If you need more defrosts, lower this value.
- Press and HOLD the “SET” button until “PS” appears flashing in the display. Release the “SET” button.
- Press the “UP” button until “DI” (defrost interval) appears in the display. Release the “UP” button.
- Press and RELEASE the “SET” button. The current defrost interval will appear in the display.
- Press the “UP” or “DOWN” button to adjust to the new defrost interval.
- Press and HOLD the “SET” button to lock in this new value. When the display returns back to cabinet temperature, release the “SET” button.
NOTE: Defrost cycles are time initiated and temperature terminated with a maximum time cut-off.
HIGH AND LOW TEMPERATURE ALARMS
The controller has high and low alarm set-points. These values can be modified per the end user requirements. There is a preprogrammed time delay for the alarm to activate to eliminate nuisance alarms. To change the alarm threshold values:
- Press and HOLD the “SET” button until “PS” appears flashing in the display. Release the “SET” button.
- Press the “UP” button until “AL” (Low Alarm Setting) or “AH” (High Alarm Setting) appears in the display. Release the “UP” button.
- Press and RELEASE the “SET” button. The current alarm setting will be shown.
- Press the “UP” or “DOWN” button to get the desired alarm set-point.
- Press and HOLD the “SET” button for 5 seconds to confirm and save the new value. When complete, the current temperature will be displayed. Release the “SET” button.
NOTE: When in an alarm condition, the display will alternate between the cabinet temperature and alarm code. “AL” when in a low temperature alarm condition and “AH” when in a high temperature alarm condition. The control will also beep and the alarm icon will activate when in an alarm condition. To silence the alarm beeper for the active alarm just press and release the “SET/MUTE” button.
ELECTRONIC CONTROL ERROR CODES
When in an alarm condition, the display will alternate between the alarm code and the current cabinet temperature. The alarm icon will also illuminate and the beeper will activate. If there is a regulation probe error, the display will just show alarm code “E0” and not flash the cabinet temperature. If there is a probe error, you must contact your service provider immediately
| Alarm Code | Alarm Description | Notes |
| E0 | Regulation Probe Error | Located in return air stream |
| E1 | Evaporator Probe Error | Located in evaporator coil |
| E2 | Ambient Probe Error | Located on side of electrical box |
| LO | Low Temperature Alarm | Reference “AL” parameter |
| HI | High Temperature Alarm | Reference “AH” parameter |
- Error code “E0”: Control will operate the appliance in a preprogrammed ON/OFF cycle based on time, not temperature.
- Error code “E1”: The control will still go into a defrost but will terminate on time, not temperature.
- Error code “E2”: The aux heaters will not operate.
- If the control goes into a high/low temperature alarm, the beeper will sound and alarm icon will illuminate. When the temperature goes below alarm threshold for high temperature alarms or above alarm threshold for low temperature alarms, the control will go back to normal display.
MAINTENANCE
SAFETY PRECAUTIONS
- DISCONNECT POWER BEFORE ATTEMPTING TO WORK ON OR CLEAN EQUIPMENT. DO NOT ATTEMPT TO REMOVE ANY COVERS OR PARTS YOURSELF, AS THIS CAN EXPOSE DANGEROUS, HIGH VOLTAGE WIRING. SERVICE SHOULD ONLY BE PERFORMED BY A QUALIFIED TECHNICIAN.
- ALWAYS ROUTE POWER CORDS AWAY FROM AREAS WHERE THEY CAN BE WALKED ON OR DAMAGED BY OTHER EQUIPMENT. YOUR APPLIANCE IS EQUIPPED WITH A POLARIZED, GROUNDED POWER PLUG. NEVER ATTEMPT TO REMOVE THE GROUND POST OR USE A NON-POLARIZED ADAPTER, WITHOUT PROPERLY GROUNDING THE EQUIPMENT.
CONDENSER FINS ARE MADE FROM THIN METAL AND HAVE SHARP EDGES. ALWAYS WEAR GLOVES AND USE CAUTION WHEN WORKING ON OR AROUND THE CONDENSING UNIT TO PREVENT CUTS AND AVOID DAMAGING FINS, TUBING AND OTHER COMPONENTS.
KEEP ELECTRICAL COMPONENTS AND CONTROLS DRY. DO NOT SPRAY WITH WATER! FAILURE TO FOLLOW THESE INSTRUCTIONS CAN CAUSE A SAFETY HAZARD AND VOID FACTORY WARRANTY.
PERIODIC CLEANING PROCEDURE
- It is always best to clean your refrigerator or freezer when the product load in your cabinet is as its lowest level. To clean the interior or exterior cabinet surfaces, follow these procedures:
- Disconnect your cabinet from its power supply and remove all product from inside.
- Open all doors and allow the cabinet to reach room temp- erature. Remove all accessories (shelves, pilasters, clips, etc.) from inside and wash them with a baking soda
and warm water solution, wipe thoroughly with clean water. Dry all accessories completely with a soft clean cloth. - Once the cabinet has reached room temperature, wash the inside and outside surfaces with a solution of warm water and baking soda. Pay particular attention to the face of the cabinet, as any residue or debris can impair the door seal. For slightly more difficult cleanups, ammonia or vinegar in warm water can be used. Wipe down thoroughly with a damp cloth or sponge that has been soaked in clean water and wrung out thoroughly, and dry with a clean, soft cloth.
- Carefully wash all of the vinyl door gaskets with clean water, dry them and check for any damage, which may affect the seal. Failure to dry all surfaces completely may cause water stains or streaking on the aluminum or stain less steel finish.
- Return all accessories to their original locations, reconnect the power. Wait at least 1 hour before reloading product.
CLEANING PRECAUTIONS
NEVER USE HARSH DETERGENTS, ABRASIVE CLEANERS, OR CHEMICALS CONTAINING HALOGENS (CHLORINE, FLUORINE, IODINE, ETC.) WHEN CLEANING YOUR UNIT. CONCENTRATED CHEMICALS CAN CAUSE DISCOLORING, ALWAYS WIPE THEM OFF IMMEDIATELY IF CONTACT OCCURS. SEE “CLEANING OF STAINLESS STEEL” FOR MORE INFORMATION. AVOID SPLASHING THE CABINET WITH WATER AND CHEMICALS WHEN MOPPING FLOORS OR CLEANING OTHER EQUIPMENT AROUND IT.
GENERAL PREVENTATIVE MAINTENANCE
- The most important thing you can do to maintain any refrigera-tor or freezer and extend its life, is to keep the condenser clean. Performance of the air-cooled condensing unit, located inside of the compressor machine compartment of your new model, depends exclusively upon the amount of air passing through the condenser fins. Your refrigerator or freezer will run more efficiently, consume less energy, and provide a maximum of trouble-free service throughout its lifetime if the condenser coil is kept clean and an adequate supply of clean, cool air is provided at all times. Periodically (at least once a month) it is important to inspect the condenser coil for any debris or block-age that may have accumulated (see Figure 5).
- If the condenser coil is dirty or dusty, disconnect the cabinet power supply and use a stiff brush to wipe away any dirt and debris from the condenser fins. Using a vacuum cleaner with a brush attachment may aid in this process. After cleaning, restore electrical service to your cabinet.
IMPORTANT!
- AFTER-MARKET CONDENSER FILTERS ARE NOT PERMITTED BECAUSE THEY HINDER AIRFLOW. FAILURE TO KEEP THE CONDENSER CLEAN AND FREE FROM OBSTRUCTIONS WILL CAUSE EXCESSIVE COMPRESSOR LOAD, REDUCING THE PERFORMANCE OF YOUR UNIT. THIS CAN RESULT IN PREMATURE FAILURE AND WILL VOID YOUR WARRANTY.
CARE AND CLEANING OF STAINLESS STEEL
- Some information and graphics for this section were obtained from “Stainless Steel Equipment Care and Cleaning” brochure, published by the North American
- Association of Food Equipment Manufacturers (NAFEM).
- Contrary to popular beliefs, stainless steel can rust, if not properly cared for and maintained (That’s why it’s called stain-LESS steel, not stain-PROOF steel.)

- DO NOT USE: abrasive cleaners, chemicals with chlorides or muriatic acid to clean your equipment.
- All steel is primarily made of iron. Stainless steels contain other metals, such as chromi-um and nickel, that provide an invisible film on the surface of the steel that acts as a shield against corrosion. As long as this invisible layer is intact and not broken or contaminated, the metal will retain its cor-rosion protection and remain stain-less.

There are 3 basic things that can break down the protective layer on your stainless steel, which must be avoided:
- MECHANICAL ABRASION is caused by things that scratch the surface of the metal. Only use soft cloths or plastic scouring pads to clean and always scrub in the same directions as the metal grain.

- DO NOT USE: abrasive cleaners, steel pads, wire brushes, scrapers or knives to clean your equipment.
- CHLORIDES are found in water, salt, food and worst of all, many cleaners. Only use chloride-free, alkaline-based, non-abrasive cleaners. Always wipe thoroughly with cool, clean water and dry with a soft towel. A solu-tion of 1 tablespoon baking soda mixed with 1 pint water can be used to remove tough stains.
- HARD WATER causes spots and stains on stainless steel surfaces, particularly when it is heated. Find out the hard-ness of your water and treat it properly, if needed. Use a water filter and softeners if you have hard water. Club soda can be used to remove streaks or spots.

DO NOT USE: hot or hard water to clean stainless steel.
- CLEAN YOUR STAINLESS STEEL REGULARLY using the proper tools and cleaners. After cleaning, always wipe, wipe, wipe thoroughly with cool, clean, clear water.
- CHECK ALL OF YOUR EQUIPMENT PERIODICALLY. If you see any signs of rust, clean the area immediately, with a plastic scrubbing pad. If surface rust is removed promptly, permanent corrosion, pits and cracks may be avoided. Special stainless steel polishes, that can help restore the protective coating on your equipment, are available from a variety of retailers.
- IMPORTANT: If these recommendations are not followed, the protective film on your stainless steel can break down and your equipment may begin the long walk down the dark road of corrosion.
PARTS AND SERVICE
- Continental is committed to providing the best customer service in the industry. All new units come with a Limited Extended Protection Warranty (see “Warranty” section of this manual for details). If a problem arises with your equipment, please contact our Service Department at 1-800-523-7138. One of our Service Specialists will do everything possible to solve the problem as quickly as possible.
ITEMS NOT COVERED UNDER WARRANTY INCLUDE, BUT ARE NOT LIMITED TO:
- Preventative maintenance: cleaning condenser coils and other components.
- Consumables: light bulbs, door gaskets, batteries. General hardware adjustments: cabinet leveling, casters/legs, doors/hinges.
- Problems due to: inadequate installation or supply power; improper maintenance, operation, or abuse.
- Compressor failure due to: dirty condenser, insuffi-cient clearance/ventilation, excessive temperatures.
- System adjustments and calibrations, including: controls, thermometer and expansion valves.
- Consult the Table of Contents in the front of this man-ual for detailed information on the items listed above. Contact Continental’s Service Department with any additional questions.
PLACING A SERVICE CALL
- In order to receive prompt service, always be prepared to pro-vide your: cabinet model and serial number; cabinet location name and date installed; contact name and phone number; plus a description of the problem.
- During normal business hours (Monday to Friday, 8am to 5pm Eastern) contact the Service Department at: 800-523-7138, prior to any warranty service work being performed.
- After normal business hours, or on weekends you can notify our Service Department by sending an email to: [email protected] or by calling 267-525-3300 and leaving a message in the general mail box. Be sure to provide the informa-tion listed above. Contact Continental Refrigerator the following business day, during normal business hours, to verify the status of your call.
OBTAINING REPLACEMENT PARTS UNDER WARRANTY
- If replacement parts are required for a unit under warranty, contact Continental’s Service Department. New parts will be sent from the factory and, when applicable, a
- Return Goods Authorization (RGA) will be issued to return old parts. The RGA number must appear on the packaging of any parts returned, or they will not be accepted.
- If a service agent uses a part from their stock, Continental will replace it with a factory part.
OBTAINING REPLACEMENT COMPRESSOR UNDER WARRANTY
- If the compressor should fail within the first twelve (12) months of use, or within twenty (20) months from the date code on the compressor, an “over-the-counter” exchange must be made at an authorized Copeland, Danfoss, Embraco, or Tecumseh wholesaler.
- After the first year, the compressor motor is covered under an extended “parts only” warranty. The customer is responsible for any labor charges and any additional parts that may be required. Contact the Service Department to obtain a replacement com-pressor through one of the following methods:
- Continental will supply a replacement compressor at no charge and pay for regular freight. (If expe-dited freight is requested, the end user, dealer or service agent is responsible for additional charg-es and must provide credit card information.
- A compressor can be purchased locally and Continental will either replace the stock unit with a new factory compressor, or offer an allowance towards the purchase of a replacement compres-sor, up to: $100 for 1/5hp to 1/3hp; $250 for 1/2hp to 3/4hp; $350 for 1hp to 2hp.
- The data tag from the defective compressor (or compres-sor model, serial number and date code, if the tag cannot be removed) must be included with any reimbursement request.
END-OF-LIFE DISPOSAL OF REFRIGERATED EQUIPMENT
- Your unit is designed and built to provide many years of reli-able service. At the end of its useful life, please follow the steps below for safe disposal, to help avoid accidents and to protect the environment.
- Remove all doors, to eliminate any potential for accidental child entrapment.
- All refrigerant should be removed from the system by a qualified technician and disposed of properly, or reclaimed.(Intentional venting of many refrigerants into the air is harm-ful and prohibited; violators are subject to fines). All refriger-ant oil should be drained from the compressor and discarded appropriately.
- Properly dispose of the cabinet and refrigeration system components. The majority of the metal in your unit (stainless steel or aluminum cabinet shell and doors, steel shelving and compressor, copper refrigerant lines, etc.) can be recycled. Many recycling facilities will dispose of the unit free of charge, or pay you for scrap value of the material content.
OPTIONAL ACCESSORIES
DRAWERS: REMOVAL AND ADJUSTMENTS
- To remove the drawers from the cabinet, slide each drawer out until it stops. Unhook the stop clip at the front of the left and right-hand drawer slide (see Figure 13) by pushing the clip forward and pressing down on the top back edge as shown. Lift the drawer slightly as you pull it the rest of the way out. The center member, with the wheels attached, will remain in the cabinet. To remove a drawer center member for cleaning or maintenance, pull it out and push up on the release lever at the back, as shown.
- To install a drawer, identify the correct parts and orient the center members so the plastic clips are in the front and at the top. Insert one of the center members into the front of the cor-rect cabinet member (which is permanently attached to the inside of the cabinet) and slide it in, until it stops. Push up on the release lever (located toward the rear and top of the center member) to allow the center member roll the rest of the way into the cabinet member, in the “drawer closed” position. Repeat for the opposite side center member. Pull each center member out a few inches, press down on the rear of each stop clip, and pull forward so the hook on the front of the clip rotates up, into the “unlocked” position. Lift the drawer body into place, resting the drawer members (the channels welded to the sides of the drawers) on the front wheels of the center member, and slide the drawer into the cabinet. Once the drawer goes in all the way and slides smoothly, open it enough to access the stop clips. Lift the back of each clip and push in at the front, so the hook portion snaps into the “locked” position. The drawers are now secured, so they cannot accidentally be lifted out of the cabinet. Check that the drawer is properly aligned, rolls smoothly and the drawer gasket seals firmly.
- If the drawer fronts needs adjustment (once all drawers are installed and closed), loosen the five screws that hold the drawer front to the drawer body. Move the drawer front into position desired and re-tighten all screws.
FIGURE 13: Drawer Slide
INSTALLING DRAWER CAGE
- To convert your cabinet from doors to drawers, you will need a drill with a 1/8” bit, a Phillips bit (or a Phillips-Head screwdriver (or drill/driver with Phillips bit), and a rubber mallet. Take the door off the section you want to convert, by following instruc-tions in the “Removal of Doors” section of this manual. Take the drawers out of the mounting cage, by following instructions in the “Removal of Drawers” section of this manual.
- Position the drawer mounting cage in front of the cabinet open-ing as shown (see Figure 14). Lift the cage above the trim along the bottom of the opening, so it is aligned to go straight into the cabinet. Carefully slide the drawer cage into the unit opening. It is a snug fit and some pressure may be need to be applied at the corners, to clear the breaker around the opening. A rubber mallet can be used to gently tap on the ends of the drawer cage cross mullion, to force the fasteners past the side breakers. The straighter the cage is pushed in, the easier it will be to install. When the cage is in as far as it will go, the notches at the front of the cage should surround the breaker corners at the bottom.
- The face of the drawer cross mullion should be relatively flush with the front face of the cabinet, to provide an even surface for the drawer gaskets to seal properly around the openings.
- The cage should sit relatively flat on the floor and against the back wall step inside the cabinet.
- With the cage properly in place, use the holes along the front sides of the cage assembly as a template to drill (6) 1/8” pilot holes through side breakers and the metal underneath. Drive a sheet metal screw into each of the front mounting holes, secur-ing the front of the cage to the inside of the opening, and tighten them snugly, without stripping the screws or the pilot holes. Drive a sheet metal screw through each of the two slots located at the lower the rear of the cage and into the back wall step of the Cabinet.
- IMPORTANT NOTE: These screws should NOT be tight! The purpose of these screws is to limit the side-to-side movement of the rear of the cage, not to rigidly secure the cage to the cabinet.
- To re-install the drawers into the cabinet, follow the instructions in the “Removal of Drawers” section of this manual. Note that the top drawer slides are longer than the bottom slides.
FIGURE 14: Drawer Cage
INSTALLING OVERSHELF OR DOUBLE-OVERSHELF
IMPORTANT NOTE: Installing an overshelf is a two-per-son job. Due to the weight, size and height of the shelf, do not attempt to mount it alone, as this can cause injury.
To mount an overshelf to your cabinet, a Phillips-head screw-driver (or a screw gun with Phillips bit) is required. Before starting to assemble the overshelf, identify the following parts provided: ¼-20 screws, 10-32 screw, uprights, top shelf, and bottom shelf (for double overshelves only). If applicable, deter-mine the height you want the bottom to be located.
IMPORTANT NOTE: There are three pairs of holes provid-ed in the uprights so the bottom shelf can be installed at a height of 19”, 21”, or 23” above the top of the cabinet. On double overshelves, this height will also determine the distance between the bottom shelf and the top shelf (13”, 15”, or 17”).
- From the back of your cabinet, locate the two holes with thread-ed inserts at each end of the Cabinet. (see Figure 15) Drive a ¼-20 screw into each of the (4) threaded inserts, until the bot-tom of the screw head is about ” away from the threaded insert. Position the uprights at the back of the cabinet. Noting that there are two keyhole slots on one face of each upright, locate the keyholes at the bottom, facing the screws you just installed in the cabinet. Lift the upright and place the large portion of the keyhole slots over the screw heads and then lower it on to the screws. Insert a philips screwdriver through the clearance holes, on the opposite side of the keyhole slots (in the rear of the uprights). Tighten the screws just until the upright is snug against the unit, but leave a little play for alignment. Repeat this procedure for the other upright.
- To install a double overshelf (for single overshelf, skip to the next paragraph) locate the bottom shelf, which has a large hole in each rear corner. With one person holding each end of the shelf, lift it above the top of the uprights and align it so the large holes in the rear of the shelf fit over the uprights. Carefully slide the shelf down, until the small holes on back of the shelf line up with the correct holes in the uprights, depending on the shelf height desired. Attach the shelf to the uprights, using two 10-32 screws on each end. Drive the screws until snug, but do not tighten them completely.
- With one person supporting each end of the top shelf, list it into position above the uprights and lower it down onto them.
- Secure the shelf, using two 10-32 screws on each end, driving them snugly but not tightly. Check the alignment of the shelves and tighten all the screws. Double check that the shelves and uprights are secured rigidly.
FIGURE 15: Overshelf Installation
INSTALLING STACKING COLLAR ADAPTER KIT
All models that are 48” wide or less and have a solid, flat top can be stacked one on top of the other with the use of a heavy duty, stainless steel stacking collar as shown in Figure 16. When stacking a refrigerator and freezer, it is always best to place the freezer model on the bottom for maximum efficiency. The front grill which is attached to the stacking collar body is attached with easily removable thumbscrews and should be removed periodically for cleaning. The front grill should always be clean and clear of debris and never blocked.
To stack your models, the following instructions should be fol-lowed:
- Decide which unit is to be on “top” & “bottom”.
- On “top” unit, remove screws at the bottom of the back cover. In “bottom” unit, remove screws, joggle clips and bumpers aloing the top back of the cabinet.
- Install the legs on the “top” unit and adjust all four bullet feet out (CCW) three full turns. Carefully lift the cabinet and set it on top of the “bottom” unit.
- Install stacking collar as shown in Figure 16, making sure all rear screw hole slots line up on both top and bottom models where screws were removed from in Step 2. If screw hole slots do not line up (left to right) with screw holes then the stacking collar has been mounted upside down. Remove and re-install correctly.
- Adjust the height and level of the “top” cabinet by reaching in through the front opening of the stacking collar and turn ing the bullet feet on the legs in (CW) until the bottom of the cabinet is snug against the stacking collar. Once snug, install the rear screws that were removed in Step 2 and peel off the adhesive tape backing strip around the side flanges of the stacking collar so that both units are bonded together.
- Align the front grill holes with the stacking collar holes and secure both thumbscrews.
FIGURE 16: Stacking Collar
INSTALLING FRONT BREATHER KIT (Skirt and Grill)
IMPORTANT NOTE: You may CAREFULLY lay the cabinet on it’s back, but only FOR A BRIEF PERIOD OF TIME. Caution must be taken to ensure you DO NOT DAMAGE the louvered back panel, refrigeration system compo-nents, or copper tubing located behind the panel. The cabinet must be properly blocked, to allow room to get your hands in to lift without damaging the cabinet or crushing the vents on the back panel. DO NOT PLUG-IN OR OPERATE THE REFRIGERATION SYSTEM FOR AT LEAST THREE (3) HOURS AFTER THE UNIT HAS BEEN RETURNING IT TO AN UPRIGHT POSITION, AS THIS CAN DAMAGE THE COMPRESSOR.
FRONT BREATHER DUCT KIT (3” high)
Position the left hand air duct/skirt (see Figure 17) as shown. Attach the front left caster by inserting threaded end through the slot in the air duct/skirt and screwing it into the threaded hole in the bottom of the cabinet. Do not tighten completely. Repeat for the back left caster. Follow these steps for the right hand air/duct skirt and remaining casters. Position the front grill as shown and attach it to the front edge of the air duct/skirts using the thumbscrews provided. Adjust the position of the air duct/skirts and the front grill as needed. Tighten the thumbscrews and all 4 casters completely. Carefully lift the cabinet upright and check that the grill and casters are secure.
FIGURE 17: Front Breather Duct Kit (3” high)
FRONT BREATHER DIVIDER KIT (2” high)
Position the air divider (see Figure 17A) as shown. Attach with lag bolts and secure secure plate casters as shown.
FIGURE 17A: Front Breather Divider Kit (2’ high)
Your refrigerator or freezer is now front breathing and can be completely enclosed on the sides, back and top. The refrigera-tion system will take in fresh air through one side of the front grill, pull it under the cabinet, through compressor compartment to cool the condenser, back out under the cabinet and exhaust it through the other side of the front grill.
ANY RESTRICTIONS TO THE AIR FLOW THROUGH THE FRONT GRILL OR UNDER THE CABINET CAN DAMAGE THE REFRIGERATION SYSTEM AND WILL VOID ALL WARRANTIES.
MOUNTING CASTER SUPPORT PLATES
- If the standard stem casters on a cabinet are not properly main-tained and tightened, or if the unit is excessively overloaded and moved around, the threaded inserts in the bottom of the cabinet can become stripped, twisted or collapsed. If this occurs and the stem casters cannot be mounted securely, rigid caster sup-port plates can be fitted to provide the strength needed to safely use your cabinet. Each caster support plate assembly is made of heavy gauge galvanized steel, with (2) casters permanently welded to it, for maximum rigidity.
- The plate has a series of holes that will allow you to fasten the plate assembly to the bot-tom of the cabinet with sheet metal screws and bolts. Contact the factory to obtain the correct parts for your model.
- IMPORTANT NOTE: Always wear proper work gloves and use appropriate safety equipment. You may CAREFULLY lay the cabinet on it’s back, but only FOR A BRIEF PERIOD OF TIME. Caution must be taken to ensure you DO NOT DAMAGE the louvered back panel, refrigeration system components, or copper tubing located behind the panel. The cabinet must be properly blocked, to allow room to get your hands in to lift without damaging the cabinet or crushing the vents on the back panel.
- DO NOT PLUG-IN OR OPERATE THE REFRIGERATION SYSTEM FOR AT LEAST THREE (3) HOURS AFTER THE UNIT HAS BEEN RETURNING IT TO AN UPRIGHT POSITION, AS THIS CAN DAMAGE THE COMPRESSOR.
- To install caster support plate assemblies, you will need a 3/4” open end wrench (or a large adjustable wrench), a drill with a 1/8” bit and a Phillips bit (or a Phillips-Head screwdriver) plus work gloves. A 1/2-13 thread tap is also recommended, to repair any damage to the threaded inserts in the cabinet. Unload all product and carefully lay the cabinet on its back. Remove the old stem casters by unscrewing them from the cabinet. If a caster or threaded insert has been stripped or cross-threaded, it may be necessary to use a wrench to loosen the caster.
- Hold one of the support plate assemblies under the cabinet as shown (see Figure 18). Position it so the slotted holes at the end of the plate line up with the threaded inserts in the bottom of the cabinet (where the stem casters were attached). Attach the plate assembly to the cabinet by putting a 1/2” x 1-3/4” long bolts and flat washer through the slot in the support plate and screwing into each of the threaded inserts in the bottom of the cabinet. Snug the bolts down, but do not tighten them completely. If one of the threaded inserts is stripped or damaged, a thread tap should be used to clean the threads.
- Using the small holes in the plate as a template, drill 1/8 pilot holes in the bottom of the cabinet. (Note: drill only until you penetrate the metal bottom of the cabinet. Do not continue to drill into the insulation, or you may damage the cabinet.) Secure the caster support plate assembly to the cabinet with a sheet metal screw in each of the drilled holes. Tighten the 1/2” bolts. Repeat these steps to attach the other plate assembly to the opposite end of the cabinet.
FIGURE 18: Caster Support Plates
Check that both plates are secure and that the casters turn and swivel freely. Carefully lift the cabinet upright and double check that the caster support plates are secure and the cabinet is stable. Wait at least 3 hours before turning the refrigeration system back on, and at least another 30 minutes for the cabinet to come down to temperature and stabilize, before reloading with product.
INSTALLING ELECTRIC CONDENSATE HEATER
The electric condensate heater has a thermal limit switch and power cord attached. To install the heater, remove the screws securing the back cover to the cabinet (see Figure 19) and set the cover aside. Place the vaporizer heater in the drain pan as shown and carefully position the end of the plastic drain tube in the pan. Make sure the tubing is not kinked and the end is locat-ed securely in the pan, so it does not touch the heating element. Plug the power cord from the heater into the receptacle labeled “vaporizer” on the lower back wall of the cabinet. Secure any excess power cord with a wire tie, so it does not fall into the pan or under the cabinet. Reattach the cover to the back of the cabinet.
FIGURE 19: Electric Condensate Heater
REMOTE SET-UP AND INSTALLATION GUIDELINES
- All remote refrigerators and freezers are shipped with an expan-sion valve, thermostat and defrost timer (freezer only), installed from the factory. The installer is responsible for connecting all refrigerant lines, liquid line drier, sight glass, solenoid, head pressure control, hi/low pressure safety, crankcase heater, con-densing unit and any other accessories as well as wiring. The evaporator section has been factory leak checked with helium, however; due to vibration in transit, the entire system must be thoroughly leak checked after installation and prior to start-up.
- The final leak inspection of the entire completed refrigeration system and all of its components as well as start-up and the operation of the refrigeration system is the sole responsibility of the installer.
- The CFC-Free refrigerant used in standard remote and self-con-tained models is R-134a for refrigerators and R-404a for freez-ers. All compressors and systems designed for these refrigerant utilize polyolester oil as their main lubricant, which absorbs moisture from the ambient surroundings extremely fast and in much greater quantity than conventional mineral oils. Since moisture levels greater than 100 PPM will result in system cor-rosion and ultimate failure, it is imperative that the compressor, components and entire system be kept sealed.
- All refrigerant lines and components must be clean, free of burrs and purged with nitrogen prior to and during brazing or soldering connections. Nitrogen purging during braz-ing or soldering will eliminate carbon or foreign matter contamination. Any system restrictions or contamination is the responsibility of the installer.
- Condensing unit or compressor shall not be left open to the atmosphere for more than five (5) minutes.
- No refrigeration component, tubing or fitting shall be left open to the atmosphere for more than ½ hour without being soldered, capped or plugged.
- Each completed refrigeration system shall be purged with 150psi of dry nitrogen for at least six (6) seconds, then pressurized with at least 165psi of nitrogen for pressure check (making sure to energize any solenoid valves to assure access). Leak-check all joints, flare fittings and valves and make sure there is no pressure drop within the system.
- System evacuation is of the utmost importance with NON-CFC refrigerant systems. System must be evacuated to a minimum of 200 microns. In addition, a vacuum decay test is strongly recommended to assure there is not a large pressure differential between the system and the vacuum pump. System must be evacuated from both high and low sides of the system using heavy duty vacuum hoses.
- Each system should be charged with the refrigerant type as specified on the cabinet data tag. This refrigerant type should match the type listed on the condensing unit being used. The refrigerant charge should be held to the mini-mum required for the satisfactory pull down and opera-tion. For an accurate indication of refrigerant charge, the sight glass will show a full column of liquid.
- The superheat reading taken 6” from the compressor suc-tion valve should be 30° +/- 5°. Expansion valve adjust-ment may be necessary to achieve this superheat.
- Installation of the electric condensate heater is also the responsibility of the installer (see “Installing Electric Condensate Heater” under “Optional Accessories”). CAUTION: EXTREME CARE MUST BE USED WHEN ACCESSING THE SYSTEM DURING INSTALLATION. DUE TO THE COMPLEXITY OF REMOTE REFRIGERATION SYSTEMS AND THE POTENTIAL FOR IMPROPER INSTALLATION, ANY RESTRICTIONS, LEAKS, FAILED OR DAMAGED COMPONENTS CAUSED BY CONTAMINANTS ARE NOT THE RESPONSIBILITY OF CONTINENTAL REFRIGERATOR.
WARRANTY
THREE (3) YEAR PARTS AND LABOR WARRANTY
- Continental Refrigerator warrants to the original purchaser of every new Continental Refrigerator self contained unit, including all parts thereof, that such equipment is free from defects in material and workmanship, under normal use, proper maintenance and service as indicated by Continental Refrigerator installation and operation manual, for a period of three (3) years from the date of installation, or thirty-nine (39) months from the date of shipment from the manufacturer, whichever comes first. Normal wear type parts, such as light bulbs/lamps and gaskets are not covered by this warranty. For the purpose of this warranty, the original purchaser shall be deemed to mean the individual or company for whom the product was originally installed.
- Continental Refrigerators obligation under this warranty shall be limited to repairing or replacing, including labor, any part of such product which proves thus defective. Continental Refrigerator reserves the right to examine any product claimed to be defective. The labor warranty shall be for self-contained units only and for standard straight time, which is defined as normal service rate time, for service performed during normal working hours. Any service requested outside of a servicer’s normal working hours will be covered under this warranty for the normal rate and any additional overtime rate will be the responsibility of the equipment purchaser.
- Any part determined to be defective in the product should be returned to the company within thirty (30) days under the terms of this warranty and must be accompanied by the cabinet model, serial number, and identified with a return material authorization number, issued by the manufacturer.
Special installation/applications, including remote locations, are limited in coverage by this warranty. Any installation that requires extra work, and/or travel, to gain access to the unit for service is the sole responsibility of the equipment purchaser. - Improper operation resulting from factors, including but not limited to, improper or negligent cleaning and maintenance, low voltage conditions, inadequate wiring, and accidental damage are not manufacturing defects and are strictly the responsibility of the purchaser.
- Condenser coils must be cleaned at regular intervals. Failure to do so can cause compressor malfunction and will void warranty. Continental Refrigerator recommends a minimum monthly cleaning, as stated in the installation and operation manual.
ADDITIONAL TWO (2) YEAR COMPRESSOR PART WARRANTY
- In addition to the warranty set forth above, Continental Refrigerator warrants the hermetically/semi-hermetically sealed compressor (part only) for an additional two (2) years beyond the first three (3) year warranty period; not to exceed sixty-three (63) months from the date of shipment from Continental Refrigerator, provided upon receipt of the compressor, manufacturer examination shows the sealed compressor to be defective. This extended warranty does not cover freight for the replacement compressor or freight for return of the failed compressor. Also, this extended compressor-part only warranty does not apply to any electrical controls, condenser, evaporator, fan motors, overload switch, starting relay, capacitors, temperature control, filter/drier, accumulator, refrigeration tubing, wiring harness, labor charges, or supplies which are covered by the standard warranty above.
- THE FOREGOING WARRANTIES ARE EXPRESSLY GIVEN IN LIEU OF ALL OTHER WARRANTIES, EXPRESS, IMPLIED, OR STATUTORY, INCLUDING THE IMPLIED WARRANTIES OF MERCHANTABILITY AND FITNESS FOR A PARTICULAR PURPOSE, WHICH ARE HEREBY DISCLAIMED, ALONG WITH ALL OTHER OBLIGATIONS OR LIABILITIES ON OUR PART. AND WE NEITHER ASSUME, NOR AUTHORIZE ANY OTHER PERSON TO ASSUME FOR US, ANY OBLIGATION OR LIABILITY IN CONNEC-TION WITH THE SALE OF SAID REFRIGERATION UNITS OR ANY PARTS THEREOF.
- This warranty shall not be assignable and shall be honored only in so far as the original purchaser.
- This warranty does not apply outside the limits of the United States of America and Canada, nor does it apply to any part that has been subject to misuse, neglect, alteration, accident, or to any damage caused by transportation, flood, fire, acts of terrorism, or acts of God.
- IN NO EVENT SHALL CONTINENTAL REFRIGERATOR BE LIABLE FOR CONSEQUENTIAL, SPECIAL OR PUNITIVE DAMAGES. THE REMEDIES OF PURCHASER SET FORTH HEREIN ARE EXCLUSIVE AND THE TOTAL LIABILITY OF CONTINENTAL REFRIGERATOR, WHETHER BASED ON CONTRACT, WARRANTY, NEGLIGENCE, IN-DEMNIFICATION, STRICT LIABILITY, TORT, OR OTHERWISE, SHALL NOT EXCEED THE PURCHASE PRICE OF THE COMPONENT UPON WHICH LIABILITY IS BASED. CONTINENTAL REFRIGERATOR SHALL HAVE NO OBLIGATION OR LIABILITY FOR CONSEQUENTIAL OR SPECIAL DAMAGES, INCLUDING BUT NOT LIMITED TO INDIRECT, PUNITIVE DAMAGES, LOSS OF USE, LOSS OF PRODUCT, DOWNTIME OR LOST PROFITS, ARISING OUT OR, RELATED TO OR CONNECTED IN ANY WAY WITH THE PRODUCT OR ITS USE.
- A Division of National Refrigeration & Air Conditioning Products, Inc.
- 539 Dunksferry Road
- Bensalem, PA 19020-5908
- P 215-244-1400
- 1-800-523-7138
- F 215-244-9579
- www.continentalrefrigerator.com
TROUBLESHOOTING GUIDE
| PROBLEM | PROBABLE CAUSE | CORRECTION |
| Condensing unit will not start – no hum. | 1. Line disconnected, switch open. 2. Fuse removed or blown. 3. Overload protector blown. 4. Control “Off” due to cold location. 5. Control stuck in open position. 6. Wiring improper or loose. | 1. Close start or disconnect switch. 2. Replace Fuse. 3. Determine reason and correct/replace. 4. Relocate control. 5. Repair or replace control. 6. Check wiring against diagram. |
| Condensing unit will not start – hums but trips on overload protector. | 1. Improperly wired. 2. Low voltage to unit. 3. Starting capacitor defective. 4. Relay failing to close. 5. Compressor motor has a shorted or open winding. 6. Internal mechanical trouble in compressor. 7. Insufficient air supply. | 1. Check wiring against diagram. 2. Determine reason and correct. 3. Determine reason and replace. 4. Determine reason and replace. 5. Replace compressor. 6. Replace compressor. 7. Clear condenser and allow compressor to cool down. |
| Condensing unit starts and runs, but short cycles on overload protector. | 1. Additional current passing through overload protector. 2. Low voltage unit. 3. Overload protector defective. 4. Run capacitor defective. 5. Excessive discharge pressure. 6. Excessive suction pressure. 7. Insufficient air supply. | 1. Check wire diagram. Check for added components connected to wrong side of overload protector. 2. Determine reason and correct. 3. Check current, replace protector. 4. Determine reason and replace. 5. Check ventilation, restrictions in cooling medium or refrig. system. 6. Check for misapplication. 7. Clear condenser and allow compressor to cool down. |
| Condensing unit starts, but fails to switch off of “start” winding. | 1. Improperly wired. 2. Low voltage to unit. 3. Relay failing to open. 4. Run capacitor defective. 5. Excessively high discharge pressure. 6. Compressor motor has a shorted or open winding. 7. Internal mechanical trouble in compressor. | 1. Check wiring against diagram. 2. Determine reason and correct. 3. Determine reason and replace. 4. Determine reason and replace. 5. Check discharge shut-off valve, possible overcharge. 6. Replace compressor. 7. Replace compressor. |
| Condensing unit runs, but short cycles on: | 1. Overload protector. 2. Thermostat. 3. High pressure cut-out due to: (a) Insufficient air supply. (b) Overcharge. (c) Air in system. 4. Low pressure cut-out due to: (a) Valve leak. (b) Undercharge. (c) Restriction in expansion device. | 1. See Problem 3 2. Differential must be widened. 3. (a) Check air supply to condenser. (b) Evacuate and re-charge. (c) Evacuate and re-charge. 4. (a) Replace, evecuate and re-charge. (b) Evacuate and re-charge. (c) Replace expansion device. |
| Condensing unit runs, but for prolonged peri- ods or continuous. | 1. Shortage of refrigerant. 2. Control contacts stuck closed. 3. Excessive heat load placed into cabinet. 4. Prolonged or too frequent door openings. 5. Evaporator coil iced. 6. Restriction in refrigeration system. 7. Dirty condenser. 8. Filter drier clogged. | 1. Fix leak, evacuate and re-charge. 2. Clean contacts or replace control. 3. Allow unit sufficient time for removal of latent heat. 4. Plan or organize schedule to correct condition. 5. Defrost evaporator coil. 6. Determine location and remove. 7. Clean condenser coil. 8. Replace, evacuate and re-charge. |
| PROBLEM | PROBABLE CAUSE | CORRECTION |
| Start capacitor open, shorted or blown. | 1. Relay contact not opening properly. 2. Prolonged operation on start cycle: (a) Low voltage to unit. (b) Improper relay. (c) Starting load too high. 3. Excessive short cycling. 4. Improper capacitor. | 1. Clean contacts or replace relay. 2. (a) Determine reason and correct. (b) Replace with correct relay. (c) Correct by using pump down. 3. Determine reason for short cycle, see Problem 5 and correct. 4. Determine correct size and replace. |
| Run capacitor open, shorted or blown. | 1. Improper capacitor. 2. Excessively high line voltage, over 110% of rated maximum. | 1. Check size and replace. 2. Determine reason and correct. |
| Relay defective or blown out. | 1. Incorrect Relay. 2. Incorrect mounting angle. 3. Voltage too low or too high. 4. Excessive short cycling. 5. Loose or vibrating mounting position. 6. Incorrect run capacitor. 7. Loose wiring on relay or overload. | 1. Check relay and replace. 2. Remount relay in correct position. 3. Determine reason and correct. 4. Determine reason and correct (see Problem 5). 5. Remount rigidly. 6. Replace with proper capacitor. 7. Tighten all wiring screws. |
| Product zone temperature too high. | 1. Control setting too high. 2. Inadequate air circulation. 3. Dirty condenser. | 1. Adjust T-stat. 2. Rearrange product load to improve air circulation. 3. Clean condenser coil. |
| Suction line frosted or sweating. | 1. Overcharge of refrigerant. 2. Evaporator fan not running. 3. Expansion valve stuck open. 4. Expansion valve superheat too low. | 1. Evacuate and re-charge. 2. Determine reason and correct. 3. Clean valve, evacuate and re-charge. 4. Adjust superheat to required setting. |
| Liquid line frosted, cold or sweating. | 1. Restriction in drier strainer. 2. Liquid line service valve partially closed. | 1. Replace drier, evacuate and re-charge. 2. Open valve fully or replace if necessary. |
| Noisy condensing unit. | 1. Loose parts or mounting. 2. Tubing rattle or vibration. 3. Bent fan blade causing excessive vibration. 4. Fan bearings worn. | 1. Tighten all mounting parts and shroud cover. 2. Reform tubing to be free of contact. 3. Replace fan blade. 4. Replace fan motor. |
| Thermometer reads different than actual temperature. | 1. Calibration. 2. Defective. | 1. Consult Operations Manual and calibrate. 2. Replace. |
| Water leak inside unit. | 1. Condensate drain pan not installed properly. 2. Unit not level. 3. Drain pan misaligned. 4. Defective drain pan. | 1. Consult Operations Manual for install instructions. 2. Make sure unit is level or pitched back slightly. 3. Make sure drain pan is aligned properly. 4. Replace. |
| Doors misaligned. | 1. Shifted during shipping. | 1. Refer to Operation Manual for hinge adjustment. |
WORKTOP/UNDERCOUNTER REFRIGERATOR 115/60/1 WD-R5 WIRING DIAGRAM
WORKTOP/UNDERCOUNTER REFRIGERATOR 115/60/1 W/ SPLIT ELECTRONIC CONTROL WD-R5-EC-SP WIRING DIAGRAM
WORKTOP/UNDERCOUNTER FREEZER 115/60/1 WD-F5 WIRING DIAGRAM
WORKTOP/UNDERCOUNTER FREEZER 115/60/1 W/ SPLIT ELECTRONIC CONTROL WD-F5-EC-SP WIRING DIAGRAM
- A Division of National Refrigeration & Air Conditioning Products, Inc. 539 Dunksferry Road • Bensalem, PA 19020-5908
- P 215-244-1400
- 1-800-523-7138
- F 215-244-9579
- www.continentalrefrigerator.com
- IM-WT-SW-U-Yellow-50185-20220412
- Please fill in the following information for your NEW unit, carefully read the instructions in this manual and file it for future reference.
- MODEL NO.—————————————————-
- SERIAL NO.——————————————————-
- PURCHASED FROM———————————————–
- INSTALL DATE—————————————————–
- 1-800-523-7138
- Continental Refrigerator
- A Division of National Refrigeration & Air Conditioning Products, Inc. 539 Dunksferry Road
- Bensalem, PA 19020-5908
- P 215-244-1400
- F 215-244-9579
- www.continentalrefrigerator.com




























