Curtis GEM5XSIFT IntelliFresh Single Satellite Warmer Server Stand

IMPORTANT SAFEGUARDS
Symbols
This is the safety alert symbol. It is used to alert you to potential physical injury hazards. Obey all safety messages that follow this symbol to avoid possible injury or death.
DANGER – Indicates a hazardous situation which, if not avoided, will result in death or serious injury.
WARNING – Indicates a hazardous situation which, if not avoided, could result in death or serious injury.
CAUTION – Indicates a hazardous situation which, if not avoided, could result in minor or moderate injury.
NOTICE – Indicates a situation which, if not avoided, could result in property damage.
IMPORTANT – Provides information and tips for proper operation.
SANITATION REQUIREMENTS
Important Safeguards/Conventions
- Make sure that this unit is connected to a grounded electrical circuit when in use.
- This unit is designed for commercial use. Any service other than cleaning and preventive maintenance should be performed by an authorized Wilbur Curtis service technician.
- serviceable parts inside.
- Keep hands, arms and other items away from hot surfaces during operation.
- This appliance is not intended for use by persons (including children) with reduced physical, sensory or mental capabilities or lack of experience and knowledge, unless they have been given supervision or instruction concerning use of the appliance by a person responsible for their safety. Children should be supervised to ensure that they do not play with the appliance.
- Avoid spillage onto the power (mains) connector.
CE Requirements
- This appliance must be installed in locations where it can be overseen by trained personnel.
- This appliance is not suitable for outdoor use.
- This appliance must not be cleaned by water jet.
- This appliance can be used by persons aged from 18 years and above if they have been given supervision or instruction concerning use of the appliance in a safe way and if they understand the hazards involved.
- Keep the appliance and its cord out of reach of children aged less than 18 years.
- Appliances can be used by persons 18 years and above with reduced physical, sensory or mental capabilities or lack of experience and knowledge if they have been given supervision or instruction concerning use of the appliance in a safe way and understand the hazards involved.
- children under the age of 18 years should be supervised to ensure they do not play with the appliance.
- If the power cord is ever damaged, it must be replaced by the manufacturer or authorized service personnel with a special cord available from the manufacturer or its authorized service personnel in order to avoid a hazard.
- machine must not be immersed for cleaning.
- Cleaning and user maintenance shall not be made by children unless they are older than 18 years and supervised.
- This appliance is intended to be used in household and similar applications such as: bed and breakfast type environments.
- This appliance not intended to be used in applications such as: farm houses
European Regulations and Directives
- This appliance meets the requirements of all applicable regulations in Regulation 1907/2006/EU (REACH), Directive 2011/65/EU (ROHS) and its amendment (EU) 2015/863, Directive 2012/19/EU (WEEE), Directive 2014/30/EU (EMC), Directive 2006/42/EC (Annex I – IX) and Directive 2014/35/EU (LVD).
- The declaration of conformity is included with this appliance. The appliance bears the CE mark.
- This appliance is subject to the directive on waste electrical and electronic equipment (WEEE/ EU directive). Do not dispose of this appliance in domestic waste. Contact your local governing authorities for information on disposal requirements.
- Any modi cations to equipment that are not approved by the Wilbur Curtis Company will render this declaration invalid.
CLEANING INSTRUCTIONS
WARNING: HOT SURFACES – To avoid injury, allow the satellite stand to cool before cleaning.
NOTICE – Do not use cleaning liquids, compounds or powders containing chlorine (bleach) or corrosives.
USE OF THESE PRODUCTS WILL VOID THE WARRANTY
WARNING:
DO NOT immerse the satellite stand in water or any other liquid. Do not allow liquids to get into the Intellifresh® connector during cleaning. To avoid an electric shock hazard, disconnect power.
- Disconnect the power cord or turn off power to the circuit supplying power at the circuit breaker panel.
- Remove the satellite(s). Wipe exterior surfaces with a damp cloth to remove spills and debris. Dry with a soft clean cloth.
- Once dry, reconnect power.
ROUGH-IN DRAWINGS
GEM5XSIFT – Intellifresh® Satellite Stand
GEM5XTIFT – Twin Intellifresh® Satellite Stand

ILLUSTRATED PARTS LIST
GEM5XSIFT[30]/GEM5XTIFT[30] – Exploded View

Parts List
| ITEM # | PART # | DESCRIPTION |
| 1 | WC-38535 | LABEL, SLIDE CONTAINER TO CONTACT BACK PANEL GEMTIF/GEMSIF |
| 2 | WC-38504 | LABEL, WARNING SHOCK HAZARD INTELLI-FRESH |
| 3 | WC-571K-R | KIT, IF CONNECTOR- RIGHT |
| 4 | WC-61307 | HOLDER, CONNECTOR FEMALE GEMTIF |
| 5A1 | WC-390465 | LABEL, FRONT GEM5XSIFT CURTIS |
| 5B2 | WC-390466 | LABEL, FRONT GEM5XTIFT CURTIS |
| 6 | WC-13425-101 | ADAPTER ASSY, IF CONNECTORS (NOT SHOWN) |
| 7Aa | WC-165 | SWITCH, WARMER (RED) 120V NEON SPST 20A/250V HI TEMP CAFE/AW |
| 7Bb | WC-166 | SWITCH, WARMER (RED) 250V NEON SPST 20A/250V HI TEMP CAFE/AW |
| 8Aa | WC-1408 | CORD GRIP, 7/8” O.D. |
| 8Bb | WC-1522 | SOCKET, POWER INLET 16A/250V SNAP-IN |
| ITEM # | PART # | DESCRIPTION |
| 9A1,a | WC-1386-102 | HARNESS, ASSY GEM5IF |
| 9B2,a | WC-13435 | HARNESS ASSY w/WC-1200 CORD GEM5IFT |
| 9C1,b | WC-13458-104 | HARNESS ASSY COMPLETE GEM5XSIFT30 |
| 9D2,b | WC-13458-105 | HARNESS ASSY COMPLETE GEM5XTIFT30 |
| 9E1,c | WC-13458 | HARNESS ASSY COMPLETE GEM5IF30 |
| 9F2,c | WC-13458-101 | HARNESS ASSY COMPLETE GEM5IFT30 |
| 10Aa | WC-1200 | CORD, 14/3 SJTO 6’ BLK W/PLUG |
| 10Bc | WC-1231 | CORD, 450/750V 3×2.5 mm² 90ºC 36A H07RN-F |
| 10C | WC-1256 | CORD, 1.5mm² X 3 W/GB-2099 & C19 CHINA |
| 11 | WC-3533 | BUMPER, RUBBER 1” DIA (FOR USE WITH OLDER UNITS THAT HAVE LEGS WITH PLASTIC BASE) |
| 12A | WC-3540 | LEG, 1-1/2” NON-ADJUSTABLE 3/8-16 THRD 1-5/8” DIA. |
| 12B | WC-3542 | LEG, 3-1/4” NON-ADJUSTABLE 3/8-16 THRD 1-5/8” DIA. |
| 13 | WC-38631 | LABEL, USE ONLY GEM3XIFT |
| 14 | WC-38149 | LABEL, UNIVERSAL WARNING (NOT SHOWN) |
| 15b,c | WC-596K | KIT, NOISE FILTER EMI 250V/30A 1PH |
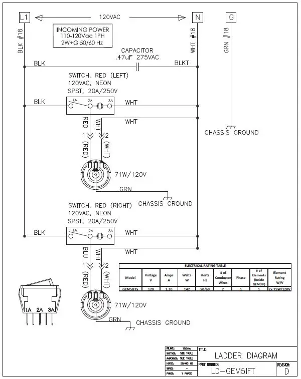
ELECTRICAL SCHEMATICS
GEM5IF, GEM5XSIFT

GEM5IFT, GEM5XTIFT

GEM5XSIFT30

GEM5XTIFT30





















