Mircom TX3-TOUCH-S15-C-D Series Telephone

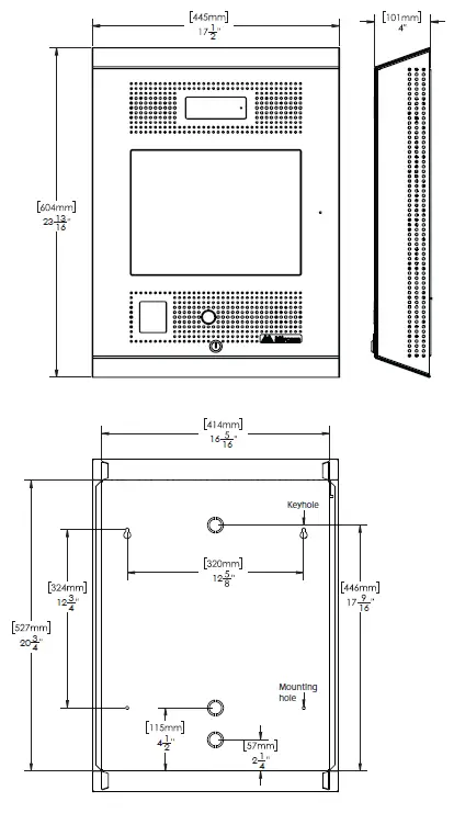
Dimensions

Mount the Enclosure
The enclosure mounts on the wall. Mount the enclosure right-side up (the Mircom logo on the door is in the lower right corner).
You need:
4 fasteners are appropriate for the wall that you are mounting the enclosure on.
- Find a suitable location for the enclosure.
- Mark the back mounting locations of the two top screws. Ensure that at least one screw is over a wall stud.
- Place the fasteners halfway into the wall in the two top keyhole locations and wall stud.
- Place the enclosure onto the fasteners, then lower it so that the fasteners fi t in the narrow part of the keyholes.
- Screw the other fasteners into the remaining holes.
- Tighten all fasteners into place.
Installation Prerequisites
- Verify that the building telephone infrastructure is operational. When wiring an NSL installation it may be necessary to check each resident’s line.
- Ensure there is a provision for a ground circuit. The Telephone Access System assembly must be grounded by a qualified electrician. An improperly grounded unit can result in equipment malfunction and void the warranty.
- Use the latest Telephone Access System controller firmware. Mircom periodically updates panel firmware and Confi gurator Software to add features and correct any minor inconsistencies. For information about the latest firmware or software visit the ‘Manuals and Downloads’ section of the Mircom website at www.mircom.com.

Warning:
Turn the power off before wiring.
Install all power supplies outside the enclosure.
Wiring Requirements
Unless specified otherwise, all wiring is a maximum length of 1000 ft (304.8 m).
- RS-485: Maximum total length: 4000 ft (1219.2 m) Use twisted shielded pair.
- Door Strike: The door strike power supply depends on the door strike power requirements.
Maximum Power Supply Wire Distances
AC Door Strike or Maglock 18 AWG

- For a door strike: connect the jumper wire to the top pin of jumper JW8 (normally open).
- For a maglock: connect the jumper wire to the bottom pin of jumper JW8 (normally closed).
DC Door Strike (Output 1) 18 AWG

The maximum supply for the AC or DC Power Supply for Door Strike must not exceed:
- 28 VAC / 1 A max
- 30 VDC / 1 A max

Alternative Wiring for Dry Contact
Auxiliary Door (Output 2) 18 AWG
Outputs 2-4
DC Door Strike (Output 1) 18 AWG

The maximum supply for the AC or DC Power Supply for Door Strike must not exceed:
- 28 VAC / 1 A max
- 30 VDC / 1 A max
Alternative Wiring for Dry Contact
DIP Switch Settings for RS-485 Address

Postal Lock (Input 1) Fire Alarm Override (Input 2) Door Contact (Input 3) 22 AWG

Phone Lines

Non-configurable PBX systems are not supported. For more information, contact Mircom technical support at 1- 888-647-2665.
Camera Supply
Note: Do not use for any other purpose
RS-485
Maximum total length: 4000 ft (1219.2 m) for 22 AWG Use twisted shielded pair. See LT-996 for complete details.
Ground and Power
Mount the TX3-PS24-5A 24 VDC, 156 W Power Supply

To surface mount the power supply enclosure: You need 4 fasteners appropriate for the wall that you are mounting the enclosure on.
- Find a suitable location for the power supply enclosure, such as over a wall stud.
- Using the enclosure as a template, mark the two top mounting hole locations. Ensure that at least one side is over a wall stud.
- Remove the enclosure and place two wall fasteners halfway into the marked hole locations.
- Place the enclosure onto the fasteners and lower it so that the fasteners fi t in the narrow part of the keyholes.
- Screw the other two fasteners into the two remaining holes.
- Tighten all four fasteners into place.
Note:
The enclosure can also be mounted directly onto the drywall using anchors.
Connect the Power
- Set the voltage selectable switch on the power supply to the appropriate voltage. The voltage selectable switch can be set to either 115 V or 230 V.
- Connect the load power supply wires to the Touch Screen terminal screws as shown in step 10.
- Connect the other end of the load power supply wires the Load terminals.
- Connect the building power supply wires to the Line terminals as shown below.
- Turn the power on by pressing the power button.
To building
Connect the UPS
Follow the manufacturer’s instructions included with TX3-TOUCH-UPS-KIT. See the Mircom document LT-6714, included with TX3-TOUCH-UPS-KIT, for instructions on:
- Connecting the USB cable to the TX3 Touch.
- Installing the APC PowerChute Personal Edition Software (only on existing TX3 Touch installations).
- Connecting the power cable from the TX3-PS24-5A power supply to the uninterruptible power supply.
WARNING
To ensure the security of occupants, change the level 3 passcode from its default setting. See LT-995 on mircom.com for details.























