VIESSMANN WAGO BACnet/IP GATEWAY

Safety
Safety, Installation and Warranty Requirements
Please ensure that these instructions are read and understood before commencing installation. Failure to comply with the instructions listed below and details printed in this manual can cause product/property damage, severe personal injury, and/or loss of life. Ensure all requirements below are understood and fulfilled (including detailed information found in manual subsections).
- Product documentation
Read all applicable documentation before commencing installation. Store documentation near boiler in a readily accessible location for reference in the future by service personnel.- For a listing of applicable literature,please see section entitled “Important Regulatory and Safety Requirements”.
- Licensed professional heating contractor
The installation, adjustment, service and maintenance of this equipment must be performed by a licensed professional heating contractor.- Please see section entitled Safety and“Important Regulatory and Installation Requirements”.
- Advice to owner
Once the installation work is complete, the heating contractor must familiarize the system operator/ ultimate owner with all equipment, as well as safety precautions/requirements, shutdown procedure, and the need for professional service annually before the heating season begins. - Warranty
Information contained in this and related product documentation must be read and followed. Failure to do so renders the warranty null and void.
General Information
Important Regulatory and Installation Requirements
Approvals
Viessmann boilers, burners and controls are approved for sale in North America by CSA International. Codes
The installation of this unit shall be in accordance with local codes. In the absence of local codes, use:
- CSA C22.1 Part 1 and/or local codes in Canada
- National Electrical Code ANSI/NFPA 70 in the U.S.
Always use latest editions of codes.
The heating contractor must comply with the Standard for Controls and Safety Devices for Automatically Fired Boilers, ANSI/ASME CSD-1 where required by the authority having jurisdiction.
Working on the equipment
The installation, adjustment, service, and maintenance of this product must be done by a licensed professional heating contractor who is qualified and experienced in the installation, service, and maintenance of hot water boilers.
There are no user serviceable parts on the boiler, burner,or control.
Power supply
Install power supply in accordance with the regulations of the authorities having jurisdiction or, in absence of such requirements, in accordance with National Codes.
Viessmann recommends the installation of a disconnect switch to the 120V power supply outside of the boiler room.
Ensure main power supply to equipment, the heating system, and all external controls have been deactivated.
Close main oil or gas supply valve. Take precautions in both instances to avoid accidental activation of power during service work.
- Please carefully read this manual prior to attempting installation. Any warranty is null and void if these instructions are not followed.
For information regarding other Viessmann System
Technology componentry, please reference documentation of the respective product.
We offer frequent installation and service seminars to familiarize our partners with our products. Please inquire. - The completeness and functionality of field supplied electrical controls and components must be verified by the heating contractor. These include low water cut-offs, flow switches (if used), staging controls, pumps, motorized valves, air vents, thermostats, etc.
WARNING
Turn off electric power supply before servicing. Contact with live electric components can cause shock or loss of life.
About these Installation Instructions
Take note of all symbols and notations intended to draw attention to potential hazards or important product information.
WARNING
Warnings draw your attention to the presence of potential hazards or important product information.
CAUTION
Cautions draw your attention to the presence of potential hazards or important product information.
IMPORTANT
- Indicates an imminently hazardous situation which,if not avoided, could result in death, serious injury or substantial product/property damage.
- Indicates an imminently hazardous situation which, if not avoided, may result in minor injury or product/property damage.
- Helpful hints for installation, operation or maintenance which pertain to the product.
- This symbol indicates to note additional information
- This symbol indicates that other instructions must be referenced.
Installation
Intended Use
The gateway is only intended to be installed and operated in conjunction with Viessmann control units, with due attention paid to the associated installation, service and operating instructions. The gateway may only be used in systems with supported Viessmann heat and power generators.
The gateway can only be used with the user and communication interfaces defined in the product documentation for the following purposes:
- To monitor systems
- To operate systems
- To optimize systems
With regard to the communication interfaces, ensure on site that the system requirements specified in the product documentation are met at all times for every transfer medium employed. Only use the specified components for the power supply (e.g. power supply units).
Intended use presupposes that a fixed installation in conjunction with permissible, system-specific components has been carried out.
Commercial or industrial use for a purpose other than the monitoring, operation and optimization of supported, approved systems shall be deemed inappropriate. Incorrect usage or operation of the appliance (e.g. the appliance being opened by the system user) is prohibited and will result in an exclusion of liability. Incorrect usage also occurs if the components in the Viessmann system are modified from their intended function.
Product Information
The WAGO BACnet/IP gateway is used to connect Viessmann control units to BACnet systems.
For supported devices and other valid product documentation, see www.automation-gateway.info
Functions
The system user can use the following functions via the gateway when connected to a BACnet system:
- Transferring heating system operating states
- Setting heating system parameters
- Relaying fault and maintenance messages
Spare Parts Lists
Information about spare parts can be found at www.viessmann.com/etapp or in the Viessmann spare part app.
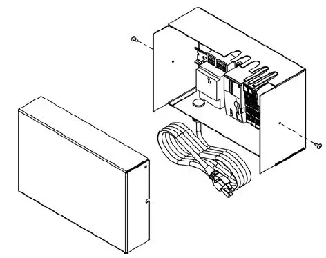
Mounting the Gateway
- Loosen the retaining screws from the extension kit enclosure (do not remove).
- Remove cover and set aside.

- Mount the extension module enclosure to the wall using the appropriate hardware.

Preparing for Installation
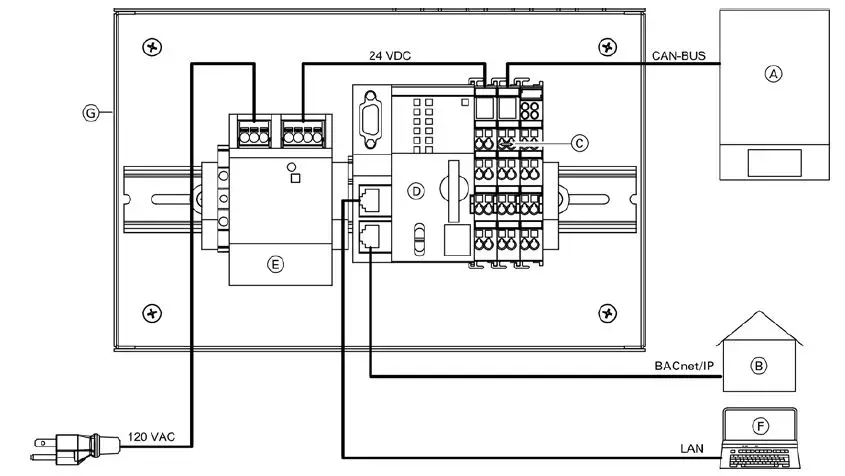
WAGO BACnet gateway system overview

Legend
- A Viessmann boiler
- B Building management system
- C Terminator 120
- D Gateway
- E Power supply unit
- F Laptop with web browser and WAGO Web-Visu
- G Module enclosure
Process Overview
| Step | Responsibility | Page | |
| 1 | Install the module. | Contractor | 6 |
| 2 | Establish the CAN bus connection. | Contractor | 12 |
| 3 | Connect the plug-in attachment. | Contractor | 14 |
| 4 | Establish the connection to the BACnet. | IT expert/system integrator | 15 |
| 5 | Power supply | Electrician | 17 |
| 6 | Commission the gateway. | IT expert/system integrator | 18 |
Installing the Module
IMPORTANT
Incorrect ambient conditions and installation locations may impair data transfer and cause damage to the gateway.
Ambient conditions during operation
- Permissible ambient temperature:
32 to 102°F (0 to 40°C) - Permissible relative humidity:
– 32 to 102°F (0 to 39°C): ≤ 95%
– ≥ 104°F (40°C): ≤ 50% - No direct sunlight
IMPORTANT
Operation by unauthorized persons may result in damage to the system. Access to the gateway must only be possible for authorized specialists with a key or tool.
Overview of connecting cables
| Connecting cables | Length |
| Accessories: CAN bus cable | 23 ft. (7 m) |
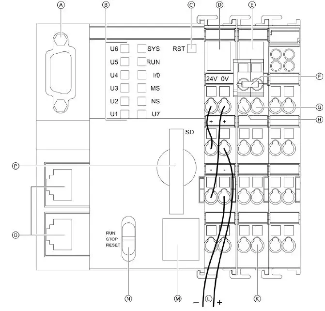
Connections and Operating Elements
WAGO BACnet/IP gateway

Legend
- A Serial interface
- B LED status indicators
- C Reset button RST
- D Status LED for supply voltage
- E Status LED for CAN bus interface
- F Plug-in attachment with terminator: See page 14 G CAN low, for looping through the CAN bus
- H CAN high, for looping through the CAN bus
- K CAN bus shield
- L 24VDC supply voltage connection
- M Do not open!
- N Operating mode switch
RUN Standard mode
Factory setting: Do not adjust! STOP Only for update process;
see WAGO commissioning manual. RESET Do not adjust! - O Service interface: LAN connection for connection to PC/laptop or BACnet/IP connection
- P Memory card slot
LED indicators
| LED | Status | Meaning | Measure |
| User LED U1 | Green | The connection to the boiler is active. | — |
| Red | The CAN bus interface has the status “Bus Off”: Short circuit or other serious fault | H Check CAN bus connection: Plug, cable, terminator H Check whether boiler is switched on. H Check installation and connections of gateway and power supply unit. H If the fault cannot be rectified, contact Viessmann Technical Service. | |
| Other | Fault | Contact Viessmann Technical Service. |
Power supply unit

Legend
A INPUT 120VAC, 60 Hz
B OUTPUT 24VDC, 1.3A
ConnectionsConnecting and Releasing Cores
Gateway

Example: BACnet/IP gateway
- Insert a small flat head screwdriver into the opening direcly above the wire..
- Tilt the handle of the screwdriver up.
- Pull the wire straight out.
Power supply unit

- Using a small screwdriver push in the orange button directly above the wire.
- Pull the wire straight out.
Establishing the CAN Bus Connection
- The Viessmann CAN bus is designed for “line” bus topology with a terminator at both ends (accessories).
- With CAN bus, the transmission quality and the cable lengths depend on the electrical properties of the cable:
- Only use cable types listed in the following table.
- Only use one cable type within a CAN bus.
Recommended cable type (on site):
| CAN bus cable | In line with ISO 11898-2, twisted pair cable, shielded |
| H Cable cross-section | 0.34 to 0.6 mm2 (22 to 18 AWG) |
| H Characteristic impedance | 95 to 140 Ω |
| H Max. length | 650 ft. (200 m) |
Alternative cable types (on site):
| CAN bus cable H Max. length | 2-core, CAT5, shielded 165 ft. (50 m) |
| CAN bus cable H Max. length | 2-core, CAT7, shielded 650 ft. (200 m) |

Legend
A CAN bus shield
B Cable for lA for controlling the boiler (standard delivery of the gateway)
Installation and service instructions for boiler control unit
Connecting the Plug-in Attachment

Legend
A Plug-in attachment with terminator (standard delivery)
WAGO BACnet/IP gateway
The plug-in attachment (standard delivery) must be plugged in.
Do not connect the plug-in attachment until the CAN bus cable has been connected.
If the gateway is at the beginning or end of the CAN bus:
If the gateway is not at the beginning or end of the CAN bus:
Plug in the plug-in attachment without the terminator. Use the plug-in attachment for looping through the CAN bus.

Legend
A Plug-in attachment (standard delivery)
B Terminator
Establishing the Connection to the BACnet/IP Gateway
The connection to the network must be established by the system integrator.

Legend
A Connect BACnet/IP via RJ45 interface
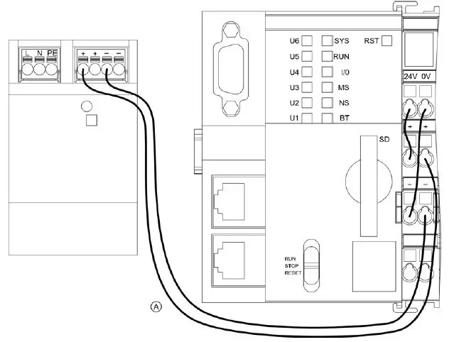
Connecting the Gateway to the Power Supply Unit
Connecting cores in the power supply unit.

Legend
A Cable cores between gateway and power supply unit (standard delivery)
The WAGO gateway is supplied in the encloser with the power supply unit prewired to the gateway.
Power Supply
General information
The WAGO gateway comes complete with a 6 ft. (2 m) power cord with convience plug for simplified installation.
WARNING
The control must be grounded.
Ensure that ‘L’, ‘N’ and ‘G’ are not interchanged.
WARNING
Incorrectly executed electrical installations can lead to injuries from electrical current and result in appliance damage.
IMPORTANT
Electrical installations must comply with the latest edition of:
- In the U.S.A., the National Electrical Code (NEC), ANSI/NFPA 70 and any other state, local codes and/or regulations.
- In Canada, the Canadian Electrical Code (CEC),CSA C22.1 Part 1 and any other province, territory, local codes and/or regulations.

Commissioning the Gateway
Commissioning must be carried out by the IT expert or system integrator.
- Switch on the boiler.
- Switch on the power supply for the gateway.
- Check the status of the LED for standard mode after switching on: See the following table.
If the LED indicators do not match the table, check the connections: See overview on page 8.LED indicators Status of the LED for standard mode SYS Green RUN Green I/O Green MS OFF NS OFF U1 Green U2 – U6 Off BT Green Note: If the LED lights up red or yellow, a BACnet-specific error is present. Clarification with system integrator is required
- For further commissioning steps, see the “WAGO BACnet automation gateway commissioning manual” at www.automation-gateway.info
Dismounting the Terminals
If the gateway or power supply unit need to be dismounted, e.g. because the device is faulty, proceed as shown in the following diagrams.

Dismounting the Gateway
Dismounting the controller

Connecting the Power Supply Uni

Specifications
Gateway
WAGO BACnet/IP gateway
| Power supply | 24VDC |
| Power consumption | Max. 116 mA |
| Nominal rating | 2.8 W |
| Permissible ambient temperature | |
| H Operation | 32 to 104°F (0 to 40°C) |
| H Storage | -4 to 140°F (–20 to +60°C) |
| H Transport | -4 to 140°F (−20 to +60°C) for max. 3 months or average 95°F (35°C) |
| Dimensions | ![]() |
Power Supply
Power supply unit
| Rated voltage | 100 to 240V~ |
| Rated frequency | 50 to 60 Hz |
| Rated current | 1.34A |
| Output voltage | 24VDC |
| Permissible ambient temperature H Operation H Storage and transport | 32 to 104°F (0 to 40°C) -40 to 185°F (–40 to +85°C) |
| Dimensions | ![]() |
Additional Information
Final Decommissioning and Disposal

Viessmann products can be recycled. Components and substances from the system are not part of ordinary household waste.
For decommissioning the system, isolate the system from the power supply and allow components to cool down where appropriate.
All components must be disposed of correctly.
Technical information subject to change without notice.
Printed on environmentally friendly (recycled and recyclable) paper.
Viessmann Manufacturing Company Inc.
750 McMurray Road
Waterloo, Ontario N2V 2G5 Canada
Techlnfo Line 1-888-484-8643
1-800-387-7373 Fax (519) 885-0887
www.viessmann.ca [email protected]
Viessmann Manufacturing Company (U.S.) Inc.
45 Access Road
Warwick, Rhode Island 02886 USA
Techinfo Line 1-844-649-5886
1-800-288-0667 Fax (401) 732-0590
www.viessmann-us.com [email protected]






















