ICBDEC1850FI 18 Inch Designer Column Freezer with Ice Maker
User Guide
Designer Series Refrigeration
Designer Series Refrigeration
With custom front panels and hardware, Sub-Zero invented
Designer Series columns, tall, and drawer models that disappear into the decor. Units fit flush with other cabinetry, making Designer Series refrigeration as practical and beautiful in the master suite, bar, or theatre room as in the kitchen. Model ICBID-24RO, approved for outdoor installations, is ideal for any outdoor kitchen.
Features and specifications are subject to change at any time without notice.
Throughout this guide, dimensions may vary by ± 3 mm.
COLUMN MODELS
TALL MODELS
DRAWER MODELS
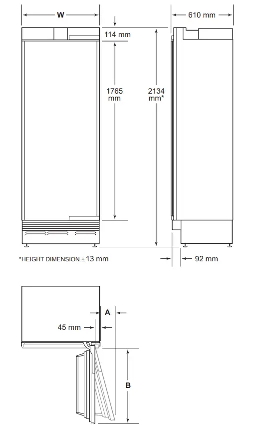
Overall Dimensions
COLUMN
| COLUMN | W | A | B |
| 457 mm Column | 457 mm | 64 mm | 419 mm |
| 610 mm Column | 610 mm | 102 mm | 572 mm |
| 762 mm Column | 762 mm | 143 mm | 724 mm |
| 914 mm Column | 914 mm | 184 mm | 876 mm |
IMPORTANT NOTE: Overall dimensions do not include panels or handles. Dimensions will vary with panel thickness.
Overall Dimensions

| DRAWER | W |
| 610 mm Drawer | 610 mm |
| 762 mm Drawer | 762 mm |
IMPORTANT NOTE: Overall dimensions do not include panels or handles. Dimensions will vary with panel thickness.
Opening Dimensions
DESIGNER SERIES
NOTE: 89 mm finished returns will be visible and should be finished to match cabinetry—114 mm for outdoor model.
OPENING DIMENSIONS
| COLUMN | W* | H |
| 457 mm Column | 457 mm | 2134 mm |
| 610 mm Column | 610 mm | 2134 mm |
| 762 mm Column | 762 mm | 2134 mm |
| 914 mm Column | 914 mm | 2134 mm |
| TALL | W* | H |
| 762 mm Tall | 762 mm | 2134 mm |
| 914 mm Tall | 914 mm | 2134 mm |
| DRAWER | W* | H |
| 610 mm Drawer | 610 mm | 876 mm |
| 762 mm Drawer | 762 mm | 876 mm |
*For stainless steel side panel accessory, add 25 mm per panel to opening width.
The depth of each Designer Series model is 610 mm. Allow for panel thickness when planning the finished opening depth. A minimum 89 mm finished return is required on all sides of the opening—114 mm for the outdoor model.
Framed cabinets will require additional finished filler material behind the face frame for a proper installation.
Refer to the illustration.
Dual Installation
When installing two units side by side in a dual installation, the opening width is the width of the two units added together. A dual installation kit will be required for this installation. If a dual installation kit is not specified, a minimum 51 mm filler strip is required between the units.
Dual installation kits are available through an authorized Sub-Zero dealer. For questions regarding the installation, contact your authorized Sub-Zero dealer.
Electrical Requirements
Installation must comply with all applicable electrical codes.
International models from the factory require a 220-240 V AC, 50/60 Hz electrical supply, fused at the correct rating for the unit.
The electrical supply should be easily accessible and positioned either in a cabinet above the refrigerator, a minimum of 2200mm above the floor or in adjacent cabinet.
Plumbing Requirements
Installation must comply with all applicable plumbing codes.
For Designer Series models with an automatic ice maker and/or water dispenser, a pressure limiting valve and 5 metres of flexible 6mm pipe with fittings is included in the refrigerator carton. Connect the pressure limiting valve close to the water tap, CHECKING THE WATER FLOW IS IN
THE RIGHT DIRECTION.
Ensure water connection is 1/2″ BSP male threaded outlet.
Tape the 6mm water line to the wall and floor to ensure it is not compressed when the refrigerator is pushed into the cavity.
The water tap should be easily accessible and positioned either in a cabinet above the refrigerator, a minimum of 2200mm above the floor, or in adjacent cabinet.
Do not use self piercing valves.
IMPORTANT NOTE: In some cases a reverse osmosis water filter system may not be able to maintain the minimum pressure consistently.
| PLUMBING REQUIREMENTS | |
| Water Supply Line | 6mm plastic line |
| Water Pressure | 2.4–8.3 bar |
| Excess Water Line for Connection | 5 m |


Stainless Steel Panels
The outdoor model requires the use of Sub-Zero stainless steel outdoor accessory panels. Stainless steel panels aravailable through an authorized Sub-Zero dealer.
The thickness of indoor stainless steel panels is 19 mm and outdoor stainless steel panels is 38 mm. The depth of each Designer Series model is 610 mm. Allow for panel thickness when planning the finished opening depth.
Reveals of 3 mm are typical, however, the reveal between the upper and lower outdoor stainless steel panels is 6 mm to accommodate the lock.
Custom Panels
For Designer Series models, custom door/drawer panels and handle hardware must be provided.
The thickness of the custom panel can vary. A minimum 16 mm thick panel is required, but the thickness can be increased provided it does not exceed the maximum panel weight indicated in the chart below. The depth of each Designer Series model is 610 mm. Allow for panel thickness when planning the finished opening depth. Refer to the full-scale template on page 12.
Reveals between panels can vary, 3 mm reveals are typical.
CAUTION
As reveals between cabinetry and the unit decrease, severe finger pinching can occur while the door is closing.
Custom Panels
TYPICAL PANEL DIMENSIONS
Typical panel dimensions are based on a 2134 mm finished height for column and tall models and 876 mm for drawer models, with a 102 mm toe kick and 3 mm reveals. Panel dimensions must be adjusted accordingly for all other installations. Refer to the illustration for panel height and the chart below for panel width.
| PANEL WIDTH | W |
| 457 mm Model | 451 mm |
| 610 mm Model | 604 mm |
| 762 mm Model | 756 mm |
| 914 mm Model | 908 mm |
Custom Panels
DOOR PANEL HEIGHT
The height of the custom door panel can extend beyond the typical panel height, provided it does not exceed the weight limit. Refer to the illustration below. 
TOE KICK CLEARANCE
For indoor models only, the height of the toe kick area can extend beyond the typical toe kick height, provided it does not exceed the dimensions in the illustration below. Toe kick heights from 51 mm to 98 mm require a reduced toe kick accessory available through an authorized Sub-Zero dealer. 
Standard Handles
Optional stainless steel tubular and pro handles are available through an authorized Sub-Zero dealer. Refer to the chart below for standard handle lengths for Designer Series models.
Optional stainless steel tubular and pro handles are available through an authorized Sub-Zero dealer.
Refer to the chart below for standard handle lengths for Designer Series models.
| HANDLE LENGTH | TUBULAR | PRO |
| Column Door | 1273 mm | 1229 mm |
| Tall Door | 845 mm | 800 mm |
| 610 mm Drawer | 540 mm | 495 mm |
| 762 mm Drawer | 692 mm | 648 mm |
| 914 mm Drawer | 845 mm | 800 mm |

Designer Series Undercounter Refrigeration
Designer Series Undercounter Refrigeration
The Sub-Zero Designer Series Undercounter Refrigeration is a helpful addition to a master suite, bar, home office, or media room. Choose from an all refrigerator or beverage center. The design flexibility of these compact yet roomy units makes them all the more welcome in any room.
They are ready to be fitted with a custom or stainless steel panel.
Designer Series Undercounter Refrigeration
The Sub-Zero Designer Series Undercounter Refrigeration is a helpful addition to a master suite, bar, home office, or media room. Choose from an all refrigerator or beverage center. The design flexibility of these compact yet roomy units makes them all the more welcome in any room.
They are ready to be fitted with a custom or stainless steel panel.
DESIGNER SERIES UNDERCOUNTER MODELS

Features and specifications are subject to change at any time without notice.
Throughout this guide, dimensions may vary by ± 3 mm.
Overall Dimensions
UNDERCOUNTER MODELS
IMPORTANT NOTE: Overall dimensions do not include panels or handles. Dimensions will vary with panel thickness.
Opening Dimensions
UNDERCOUNTER MODELS

The depth of each model is 610 mm. Allow for panel thickness when planning the finished opening depth. A minimum 89 mm finished return is required on all sides of the opening. Framed cabinets will require additional finished filler material behind the face frame for a proper installation. Refer to the illustration.
Dual Installation
When installing two units side by side in a dual installation, the opening width is the width of the two units added together. A dual installation kit will be required for this installation. If a dual installation kit is not specified, a minimum 51 mm filler strip is required between the units.
Dual installation kits are available through an authorized Sub-Zero dealer. For questions regarding the installation, contact your authorized Sub-Zero dealer.
| DUAL OPENING WIDTH | W |
| Two 610 mm Models | 1222 mm |
Electrical Requirements
Installation must comply with all applicable electrical codes.
International models from the factory require a 220-240 V AC, 50/60 Hz electrical supply, fused at the correct rating for the unit.
The electrical supply should be easily accessible and positioned in an adjacent cabinet.
ELECTRICAL REQUIREMENTS
| Power Supply | 220-240 V AC, 50/60 Hz |
| Circuit Breaker | 10 amp |
| Receptacle | grounding-type (earthed) |

Designer Series.
Undercounter model.
Location of power.
Custom Panel
The panel cannot exceed the maximum panel weight indicated in the chart below. The depth of each model is 587 mm.
PANEL REQUIREMENTS
| Panel Weight | 10 kg max |
| Panel Thickness | 16 mm min–19 mm max |
DUAL INSTALLATION
For dual installations, refer to the chart below for typical panel dimensions.
PANEL DIMENSIONS—DUAL INSTALLATION
| MODEL | W | H |
| ICBDEU2450R | 605 mm | 772 mm |
| ICBDEU2450BG | 605 mm | 772 mm |
TYPICAL PANEL DIMENSIONS

PANEL DIMENSIONS
| MODEL | W | H |
| ICBDEU2450R | 604 mm | 772 mm |
| ICBDEU2450BG | 604 mm | 772 mm |
Custom Panel
TOE KICK CLEARANCE
The height of the toe kick area can extend beyond the typical toe kick height, provided it does not exceed the dimensions in the illustration below.
MAXIMUM DOOR OPENING
As the panel width and/or depth increases, so does the potential for panel interference. Interference may be minimized by using the 90° door stop.

Standard Handles
Optional stainless steel tubular and pro handles are available through an authorized Sub-Zero dealer. Refer to the chart below for standard handle lengths.
| HANDLE LENGTH | TUBULAR | PRO |
| ICBDEU2450R | 614 mm | 572 mm |
| ICBDEU2450BG | 614 mm | 572 mm |
Warranty
Sub-Zero International Limited Warranty
FOR RESIDENTIAL USE
These Warranty Terms and Conditions (‘Warranty’) constitute your agreement with Sub-Zero Group Australia Pty Ltd (ACN 610 807 899) (‘Sub-Zero’) and will apply to your service order. The benefits given by this Warranty are in addition to all consumer guarantees and other rights and remedies prescribed by the Australian Consumer Law and any other applicable laws.
Our products come with guarantees that cannot be excluded under the Australian Consumer Law. You are entitled to a replacement or refund for a major failure and compensation for any other reasonably foreseeable loss or damage. You are also entitled to have the goods repaired or replaced if the goods fail to be of acceptable quality and the failure does not amount to a major failure.
In addition to your rights and remedies under the Australian Consumer Law, Sub-Zero provides customers with a Warranty where, if any part of a Sub-Zero Product is found upon inspection by an authorised Sub-Zero representative or an associated licensed technician supplied by either Sub-Zero or a relevant approved supplier (including a Sub- Zero factory certified service) (‘Service Representative’) to be defective in materials or workmanship, Sub-Zero will repair or replace the part free of charge as follows:
FULL TWO YEAR WARRANTY* (**Outdoor product full one year warranty)
For two years from the date of original installation, this Sub-Zero product warranty covers all parts and labour to repair or replace, under normal residential use, any part of the product that proves to be defective in materials or workmanship. All service provided by Sub-Zero under the above warranty must be performed by Sub-Zero factory certified service, unless otherwise specified by Sub-Zero, Inc. Where the Service Representative is unable to identify any fault in the product, Sub-Zero may require the consumer to provide proof that the product is defective. For the avoidance of doubt, defective products or parts become Sub-Zero’s property. Service will be provided during normal business hours.
FULL FIVE YEAR SEALED SYSTEM WARRANTY*
For five years from the date of original installation, this Sub-Zero product warranty covers all parts and labour to repair or replace, under normal residential use, these parts that prove to be defective in materials or workmanship: compressor, condenser, evaporator, drier and all connecting tubing. All service provided by Sub-Zero under the above warranty must be performed by Sub-Zero factory certified service, unless otherwise specified by Sub-Zero, Inc. Where the Service Representative is unable to identify any fault in the product, Sub-Zero may require the consumer to provide proof that the product is defective. For the avoidance of doubt, defective products or parts become Sub-Zero’s property. Service will be provided during normal business hours.
TERMS APPLICABLE TO EACH WARRANTY*
The warranty applies only to products installed for normal residential use. This warranty does not cover any parts or labour to correct any defect caused by negligence, accident or improper use, maintenance, installation, service or repair.
CLAIM PROCEDURE*
In order to claim the Warranty, you must cease using the product when a fault arises, contact Sub-Zero or authourised Sub-Zero dealer where the product was purchased to report the issue and follow Sub-Zero’s directions regarding what to do next. SubZero’s general contact details are as follows:
Sub-Zero Group
Australia
11-19 Bank
Place
Melbourne VIC
3000
Phone: 03 9600 2218 Email:
[email protected]
CLAIM PROCEDURE*
Except to the extent required by law, all consumer guarantees, representations, warranties, terms and conditions in relation to the products (whether implied or otherwise) are hereby excluded to the maximum extent permitted by law.
To the fullest extent permitted by law, Sub-Zero excludes all liability for damage or injury to any person, damage to any property and any indirect consequential or other loss or damage.
*Stainless steel (doors, panels, handles, product frames and interior surfaces) are covered by a limited 60-day parts and labour warranty for cosmetic defects.
*Replacement water filters and air purification cartridges are not covered by the product warranty.
**Full one year warranty applies to outdoor product. Product must be approved for outdoor use, designated by model and serial number.



















