Haier HPH60, 90 Series Built In Integrated Rangehood

SAFETY AND WARNINGS
WARNING
Weight Hazard The appliance is heavy. Please ensure adequate care is taken when installing the appliance to prevent personal injury. The appliance must be installed onto a solid wall, stud, beam or truss. Weight of the product is 6.5 kg (HPH60ILX2, HPH60ILB2) / 8.8 kg (HPH90ILX2, HPH90ILB2).
WARNING
Electric Shock Hazard Always disconnect the appliance from the mains power supply before carrying out any maintenance or repairs. Alterations to the domestic wiring system must only be made by a qualified electrician. Failure to follow this advice may result in electrical shock or death.
IMPORTANT SAFETY INSTRUCTIONS
WARNING!
When using this appliance always exercise basic safety precautions including
- Read the entire set of instructions before installing or using this appliance.
- Please make this information available to the person installing the appliance
- Always switch the power off prior to installation, servicing or cleaning of This appliance must be installed and connected to the mains power supply only by a suitably qualified person according to these installation instructions and in compliance with any applicable local building and electricity regulations. Failure
- To comply with electrical safety regulations, the rangehood must be plugged into
a socket near the appliance. The socket must be accessible, or have an accessible isolating switch, to enable the end user to isolate the rangehood from the power for the purpose of internal cleaning or maintenance. - A power outlet should be within 750 mm of the motor assembly and can either be
- If the supply cord of this equipment is damaged, it must only be replaced by the manufacturer, its service agent or similarly qualified person in order to avoid a hazard.
- Ducting accessories are not supplied. All ducting must comply with local requirements and building codes.
- Attention should be given to ensure that any applicable regulations concerning the discharge of exhaust air are fulfilled.
- Before connecting any pipes, consult municipal ordinances to ensure that any applicable regulations concerning the discharge of exhaust air are adhered to and request permission from the person in charge of the building.
- Exhaust air must not be discharged into an existing flue that is used for exhausting fumes from appliances burning gas or other fuels.
- There shall be adequate ventilation of the room when the rangehood is used at the same time as appliances burning gas or other fuels.
- Range hoods and other cooking fume extractors may adversely affect the safe operation of appliances burning gas or other fuels (including those in other rooms) due to back flow of combustion gases. These gases can potentially result in carbon monoxide poisoning. After installation of a range hood or other cooking fume extractor, the operation of flued gas appliances should be tested by a competent person to ensure that back flow of combustion gases does not occur.
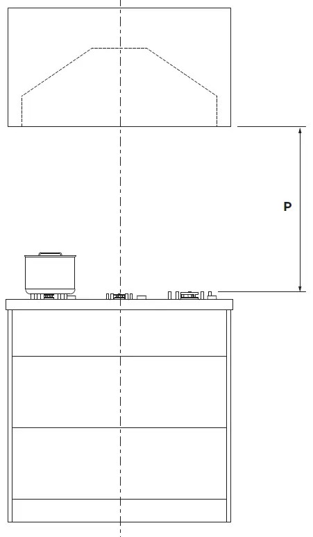
- The minimum distance between the supporting surface for cooking vessels on the cooktop and the lowest part of the rangehood shall be 600 mm. If the instructions for installation of the cooktop require a greater minimum distance, this should be followed.
- Stainless steel is very easily damaged during installation if abraded or knocked by tools. It is recommended to protect the top of the rangehood with cardboard or polystyrene during the installation to minimise the risk of damage occurring.
- To reduce the risk of damage occurring to the cooktop, it is recommended that the surface of the cooktop is protected with cardboard or a similar object during installation of the rangehood.
- This appliance is not intended for use by persons (including children) with reduced physical, sensory or mental capabilities, or lack of experience and knowledge, unless they have been given supervision or instruction concerning the use of the appliance by a person responsible for their safety.
- Children should be supervised to ensure they do not play with the appliance. Cleaning and user maintenance shall not be made by children without supervision. You must read the details concerning the method and frequency of cleaning.
- There is a fire risk if cleaning is not carried out in accordance with the instructions. Never leave frying food unattended since grease can overheat and catch fire.
- The risk of fire is even greater in the case of used oil.
- Do not flambé under the rangehood.
- Never use the rangehood without the filters in place.
- During an electrostatic discharge (ESD) it is possible that the device will stop working. By switching the device off and on the device will again work as intended.
- CAUTION: accessible parts may become hot when used with cooking appliances. Remove all packaging, including protective wrappings, before use.
INSTALLATION INSTRUCTIONS
Parts Supplied

Other Parts Required

Product and cabinetry cutout dimensions


IMPORTANT!
Please read the entire instructions before installing the rangehood.
Note: If installing in cabinetry with base thickness >35mm remove material around the mounting surface so that the thickness is <35mm and the brackets/clips can engage with the surface (see below)

Height of rangehood

MINIMUM CLEARANCES mm
Height top of cooktop to base of product min. 600 – max. recommended 750
This rangehood must be installed no lower than the minimum height indicated in the table above. Minimum installation height may be greater if required by the cooktop manufacturer or safety and warnings section on this user guide. Installation at the minimum height will improve efficiency of capturing cooking odours, grease and smoke. Installation at the maximum height improves ergonomics by offering increased head room.
Induction cooking considerations
- Induction cooktops use energy efficient technology that only heats the contents of a cooking pot.
- Unlike gas or traditional electric cooktops, the surrounding air does not get heated when using an induction cooktop. As a result, rangehood filters, splashbacks and surrounding cabinetry do not get warmed up, increasing the likelihood of condensation on these cooler surfaces.
- Other factors like ambient temperature, humidity, natural ventilation of the room, size of the cookware and how the induction cooktop is being used also influence condensation. For example, aggressive boiling on high cooktop heat settings like PowerBoost increases the rate at which water is evaporated, increasing the likelihood of condensation.
- It is important to understand that neither the rangehood nor the induction cooktop are faulty as a result of this phenomenon.
Condensation can be minimised by:
- Installing the rangehood at the maximum height above the cooktop as specified in this user guide.
- Using the rangehood on a lower speed setting when boiling.
- Using the induction cooktop on a lower heat setting when boiling.
Venting options
Attention should be given to ensure that any applicable regulations concerning the discharge of exhaust air are fulfilled. The rangehood can be installed to operate with the exhaust air ducted externally from the kitchen, or installed to operate with the exhaust air recirculating within the kitchen.
Ducted
For ducted installation it is recommended that 150 mm diameter, rigid or semi-rigid ducting is used. This will require a 160 mm (min) round hole in the ceiling or wall. Care should be taken to position the hole correctly. For optimal efficiency use the shortest and straightest duct route possible and use rigid or semi-rigid ducting for reduced noise and increased airflow. Flexible metal ducting should only be used as a last resort (ie in difficult installations) and if used ensure thatit is straight and smooth and extended as much as possible

Recirculating
Where ducting outside is not a practical option, this rangehood can be installed to operate with the air recirculating. Carbon filters are required to remove odours from the air before it is channelled back into the room or overhead bulkhead (refer to ‘Cleaning and Maintenance’ section). Ensure that the ducting outlet is not obstructed, even a partial obstruction will restrict the efficiency of the rangehood. Check with local codes and regulations if recirculation is allowed in your area.

IMPORTANT!
Venting directly into the cabinet with no ducting and louvered vent is not permitted
To recirculate your perimeter insert range hoods:
- Determine the desired location of the 150mm louvered vent on your cabinetry.
The louvered vent can be placed on the side or front of your cabinet provied there is sufficient clearance form the surrounding cabinetry to enable ventilated air to recirculate back into your kitchen.
Note: Placement of the louvered vent on the top of your cabinetry is not recommended. This should be only be done if objects can be prevented from falling through the louvers in to the blower. - Create a cutout in your cabinet to fit the 150mm louvered vent. Place the louvered vent on the hole created and secure (A).
- Connect the blower outlet to the louvered vent with a length of 150mm rigid ducting, and secure the joints with aluminum tape. Ensure there is no slack in the ducting.

WARNING!
- This appliance is heavy and requires two persons for unpacking and installation.
- Installation work and electrical wiring must be done by qualified person(s) in accordance with all applicable codes and standards.
- Failure to install the screws or fixing device in accordance with these instructions may result in electrical hazards
IMPORTANT!
Wear gloves to protect against sharp edges. The manufacturer is not liable for any damage caused by not following these instructions
INSTALLATION
- Prepare for installation.
Before installing your rangehood:- Please read the instructions carefully.
- Unpack the rangehood and check that all functions are working.
- Ensure that the voltage (V) and the frequency (Hz) indicated on the serial plate match the voltage and frequency at the installation site.
- The stainless steel and glass surfaces of the rangehood are very easily damaged during installation if grazed or knocked by tools. Please take care to protect the surfaces during installation.
- Protect the cooktop surface below with cardboard, or the like, to prevent damage occurring whilst the rangehood is being installed above.
- Fit the 150 mm ducting adapter with non return flap to the rangehood using the screws supplied.
- Provide an opening on the underside of the cupboard (see product and cabinetry cutout dimensions).

- Remove the filter from the rangehood.

- Connect duct and plug rangehood in.

- Lift the rangehood and fit through the opening of the cupboard till the spring loaded brackets / clips hold the product in place.

- Secure rangehood while tightening the brackets / clips

OPERATING INSTRUCTIONS
Control panel
CLEANING AND MAINTENANCE
WARNING!
Unplug or disconnect the appliance from the power supply before servicing or cleaning.
IMPORTANT!
- Never use abrasive or oil based cleaners.
- Wear gloves to protect against sharp edges.
Maintenance
The rangehood should be cleaned regularly using a mild, liquid detergent and a clean soft cloth to avoid a build-up of grease occurring. Avoid the use of corrosive chemicals, abrasive cleaning products, hard brushes and steel wool pads. Grease deposits are corrosive which can cause damage to your rangehood.
Note: in areas of high humidity or coastal environments, cleaning should be carried out more frequently.
Aluminium filters
- Depending on use, and at least once a month, the aluminium grease filters should be removed and cleaned with hot soapy water or in a dishwasher.
- If washed in a dishwasher, the filters should be placed in an upright position to prevent food from falling on them.
- After rinsing and drying, replace the filters.
Note: some discolouration of the frames may occur.

Removing the aluminium filters:
- Pull the filter catch, tilting it downwards until it disengages from the supports.
- Reverse these instructions when refitting the filters.
Carbon filters – for use in recirculation mode
Active carbon filters are disposable items designed to remove grease and odours from cooking vapours before the air is channelled back into the kitchen. The active carbon filters must be replaced periodically to work properly, at least once every three months, depending on the frequency with which the rangehood is used.
IMPORTANT!
- Carbon filters are disposable items and must be replaced at least every three months.
- Saturated carbon filters can become a barrier to air movement, therefore limiting your range hoods performance.
- In the event of a fire, grease laden filters could be flammable.
Fitting the carbon filters:
- Ensure the range hood is switched off.
- Remove the aluminum grease filters from the range hood.
- Place a carbon filter on each side of the blower inlet (refer to A), turn the filter until it clips into place (refer to B).
Note: The direction will be clockwise on one side of the blower and counterclockwise on the other side of the blower. - Refit aluminium grease filters.

Light bulb replacement
To replace the lights you must contact your Haier trained and supported service technician. Refer to the haier website or your service and warranty book for contact details.
Note: lights are not user replaceable.
PARTS AND ACCESSORIES
ITEM /REFERENCE NUMBER
- Aluminium filter (HPH60ILX2, HPH60ILB2) 793597
- Aluminium filter (HPH90ILX2, HPH90ILB2) 793598
- Recirculation carbon filter x2 792481
SERVICE & WARRANTY
Manufacturer’s Warranty
Please read this warranty card carefully. Attach your purchase receipt to this warranty card and keep in a safe place. You must produce both warranty card and proof of purchase in the event of a warranty repair being required. When you purchase any new Haier Product you automatically receive a two year Manufacturer’s Warranty covering parts and labour for servicing.
The Manufacturer undertakes to:
Repair or, at its option, replace without cost to the owner either for material or labour any part of the Product, the serial number of which appears on the Product, which is found to be defective within TWO YEARS from the date of purchase.
This warranty DOES NOT cover
- A Service calls which are not related to any defect in the Product. The cost of a service call will be charged if the problem is not found to be a Product related fault. For example:
- Correct the installation of the product.
- Provide Instruction on use of the product or change the setup of the product.
- Replace house fuses or correct house wiring.
- Correcting fault(s) caused by the user.
- Noise or vibration that is considered normal.
- Water on the floor due to incorrect loading or excessive suds.
- Blocked pumps, removal of foreign objects/substances from the machine, including the pump and inlet house filters.
- Correcting damage caused by pests, eg. rats, cockroaches etc.
- Correct corrosion or discolouration due to chemical attack.
- Power outages or surges.
- B Defects caused by factors other than:
- Normal domestic use or
- Use in accordance with the Product’s User Guide.
- C Defects to the Product caused by accident, neglect, misuse or ‘Act of God’ .
- D The cost of repairs carried out by non-authorised repairers or the cost of correcting such unauthorised repairs.
- E Normal recommended maintenance as set out in the Product ‘s User Guide.
- F Repairs when the appliance has been dismantled, repaired or serviced by other than an AUTHORISED CUSTOMER SERVICE CENTRE or the selling dealer
- G Pick up and delivery.
- H Transportation or travelling costs involved in the repair when the product is installed outside the AUTHORISED CUSTOMER SERVICE CENTRE’S normal service area.
This product has been designed for use in a normal domestic environment. It is not intended for commercial use. Doing so may affect product warranty. Service under this warranty must be provided by an Authorised Service Repairer (refer to the Customer Care section for contact details). Such service shall be provided during normal business hours. This warranty certificate should be shown when making any claim.
Note:
This Warranty is an extra benefit and does not affect your legal rights and applies only to product purchased in New Zealand and Australia. Please keep this Warranty Card in a safe place.
For Australian customers:
Our goods come with guarantees that cannot be excluded under the Australian Consumer Law. You are entitled to a replacement or refund for a major failure and for compensation for any other reasonably foreseeable loss or damage. You are also entitled to have the goods repaired or replaced if the goods fail to be of acceptable quality and the failure does not amount to a major failure.
- Your appliance is correctly installed.
- You are familiar with its normal operation.
- You have read the problem solving section in your User Guide.
Call your retailer who is trained to provide information on your appliance, or if we can be of any further help, please contact our Customer Care Centre:
- Toll Free: 0800 242 437 Fax: (09) 273 0656
- Email: [email protected]
- Postal address: P.O. Box 58732, Botany, Manukau 2163
We have a network of independent Fisher & Paykel Authorised Repairers whose fully trained technicians can carry out any service necessary on your appliance. Your dealer or our Customer Care Centre can recommend a Fisher & Paykel Authorised Repairer in your area
Call the Customer Care Centre and talk to one of our Customer Care Consultants.
- Toll Free: 1300 729 948 Fax: (07) 3826 9298
- Email: [email protected]
- Postal Address: PO Box 798, Cleveland QLD 4163
We have a network of qualified Authorised Repairers whose fully trained technicians can carry out any service necessary on your appliance. Our Customer Care Centre can recommend an Authorised Repairer in your area. If you call or write, please provide: name, address, model number, serial number, date of purchase and a description of the problem. This information is needed in order to better respond to your request for assistance.
- Model ______________________
- Serial Number: __________________
- Date of Purchase Purchaser______________________
- Dealer ______________________
- Suburb______________________
- Town______________________
- Country______________________
Thank you for choosing Haier. We are confident that you will enjoy many years of good service from your appliance. The product specifications in this document apply to the specific products and models described at the date of issue. Under our policy of continuous product improvement, these specifications may change at any time. You should therefore check with your Dealer to ensure this document correctly describes the product currently available.






CLEANING AND MAINTENANCE

















