polycade Powerful Arcade Style Gaming System
Hardware Checklist
- 1/4” Structural Screw x 4 Included
- T-25 Torx bit x 1 Included
- 1/8” Drill bit x 1 Optional
- Tape Measure x 1
- Level x 1
- Stud Finder x 1
- Pencil x 1
- Drill x 1
- Assorted security hardware x 1 Included + Optional
Mounting the Polycade
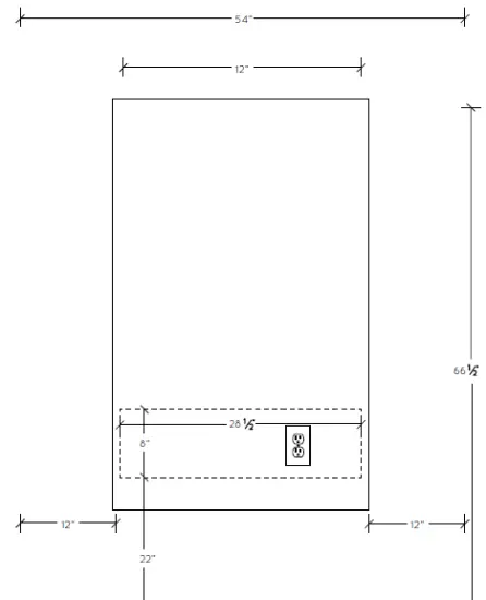
- Find a suitable wall for your Polycade. Ideally, you want 12” on either side of the cabinet to give yourself plenty of space. We also recommend mounting the Polycade at 66 ” high, but you’re welcome to move this up or down depending on your height.

- Optional: Move electrical outlet into area denoted by a dashed line to hide the power cord. This should be done only by a licensed professional.

- Pick a height for your Polycade. We recommend the top be 66 ” from the ground, but you can choose to go higher or lower depending on the height of your users. Make a mark 5 ” below this (we recommend 61”). This mark will line up with the top of the provided mount. You will also want to mark the center of the space where you will be mounting your Polycade.

- Locate studs in your wall using a stud finder and mark stud location by using a pencil. Mark your 2 studs a little below the line you drew in the previous step.
The mount MUST be attached to two wood studs, so it is a good idea to verify where the studs are located with an awl or thin nail.
- Set the Polycade upright on a soft surface and make sure it will not tip (you may want to ask a friend for help). Detach the mount from the back of the machine by removing the zip ties.

- Make sure the mount is oriented with the correct side against the wall and hold it up to the wall. Line the top of the mount up with the first mark you made (in step 3). Hold the mount so that it is centered on the center line you drew, then move the mount left or right until you can see the pencil marks you drew to mark the center of the studs. Trace the inside of 2 holes where your stud mark lines are visible.

- Using a level, draw a line between the two stud marks. Make sure your line intersects the center of both stud marks and is close to middle of the traced hole marks.

- Drill a hole into each stud using a 1/8” drill bit

To ensure your holes are level with one another, drill your holes at the intersection of the vertical stud marks and the horizontal line you marked with the level. - Hold the mount against the wall being careful to ensure the correct side of the mount is against the wall, and ensuring the mount is correctly oriented (not upside down!). Guide the provided structural screws through the mount and into your pilot holes. Tighten screws using a drill and until the mount can’t be jiggled. Be careful not to over-tighten.

- Now that the mount is in place, locate holes on the bottom of the mount that are in-line with holes you just drilled into and repeat steps 8 & 9.

- Lift machine and hook the Polycade onto your mount (this is a two person job)

- To power on your Polycade, plug your Polycade into a wall outlet and press the power button located in the middle of the underside of the Polycade cabinet.





















