SVS 3000 Series In-Wall Subwoofer System

System Setup Guide
- Congratulations on choosing the SVS 3000 In-Wall Subwoofer System, a groundbreaking achievement in architectural subwoofer design.
- The following steps will guide you through the quick and easy setup process.
- We strongly recommend reading the 3000 In-Wall Subwoofer Owner’s Manual to get the best possible performance.
- You’ll find useful information about amplifier placement, connections, DSP functions, and more.
Set It Up
- Please see the other Installation Guide for installing the 3000 In-Wall Subwoofer and installing the 3000 In-Wall Subwoofer Amplifier with or without the rack mount kit.

Hook It Up
- Note: Make sure the subwoofer amplifier and all other associated electronics are turned off when connecting.
- Note: The 3000 In-Wall Subwoofers (Single or Dual) do not need to be installed to proceed with the following amplifier setup steps, though it is highly recommended in-wall rated speaker wire is already installed at the necessary locations before installation.
- For most set-ups, a single RCA subwoofer interconnect cable running from the AV Receiver’s “SUB 1” output to the 3000 In-Wall Subwoofer Amplifier’s “LFE” line level input is all that’s required to connect the subwoofer to your system.
- If you run separate Preamplifier and Power Amplifiers, follow the “Line Level Connection – Stereo Receiver or Preamplifier Left/Right Channels” connection guide below.
Line Level Connection – Single LFE Channel
Line Level Connection – Stereo Receiver or Preamplifier Left/Right Channels
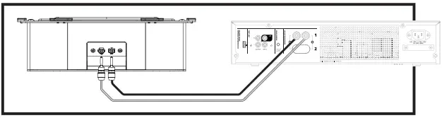
Speaker Level Connection – Single 3000 In-Wall Subwoofer
Single Subwoofer Systems
- A single set of speaker wire is used for a Single Subwoofer system. Connect the speaker wire, paying attention to polarity, to a single set of 5-way binding posts on the 3000
- In-Wall Subwoofer amplifier.
Speaker Level Connection – Dual 3000 In-Wall Subwoofers
Dual Subwoofer systems
- If connecting Dual 3000 In-Wall subwoofers, simply pull the rubber cover off to expose the 2nd set of binding posts on the 3000 In-Wall amplifier. You can now connect the speaker wire from the first subwoofer to the top pair of binding posts, and then connect the speaker wire for the second subwoofer to the bottom pair of binding posts.
- Note: The output from both sets of binding posts are identical, so it does not matter which subwoofer is connected to the top or bottom pair of binding posts on the amplifier.
Get Control
Your SVS 3000 In-Wall Subwoofer Amplifier can be controlled from the SVS Subwoofer Control App or via the front panel.
Download The App
- The SVS Subwoofer Control App is the easiest way to access all the advanced control features available on your 3000 In-Wall Subwoofer Amplifier, from the comfort of your favorite seat. This includes volume, low pass filter, room gain, phase, polarity, parametric EQ, custom presets, and more.

For iOS, Android, & Amazon Devices
On The Subwoofer
- The front panel features an intuitive all-new user interface with controls for adjusting the subwoof-er’s primary settings. There function buttons are for Volume, Low Pass
Frequency, and Phase. Simply press the setting you want to change and then use the “+” and “-” buttons to adjust the settings.
- Please note, some DSP settings can only be accessed using the SVS app.
Get Calibrated
- Set the 3000 In-Wall Subwoofer Amplifier’s volume to -10, then run auto-set-up in your AV receiver/processor. It is important to re-run your receiver’s auto-calibration set-up if you are upgrading from another subwoofer.
- If your set-up doesn’t include an Auto-EQ feature, adjust the subwoofer volume control to level-match your loudspeakers.
- For additional guidance on recommended crossover settings based on your specific speakers, visit our Subwoofer Matching tool at www.svsound.com/merlin, or contact the SVS Sound Experts.

Register Your New SVS Product:
- Thank you for choosing SVS! Registering your SVS product expedites any Sound Experts support requests, confirms your warranty registration, and provides proof of purchase.
- Plus, as a registered customer, you’ll be the first to get SVS news and updates.
- Register your product now at: www.svsound.com/register
Need Help?
- Our Sound Experts are standing by to help with subwoofer placement, installation, calibration, AV receiver settings, room rattle, and anything else you need advice about. Just call, email, or chat online with our Sound Experts:
(877) 626-5623 - [email protected]
- www.svsound.com
























