Buderus MCM10 Boiler Control for 4 Boiler Instruction Manual
Explanation of symbols and safety information
Explanation of symbols
Warning symbols
Safety instructions in this document are framed and identified by a warning triangle which is printed on a grey background.
Electrical hazards are identified by a lightning symbol surrounded by a warning triangle.
Signal words indicate the seriousness of the hazard in terms of the consequences of not following the safety instructions.
- NOTICE indicates possible damage to property or equipment, but where there is no risk of injury.
- CAUTION indicates possible injury.
- WARNING indicates possible severe injury.
- DANGER indicates possible risk to life
Important information
Notes contain important information in cases where there is no risk of personal injury or material losses and are identified by the symbol shown on the left. They are bordered by horizontal lines above and below the text.
Additional symbols
| Symbol | Meaning |
| a step in an action sequence | |
![]() | a reference to a related part in the document or to other related documents |
| a list entry | |
| a list entry (second level) |
Safety precautions
- To ensure proper function, follow these instructions.
- Install and start up the heating appliance and all accessories according to the associated instructions.
- Use this accessory exclusively in conjunction with the controllers and heating appliances listed. Follow the connection diagram!
- This accessory has inputs and outputs with different voltages. Never connect the low voltage side to the 120 V power supply or vice-versa.
- In case of wall installation: never install this accessory in wet areas.
- Work on electrical components only if you have the required training and qualification.
- Before you start working on the system, disconnect the heating system from electrical power by shutting off the emergency shut-off switch or the heating system circuit breaker.
- Secure against unintentional reconnection.
- It is not sufficient to simply shut off the controls.
- Observe all applicable electrical codes and regulations.
Details about the MCM10 module
Declaration of conformity
The design and operation of this product conform to the U.S. and Canadian Directives. Its conformity is demonstrated by the CSA designation.
The Declaration of conformity can be claimed. See the address at the back of this manual.
Information regarding the documentation
Hand all enclosed documents over to the user.
We reserve the right to make technical modifications!
Proper use
The MCM10 modules are designed to control cascade systems. A cascade system is a heating system where several smaller heating appliances are connected in parallel to achieve a higher output (Æ Fig. 12, page 19).
The MCM10 modules are only suitable for controlling heating appliances with Logamatic EMS BUS.
For floor-standing heaters, the MCM10 module is only suitable for the activation of gas heaters with modulating burners without operating conditions.
Scope of delivery

Fig. 1 Scope of delivery
- MCM10
- Duct connection box
- Sensor well
- Supply temperature sensor FV
- Package with:
- 3 screws and 3 wall-plugs
- 4 strain relief clips and 8 screws
- Installation and operating instructions
Check that the delivery is complete.
Accessories
Here is a list with typical accessories. In order to get a complete overview of all available accessories, please contact the manufacturer.
- Outdoor temperature sensor FA for connection to terminal F (only for system variant 1).
- RC35: Outdoor reset heating system controls with plaintext display for controlling a heating system with mixed or unmixed heating zones.
- WM10: Low loss header module for EMS.
- MM10: Mixer module for EMS.
- AM10: Outdoor reset controller with thermostat connection.
Technical specifications
General
| Designation | Unit | |
| Dimensions | (à Fig. 2) | |
| Weight (without packaging) | lb (kg) | 1.76 (0.8) |
| Rated voltage MCM10 | AC … V | 120 |
| Frequency | Hz | 60 |
| Max. on-site fuse protection of the input voltage | Amp | 10 |
| Power draw MCM10 | W | 5 |
| Rated voltage BUS | DC … V | 15 |
| Internal appliance fuse, heating pump output | Amp | 5 AF, ceramic, filled with sand |
| Measuring range, supply temperature sensor | ° F ( °C) | 32 … 212 (0 … 100) |
| Measuring range, outside temperature sensor | ° F ( °C) | – 40 … 122 ( – 40 … 50) |
| Permissible ambient temperature MCM10 | ° F ( °C) | 32 … 122 (0 … 50) |
| Permissible ambient temperature, supply temperature sensor | ° F ( °C) | 32 … 212 (0 … 100) |
| Permissible ambient temperature outdoor temperature sensor | ° F ( °C) | – 58 … 212 ( – 50 … 100) |
| Maximum cable length, 2-wire BUS connections | ft (m) | (Tab. 6, page 11) |
| Maximum lead lengths, sensor leads | ft (m) | (Tab. 7, page 11) |
| EMC suppression level to | IEC 60730 | |
| Enclosure rating | II in accordance with IEC 60730 | |
| NEMA definition | Type 2 |
Tab. 1 General
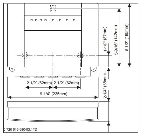
Dimensions

Fig. 2 Dimensions
Power connection parameters
| Pos.1) | Interface | ||
| A | Input | Power supply from the power line or from the previous module MCM10 | 120 V AC, max. 10 Amp. |
| B | Output | Power supply for additional MCM10 | 120 V AC, max. 10 Amp. |
| C | Output | Pump | 120 V AC, max. 250 W |
| D | Output | Remote fault indication | zero volt, max. 120 V, 2 Amp. |
| E | Input | Supply temperature sensor | NTC (Tab. 3) |
| F | Input | Outdoor temperature sensor | NTC (Tab. 4) |
| G | Input | External switching contact | Zero volt |
| H | Input | Heating controls (ON/OFF contact) | 24 V DC |
| I | Input | Heating controls (proportional interface) | 0-10 V DC |
| J | 2-wire BUS | to the heating controller (RC35, WM10, MM10) | – |
| K | 2-wire BUS | from the previous MCM10 module | – |
| L | 2-wire BUS | to the next MCM10 module | – |
| M | 2-wire BUS | to the heating appliance | – |
Tab. 2 Power connection parameters 1) (Æ Fig. 12, page 19)
Measurement values supply temperature sensor
| °F ( °C) | L | °F ( °C) | L |
| 68 (20) | 12490 | 140 (60) | 2488 |
| 77 (25) | 10000 | 149 (65) | 2083 |
| 86 (30) | 8057 | 158 (70) | 1752 |
| 95 (35) | 6531 | 167 (75) | 1481 |
| 104 (40) | 5327 | 176 (80) | 1258 |
| 113 (45) | 4369 | 185 (85) | 1072 |
| 122 (50) | 3603 | 194 (90) | 917 |
| 131 (55) | 2986 | 203 (95) | 788 |
Tab. 3 Measurement values supply temperature sensor
Measurement values outdoor temperature sensor
| °F ( °C) | L | °F ( °C) | L |
| – 4 ( – 20) | 97070 | 50 (10) | 19900 |
| 5 ( – 15) | 72929 | 59 (15) | 15708 |
| 14 ( – 10) | 55330 | 68 (20) | 12490 |
| 23 ( – 5) | 42315 | 77 (25) | 10000 |
| 32 (0) | 32650 | 86 (30) | 8057 |
| 41 (5) | 25388 | 95 (35) | 6531 |
Tab. 4 Measurement values outdoor temperature sensor
System integration of the MCM10
Principles of cascade control
When the heating appliance generates a heat demand (
Tab. 5, system versions 1, 2, 3, and 4), initially one heating appliance is started and, if required, its heat output is raised to its maximum nominal power. Only then will another heating appliance be started.
If excessive heat is being generated, heating appliances are controlled one after another in sequence without delay down to their respective minimum nominal power, and then shut down until heat demand and generation match. With system version 4 all appliances are shut down simultaneously.
The MCM10 module automatically determines the sequence in which the heating appliances are controlled. The MCM10 module safeguards an even distribution of the burner hours of operation for all heating appliances. This takes into account heating and DHW. This increases the heating appliance service life. If the power supply to the MCM10 module is interrupted, the hours run meters in the MCM10 module are reset to zero.
As soon as a heating appliance is not able to start (DHW heating for a directly-connected hot water tank, heating appliance fault, communication fault with MCM10 module), another heating appliance will be started automatically to cover the heat demand.
Heating controls for MCM10 cascade systems
The MCM10 modules stage the heating appliances based on the heat demand calculated. For control according to the heat demand, the MCM10 modules always require heating system controls (Æ Fig. 12, terminals H, I or J, page 19). Depending on the heating system controls, there are four possible system versions (
Tab. 5).
Note that, for the correct function, only one heating system control/building management system may be connected.
One MCM10 module can control up to four heating appliances. By connecting up to four MCM10 modules, up to 16 heating appliances can be linked to form a single cascade (
Fig. 12, page 19). In this case, one MCM10 module controls the cascade (MCM10 master).
Depending on the heating system controls used, a cascade system with up to 4 or up to 16 heating appliances can be created. The maximum number of heating appliances that can be connected and the number of MCM10 modules required for the different systems are shown in Tab. 5.
The different system versions require the connection of certain accessories (supply temperature sensors, outdoor temperature sensors, heating pumps, and heating system controls) (
Tab.
The MCM10 module controls the entire boiler loop (primary loop including the low loss header). All other heating system components (secondary side of the low loss header, such as the heating zones, hot water tank) can be regulated by a weather-dependent heating controller with a 2-wire BUS interface and additional modules (WM10, MM10…). Contact the manufacturer for further details. You will find the relevant address on the back cover.
Heating appliances of any output can be part of a cascade.
Water heating with MCM10 cascade systems
Hot water tanks can be connected hydraulically and electrically directly to a heating appliance (storage tank model)
- Water heating is controlled by the heating appliance. During a DHW demand, this heating appliance will not be called by the MCM10 module. In case of demand, another heating appliance may be started.
- If water heating is timed using a heating system control with 2-wire BUS connection, the heating appliance with the storage tank must be connected to the MCM10 module (master) via terminals 17 and 18.
If the user wants to prepare hot water using the 3-way valve of the heating appliance and he wants to continue supplying the heating zone, he must switch off the warm water priority on the RC35 for all heating zones since with the factory settings, hot water priority is active by default.
Internal frost protection function
The MCM10 module is equipped with an internal frost protection function: if the supply temperature falls below 45 °F ( 7 °C ), a heating appliance starts and runs until a supply temperature of 60 °F (15 °C) has been achieved. Any heating pump that is connected to the MCM10 module will also run (
paragraph 2.7.5).
- Connect the supply temperature sensor to the MCM10 master module if the internal frost protection function is required.
The frost protection function of heating system controls with 2-BUS interface provides comprehensive system frost protection. This requires the connection of an outdoor temperature sensor
Control of one heating pump
In heating systems with only one heating zone, the heating pump can be connected directly to the MCM10 module (master).
The heating pump runs:
- as long as at least one heating appliance pump is running (if required, set the pump run-on time on the heating appliance accordingly Æ heating appliance installation instructions); or
- briefly after remaining idle for 24 hours (anti-seizing protection).
The anti-seizing pump protection lets the heating pump run at least once every day even without a heat demand (e.g. during summer).
Leave your heating system switched on all year to prevent the pump (in summer) from seizing up.
External switching contact
The MCM10 module is equipped with an external switching contact (
Fig. 12, pos. G). For the characteristics of this switch, see Æ Tab. 2, page 5.
This external switching contact can be used optionally, e.g. to connect a temperature switch for protecting the radiant floor heating against a too-high water temperature.
If the switching contact is opened, all heating appliances are switched off via the MCM10 module. As soon as the switching contact is closed again, the heating appliances are ready for operation again.
System versions overview
As a manufacturer of advanced heating technology, we give high priority to the development and manufacture of economical and clean-burning heating appliances. To guarantee this, our heating appliances are equipped with modulating burners. To make optimum use of the burner characteristics, heating system controls with 2-wire BUS control should be used.
| System version | Symbol for controller connection | Heating controller to MCM10 master module | Type | Max. number MCM10 | Max. number of heating appliances with BUS-enabled Logamatic EMS | Required accessories with connection to MCM10 (à Fig. 12, page 19) |
| 1 | ![]() | Modulating weather-compensated controller 2-wire BUS control | RC35 | 4 | 16 |
|
| 2 | ![]() | Modulating weather-compensated controller 2-wire BUS control | AM10 weather- compensated controller | 4 | 16 |
|
| 3 | ![]() | Modulating 0 – 10 V controller, e.g. building management system; control of the heat output | Any | 4 | 16 |
via the building management system. |
| 4 | ![]() | Modulating 0 – 10 V controller, e.g. building management system; supply temperature control | Any | 4 | 16 |
|
| 5 | ![]() | ON/OFF controller (zero volt) | Any | 4 | 16 |
|
Tab. 5 System versions overview
System version 1: Modulating weather compensated heating controller (RC35)
An advantage of this system is the ability of the modules to communicate, enabling all heating zones to be controlled (function module WM10 or MM10) with the MCM10 module via a common BUS, parallel to terminal J on the MCM10 module (
Fig. 12, page 19). This ensures matching generated heat amount to the actual heat demand of all heating zones in the system. With this version, the heating system achieves optimum comfort with maximum energy savings.
System version 2: Modulating weather compensated heating controller (AM10)
The supply target temperature of the AM10 module depends on the outdoor temperature. In contrast to system version 1, it is not possible to use the WM10 and MM10 modules.
System version 3: Modulating 0 – 10 V controller, regulated acc. to output
In conjunction with a building management system with 0 – 10 V interface, the total output of the cascade can be selected as control variable. Setting is achieved via a jumper (
Fig. 3)

Fig. 3 Setting via jumper

Fig. 4 Correlation between the input voltage and heat output
U Input voltage
P Output in % of the rated cascade output
System version 4: Modulating 0 – 10 V controller, regulated to supply temperature
In conjunction with a building management system with 0 – 10 V interface, the supply temperature can be selected as control variable. Setting is achieved via a jumper (
Fig. 3).

Fig. 5 Correlation between the input voltage and the supply temperature
U Input voltage
VT Supply temperature
System version 5: Heating control with ON/OFF contact
In conjunction with a control unit with ON/OFF contact, module MCM10 regulates the cascade output in accordance with the contact closure respectively up to maximum output, by starting one appliance after another. When the contact is opened, all heating appliances are shut down simultaneously.
The ON/OFF contact of the heating system controls must be a dry contact
Connection of additional modules in case of heating system controls with 2-wire BUS control
Any additional modules, such as the WM10 and MM10 modules (
Fig. 12, [21], page 19), must be connected to the BUS of the heating controller (parallel to terminal J on the MCM10 module).
Installation
Installation
DANGER: Risk of electric shock!
Before connecting the power supply, interrupt the power supply to the heating appliances and to all other BUS subscribers
Wall mounting
- Determine the location on the wall in accordance with the dimensions of the MCM10 module.
- Determine whether the main power cord is laid in stiff or flexible ducts that require duct connection box and appropriate free space under the MCM10.
- Undo two screws at the bottom of the MCM10 module, pull the cover at the bottom forward and lift off upwards ( Fig. 6)

Fig. 6 Removing the cover - For the upper attachment screw, drill a Ø 1/4″ (6 mm) hole, insert an appropriate wall anchor, and insert the screw until only 1/16″ (1.5 mm) protrudes ( Fig. 7)

Fig. 7 Upper attachment screw - In the back panel of the MCM10 module, create two holes for the lower attachment screws using the breakouts prepared.
- Attach the MCM10 module at the top attachment screw.
- Mark the holes to be drilled on the wall through the breakouts created.
- Remove the MCM10 module.
- Drill Ø 1/4″ (6 mm) holes and insert wall anchors ( Fig. 8).

Fig. 8 Insert wall anchor - Hook in the MCM10 module at the top attachment screw and secure with the two lower screws.
- With the use of stiff or flexible ducts:
- Remove all plastic grommets from the slits on the lower side of the MCM10;
- push the duct connection to the intended place;
- break out the required number of cable entries by knocking cautiously with a screwdriver handle;
- mount the duct according to the manufacturer’s instructions.
Note: When using ducts, no plastic grommets are required.
Making the electrical connections
- Observe electrical code for the connection and use at least cable AWG14 for the main power cord.
- Always route cables through the preassembled grommets and apply the strain relief supplied to protect the system against the ingress of dripping water.
- Wiring preferably with single core cable. When using multi-strand (flexible) cables, fit them with wire ferrules.
- Cables can be pulled off the contact strip for their connection to the screw terminals. The connectors are color-coded and keyed to prevent mismatch of cable terminals.
Connection of the low voltage part with BUS connections
CAUTION: Malfunction!
- Always wire in accordance with the wiring diagram ( Fig. 12).
- Never connect one BUS to another.
The minimum permissible cable cross-section of the 2- wire BUS connection arises from the cable length:
| Cable length | Min. cross-section |
| < 325 ft (100 m) | AWG 20 |
| 325 – 650 ft (100 – 200 m) | AWG 18 |
Tab. 6 Minimum permissible cross-section of the 2-wire BUS connections
- Route all low-voltage cables separately from cables carrying 120V to avoid inductive interference (minimum separation 4 inches)(100 mm).
- In case of inductive external influences, use shielded cables. This way, the cables are screened against external influences (e.g. high-voltage cables, contact wires, transformer stations, radio and TV devices, amateur radio stations, microwave devices, etc.).
- When sensor leads are extended, apply the following lead cross-sections:
| Cable length | Min. cross-section |
| < 65 ft (20 m) | AWG 20 |
| 65 – 100 ft (20 – 30 m) | AWG 18 |
Tab. 7 Sensor lead extension
- To safeguard the splash-proof rating (IP): Route cables so that the cable sheath protrudes at least 0.8″ (20 mm) into the cable grommet (Æ Fig. 9) or the duct connection box.

Fig. 9 Splash-proof
CAUTION: Risk of pole reversal. Malfunction through interchanged connection on the 0 – 10 V interface.
Ensure connection to the correct poles (9 = negative, 10 = positive).
120 V AC connection
CAUTION: The MCM10 module input is not fuse-protected. Overloading the outputs can damage the MCM10 modules.
Protect the MCM10 module power supply (master) with a fuse with maximum rating 10 Amp.
- Only use electric cable of similar quality.
- Never connect additional controllers that regulate other system components to outputs C (pump) and D (fault signal).
CAUTION: Output C (pump) of the MCM10 module has a maximum load capacity of 250 W.
Connect pumps drawing more current via relays.
- Recommendation when using several MCM10 modules (cascade with more than four heating appliances): Provide the additional modules with power via the first MCM10 module (master). This ensures simultaneous start-up.
The maximum current drawn by the system components (pump, etc.) must not exceed specifications ( Tab. 2,).
Connection of a remote fault indication with optical and acoustic signal
For example, a fault indicator can be connected to the zero volt fault contact (Æ Fig. 12, terminal D, page 19). The state of the fault contact is also indicated via an LED on the MCM10 (Æ Tab. 9, page 14).
| Situation | Operating status contact |
| Current on, no fault | ![]() |
| Current on, fault | ![]() |
| No current |
Tab. 8 Operating status contact
This is a dry contact that carries a maximum current of 2 A at 120 V AC.
The remote fault indication is enabled when the power supply to the MCM10 module is interrupted (master) (function check).
Electrical connection of the outdoor temperature sensor
In conjunction with heating system controls with 2-wire BUS control, always connect outdoor temperature sensor to the MCM10 module (master) (Fig. 12, page 19) and not to the heating appliance.
Electrical connection of the supply temperature sensor
For system version 1, the common supply temperature sensor must be connected to the WM10 (Æ installation instructions for WM10) and for the system versions 2, 3, 4, and 5, to the MCM10, terminal E (Æ Fig. 12, [18], page 19).
Electrical connection of the external switching contact
If an external switching contact must be connected, the bridge on the plug must be removed first.
Disposal
- Dispose of packaging in an environmentally responsible manner.
- When replacing components, dispose of the old parts in an environmentally-responsible manner
Installing other accessories
- Install accessories according to the legal requirements and the installation instructions supplied with them.
- The BUS subscribers RC35, WM10, and MM10 must be connected to terminal J (Æ Fig. 12,).
Start-up and shut-down
Configuration
With this configuration, the control characteristics of the MCM10 module (master) are adapted to the specific heating system.
The MCM10 module is configured automatically:
- during the first start-up of a MCM10 module,
- during a restart following a reset of the configuration ( paragraph 4.3).
Configuration takes at least five minutes. During configuration, the LEDs
associated with the connected heating appliances and possibly the LED to indicate BUS communication
(
Tab. 9) flash. Configuration is completed and saved to the MCM10 when LEDs stop flashing.
Any configuration saved remains in the memory, even in case of power failure.
If, after configuration, a heating appliance (or a MCM10 module) is temporarily shut down during active operation (e.g. for maintenance), the LED
allocated to that heating appliance or the LED to indicate BUS communication
begins to flash. Following a restart, the heating appliance (or the MCM10 module) will be recognized, and the associated LED stops flashing.
Troubleshooting in case of faults becomes more difficult if the saved configuration does not match the actual configuration of the heating system.
Execute a reset after any intended/ remaining modification of the system configuration (Æ section 4.3) to save the new system configuration in the MCM10 module (master).
Commissioning
The cascade configuration is set during startup and after a reset ( paragraph 4.1).
Monitor the LEDs during configuration to detect cable breaks or wiring faults.
- Ensure the correct connection of all heating system components.
- Provide the power supply (120 V AC) for all components of the heating system, except for the MCM10 modules.
- Start all heating appliances (switch ON).
- Provide the power supply via the power plug of the (first) MCM10 module. If appropriate, the configuration will then begin. This will take at least 5 minutes.
- Make the necessary adjustments on the individual BUS subscribers in accordance with their installation instructions.
Configuration reset
The heating system configuration is saved in the MCM10 master. Resetting the MCM10 master deletes the entire configuration (including from the other MCM10 modules).
Resetting the configuration deletes the system configuration stored in the MCM10 module. During the next start, the current system configuration is saved to the MCM10 module.
- Interrupt the power supply to all MCM10 modules.
- Open the MCM10 module cover (master) ( Fig. 6).
- Remove jumper (Æ Fig. 3, page 9).
- Ensure the correct connection of all heating system components.
- Provide the power supply (120 V AC) for all components of the heating system, except for the MCM10 modules .
- Start all heating appliances (switch ON).
- Provide the power supply via the power plug of the (first) MCM10 module
CAUTION: Malfunction!
When using system version 2 or 3, ensure the correct position when reinstalling the jumper.
- Reinstall the jumper (Æ Fig. 3, page 9). Configuration starts. This will take at least 5 minutes.
- Close the MCM10 module cover (Æ Fig. 6,).
Shutting down
WARNING: System damage due to frost.
Ensure frost protection if the heating system is to remain out of use for longer periods ( heating appliance installation instructions).
To take the heating system out of use:
- Interrupt the power supply to all MCM10 modules and all heating appliances.
Operating and fault indications
Operating state and faults can be indicated in four different ways:
- via the heating appliance displays;
- via the remote fault indication;
- via the LEDs on the MCM10 module;
- via the display of the RC35 system controller.
Operating and fault indications via the heating appliance displays
The operating and fault indications for each heating appliance can be checked via the heating appliance displays. For further details about the operating and fault indications, see the heating appliance documentation.
Fault message via the remote fault indication
For example, a fault indicator can be connected to the zero volt fault contact (Æ paragraph 3.2.3, page 12). The state of the remote fault indication is also shown via an LED on the MCM10 ( Tab. 9).
Operating and fault indications via LED
Generally, three different states in the overall system can be identified:
- Configuration (during start-up and after a reset);
- standard operation;
- fault
Depending on the state of the overall system, the LEDs on the MCM10 module (Æ Fig. 10, page 14) provide indications about the operating and fault state of individual components, and thereby enable specific troubleshooting (Æ Tab. 9).

Fig. 10 Operating and fault indications via LED
- Line voltage (green)
- Heating pump (secondary zone) (green)
- Switching contact for remote fault indication 120 VAC (red)
- Communication between MCM10s (green)
- Heating appliance 1 (green)
- Heating appliance 2 (green)
- Heating appliance 3 (green)
- Heating appliance 4 (green)
| LED | OFF | ON | Flashing | ||||
| No. | Function | Diagnosis | Remedy | Diagnosis | Remedy | Diagnosis | Remedy |
![]() | Line voltage | Fault: No line volt- age. | Check power supply. Replace MCM10 module. | Operation: Standard operation. | – | ||
![]() | Heating pump | Operation: Pump OFF | Operation: Pump ON. | – | |||
| Fault: Pump will not start although the LED is ON, as the fuse for pump out- put has blown. | Replace fuse (à paragraph 5.5, page 17). | ||||||
Tab. 9 Operating and fault indications on the MCM10 module
| LED | OFF | ON | Flashing | ||||
| No. | Function | Diagnosis | Remedy | Diagnosis | Remedy | Diagnosis | Remedy |
|
| Switching contact for remote fault indication 120 VAC | Operation: Switching contact not activated; not a fault. | – | Fault: no heating appliance attached to the MCM10 operational. | Remove fault(s) on the heating appliance(s). | ||
| Fault: Switching contact activated, but no line voltage. | Check power supply. Replace MCM10 module. | Fault: Supply temperature sensor defective. | Check temperature sensor on the MCM10 master and its lead. Replace the MCM10 module. | ||||
| Fault: System pressure too low. | Add water to the system. | ||||||
| Fault: no communication between the MCM10 module and all connected heating appliances for at least 1 minute. | Check the corresponding connection cable. Replace MCM10 module. | ||||||
![]()
| Communication | Operation: No communication between this MCM10 module and the previous module or the heating controller (2-wire BUS). | Standard operating mode with only one MCM10 module or with the MCM10 master without 2-wire BUS control- ler. | Operation: Communication between this MCM10 module and the previous module or the heating controller (2-wire BUS). | – | Configuration: Communication between this MCM10 module and the previous module or the heating controller (2-wire BUS). | Wait until the con- figuration has completed. The LED will then be illuminated steadily. |
| Fault: No communication between this MCM10 module and the previous module or the heating controller (2-wire BUS). | Check the corresponding connection cable. Replace the MCM10 module or heating controller. | Fault: No communication between this MCM10 module and the previous module or the heating controller (2-wire BUS), although these components are installed. | Check the corresponding connection cable. Replace the MCM10 module or heating controller. | ||||
| Fault: No communication between this MCM10 module and the previous module or the heating controller (2-wire BUS) because these components have been deliberately removed | Reset the configuration (à paragraph 4.3). | ||||||
| LED | OFF | ON | Flashing | ||||
| No. | Function | Diagnosis | Remedy | Diagnosis | Remedy | Diagnosis | Remedy |
| 5, 6, 7, 8
| Heating appliance 1 heating appliance 2 heating appliance 3 heating appliance 4 | Operation: No heat demand to the heating appliance; heating appliance operational | – | Operation: Heat demand to the heating appliance; heating appliance in operation | – | Configuration: Communication between this heating appliance and the MCM10 module. | Wait until the con- figuration has completed. |
| Operation: No heating appliance connected | – | Fault: Heating appliance fault | Remove fault on the heating appliance. | ||||
| Configuration/ Fault: No communication between the MCM10 module and this heating appliance, although it is installed. | Check the corresponding connection cable. Remove fault on the heating appliance. Replace MCM10 module. | Fault: No communication between the MCM10 module and this heating appliance because it has been deliberately removed. | Reset the configuration | ||||
| Fault: Communication error between the MCM10 module and heating appliance. 1) | Check the corresponding connection cable. Replace MCM10 module. | ||||||
Tab. 9 Operating and fault indications on the MCM10 module
1) Another heating appliance will be enabled automatically in case of heat demand.
Operating and fault indications via the RC35
The operating and fault indications of all heating appliances and the MCM10 module can be checked on the heating controller with 2-wire BUS control. The meaning of the display indications of the MCM10 are described in table 10. The meaning of the other display indications are described in the documentation for the controller and the boiler.
| Indicator | Description | Remedy |
| 5H | Break in BUS communication | • Display with fewer than 4 heating appliances. • Check connecting cable between the boiler and the MCM10 module for cable breaks. • Check whether the cable makes good contact. • Check whether this fault originates from a boiler (boiler installation instructions). • Replace MCM10 module. |
| 4U 4Y | The contacts for the supply sensor have been interrupted (4Y) or have shorted (4U). |
|
| EF | Internal electronic fault |
|
| 8Y | The external switch contact is open. |
|
| AE | Jumper configuration error. |
|
| AU | The calculated boiler water temperature is not achieved in timely fashion. |
|
| AY | An error has occurred on one or more heating appliances. |
|
Tab. 10 Operating and fault indications via the RC35
Replacing the fuse for the heating zone pump connection
- Interrupt the power supply.
- Open the MCM10 module cover (master) (Æ Fig. 6, page 6).
- Replace fuse [1] with one of the same type (5 AF, ceramic, filled with sand). A spare fuse [2] is provided in the MCM10 module cover.

Fig. 11 Replacing the fuse
- Close the MCM10 module cover (Æ Fig. 6, page 6).
Environmental protection
Environmental protection is a corporate principle of Buderus.
We regard quality of performance, economy and environmental protection as equal objectives.
Environmental protection laws and regulations are adhered to strictly.
To protect the environment, we use the best possible technology and materials taking into account economic points of view.
Packaging
For the packaging, we participate in the country-specific recycling systems, which guarantee optimal recycling. All packaging materials used are environmentally-friendly and recyclable.
Old appliances
Old appliances contain resources that must be submitted for recycling.
The components are easy to separate and the plastics are marked. This allows the various components to be sorted for appropriate recycling or disposal.
Appendix

I MCM10 No. 1 (master)
II MCM10 No. 2 (slave)
III MCM10 No. 3 (slave)
IV MCM10 No. 4 (slave)
1…16 Heating appliance
17 Low loss header
18 Common supply temperature sensor FV
19 Heating pump
20 Fuse for heating zone pump connection
21 Replacement fuse
22 Heating zone
23 Jumper
A Main power connection
B Power supply for additional modules MCM10
C Heating zone pump connection
D Remote fault indication connection
E Supply temperature sensor (FV) [1-2]
F Outdoor temperature sensor (FA) connection [3-4] 1)
G Connection of external switching contact [5-6] 1)
H ON/OFF contact connection [7-8] 1)
I Building management system (0 – 10 V interface) connection [9-10] 1)
J Heating controller with 2-wire BUS control connection [11-12] 1)
K Connection from the previous MCM10 module [13-14] 1)
L Connection to the next MCM10 module [15-16] 1)
M Connection of heating appliances [17-18, 19-20, 21- 22, 23-24] 1)
Bosch Thermo technology Corp.
50 Wentworth Avenue
Londonderry, NH 03053
Tel. 603-552-1100
Fax 603-584-1681
www.buderus.net

































