Crestron Electronics UC-B31-T-WM Crestron Flex Small Room Conference System with Jabra User Guide
The UC-B31-T-WM Crestron Flex conferencing system provides a small room video conference solution for use with Microsoft Teams® Rooms software. It supports single or dual video displays and features a wall mount touch screen, UC bracket assembly, and smart soundbar and camera.
The firmware update for all connected peripherals is managed by the UC Engine and Windows Update.
- A video display (not included) connected to the UC Engine. A second display is optional.
- A Microsoft Teams Rooms provisioned account (not included)
In the Box
- Wall Mount Touch Screen
10.1 in. Wall Mount Touch Screen (6511975)
Mounting hardware - 1 Jabra® PanaCast 50 Video Bar (6512600)
UC Bracket Assembly
- UC Bracket Assembly with UC Engine and HDMI® content ingest (UC-BRKT-200-S-T-ASSY, 6512689)
- Anchor, Drywall, Plastic, 3/8 in. x 1/2 in. (9.5 mm x 12.7 mm) (2052565)
- Key, Anchor (4529654)
- Screw, 8-AB x 1-1/2 in. (38.1 mm), Pan Head, Combo (2052567)
- Tie Wrap (2047935)
Additional Items
- PoE injector (6502429)
- Cable, CAT6a, RJ-45 – RJ-45, 20 ft (6.1 m) (6507640)
- Cable, CAT5e, RJ-45 – RJ-45, 7 ft (2.1 m) (6509924)
- Cable, DisplayPort™ to HDMI, 6 ft (1.8 m) (6508282)
- Cable, HDMI, 20 ft (6.1 m) (6503567)
- Cable, HDMI, 6 ft (1.8 m) (6503565)
Crestron Flex Small Room Conference System with Jabra® PanaCast 50 Video Bar and Wall Mounted Control Interface for Microsoft Teams® Rooms
Mount Devices
Mount the UC Bracket Assembly
Mount the UC Bracket Assembly to VESA® compliant display devices, a wall, or other building structure. Anchors and screws are supplied for installation on walls 3/8 in. (9.5 mm) to 3/4 in. (19 mm) thickness.
CAUTION: Preinstalled screws may protrude from the back of the UC Bracket Assembly. Exercise caution when handling the UC Bracket Assembly to avoid scratching or damaging surfaces.
NOTE: The integrated cable tie wraps are reusable. Avoid damaging the cable tie wraps.
Mount the Soundbar with Camera
Mount the included Jabra PanaCast 50 soundbar with camera according to its included documentation.
Mount the Touch Screen
Mount the included touch screen according to the TSW-1070 Quick Start (Doc. 8552).
Crestron Flex Small Room Conference System with Jabra® PanaCast 50 Video Bar and Wall Mounted Control Interface for Microsoft Teams® Rooms
Connect
Identify the UC Bracket Assembly
The UC Bracket Assembly is available in two models. Identify the model included with your Crestron Flex system. Tap or click the corresponding image below to navigate to the appropriate connection instructions.
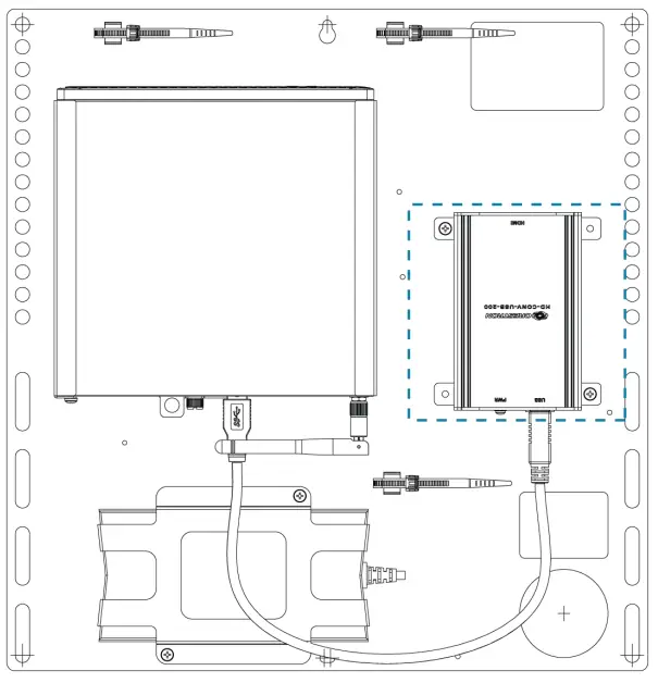
UC Bracket Assembly with HD-CONV-USB-200
UC Bracket Assembly with HD-CONV-USB-300
For UC Bracket Assembly with HD-CONV-USB-300
When connections are complete, the system appears as shown below. Refer to Make Connections for detailed connection instructions.

Make Connections
NOTE: For reference, the UC Bracket Assembly is shown with the HD-CONV USB-200 in the following connection diagrams. Unless otherwise indicated in this guide, the connections remain the same for the UC Bracket Assembly with HD-CONV-USB-200 and HD-CONV-USB-300.
- Make UC Engine connections as shown in the following illustrations. The touch screen can communicate with the UC Engine over a direct connection or a network connection. Select one of the connection types as described below.
- Make a direct connection for simple installation and setup. Only use the direct connect adapter to connect the touch screen’s PoE injector to the UC Engine. Do not use the direct connect adapter to connect the UC Engine to the network.
Direct Connection
- Make a network connection if the system is to be managed by the XiO Cloud® service.
NOTE: When a network connection is used, disconnect the direct connect adapter from the UC Engine.
Network Connection
- Make a direct connection for simple installation and setup. Only use the direct connect adapter to connect the touch screen’s PoE injector to the UC Engine. Do not use the direct connect adapter to connect the UC Engine to the network.
- Connect displays to the UC Engine.

- Connect the soundbar to the UC Engine as shown in the image below. Do not connect the soundbar to any of the other USB ports.

- Connect a laptop to the HD-CONV-USB-200 or HD-CONV-USB-300.
UC Bracket Assembly With HD-CONV-USB-200
UC Bracket Assembly With HD-CONV-USB-300 - Bundle the cables to the bracket assembly with the integrated cable tie wraps. The cable tie wraps are reusable.
Configure
Apply Power
Press the power button on the bottom of the UC Engine and apply power to all of the other devices in the system.
Configure the Touch Screen
NOTE: If a direct connection was made during installation, skip to Configure the System.
- On a computer, open a web browser to the IP address of the touch screen. Log in and navigate to Settings > Applications.
NOTES- The touch screen (via the PoE injector) and computer must be on the same network switch and VLAN.
- A login with administrative rights for the touch screen is required.
- Enter the following information in the appropriate fields:
- Teams Video PC Address: Enter the IP address or hostname of the UC Engine.
NOTE: The hostname is printed on a label affixed to the UC Engine (mounted on the UC bracket assembly - Teams Video PC Port: By default, port number 49500 is used. If a different port number has been configured on the UC Engine, enter that port number instead.
- Teams Video Username: Enter the login username for the UC Engine. (The default username is “admin”.)
- Teams Video Password: Enter the login password for the UC Engine. (The default password is “sfb”.)
- Teams Video PC Address: Enter the IP address or hostname of the UC Engine.
- Click Save Changes.
Configure the System
Use the touch screen and your Microsoft Teams credentials to configure the UC Engine. For detailed information on deploying Microsoft Teams Rooms, refer to the Microsoft Teams Rooms documentation.
Visit the Product Page
Scan the QR code to visit the product page.
Additional Information
Original Instructions
The U.S. English version of this document is the original instructions. All other languages are a translation of the original instructions. Crestron product development software is licensed to Crestron dealers and CrestronService Providers (CSPs) under a limited nonexclusive, nontransferable Software Development Tools License Agreement. Crestron product operating system software is licensed to Crestron dealers, CSPs, and end-users under a separate End-User License Agreement. Both of these Agreements can be found on the Crestron website at www.crestron.com/legal/software_license_agreement.
The product warranty can be found at www.crestron.com/warranty.
The specific patents that cover Crestron products are listed at
www.crestron.com/legal/patents.
Certain Crestron products contain open source software. For specific information, visit www.crestron.com/opensource.
Crestron, the Crestron logo, and XiO Cloud are either trademarks or registered trademarks of Crestron Electronics, Inc. in the United States and/or other countries.
Jabra is a trademark of GN Audio A/S in the United States and/or other countries.
HDMI is either a trademark or registered trademark of HDMI Licensing LLC in the
United States and/or other countries. Microsoft Teams is either trademark or
registered trademark of Microsoft Corporation in the United States and/or other
countries. DisplayPort and VESA are either trademarks or registered trademarks of
Video Electronics Standards Association in the United States and/or other countries.
Other trademarks, registered trademarks, and trade names may be used in this
document to refer to either the entities claiming the marks and names or their products. Crestron disclaims any proprietary interest in the marks and names of
others. Crestron is not responsible for errors in typography or photography. ©2023 Crestron Electronics, Inc.
Doc. 9192B
01/12/23
![]()
References
Software License Agreements (Embedded Software and Software Tools) [Crestron Electronics, Inc.]
UC-B31-T-WM [Crestron Electronics, Inc.]
Open Source Software [Crestron Electronics, Inc.]
Microsoft Teams Rooms - Microsoft Teams | Microsoft Learn
Installation | TSW-70 Series Manual
Open Source Software [Crestron Electronics, Inc.]
Patents [Crestron Electronics, Inc.]
Software License Agreements (Embedded Software and Software Tools) [Crestron Electronics, Inc.]
UC-B31-T-WM [Crestron Electronics, Inc.]
Standard Terms & Conditions and Warranties [Crestron Electronics, Inc.]
























