Astro GBA ST2 Global Bill Acceptors

This document is the copyright of Astrosys International Ltd. and may not be reproduced in total or in part by any means, electronic or otherwise, without the prior written consent of Astrosys International Ltd.
INTRODUCTION
This manual describes the operation and maintenance of the GBA ST2 bill validator and stacker. It is intended to assist the user in the set-up, installation and operation of the product. If you have any questions about this or any other Astrosys products then please visit our web sites at www.globalbillacceptors.com and www.microcoin.com, or contact your regional sales office for assistance. The GBA ST2 has been specifically designed for retrofit into all applications previously served by the GBA stacker less product range. It is also designed for the rigours of the amusement and gaming markets and can be used in all applications. The following features are also offered:
- All new “Sense Technology” note discrimination
- Up to 32 different notes accepted with 4 way insertion
- Accepts note sizes from 62 to 85mm wide, 112 to 183mm long
- Blue illuminated runway note guide fitted as standard
- Various faceplate and bezel options to suit host machine
- Integrated optical and mechanical anti-string protection
- Bar code reading option
- USB connectivity and programming option
- Supports multiple interfaces
- Single note escrow
- 12 Volt (+/- 10%) operation with brown-out protection
- Commercial “plug pack” power supplies supported
- On board Individual note enable / disable
- Automatic optical sensor calibration
- On board tri-colour diagnostic LED
- Easy access to note path for servicing and cleaning, top path completely removable
- User Support Tools
- CE, UL, C-Tick and ROHS compliant
- Manufactured to ISO 9001 standards
Please note that the words “bill” and “note” are used interchangeably in this document to imply a single piece of paper currency.
PRODUCT INFORMATION
General Specifications
- Bill Insertion: Up to 32 bill denominations with 4 way insertion
- Bill Dimensions: 62 to 85mm wide; 112 to 183 mm long
- Bill Acceptance Rate: Typically 98%
- Cycle Time for Validation: Approximately 2 seconds
- Interface Protocols Supported: Pulse, Parallel, ccTalk® (plain & encrypted), bidirection serial (“RS232”), NAMA MDB, SSP, VCCS
- Power Supply: 12Vdc +/-10%
- (Note: Centre positive for the DC power jack)
- Power Consumption (Validating): 800mA @ 12V
- (Idle): 200mA @ 12V
- Environmental Range (Operating Temp): 0° to 60°C
- (Operating Hum): Up to 95% R.H., non-condensing
- (Storage Temp): -10° to 65°C
Product Architecture
Build Options
Note Guide
Note guides are available in an illuminated, flashing style. The standard note guide has bright blue Led’s, but it is also available with red, green or yellow LED’s. The note guide can be configured in a number of options, to provide specific information to the user / technician.
Note guides of specific widths are fixed to the note guide common assembly and to the internal path of the lower sensor assembly, to suit the different range of note widths of particular currencies. For information about the most appropriate design for your currency please contact your local regional office.
Faceplate / Bezel options
Faceplates and bezels are available in five styles, to suit the host machine, please see details below. Please note that for currencies containing note denominations over 82mm, the Wide Compact Bezel must be used.
External Note Drive Unit
The ST2 can be fitted with an optional note drive unit at the rear. This option is aimed an installation where there is limited space to stack the notes behind the ST2 and the notes can pile up against the note path exit. The drive unit forces the notes into the cash box, allowing more notes to be stored in it. And if the cashbox has become so full that the notes are piled up behind the ST2 exit, it prevents them from being entangled with the next note inserted and returned by accident. The external drive prevents the rollers from turning backwards and prevents accepted notes from being fished out (on purpose or accidentally). The drive unit can be fitted with an optional deflector plate, so that it can be fitted in situations where there is no room at the back, and notes must be driven down vertically – or if it just suits the application better that way.
External Drive Arrangements
On-board Power Regulator
The GBA ST2 can be supplied with an optional power regulator fitted internally, to accept supply voltages up to 50 Volts dc. The power supply must be connected to the 20-pin connector.
Bar-coded Coupon Sensor
The ST2 can be fitted with a sensor for detecting and reading the barcodes on a printed coupon. The sensor uses green light, so it can readily read thermally printed coupons. The sensor can only scan one face of the coupon, so the coupons must be inserted with the barcode facing upwards. The bar-coded coupons should be a similar size to the wider notes that the validator handles.
At present, only the ccTalk and GBA BSCP protocols provide the host with commands to read back the content of the barcode as a text string.
Further details on the barcode reading function, including bar code printing sizes and the codes read, are available from your regional Sales Office.
Magnetic Sensor
Some currencies, such as US Dollars and Euros, use magnetic inks in the bank note. The optional magnetic sensor scans for a magnetic signature, and can provide additional protection against frauds. Currency datasets which contain magnetic signal details are denoted by the letter “C” in the ST dataset designation, e.g., ST2 N99C100.STX.
Anti-Fraud Features
The ST2 design incorporates a solenoid-actuated mechanical gate at the end of the note path. This closes behind the note after it has been validated, and prevents attempts at fishing the notes back out again. There is also an optical string detection sensor at the back of the unit, which looks for string, tape or other foreign objects behind the bank note. If such a string is detected, the note is returned without any credit given, which keeps the ST2 in service for further customers. The check is only run after the note has been validated and the mechanical gate closed, which protects the system from any bright light shone down the note path.
Both these features are fitted as standard.
Interface Cable Assembly
The GBA ST2 is fitted with a 20 pin interface connector. All interfaces utilise this connector for communication to a host machine. For further details relating to interface and connection information, please refer to section 8.0 – Electrical Connections.
MECHANICAL CONFIGURATION
Faceplate and Bezel Fitting / Removal
Faceplate Fitting / Removal
Refer figure 3.1.1
To remove the faceplate / bezel, gently push the two purple bezel retainer buttons inwards until they are in contact with the validator. With these depressed, pull on the faceplate / bezel to remove from its locking stage. To fit the faceplate / bezel, simply insert the two black locating legs into the holes and push fully until you hear a loud clipping sound. Pull fully on the faceplate / bezel to ensure correct fitment.
Refer figure 3.1.1
Note Guide Fitting/Removal
Refer figure 3.1.2
To remove the note guide first remove the faceplate / bezel. Push together the two sides of the note guide and pull away from the validator. To fit the note guide, please ensure that the four pins locate fully into the four connection holes, and then push the note guide so the clips are secure.
Note Guide Plate Fitting / Removal
The note guide uses note guide plates to aid insertion of the notes inserted. As listed above, these are available in a number of sizes, dependant on currency required. To remove these from the GBA ST2 you will first need to remove the note guide as per 3.1.2. To remove the plates, push down on the side of the plate and (if looking at side of note guide) twist it away from the note guide. To refit the note plate, insert the two location legs into the holes and push down.
INTERFACE PROTOCOLS
The GBA ST2 can communicate with a host (machine) via one of seven base interface protocols. These protocols are;
- Pulse
- Parallel
- ccTalk®
- Bi-Directional Serial Protocol (BSCP or “RS232”)
- SSP (Smiley Secure Protocol)
- NAMA MDB (vending specific protocol)
- JVI/VCCS (vending specific protocol)
Variants to some of these protocols are also available; please contact your regional office for further details.
The GBA ST2 is connected to the host machine using a cable assembly terminated with a 20-way connector, as denoted in section 8.0 – Electrical Connections.
NAMA MDB
If the GBA ST2 is used in an MDB interface application, an alternative interface cable assembly is required to connect to a standard NAMA 6 pin connector.
Part Number: HST2MDB20 Please contact Technical Support for details.
CCTALK®
When the validator is used in a ccTalk® interface application, an alternative 20 pin harness is available if the host controller uses a single data line for communications both to and from the validator.
Part Number: ASY-W-10265
Please contact Technical Support for details.
For further details relating to the operation of specific interfaces please refer to the Interface Description Manual.
USB
The GBA ST2 can be offered with an optional USB interface. The USB mini-AB socket is fitted on the right hand side of the unit. The USB interface can be used to connect directly to a USB PC host, where it then acts as a USB / serial comms port, and can be used to communicate with the BSPC-RS232, SSP and ccTalk protocols. The GBA USB Driver will need to be installed; please contact your regional office for a copy, and specify which version of Windows you are using. The USB port is also used to connect a USB memory device for updating the ST2 firmware, note dataset and configuration.
SOFTWARE CONFIGURATION
The GBA ST2 can be configured using either the on-board push button, USB memory stick, or via a Windows based PC package – GBA Tools.
On-board Push Button
The on-board push button is located on purple lid of the unit, next to the diagnostics LED. This allows access to on-board programming modes including note enable, note disable and Primary Calibration / Configuration. A single long press of more than 2 seconds will cancel the programming mode. In the note enable and disable modes a sample note must then be presented for scanning. If the operation is successful the validator will return to normal operation mode. If it is unsuccessful, it will remain in the program mode. If the push button is held for more than 5 seconds an error is reported (LED solid red).
Configuration Procedure – Enable Note
Procedure
- Push button x 1, the rear diagnostic LED will flash green rapidly.
- Insert the specific denomination required to be enabled.
- The GBA ST2 will take the note in and then return it.
- Enable complete. The rear diagnostic LED will return to solid green.
Configuration Procedure – Disable Note Procedure:
- Push button x 2, the rear diagnostic LED will flash red rapidly.
- Insert the specific denomination required to be disabled.
- The GBA ST2 will take the note in and then return it.
- Disable complete. The rear diagnostic LED will return to solid green.
Configuration Procedure – Programming Card Equipment Required;
Program Card. (PC software is available to print these cards. Please consult your local sales office)
Procedure;
- Push button x3, the rear diagnostic LED will flash orange rapidly.
- Insert the Program Card into the reader.
- The Program Card will be taken into the validator and held for a small period of time, then returned in one smooth movement
- Configuration is complete.
- If programming has not been successful, the diagnostic LED will repeatedly flash a 4 colour error code until the push button is pressed to cancel. Otherwise it will return to steady green/orange.
Note: Please ensure the programming card has been printed on a high quality printer with good solid black lines on the card.
Configuration Procedure – Re-Calibration
Although calibration of the GBA ST2 is not a necessity it is recommended periodically for preventative maintenance, and also after any change to the software configuration of the unit.
Equipment Required Calibration Papers:
Synthetic White Paper – 2 chamfered corners, Part Number ASY-W-10268 for units with US or Canadian note guides, Part Number ASY-W-10311 for units with wider note guides Black calibration card
Procedure;
- Push button x3, rear diagnostic LED will rapidly flash orange.
- Insert the white calibration paper into the reader. It should be presented in the centre of the note path and square to the direction of travel.
- The unit will draw-in the paper all the way into the cassette; hold it momentarily before returning it in several short steps.
- Remove the calibration paper from the note entry point.
- Insert the Black calibration card.
- The unit will draw-in the card and return it immediately in one smooth action
- Calibration is complete
- If calibration has not been successful, the diagnostic LED will repeatedly flash a 4 colour error code until the push button is pressed to cancel. Otherwise it will return to steady green/orange.
Note: Please ensure the ST2 calibration paper has 2 chamfered corners.
Calibration Error Codes:
| Status / Fault | Flash 1 | Flash 2 | Flash 3 | Flash 4 | Comments |
| Calibration aborted | Red | Red | Red | Red | |
| Eeprom fault | Red | Red | Green | Green | |
| Sensor Errors | |||||
| Transmissive sensors | If there is a problem, try cleaning the lenses. | ||||
| Wide Left | Red | Red | Green | Red | |
| Wide Right | Red | Red | Red | Green | |
| Middle Left | Green | Green | Green | Red | |
| Middle Right | Green | Green | Red | Green | |
| Narrow Left | Green | Green | Red | Red | |
| Narrow Right | Green | Red | Green | Green | |
| Reflective Sensors | |||||
| Upper Right | Green | Red | Green | Red | |
| Upper Left | Green | Red | Red | Green | |
| Lower Right | Green | Red | Red | Red | |
| Lower Left | Red | Green | Green | Green | |
| Coupon | Red | Green | Red | Red | |
| Other sensors | |||||
| Optical Anti-String Gate | Red | Green | Red | Green | |
| Magnetic | Red | Green | Green | Red | |
| Front Left Sensor | Red | Green | Green | Orange | |
| Front Right Sensor | Red | Green | Red | Orange | |
| Other Errors | |||||
| Length error | Red | Red | Green | Orange | |
| Mechanical Gate problem | Red | Red | Orange | Green | |
| Paper feed fault | Red | Red | Orange | Red | Try reinserting the paper carefully |
| Paper length too short or tacho fault | Red | Green | Orange | Red | |
| Calibration paper skewed | Red | Orange | Green | Orange | Paper was inserted at an angle |
| Calibration paper dirty | Red | Orange | Red | Orange | Or crinkled. Use a new piece. |
| Program Cards | |||||
| Error on program card | Red | Red | Red | Orange | Try reprinting the card |
| Program card not supported | Red | Orange | Orange | Green | The program card function is not supported by the ST2 |
| Future Use | Red | Orange | Orange | Red |
PC Based GBA Tools
The GBA ST2 can also be configured using our PC based software, GBA Talk, which also provides calibration and diagnostic functions.
Note: for full instructions on using GBA Talk, refer to the utilities help file.
Configuration Procedure – GBA Talk PC Software
Equipment Required;
GBA Talk Kit, consisting of PC software, Diagnostic harness and 20 pin harness.
Note: the 20 pin harness must contain a 4 pin socket connected to pins 18, 19 and 20.
Procedure;
- Connect the GBA ST2 to the PC by placing the diagnostic harness into the DB9 connector of the PC, and the 4 pin connector into the 4 pin plug of the 20 pin harness.
- Alternatively, you can connect the validator using a USB to serial converter, such as the VAL364 USB module. Please contact Technical Support for details.
- With GBA Talk open, select “Upload” to see on screen the current configuration of the validator.
- Make the required changes by using the form controls, and then select the “Set All” button, to send changes to the validator.
- To complete the procedure, carry out the calibration process by selecting “Calibrate” from the Calibration window.
USB Mass Storage Device
The GBA ST2 validator is optionally supplied with a USB interface, which can be used to reprogram a unit from a USB Mass Storage Device (memory stick). Those validators with a USB interface are fitted with a mini-AB receptacle.
Connecting a USB Mass Storage Device
Most USB memory devices are fitted with a standard-A plug, which fits the standard sockets on a PC. To connect the memory device to a validator requires a suitable adaptor cable. One solution is to use a cable with a USB standard-A plug at one end and mini-B plug at the other (these are widely used for connecting PC’s to music players and cameras) and a USB standard-A female to female connector (also widely available). Power up the validator, plug the cable into the validator, fit the connector to the other end of the cable and then plug the memory device firmly into the connector. The memory device should be a conventional USB memory device (i.e. with no novelty features), formatted by Windows in a FAT format, not NTFS. To find out what format has been used, in Windows Explorer select the device, right click and select “Properties”. On the “General” tab, the type should be described as “Removable Device” and file system as “FAT”. Devices with smaller capacities tend to work more reliably. Also the files must not be encrypted in any way.
File location on the memory device
The validator files should be stored in the root directory of the memory stick. This will appear as “F:\” or similar letter in “My Computer” on a Windows™ PC. The files should not be put in any folder, as the validator will not find them. Older and smaller devices have a limit on how many files can be stored in the root directory (typically 512).
In the root directory you can store one firmware file, one dataset file and one configuration file that matches the country code of the dataset. A Setup USB wizard tool is available within the GBA Talk PC software to help you with this. It is not necessary to have all of these files. You can, for instance, just have a new configuration file on the device and just that will be loaded.
Procedure
- When the validator detects that a USB device is connected, it will attempt to identify it. If it can successfully identify it as a memory device, it will then check it, otherwise an error is given.
- While the validator is reading the memory device, the diagnostic LED will flash orange/green alternately. The speed of flashing will reflect the speed at which the individual device communicates.
- The validator then searches the root directory for a firmware file (this has the suffix “phy”). If it finds one, it then checks the firmware version number. If the version number is different from the current firmware (whether higher or lower) it will load that firmware and then restart. Once it has restarted it will check the memory device for other files.
- If more than one firmware file is found, the validator stops reading the memory device and goes into an error state.
- If it finds no firmware files, it proceeds directly to the next stage.
- It next checks for a dataset file (suffix “stx”) and loads that. The dataset file name should be in the form “ST2 06 N0419100.stx”. Again, if there is more than one dataset file, the validator will stop reading and go into an error state. Also, if the validator determines that the dataset format is not compatible with the current firmware version, it will not download the dataset.
- Once the dataset is loaded, the validator then looks for a corresponding configuration file. The file name will be in the form “06_201_M00.xml”. The first 2 characters are the currency code and must match the second block of characters in the dataset filename.
- Again, if the validator finds more than one configuration file for that currency, it will enter an error state.
- Note that dataset and configuration files are issued by AstroSystems with the correct naming convention names.
- Once the validator has finished, it will repeatedly flash a 4 colour code on the diagnostic LED at the back, indicating either success or failure, until the memory device is disconnected. The success/error codes are shown below.
USB Download Error codes displayed by the diagnostic LED:
| Status / Fault | Flash 1 | Flash 2 | Flash 3 | Flash 4 |
| Success | Orange | Green | Green | Green |
| On board Faults | ||||
| Fault with validator USB interface | Orange | Red | Red | Orange |
| Bus Error (Slave and Host pins high) | Orange | Red | Red | Red |
| USB Download Disabled | Orange | Red | Red | Green |
| Device Faults | ||||
| USB Device not recognised | Orange | Orange | Red | Green |
| Cannot read MST Boot Sector | Orange | Orange | Red | Orange |
| Error reading MST | Orange | Orange | Red | Red |
| File faults | ||||
| Too many dataset files found | Orange | Orange | Orange | Green |
| Error in dataset file | Orange | Orange | Orange | Orange |
| Too many configuration files found | Orange | Orange | Orange | Red |
| Error in configuration file | Orange | Orange | Green | Green |
| Too many firmware files found | Orange | Orange | Green | Orange |
| Error in firmware file | Orange | Orange | Green | Red |
| Firmware does not support this dataset | Orange | Red | Orange | Orange |
Software Configuration Options:
All of the software options below can be set using either the GBA Talk PC software, a configuration file on a USB Mass Storage Device or Program Card facility, as mentioned above. Two kinds of program card are available. Firstly a card to set all common options (all options must be specified) and secondly individual, specific option cards that will set only key options such as security level, ccTalk® Encryption Key or Note enable / disable.
Security Settings
Security settings can be set individually for each note, and gives the option to apply higher security to higher denomination notes.
Validation Security Level
The ST2 supports 4 levels of security: Low, Standard, High and Highest. Higher levels reduce the risk of the ST2 accepting a good fraud, but can reduce acceptance of real notes. Highest security level is only suggested for situations where there is a known fraud note situation at a site.
Use Magnetic Sensor
In units fitted with the optional magnetic reader head, the magnetic signal check can be turned on or off for each note.
Operational Settings
Low Power Mode: This mode is intended for using the GBA ST2 in battery powered applications. It is anticipated that the unit is powered up only when a customer wants to present a note, e.g., by lifting up a flap, then the validator is powered down once transaction completed. The ST2 will skip its usual motor and solenoid checks at power up, and start scanning the note immediately. It is up to the host controller to switch off the ST2 when the transaction is complete. It is recommended that the “Inhibit Control Input” (pin 11) is permanently grounded if this option is used.
If the validator is running the ccTalk protocol, then the validator behaves slightly differently at power up:
- The validator starts up enabled and will scan a note immediately.
- All notes are automatically enabled
- The “Validator Busy Output” (pin 3) is pulled low, and can be used to signal to the host machine that the validator has been woken up.
- On Board Push Button Functionality: the push button functions (see section 5.1) can be disabled, except for calibration. If user presses the push button for these functions, the diagnostic LED will flash red twice and the operation is cancelled.
- Push Button Calibration: the push button option to calibrate the validator can also be disabled, but only if the other push button functions are also disabled.
- Check for Bar-coded Coupon: if the optional coupon sensor is fitted, then the ST2 can scan for a valid bar code. The Bar Code type can also be specified e.g. 2 of 5 interleaved.
- Allow Download from USB memory Device: if the USB interface is fitted, the ability to download new firmware, datasets and configuration settings can also be disabled.
- Ignore Mechanical Anti-String Gate Status: In normal operation, if the mechanical gate is seen to open unexpectedly, or fails to close after a note is scanned, the ST2 raises an alarm and will go out of service until the gate returns to its expected state. This feature can be disabled.
- Optical Anti String Gate and Anti-Fraud Settings
- The operation of the optical anti-string gate is controlled by a number of parameters:
- Number of String Attempts Before Lockout and Lockout Period: if the ST2 detects a number of consecutive string attempts which exceeds a specified limit, then it will give an Alarm signal and go out of service for a specified period (in minutes) to discourage a potential fraudster. The configuration will also specify whether the last note is returned before the ST2 goes into lock-out, or after the lock-out period has expired. If the lock out period is set to zero, the ST2 will give an alarm but not go out of service. If the string attempts limit is set to zero, the ST2 will not use this feature.
- OASG Sensitivity: This optical gate sensitivity can be set to Low, Standard, High or Disabled.
- Two notes returning test: the ST2 can record the thickness of the note going in, and compare this with sensor readings as the note is returned. The test is designed to detect when a fraudster has found a way to pull a second note out of the cash box when the first is being legitimately returned. If the ST2 believes that two notes are being returned, it will reverse direction and try to dump the unwanted note out the back. If it cannot get rid of the second note after two attempts, both notes are stacked.
This option can be turned on for all occasions when a note is returned, or only if the previous note had not cleared the ST2 exit when the next note was inserted. The second option is aimed at the situation where the cashbox has become so full that the notes are piled up behind the ST2 exit and may become entangled with the next note inserted. - Interfaces
The GBA ST2 can be used with the following interfaces:
- Pulse
- Parallel
- RS232
- MDB1
- ccTalk® Non Encrypted2
- ccTalk® Encrypted3
- Parallel XT
- Parallel Binary
- Smiley Secure Protocol (SSP)
- JVI/VCCS
Further information on the above can be found in the relevant Interface Description Manuals, which include details on the various settings supported by each interface.
Note: MDB interface requires the use of a dedicated interface harness to connect to a standard NAMA 6 pin connector. Please contact your distributor or regional office for details.
Note: ccTalk® interface requires the use of a dedicated interface harness to connect to the standard 10 pin connector. Please contact your distributor or regional office for details.
ccTalk® Encryption Key Reset:
Should a validator require replacing in an Encrypted ccTalk® application, the Encryption key will require resetting to the default in both the host machine and the note validator. This is achieved, on the note validator, by use of the ccTalk® Encryption Key Reset Programming Card using the procedure described above, in “Configuration Procedure – Programming Card”. For resetting the host machine please refer to the machine user guide.
Flashing Note Guide Patterns
The flashing note guide units are pre-programmed with at least 5 different patterns. The LED’s are arranged in a runway or arrow formation with an independent border. The configuration can be used to set which pattern is used for each of 4 states for the ST2. The default settings are:
| ST2 State | Pattern |
| Out of Service – fault | All LED’s off |
| Not accepting notes at the request of the host controller. | Border ON, runway OFF |
| In service, waiting for a note | Border ON, runway LED’s running inwards |
| In service, handling a note | Border ON, runway LED’s flashing |
| Other Patterns: | Border ON, runway LED’s ON steady |
| Border FLASH, runway OFF |
Any existing pattern can be assigned to any of the 4 states
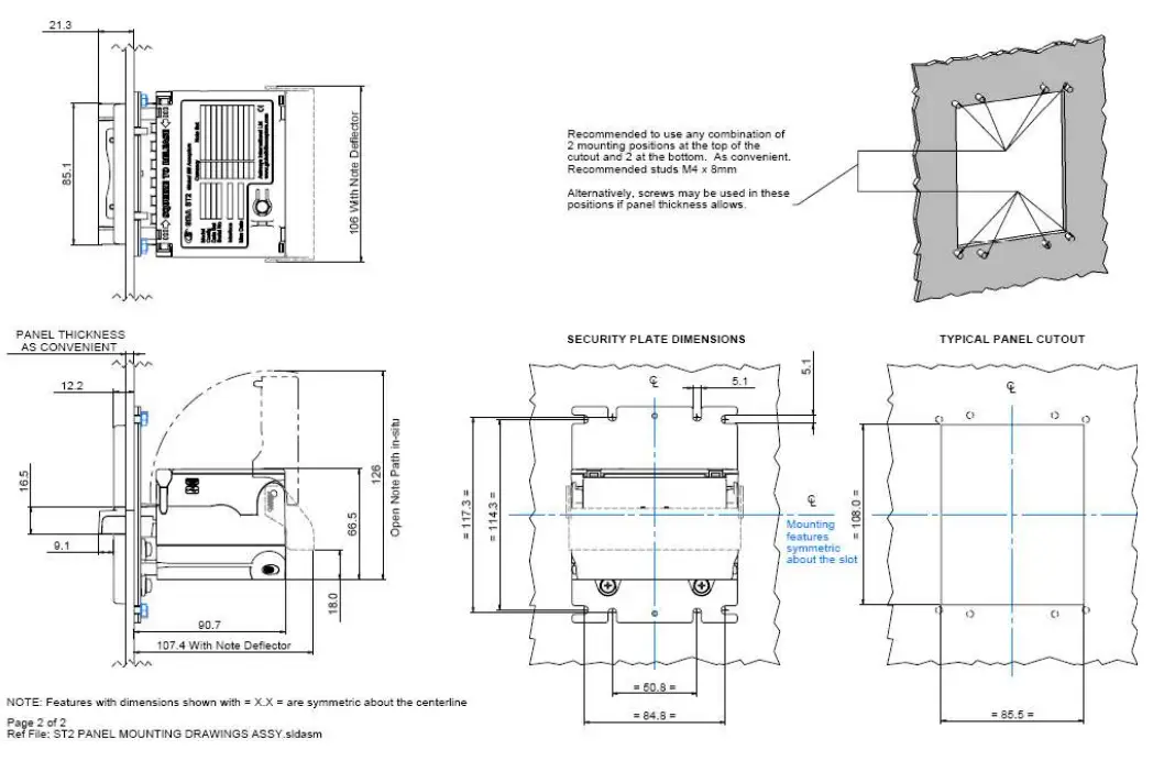
MECHANICAL INSTALLATION
With the faceplate (or bezel) mounted in the host machine, the GBA ST2 unit is simply clipped into place in the faceplate. Please note that the note guide must be fitted to the validator before inserting the validator into the faceplate. Details of product dimensions can be found at the end of this document.
ELECTRICAL INTERFACE SPECIFICATION
Power
Power Supply – 20-pin connector or jack socket
Supply Voltage: 12Volts DC +/- 10% Regulated3
Power Supply – Optional Power Regulator – 20-pin connector only
Supply Voltage: 11 to 50 Volts DC
Power Consumption
- Quiescent: 200mA
- Validating: 800mA
- Stalled: 1400mA
Brown-out protection
Minimum continuous supply voltage before validator processor shuts down: 8.0 Volts
Maximum length of interruption (0V) to supply before validator processor resets: 30 ms
Signal Interface
20-pin connector
Open Collector outputs;
- Maximum Open Voltage 40V
- Maximum Sink Current 50mA @ 12VDC
- Maximum Output Low Voltage: 0.4VDC
- Minimum Output High Voltage: 2.4VDC
- Input low level voltage: 0…. 1V
- Input high level voltage: 3…..12V (typically 3… 5V)
- Input pull up to 5V: 21K Ω
USB Connector
The ST2 is compliant as a USB 2.0 full speed host or device and is fitted with a USB mini-AB socket.
ELECTRICAL CONNECTIONS
Please note: care should be taken to avoid reversing the Ground and 12VDC connections, as this will cause damage to the unit.
| Pin | Parallel | Mars Serial | Pulse | Serial Interfaces1 | |
| 1 | Grey | /ABN Output | /ABN Output | /ABN Output | n.c. |
| 2 | Orange | n.c. | /Serial Select (Low) | Pulse (High) or n.c. | n.c. |
| 3 | White | /Vend 6 Output | /Busy | /Busy | n.c. |
| 4 | Yellow | /Escrow control | Clears /ABN and Stacker Full Signal | Clears /ABN and Stacker Full Signal | n.c. |
| 5 | Green | / Vend 5 Output | TXD | n.c. | TXD |
| 6 | Brown | n.c. | Serial Send Signal (/RTS) | n.c. | n.c. |
| 7 | Black | / Vend 3 Output | Gnd | n.c. | n.c. |
| 8 | Red | / Vend 4 Output | n.c. | n.c. | n.c. |
| 9 | Whi/Blk/Grn | n.c. | n.c. | n.c. | RXD |
| 10 | Blue | Inhibit Control Input (/Enable) | Inhibit Control Input (/Enable) | Inhibit Control Input (/Enable) | n.c. |
| 11 | Violet | / Vend 1 Output | Confirm Signal To Start Serial (/CTS) | n.c. | n.c. |
| 12 | Whi/Vio | n.c. | n.c. | /Pulse O/P | n.c. |
| 13 | Whi/Gry | / Vend 2 Output | n.c. | n.c. | n.c. |
| 14 | Whi/Blk | Ground | Ground | Ground | Ground |
| 15 | Whi/Blk | Ground | Ground | Ground | Ground |
| 162 | Whi/Red | 12 VDC + | 12 VDC + | 12 VDC + | 12 VDC + |
| 17 | Whi/Red | 12 VDC + | 12 VDC + | 12 VDC + | 12 VDC + |
| 18 | Whi/Yel | PDT Terminal | PDT Terminal | PDT Terminal | PDT Terminal |
| 19 | Whi/Grn | PDT Terminal | PDT Terminal | PDT Terminal | PDT Terminal |
| 20 | Whi/Blu | PDT Terminal | PDT Terminal | PDT Terminal | PDT Terminal |
Note: where a description is preceded by a “/” then that signal is active low. n.c. = not connected
- For ccTalk® interface, you can either use just the TXD line to carry data in both directions, or use the separate TXD and RXD lines direct to the host, or connect the RXD and TXD lines together. If using the single TXD line, the signals must be decoupled at the host.
| Signal | Description |
| /ABN (Alarm) | Output – low for 100ms (parallel interface) or permanently low to indicate error or alarm in serial and pulse interfaces. |
| /VEND n | Output – The vend channels 1 to 6 (parallel interface) are capable of sinking up to 50 mA at 12V dc. |
| /ESCROW | Input – when low this selects Escrow mode |
| PULSE , /SERIAL select | Input – when low selects Mars® Serial (A) mode. High or not connected selects pulse mode |
| /BUSY | Output – a low output indicates when the acceptor is operating |
| /DATA | Output – used to send data to the host machine |
| /CTS | Input – from host that tells acceptor that host is ready to receive the message |
| /Enable | Input – Determines whether or not the acceptor will accept bills. Logic low = accept bills |
| /RTS (Interrupt) | Output to host signal that the acceptor wishes to send a message to the host. |
| /PULSE O/P | The pulse credit output is capable of sinking up to 50mA. The pulse pattern is specified by the configuration. |
| TXD | Output – UART, open collector |
| RXD | Input – UART, TTL level receive data |
See the Interface Description Manuals for further details.
MAINTENANCE
Cleaning the Validator Note Path
Equipment Required
- Cotton swab or lint-free cloth.
- Cleaning solution – a mix of water and up to 50% Iso-Propyl Alcohol (IPA) is recommended.
- DO NOT use more than 50% IPA. NEVER use solvent-based cleaning agents, such as Amberclens, pure alcohol, petrol, methylated spirit or white spirit on this product as the unit will be severely damaged.
Anti-Static precautions should always be observed when cleaning the GBA ST2 unit.
- Ensure the power supply to the GBA ST2 unit is switched OFF.
- Disconnect external host loom.
- Move the two purple latches inwards to unlatch and then gently pivot top section backwards to open and remove.
- Using the Cotton swab or cloth dipped in the cleaning solution – carefully clean all sensors and plastic windows using light force only.
- Continue with swab etc to clean note path, all rollers and belts.
- Use an additional swab or cloth to dry area cleaned, if required.
- Re-attach top housing and gently push down on the lid until the latches re-engage.
- Re-connect host loom.
- The supply to the validator can now be switched ON.
Clearing a Note Jam
- Ensure the power supply to the GBA ST2 unit is switched OFF.
- Move the two purple latches on the top of the reader inwards to unlatch and then gently pivot top section backwards to open and remove.
- Clear the jammed note(s) and any debris from the note path.
- Re-assemble unit and switch the power supply back ON.

DIAGNOSTICS & TROUBLESHOOTING
Introduction:
The GBA ST2 is fitted with a tri-colour (Red/ Green/Orange) status LED, located on the top of the unit. The following functionality describes the operation of the LED.
Diagnostics
Diagnostic LED Functionality:
The LED communicates validator status. This enables enhanced diagnostics for the user and for factory personnel when assisting customers over the phone or by email. The following functionality describes the operation of the LED:
Indication Status
- Standby Modes
- Solid Green Unit Operational
- Solid Orange Unit Inhibited
- Solid Red Unit out of order – Hard Fault
Active Modes
- Flashing Green Unit Validating
- Momentary Green Flash Note Accepted and credit issued
- Flashing Red Soft Fault – Check Unit (e.g. stacker full)
- Flashing Orange Sensors read low – clean lenses
Program Modes
- Fast Flashing Green Note Enable – Programming Mode
- Fast Flashing Red Note Disable – Programming Mode
- Fast Flashing Orange Primary Calibration – Programming Mode
Flashing Note guide:
The GBA ST2 has an optional illuminated note guide to further assist in indicating the status of the validator to the end user. The default settings are given in section 5.4.5 but may differ for a specific configuration.
Diagnostic LED – Note Reject Codes:
If a note is rejected then a flash code is given when the note is removed (the LED will flash red or orange a number of times):
| Cause of Note Rejection | Number of flashes |
| Unrecognised note | 1 Red |
| Optical Anti String Gate was triggered | 2 Red |
| Mechanical Anti String Gate did not close successfully | 2 Orange |
| Note Inhibited in the configuration | 3 Red |
| Note Inhibited by the Host | 3 Orange |
| Note slipped or was held by the user as it was scanned | 4 red |
| Front of the note hit the Mechanical Gate | 4 Orange |
| Note inserted skewed | 5 Red |
| Note is too long or two notes inserted | 6 Red |
Troubleshooting
The following information is presented for customers’ guidance in identifying problems with the GBA ST2. It does not necessarily cover every possible situation.
| Problem Symptoms | Possible Cause | Investigate | Possible Solution |
| Unit does not work – belt motor does not run, no LED colour | 1. Power supply not switched on. 2. Power supply not connected. 3. Poor electrical connection(s). 4. Unit carrying out self-test. 5. PSU failure | 1. Power supply and power cable. 2. Diagnostics indicator or illuminated note guide (if fitted). 3. Interface cable assemblies. 4. Spring pins between upper and lower housings | 1. Ensure power to validator is connected and turned on. 2. Ensure Interface cable is connected firmly and correctly. 3. Make sure upper housing is firmly clipped to lower housing. |
| All programmed notes are rejected | 1. Acceptance inhibited for all notes. 2. MASG not working. | 1. Software configuration. 2. Open up and check there is nothing blocking the gate | 1. Use on-board button or GBA Talk to enable required notes. |
| Poor or no acceptance of one or more programmed notes | 1. Note acceptance inhibited. 2. Poor sensor readings. 3. Insufficient power supply capacity. | 1. Note inhibit settings. 2. Bottom Sensor Assembly fitting. 3. Note path cleanliness. | 1. Use on-board button or GBA Talk to enable required notes. 2. Use GBA Talk to check sensor levels and re-calibrate if necessary. 3. Clean validator note path. |
| Unit does not communicate with host machine | 1. Incorrect interface selected. 2. Poor electrical connection(s). | 1. Configuration of validator. 2. Interface and 18-way cable assemblies. | 1. Use on-board button or GBA Talk to select required interface. 2. Ensure Interface cable is connected firmly and correctly. |
| Belt motor runs continuously after power ON | 1. Poor electrical connection(s) | 1. Internal harnessing. | 1. Ensure Interface cable is connected firmly and correctly. |
| Unit does not provide credit for accepted note | 1. Incorrect interface selected. 2. Poor electrical connection(s). | 1. Configuration of validator. 2. Interface cable assembly. | 1. Use on-board button or GBA Talk to select required interface. 2. Ensure Interface cable is connected firmly and correctly. |
| Unit will not accept notes, note guide shows it is still handling a note | 1 Validator is still waiting for user to remove the previous note | 1 One of the front sensors is covered e.g. by a corner torn from a note | 1 Open up validator and clear anything blocking the sensors. |
Dimensional Drawings
Note: All measurements in mm
GBA ST2 DIMENSIONS WITH COMPACT BEZEL
GBA ST2 DIMENSIONS WITH STANDARD BEZEL
DIMENSIONS OF EXTERNAL DRIVE UNIT 
Revision History
| Revision | Date | Created | Approved | Comments |
| 1.00 | 01 Aug 08 | Robert Bird | Initial issue. | |
| 1.10 | 01 Jan 09 | Steve Priest | ||
| 2.00 | 07 Jul 09 | Steve Priest | Added panel mount bezel and illuminated note guide patterns | |
| 3.00 | 25 Oct 11 | Steve Priest | Update to latest product specifications and drawings. Added new configuration options. |
DISCLAIMER
Astrosys International Ltd. reserves the right to amend, improve or otherwise change this document or the product referred to herein at any time.
Astrosys International Ltd. does not accept liability for any errors contained within, or omissions from, this document. Astrosys International Ltd. shall not incur any penalties arising from the adherence to, reliance on or interpretation of this document.
| REGIONAL OFFICES | ||
| AstroSystems Ltd | Microsystem Controls Pty Ltd | |
| 1 The Quadrangle | Unit D2.0 Ground Floor | |
| Grove Technology Park | 63-85 Turner Street | |
| Wantage | Port Melbourne | |
| Oxon. OX12 9FA | Victoria 3207 | |
| U.K. | Australia | |
| Tel: +44 (0) 1235 772201 | Tel: +613 9646 6446 | |
| Fax: +44 (0) 1235 772202 | Fax: +613 9646 6447 | |
| E-Mail:[email protected] | E-Mail: [email protected] | |
| AstroSystems Inc. | AstroSystems (Far East) Ltd. | |
| 4210 Production Court | 2/F 28 Hung to Road | |
| Las Vegas | Kwun Tong | |
| Nv 89115 | Kowloon | |
| USA. | Hong Kong | |
| Tel: +1 702 643 1600 | Tel: +852 2342 6123 | |
| Fax: +1 702 643 1717 | Fax: +852 2342 6105 | |
| E-Mail:[email protected] | E-Mail: [email protected] | |
|
| Astrosys International Ltd October 2011 GBA ST2 Operations Manual v3 00.doc | |
























