Classic Series Triple Flush Inset
Installation Guide
Classic Series Triple Flush Inset Installation
SPECIFICATIONS, INSTALLATION, AND MORE
Features and specifications are subject to change at any time without notice. Visit subzero.com/specs for the most up-to-date information.
Important Note
To ensure this product is installed and operated as safely and efficiently as possible, take note of the following types of highlighted information throughout this guide: IMPORTANT NOTE highlights information that is especially important.
CAUTION Indicates a situation where minor injury or product damage may occur if instructions are not followed.
WARNING States a hazard that may cause serious injury or death if precautions are not followed.
IMPORTANT NOTE: Throughout this guide, dimensions in parentheses are millimeters unless otherwise specified.
Flush Inset Design
The flush inset design allows for flush door and grille panels and custom handle hardware. The flush inset application is an overlay model with flush inset panels. Customize with panel, grille, and handle options.
Panels: Custom panels or stainless steel.
Grille: Solid custom panel or pro louvered grille for 84″ overall unit height.
Handles: Custom, tubular, or pro handles.
Installation Requirements
- Requires single flush inset panels.
- Panels can be custom or stainless steel accessories.
- Requires separate grilles and kickplates for each unit.
Electrical Requirements
Locate the electrical supply within the shaded area shown in the illustration below. A separate circuit servicing only this appliance is required. A ground fault circuit interrupter (GFCI) is not recommended and may cause interruption of operation.
Installation must comply with all applicable electrical codes.
ELECTRICAL REQUIREMENTS
| Electrical Supply | 115 VAC, 60 Hz |
| Service | 15 amp dedicated circuit |
| Receptacle | 3-prong grounding-type |

Plumbing Requirements
Locate the water supply line within the shaded area shown in the illustration below. The water supply line should be connected to the house supply with an easily accessible shut-off valve. Do not use self-piercing valves. The water supply line must not interfere with the installation of the anti-tip brackets.
A reverse osmosis system can be used provided there is constant water pressure of 35120 psi (2.48.3 bar) supplied to the unit at all times. A copper line is not recommended for this application.
Installation must comply with all applicable plumbing codes.
PLUMBING REQUIREMENTS
| Water Supply | 1/4″ OD copper, braided stainless steel, or PEX tubing |
| Pressure | 35–120 psi (2.4–8.3 bar) |
| Excess Line for Connection | 36″ (914) |

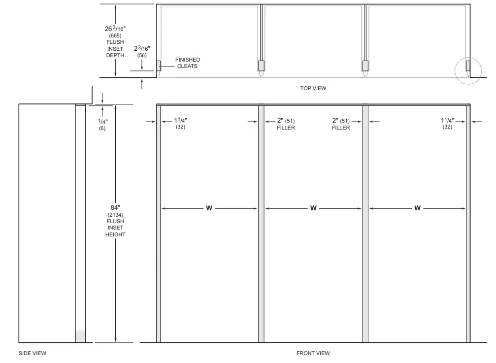
Triple Flush Inset Installation
OPENING DIMENSIONS
NOTE: 3/2″ (89) finished returns and shaded areas will be visible and should be finished to match cabinetry.
Shaded line represents profile of unit with 3/4″ (19) panel.
| OPENING WIDTH | W |
| 30″ Model | 29 1/2″ (749) |
| 36″ Model | 35 1/2″ (902) |
| 42″ Model | 41 1/2″ (1054) |
| 48″ Model | 47 1/2″ (1207) |
Flush inset is available for overlay models only. Dimensions assume a 3/4″ (19) panel thickness.
Flush Inset Panel Dimensions


MODEL CL3650R(ID), CL3650RG, CL3650F
| REFRIGERATOR / FREEZER | W | H |
| Flush Inset Panel | 37″ (940) | 71 1/4″ (1810) |
| Spacer Panel | 35 1/8″ (892) | 70 7/16″ (1789) |
| Backer Panel | 35 3/4″ (908) | 71 1/16″ (1805) |
| GRILLE | W | H |
| Flush Inset Panel | 37″ (940) | 7 3/4″ (197) |
| Spacer Panel | 35 1/8″ (892) | 6 13/16″ (173) |
| Backer Panel | 35 3/4″ (908) | 7 7/16″ (189) |
| CL3650RG | A | B |
| Stiles / Rails | 5 3/4″ (146) | 5 1/4″ (133) |
MODEL CL3050U(ID), CL3050UG
| REFRIGERATOR | W | H |
| Flush Inset Panel | 31″ (787) | 50 5/8″ (1286) |
| Spacer Panel | 29 1/8″ (740) | 49 13/16″ (1265) |
| Backer Panel | 29 3/4″ (756) | 50 7/16″ (1281) |
| FREEZER | W | H |
| Flush Inset Panel | 31″ (787) | 20″ (508) |
| Spacer Panel | 29 1/8″ (740) | 19 1/16″ (484) |
| Backer Panel | 29 3/4″ (756) | 19 11/16″ (500) |
| GRILLE | W | H |
| Flush Inset Panel | 31″ (787) | 7 3/4″ (197) |
| Spacer Panel | 29 1/8″ (740) | 6 13/16″ (173) |
| Backer Panel | 29 3/4″ (756) | 7 7/16″ (189) |
| CL3050UG | A | B |
| Stiles / Rails | 5 3/4″ (146) | 5 1/4″ (133) |
MODEL CL3650U(ID), CL3650UG
| REFRIGERATOR | W | H |
| Flush Inset Panel | 37″ (940) | 50 5/8″ (1286) |
| Spacer Panel | 35 1/8″ (892) | 49 13/16″ (1265) |
| Backer Panel | 35 3/4″ (908) | 50 7/16″ (1281) |
| FREEZER | W | H |
| Flush Inset Panel | 37″ (940) | 20″ (508) |
| Spacer Panel | 35 1/8″ (892) | 19 1/16″ (484) |
| Backer Panel | 35 3/4″ (908) | 19 11/16″ (500) |
| GRILLE | W | H |
| Flush Inset Panel | 37″ (940) | 7 3/4″ (197) |
| Spacer Panel | 35 1/8″ (892) | 6 13/16″ (173) |
| Backer Panel | 35 3/4″ (908) | 7 7/16″ (189) |
| CL3650UG | A | B |
| Stiles / Rails | 5 3/4″ (146) | 5 1/4″ (133) |
Flush Inset Panel Dimensions
MODEL CL3650UFD(ID)
| REFRIGERATOR (2 PANELS) | W | H |
| Flush Inset Panel | 18 3/8″ (467) | 50 5/8″ (1286) |
| Spacer Panel | 17″ (432) | 49 13/16″ (1265) |
| Backer Panel | 17 5/8″ (448) | 50 7/16″ (1281) |
| FREEZER | W | H |
| Flush Inset Panel | 37″ (940) | 20″ (508) |
| Spacer Panel | 35 1/8″ (892) | 19 1/16″ (484) |
| Backer Panel | 35 3/4″ (908) | 19 11/16″ (500) |
| GRILLE | W | H |
| Flush Inset Panel | 37″ (940) | 7 3/4″ (197) |
| Spacer Panel | 35 1/8″ (892) | 6 13/16″ (173) |
| Backer Panel | 35 3/4″ (908) | 7 7/16″ (189) |
MODEL CL4250UFD(ID)
| REFRIGERATOR (2 PANELS) | W | H |
| Flush Inset Panel | 21 3/8″ (543) | 50 5/8″ (1286) |
| Spacer Panel | 20″ (508) | 49 13/16″ (1265) |
| Backer Panel | 20 5/8″ (524) | 50 7/16″ (1281) |
| FREEZER | W | H |
| Flush Inset Panel | 43″ (1092) | 20″ (508) |
| Spacer Panel | 41 1/8″ (1045) | 19 1/16″ (484) |
| Backer Panel | 41 3/4″ (1060) | 19 11/16″ (500) |
| GRILLE | W | H |
| Flush Inset Panel | 43″ (1092) | 7 3/4″ (197) |
| Spacer Panel | 41 1/8″ (1045) | 6 13/16″ (173) |
| Backer Panel | 41 3/4″ (1060) | 7 7/16″ (189) |
MODEL CL4850UFD(ID)
| REFRIGERATOR (2 PANELS) | W | H |
| Flush Inset Panel | 24 3/8″ (619) | 50 5/8″ (1286) |
| Spacer Panel | 23″ (584) | 49 13/16″ (1265) |
| Backer Panel | 23 5/8″ (600) | 50 7/16″ (1281) |
| FREEZER | W | H |
| Flush Inset Panel | 49″ (1245) | 20″ (508) |
| Spacer Panel | 47 1/8″ (1197) | 19 1/16″ (484) |
| Backer Panel | 47 3/4″ (1213) | 19 11/16″ (500) |
| GRILLE | W | H |
| Flush Inset Panel | 49″ (1245) | 7 3/4″ (197) |
| Spacer Panel | 47 1/8″ (1197) | 6 13/16″ (173) |
| Backer Panel | 47 3/4″ (1213) | 7 7/16″ (189) |
MODEL CL4250S(ID), CL4250SD
| REFRIGERATOR | W | H |
| Flush Inset Panel | 25 9/16″ (649) | 71 1/4″ (1810) |
| Spacer Panel | 24 3/16″ (614) | 70 7/16″ (1789) |
| Backer Panel | 24 13/16″ (630) | 71 1/16″ (1805) |
| FREEZER | W | H |
| Flush Inset Panel | 17 3/16″ (437) | 71 1/4″ (1810) |
| Spacer Panel | 15 13/16″ (402) | 70 7/16″ (1789) |
| Backer Panel | 16 7/16″ (418) | 71 1/16″ (1805) |
| GRILLE | W | H |
| Flush Inset Panel | 43″ (1092) | 7 3/4″ (197) |
| Spacer Panel | 41 1/8″ (1045) | 6 13/16″ (173) |
| Backer Panel | 41 3/4″ (1060) | 7 7/16″ (189) |
| CL4250SD | W | H |
| Dispenser Cutout | 6 3/8″ (162) | 13″ (330) |
| A | B | |
| Cutout Location | 2 1/8″ (54) | 32 3/4″ (832) |
MODEL CL4850S(ID), CL4850SD
| REFRIGERATOR | W | H |
| Flush Inset Panel | 29 1/4″ (743) | 71 1/4″ (1810) |
| Spacer Panel | 27 7/8″ (708) | 70 7/16″ (1789) |
| Backer Panel | 28 1/2″ (724) | 71 1/16″ (1805) |
| FREEZER | W | H |
| Flush Inset Panel | 19 1/2″ (495) | 71 1/4″ (1810) |
| Spacer Panel | 18 1/8″ (460) | 70 7/16″ (1789) |
| Backer Panel | 18 3/4″ (476) | 71 1/16″ (1805) |
| GRILLE | W | H |
| Flush Inset Panel | 49″ (1245) | 7 3/4″ (197) |
| Spacer Panel | 47 1/8″ (1197) | 6 13/16″ (173) |
| Backer Panel | 47 3/4″ (1213) | 7 7/16″ (189) |
| CL4850SD | W | H |
| Dispenser Cutout | 6 3/8″ (162) | 13″ (330) |
| A | B | |
| Cutout Location | 2 1/8″ (54) | 32 3/4″ (832) |
Flush Inset Panel Offset
The illustrations provide panel offsets and reveals for Classic Series models in a flush inset application. Refer to the chart below for reference to the illustrations.
PANEL OFFSET
| ALL REFRIGERATOR / ALL FREEZER | ILLUS |
| Door / Grille Sides | A |
| Grille Top | C |
| Grille Bottom / Door Top | D |
| Door Bottom | F |
| OVER-AND-UNDER | ILLUS |
| Door (hinge) / Drawer / Grille Sides | A |
| Doors (handle) Sides (French door only) | B |
| Grille Top | C |
| Grille Bottom / Door Top | D |
| Door Bottom / Drawer Top | E |
| Drawer Bottom | F |
| SIDE-BY-SIDE | ILLUS |
| Doors (hinge) / Grille Sides | A |
| Doors (handle) Sides | B |
| Grille Top | C |
| Grille Bottom / Door Top | D |
| Door Bottom | F |


Flush Inset Application
FULL-SCALE TEMPLATE
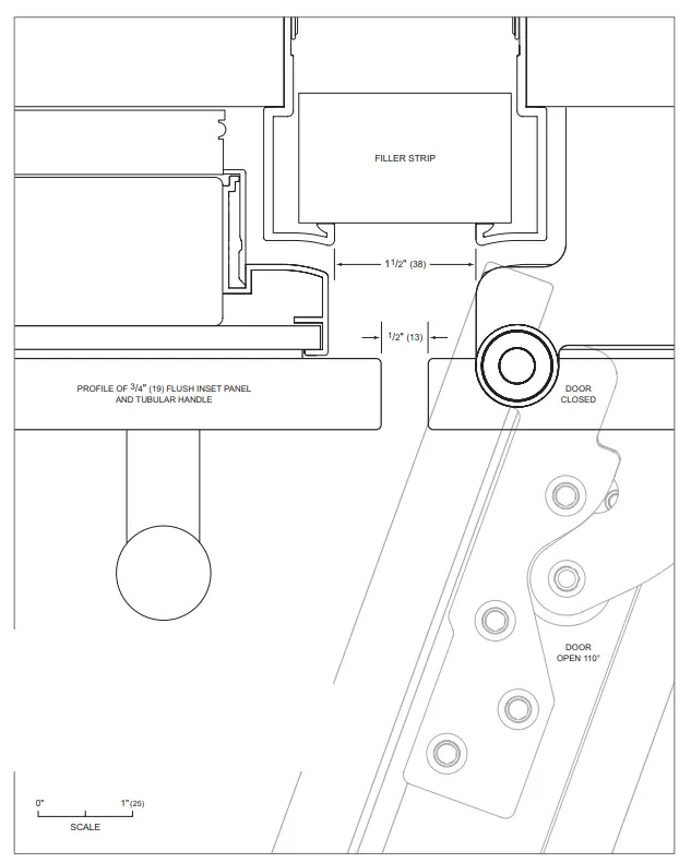
For panels thicker than 3/4″ (19), a 90° door stop may be required to prevent interference with adjacent cabinets.
Triple Flush Inset Installation
FULL-SCALE TEMPLATE
Typical triple flush inset installation with filler strip at maximum 110° door opening. Panel thickness may require a 90° door stop.

Sub-Zero, Sub-Zero & Design, Sub-Zero & Snowflake Design, Dual Refrigeration, The Living Kitchen, Great American Kitchens The Fine Art of Kitchen Design, Wolf, Wolf & Design, Wolf Gourmet, W & Design, red colored knobs, Cove, and Cove & Design are registered trademarks and service marks of Sub-Zero Group, Inc. and its subsidiaries.
All other trademarks are property of their respective owners in the United States and other countries.
SUB-ZERO, INC. P.O. BOX 44848
MADISON, WI 53744 SUBZERO.COM 800.222.7820
10/2022

















