WaterVISE FloVISE
User Manual
Pump WaterVISE, FloVISE
It is important that you read this manual carefully to secure the function and useful life of the pool equipment.
This manual is also available from www.pahlen.com
Pahlén AB is not responsible for the product warranty or damage caused by incorrect installation, use or incorrect maintenance.
WARNING
- This appliance must not be used in aggressive water, salt water or pools/hot tubs with a chlorine machine/salt chlorinator, see the recommended water quality values.
- The appliance must be installed in accordance with applicable national laws and provisions and the electrical installation must only be carried out by a qualified electrician.
- Do not start installing the appliance until you have read and understood the installation instructions and warnings in this manual. If you have any questions about the installation instructions or warnings, please contact your local dealer.
- Under no circumstances may this appliance be started without being completely filled with water.
- This appliance must not be covered, placed near combustible material or in direct sunlight.
- This appliance must not be used by very young children (0-3 years).
- This appliance must not be used by young children (3-8 years) and people with significant and complex disabilities unless they are under constant supervision by a person who is responsible for their safety.
- This appliance may be used by children over 8 years of age and persons with reduced physical, sensory or mental capabilities or lack of experience or knowledge, provided that they’re under supervision or have received information on how to use the appliance safely and understand risks that may occur by a person who is responsible for their safety.
- Children are not allowed to play with the appliance.
- This appliance should not be cleaned or maintained by children without supervision.
- Always disconnect the appliance from the supply before assembling, disassembling or cleaning.
- Pumps without indication that they are protected against the effects of freezing shall not be left outside during freezing weather conditions.
- Failure to follow the installation instructions invalidates the product warranty.
General information
Pahlen pumps are manufactured in accordance with the applicable standard and certified by the third party.
Modification or change of the product must only be made after receiving the manufacturer’s approval. Only use spare parts and fittings approved by the manufacturer.
For Pahlen’s standard pools, the pool water must not be aggressive, see the record water values below.
Transport and season storage:
Store the pump in a dry environment in a temperature as stable as possible (Great temperature changes and moist environment can lead to corrosion damages on motor coils or metal parts).
Safety
- The pump must only be used within the limit values given on the pump type plate and motor rating plate.
- Make sure that the pump type plate and the motor rating plate are readable even after the installation.
- Do not use the pump without its protective housing. Touching live or moving parts can cause serious damage.
- Always check that the current to the pump is disconnected before commencing any work, service or maintenance of the pump.
- Make sure that the right dimension of pipe to and from the pump is used, see the table on the next page. This reduces the risk of pressure drop, which can lead to cavitation damages on the pump’s mechanical parts.
- If there is a freezing hazard, the pump must be disconnected and drained out to avoid frost damages.
Product description
The pump is intended for circulation of filtered water in pools with chlorine disinfection (organic, inorganic chlorine). Pahlén can not guarantee the pump’s lifespan and operational performance with other types of disinfection agents. The pre-filter enclosure can be dismantled, which allows the inlet direction to be turned without affecting the pump’s performance This is provided to facilitate placing the pump in an area where the installation space is limited.
Function
Suction side (A) – the pump sucks water.
The water passes through the pre-filter (B), which has an inner strainer bucket, and further into the pump housing.
The water is pumped/pressed further out of the pump housing on the pressure side (D).
Discharge valves (E) are opened during the draining of the pre-filter and pump housing.
A Suction side
B Prefilter housing
C Pump housing
D Pressure side
E Lock handle
F Drain plug
The product is intended for the following water values:
| Total chlorine: | max 3.5 mg/l * |
| Chloride (salt) content: | max 250 mg/l |
| PH-value: | 7.2 – 7.6 |
| Alkalinity: | 60-120 mg/l (ppm) |
| Calcium hardness: | 100-300 mg/l (ppm) |
| Iron: | max 0.1 mg/l* |
| Copper: | max 0.2 mg/l* |
| Manganese: | max 0.05 mg/l* |
| Phosphorous: | max 0.01 mg/l* |
| Nitrate: | max 50 mg/l* |
* According to SS-EN 16713-3 2016
The product guarantee does not apply outside these values.
Technical data
| Enclosed protection class | IP55 |
| Max. water pressure | 2,5 bar |
| Ambient temperature | max. +45°C |
| Water temperature | max. +45°C |
See the pump model type plate for information about the maximum lifting height (Hmax).
Picture 1 shows where the type plate is located on the pump.
Example Type plate:

Example Rating plate

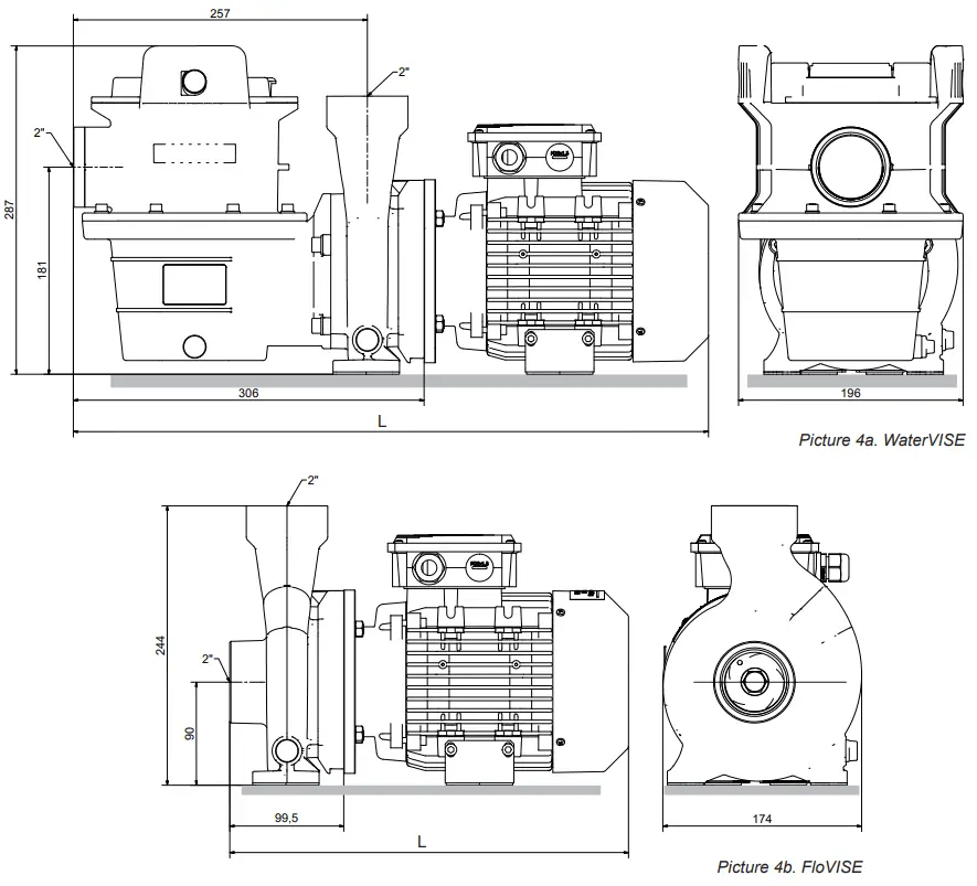
Dimensions

| WaterVISE | ||
| Power | L | Weight |
| 0.25kW | 490 mm | 12 kg |
| 0.37kW | 520 mm | 12.2 kg |
| 0.55kW | 520 mm | 13.8 kg |
| 0.75kW | 540 mm | 18.4 kg |
| 1.1kW | 560 mm | 25.8 kg |
| FloVISE | ||
| Power | L | Weight |
| 0.25kW | 278 mm | 9.4 kg |
| 0.37kW | 308 mm | 9.6 kg |
| 0.55kW | 308 mm | 11.2 kg |
| 0.75kW | 328 mm | 15.8 kg |
| 1.1kW | 348 mm | 23.2 kg |
Installation
We recommend using the Pahlén connection Kit (article number 118000), which contains Unions with O-ring seal.
Use threaded tape or thread sealant for ABS plastic when tightening the threads.
Pipe connection are made BEFORE electrical installation.
Dimension the pipes as per the table below.
Use the given small rubber mats under the feet of the pump to prevent structure-borne sounds.
WARNING
- The pump must be placed lower than the pool’s water surface and near the pool in order to get as short suction pipe as possible.
- Free distance behind the pump motor must be at least 2.5 X fan diameter.
- Fix the pump with a suitable bolt in a steady, level base in a way that structure-borne sound is prevented.
- Make sure that the space has good ventilation, is dry and there is no risk of drowning.
- The pump with the pre-filter must be placed such that the strainer bucket can be lifted out for regular cleaning/draining.
Alternative inlet direction
The pre-filter housing is divisible and the upper part can be turned and mounted in 7 different inlet directions. This makes it easy to adjust placing the pump in the machine area with regard to piping of the pool system.
Do the following to change the inlet direction:
- Loosen the 8 screws (G) that secure the upper part (hexagon 5).
- Lift up and turn the upper part to the desired position. Make sure the o-ring (F) is correctly positioned in its groove.
- Attach the upper part with the 8 screws (with washers below). Screw them firmly (4 Nm).

Installation pipe
Piping to and from the pump must be clamped or backed up to discharge. This is to prevent material stresses that can lead to damage and/or leakage.
Do not use fast-closing valves as they can generate pressure shocks that exceed the maximum pressure of the pump. Check that all connections are completely sealed during commissioning.
Skimmer- Bottom outlet
- Inlet
- JetSwim
- Lighting
- Pump
- Filter
- Electric heater
- Check valve
- Sewage
Pressure pipe
Connect the pressure pipe of the pump to the cleaning filter. Avoid sharp edges.
The shut valve for the pump is recommended from the service point of view, and in some cases, it can also be needed to adjust the back pressure.
Suction pipe
To optimise the pump, the following rules must be followed during the planning and design of the suction pipe: large pipe dimension, short suction pipe, few valves, few sharp pipe bends, low-placed pump and tightened pipe edges to avoid air leakage.
The pump’s life span and performance can be shortened if these rules are not followed.
The suction pipe must be equipped with a shut-off valve, which must always be completely open when the pump is in operation. Strive for a completely straight suction pipe closest to the pump, of a length that corresponds to at least 8 x pipe diameter, see the picture. Gravity drainage from pool to pump is recommended.
If the pump is placed over the pool’s water surface, a back valve must be mounted on the suction pipe. This however leads to flow losses and the pump must be strapped with a valve on the pressure side. If this is not done, there is a risk of the pump being cavitated, which can lead to shaft seal leakage and damages to the impeller.
Recommended pipe dimension
| Pump type | External pipe diameter | |
| Suction side (max 10 m*) | Pressure side (max 20 m*) | |
| 0,25–0,37kW | min Ø50 mm | Ø50 mm |
| 0,55–1,1kW | Ø63 mm | Ø63 mm |
*For longer sections, use greater pipe diameter.
Electrical Installation
Elinstallationen skall ske efter rörinstallationen.
NOTE! The pump must never be started without being filled with water.
Connection diagram electricity
WARNING
- The electrical installation may only be carried out by a qualified electrician in accordance with the instructions provided with the pump.
- As electrical installation regulations differ from country to country, contactors, cables, connection components, and enclosures must be selected based on local regulations.
- A main isolator must be installed before all live electrical connections on the pump. This must be an all-pole isolator that satisfies the requirements set out in IEC/EN 60335-1 paragraphs 7.12.2, 22.2 and 24.3.
- The pump shall be fed via a residual current device with maximum leakage current of no more than 30mA.
- The pump shall be fitted with an all-pole switch and approved automatic motor circuit breaker that should be set to match the motor’s rated current, see the pump motor rating plate.
- Check that the pump’s direction of rotation is the same as system flow – see the arrow on the motor housing.
Operation
Never dry run the pump, as this could lead to shaft sealing.
The pump must not be operated without a strainer bucket, as this may cause foreign material to penetrate and damage vital parts. Make sure that openings/outlets on the pool’s suction side are in accordance with the applicable guidelines, standards and instructions. Differential pressure must be at least 8 MVP at maximum speed. The pump must not work continuously with very little differential pressure (risk of cavitation, can damage vital parts).
- Make sure that the pump is filled with water before starting.
Disassemble the lid of the pre-filter housing by lifting the lock handle and turning the lid clockwise. Fill the housing with water up to the suction connection. - Close the lid, turn clockwise and make sure that the lock handle touches bottom.
- Check that all the valves of the pump are open. Make sure that the opening below between the motor and the pump housing is not blocked (blocking could damage the pump).
- Open the valve on the pump’s pressure side halfway.
Never run the pump with a closed valve, this could cause damage. - Start the pump and evacuate any air completely, before the valve on the pressure side is opened completely.
- Check for any leakage.

Handling
Always close the pump before the function mode on the sand filter’s central valve is changed (or other valves are closed). Do not touch the motor during operation. The motor can reach high temperatures during operation.
Let the motor cool down before any service. Regularly check that the strainer bucket is free from foreign objects and rubbish.
Note! Never place chemical preparations directly inside the pump’s strainer bucket. This will damage the pump’s components.
Continuous operation is recommended to prevent condensation with the risk of AZ<. Repeat down times during cool ambient temperatures are not good for the motor as deposits can easily build up, which can block the movement. In case of long downtimes, more than 1 week, the motor shaft must be checked/put into motion before starting up. First disconnect the current to the pump, use a screwdriver at the rear edge of the centre of the motor against the impeller and turn the shaft or dismantle the hood and turn the fan.
In case of a freezing hazard
The whole pump and its inlet and outlet pipes must be drained if there is a freezing hazard. The pump is drained out completely by screwing out its drain valves (E), see picture 1.
Troubleshooting
For all troubleshooting, voltage to the pump must be disconnected.
The supply voltage to the pump must also be disconnected if the equipment leaks.
Do not start the pump multiple times if the pump/motor shaft is blocked, as this will damage the motor.
| Problem | Cause | Measure |
| Fuses/motor protection area tripped. | The pump is over-loaded. | Check the movement of the motor shaft: If the shaft speed is very slow, contact the installer. If the shaft turns easily, contact an electrician for measuring the operational voltage and power consumption. |
| The pump is working, but gives a poor flow. | Insufficient pump effect. | Check that the pump’s strainer bucket is free from rubbish and foreign objects. Check that supply of water to the pump as well as the outlet is not obstructed from water flow (shut-off valves, etc). Check the motor’s direction of rotation. In case of opposite rotation, the pump gives significantly lower flows and higher sound level. Check that the pipe dimensions are as per the specification. |
| The pump motor goes hot. | Insufficient cooling. | Check that the motor fan receives sufficient cooling. Check that the ambient temperature is not too high. |
| Too high pressure on the pressure side. | Check that the pump releases a flow that is 10% more than the pump’s lifting height Hmax (see the pumps rating plate). | |
| Incorrect setting of the motor protection. | Check that the value set on the motor protection conforms to the pump motor rating plate. | |
| VCheck that the value set on the motor protec- tion conforms to the pump motor rating plate. | (A few drops are normal during the operation). | In the event of constant leakage, the shaft sealing must be changed. (The shaft sealing is a wearing component and the life span is affected by a number of different factors, among others, the number of operational hours and water quality). |
Spare parts: see the Pahlén website.
Copyright © 2022 Pahlén AB, Box 728,
SE-194 27 Upplands Väsby, Sweden
Tel. +46 8 594 110 50,
Fax +46 8 590 868 80,
E-mail: [email protected]
www.pahlen.com
MA25-05 rev.2
2022

Skimmer


















