3.028187 KIT SOLAR CONTAINER COMBO
Instructions 
IE THIS SHEET MUST BE LEFT WITH THE USER ALONG WITH THE INSTRUCTIONS MANUAL FOR THE FINISHED PRODUCT
GENERAL WARNINGS
All Immergas products are protected with suitable transport packaging.
The material must be stored in a dry place protected from the weather.
This instruction manual provides technical information for installing the Immergas kit. As for the other issues related to kit installation (e.g. safety at the workplace, environmental protection, accident prevention), it is necessary to comply with the provisions specified in the regulations in force and with the principles of good practice. Improper installation or assembly of the Immergas appliance and/ or components, accessories, kits, and devices can cause unexpected problems for people, animals and objects. Read the instructions provided with the product carefully to ensure proper installation. Installation and maintenance must be performed in compliance with the regulations in force, according to the manufacturer’s instructions and by professionally qualified staff, meaning staff with specific technical skills in the plant sector, as envisioned by the law.
KIT DESCRIPTION
The Solar Container kit was designed to fit at least the installation space for the Magis Combo Plus in external and internal walls. The lower part of the frame has the holes necessary for the hydraulic, gas, electrical, condensate drain and temperature control connections. It has holes on its right sides for connections to the heat pumps. The upper part has the holes for the outlet to the flue (“B type” and “C type” installations) and to the intake duct (only for “C type” installation) using the Immergas flue.
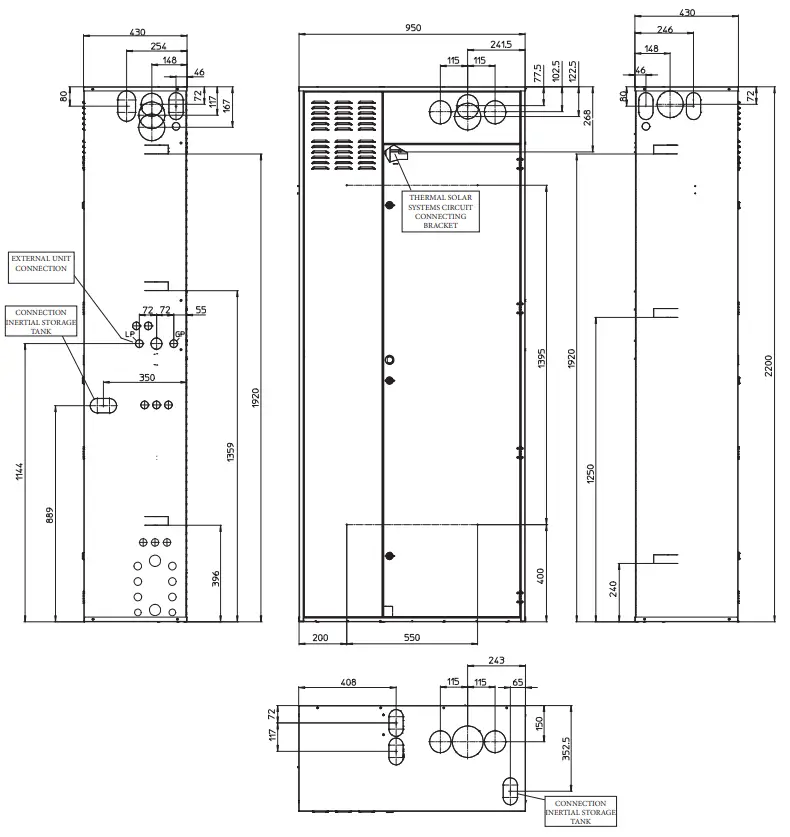
MAIN DIMENSIONS
ATTENTION
With 60/100 concentric kit use the top hole D. 110 mm. Connection from the left side of the Solar Container Combo is only possible with the aspiration/discharge of the separator Ø 80/80.
CONNECTION TEMPLATE

Key:
G -Gas supply
The AC-Domestic hot water outlet
AF-DHW (Domestic hot water) water inlet
LP-Chiller line – liquid phase
GP-Chiller line gaseous phase
LP2– Chiller line- liquid phase*
GP2-Chiller line – gaseous phase*
MZ-System flow
RZ- System return
RC- DHW (Domestic hot water) recirculation
SC – Condensate drain
V- Electrical connection
VCR- Remote control electrical connection
VS – 3 bar discharge valve
| TABELLA ALLACCIAMENTI ZONE | ||
| Zona Y | Zona X | |
| Hydronic kit Magis Combo Plus | Zone 2 mixed (Optional) | Zone 1 direct |
| CONNECTIONS | ||||||||||
| GAS | DOMESTIC HOT WATER | SYSTEM | CHILLER LINE | |||||||
| G | AC | AF | RZ (Y) | MZ (Y) | RZ (X) | MZ (X) | LP | LP2 | GP | GP2 |
| G 1/2″ | G 1/2″ | G 1/2″ | G 3/4″ | G 3/4″ | G 3/4″ | G 3/4″ | 3/8″ SAE – 1/4″ SAE (V2) | 5/8″ SAE | ||
INSTALLATION:
Set up the masonry jobs creating an opening in the wall where the frame will be installed (1), paying attention to envision the space for the six slots for inserting the respective support fins (2) and a space under the frame sufficient to carry out the kit connections (Fig. 3).
N.B.: it is very important to provide a support screed (A) in the area under the Solar Container Combo kit at the support point of the storage tank unit.
It is also possible to fix the frame to the wall with plugs (not supplied) using the specific four holes (6). The Solar Container Combo kit is closed by the side cover (5), where the air intake grid is present, by the upper cover (3) where it is possible to let the flue out, and by the door (4) which can be opened by the handle and only after having unlocked the locks placed vertically to access the internal components. There are appendices inside (7) that are set up for the various components to be coupled.
Attention:
The installation of the Solar Container Combo kit inside the wall must guarantee stable and effective support to the appliance it contains. This kit ensures suitable support only if inserted correctly (according to the rules of good practice) and positioned in a square with respect to the wall following the instructions given below, thus guaranteeing the correct functionality of the front doors. The Solar Container Combo kit is not a supporting structure and cannot replace the piece of wall removed. It is, therefore, necessary to check its correct positioning inside the wall.
For safety reasons, it is necessary to carefully seal the housing compartment of the Solar Container kit in the wall, in compliance with Standards in force. Make sure that the pre-cuts for the hydraulic connections have been removed from the intended pipe route. Be sure to remove the relevant sections based on the flue (“B type” and “C type” installations) and the intake ducts (only for “C type” installation). Insert the frame inside its own seat, remembering to open the six support fins (2) before inserting it. Some holes are pre-cut smaller with respect to the useful size in order to allow them to be enlarged according to your needs. Once the frame has been installed, set up all the connections for the hydraulic connection to the specific product preset in the lower and lateral parts.
N.B.: The connection unit is not supplied, but is sold separately (optional). To ease installation, choose whether to make the connection at the rear, bottom or side (bottom right) of the Solar Container Combo kit (see Fig. 2).
The electrical connections require the connection to the electric mains to be separated from the connection to the temperature control by passing the relative cables through the openings provided. Make the gas connection. The gas pipe can exit downwards, through the rear outlet, lower outlet, right side outlet or from the front using the appropriate pre-cut already provided on the door (see Fig. below).
Once out from the front, it is possible to turn the gas pipe in the preferred direction.
N.B.: to install the gas supply pipe, under or out of route, comply with the installation standards UNI 7129 / 7131-99.
Install the connecting pipes of the coolant gas circuit (where required) using the pre-drilled holes. The pipes inside the Solar Container kit must protrude the necessary space to allow the chosen product to be connected.
N.B.: comply with the UNI EN 378 Standards for the installation of the coolant gas circuit and connection to the heat pump.
Attention: Refer to the specific instruction booklet of each individual product for assembly/installation and commissioning of the various components inside the Solar Container kit.
At this point, the installation is complete and the frame cover can be painted according to requirements.

Drawings key installation:
1 Unambiguous component identification
a Sequential identification of the
An operation to perform
Identification of generic or not supplied component
Cod. 1.041070 – rev. ST.003401/002 – 04/22
During the useful life of the products, performance is affected by external factors, e.g. the hardness of the DHW, atmospheric agents, deposits in the system and so on. The data is declared to refer to new products that are correctly installed and used with respect to the Standards in force. N.B.: correct periodic maintenance is highly recommended.
immergas.com
The instruction manual is printed on environmentally-friendly paper.
To request further specific details, sector Professionals can also use the following e-mail address: [email protected]
Immergas S.p.A. 42041 Brescello (RE) –
Italy Tel. 0522.689011 Fax 0522.680617
Azienda certificata ISO 9001 ISO 9001 certified company





















