GRUNDIG GKFED473 Built-In 70-30 Frost Free Fridge Freezer

WARNING:

TOOLS


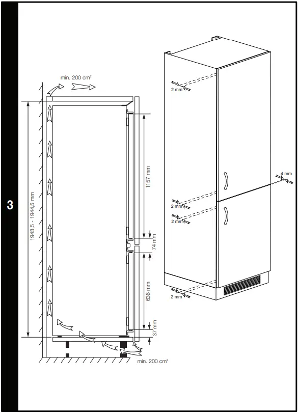
DIMENSIONS


INSTALLATION








WARNING:












Download manual
Here you can download full pdf version of manual, it may contain additional safety instructions, warranty information, FCC rules, etc.