saxby 77893 Forca MW LED Bulkhead

Instruction leaflet
Forca MW LED Bulkhead
77893, 77898

Installation
Existing fittings must be completely removed before installation of a new product. Before removing the existing fitting, carefully note the position of each set of wires .
- Remove the 4 fixing screws and detach the shade. Keep safe for refitting later.
- Hold the product in place and mark the position of the holes. Ensure the wall is capable of holding the weight of the product, or if fitting to a ceiling, ensure there is a joist at the point of fixing to support the weight of the product.
- Knock out the chosen fixing holes.
- Fix into position. Take care to avoid damaging any concealed wiring and pipes. The correct fixings should be used for brick, cavity walls or plasterboard.
- Pierce a hole in the grommet, and pull the cable through.
- Wire as detailed below.
Wiring
- This product is double insulated and must not be earthed. If there are any incoming earth cables, they must be joined together and well insulated with good quality insulation tape. This is to ensure earth continuity throughout your property.
- Having correctly identified the wiring from your existing light fitting, connect to the quick fit connection block in the following way:

Check that
- You have correctly identified the wires.
- The connections are tight.
- No loose strands have been left out of the connection block
Commissioning
- Ensure that the screws and cable entry points are sealed to maintain the IP rating of the product.
- Refit the shade, ensuring that the seals are correctly located.
- Gently push your chosen casing onto the shade until it clips in place .
- Replace fuse or circuit breaker and switch on. Your light is now ready for use.
Fitting/replacing bulbs
- This system contains non-replaceable parts and cannot be serviced. If damage occurs the part should be scrapped.
CCT Function (77898 only)
- This colour is changeable between 3000K-4000K-6500K, using the switch inside the product.

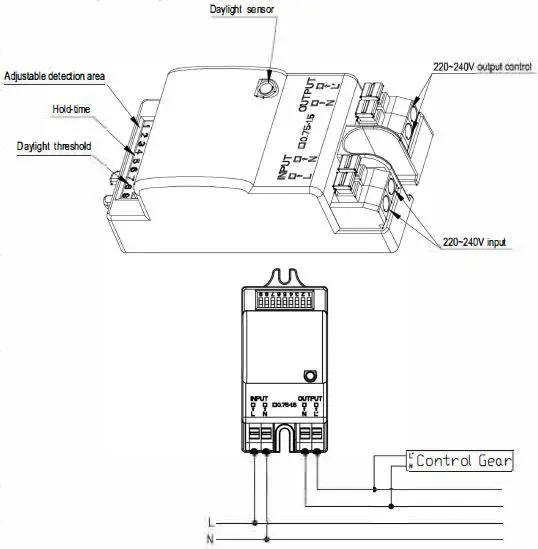
Microwave Movement Sensor
This product is fitted with a microwave movement sensor. Please see below detailed operating instructions.
Technical Specifications

50%, 75%, 100% detection sensitivity is workable when installed at 6m mounting height. Only 10%, 25% sensitivity is not able to detect motion signal.

Settings
Sensitivity
Sensitivity can be adjusted by selecting the combination on the DIP switches for different applications.

Hold-time
Hold-time refers to the time period that the light remains 100% on if no more movement is detected.

Daylight sensor
Different daylight threshold can be preset on DIP switches. Light will always turn on upon movement if daylight sensor is disabled.

Disable means the daylight sensor does not work. The sensor will turn on light once motion is detected regardless of ambient light level.
Trouble shooting

Care and Safety
- We recommend cleaning with a soft dry cloth. Do not use solvents or abrasive cleaners as these could damage the finish.
- For your safety, always switch off the power supply before cleaning.
Thank you for purchasing this light fitting. Please read the instructions carefully before use to ensure safe and satisfactory operation of this product. Please retain these instructions for future reference.
Warning
Fl This product is Class 2 (Double insulated) l.!::::!J and must not be earthed.
Please read these instructions carefully before commencing any work.
This unit must be fitted by a competent and qualified electrician.
Install in accordance with IEE Wiring regulations and current Building Regulations.
To prevent electrocution switch off at mains supply before installing or maintaining this fitting. Ensure other persons cannot restore the electrical supply without your knowledge. If you are in any doubt, please consult a qualified electrician.
This light fitting should be connected to a circuit with a 30mA RC□ fitted.
If replacing an existing fitting, make a careful note of the connections.
This product contains non-replaceable parts and cannot be serviced.
If damage occurs the part should be scrapped.
Waste electrical products should not be disposed of with household waste. Please recycle where facilities exist. Check with your local authority or retailer for recycling advice.
Technical data

Layout
- Plan the desired layout of this fitting carefully, ensuring the cables will reach the distance between the junction box and the light fitting.
- Avoid locating any cables in positions that would cause a hazard. Position cables and junction boxes (not supplied) away from areas where they may be at risk from being cut, trapped or damaged.
- The mains supply cable must have a minimum cross sectional area of 1.0mm2
- Cables must be protected using suitable conduit or plastic trunking.
- The products can be wall or ceiling mounted. If wall mounting ensure that the power supply is at the bottom.
Individual casings
The following individual casings are available for purchase separately.
77904 : White plain
77907 : Grey plain
77905 : White eyelid
77908 : Grey eyelid
77906 : White grill
77910 : Black plain
77909 : Grey grill
77911 : Black eyelid
77912 : Black grill
77913 : Chrome plain




















