
Electrolux ENT3FF18S LowFrost 500 Series ColdSense Freezer

Installation Instruction
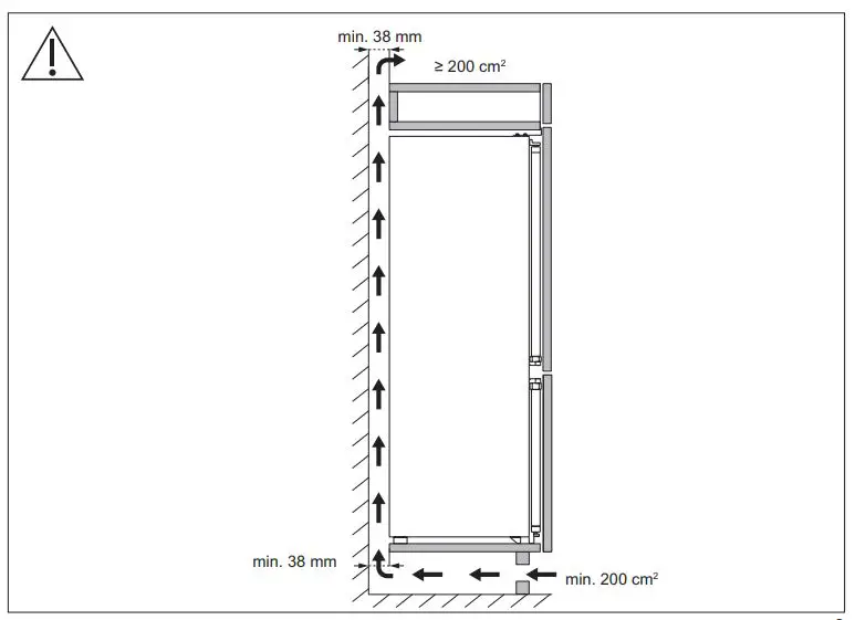
Warning! Before proceeding with installation, read the safety information in the User Manual.
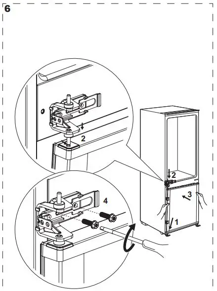
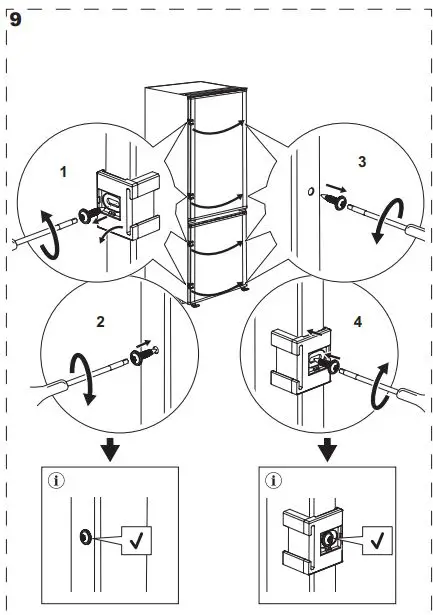
How to install your Electrolux fridge/freezer internal control sliding door”
“How to install your AEG fridge / freezer internal control sliding door”



















































